賃貸アパート
JACK SHINAGAWAの賃貸物件情報(1LDK/3階)
| 家賃 | 管理費等 | 敷金 | 礼金 | 間取り | 専有面積 |
|---|---|---|---|---|---|
| 6.25万円 | 3,500円 | なし | 6.25万円 | 1LDK | 32.04m2 |
入居決定でお祝い金最大100,000円
- 保証金
- -
- 償却・敷引
- -
- 築年数
- 新築
- 所在階
- 3階
- 向き
- 北
Point
オートロック付なので女性、はじめての一人暮らしでも安心してご入居頂けます☆インターネット使用料不要なので面倒な手続き不要です◎LINE・メール・お電話でやり取り可能!
提供:スタイルエステート西支店(株)エムホームエステート(SUUMO経由)

詳細情報 JACK SHINAGAWA
物件紹介
JACK SHINAGAWAはあおなみ線荒子川公園駅から徒歩9分にあり、駅近で通勤通学に便利なアパートです。
このお部屋は2階以上に位置しているので、通行人や周囲の住人からの視線が気になりにくく、防犯面でも安心。建物のエントランスはオートロックがついており、インターホンにはTVモニタもついているため、相手の顔を確認してから来客対応することができます。
おしゃれなデザイナーズ物件!フローリングのお部屋なのでお掃除もラクラク。キッチンはシステムキッチン仕様になっていますので、お料理好きの方にもぴったり。バス・トイレは別なので、のんびりお風呂タイムも楽しめるでしょう。また、雨の日でも浴室乾燥機を使えば、お洗濯も問題ありません。
通信設備面では、インターネットが無料で使えるので、月々の出費を抑えられるのも魅力です(別途工事等が必要な場合あり)。
共用部には宅配ボックスが設定されているので、不在の時にも荷物を受け取ることができます。
このお部屋は2階以上に位置しているので、通行人や周囲の住人からの視線が気になりにくく、防犯面でも安心。建物のエントランスはオートロックがついており、インターホンにはTVモニタもついているため、相手の顔を確認してから来客対応することができます。
おしゃれなデザイナーズ物件!フローリングのお部屋なのでお掃除もラクラク。キッチンはシステムキッチン仕様になっていますので、お料理好きの方にもぴったり。バス・トイレは別なので、のんびりお風呂タイムも楽しめるでしょう。また、雨の日でも浴室乾燥機を使えば、お洗濯も問題ありません。
通信設備面では、インターネットが無料で使えるので、月々の出費を抑えられるのも魅力です(別途工事等が必要な場合あり)。
共用部には宅配ボックスが設定されているので、不在の時にも荷物を受け取ることができます。
お金・契約の情報
※「-」と表示されているものは、実際は料金が発生するものもございます。詳細はお問い合わせください。
| 家賃 | 6.25万円 | 管理費・共益費 | 3,500円 |
|---|---|---|---|
| 敷金 | なし | 礼金 | 6.25万円 |
| 入居決定でお祝い金最大100,000円 | |||
| 保証金 | - | 償却・敷引 | - |
| 住宅保険料 | - | 更新料 | - |
| 契約形態 | - | 契約期間 | - |
| 入居・引渡期間 | - | 現況 | - |
| 契約備考 | 見学から契約までご来店不要でご対応可能です♪駐車場の空き状況は別途お問い合わせ下さい。 1LDK 単身者可/二人入居可 普通借家2年 損保【要】 バストイレ別、バルコニー、エアコン、ガスコンロ対応、クロゼット、フローリング、シャワー付洗面台、TVインターホン、浴室乾燥機、オートロック、室内洗濯置、シューズボックス、システムキッチン、追焚機能浴室、温水洗浄便座、脱衣所、洗面所独立、洗面化粧台、2口コンロ、宅配ボックス、敷金不要、防犯カメラ、保証人不要、デザイナーズ、ネット使用料不要、1フロア2住戸、築2年以内、24時間換気システム、未入居、3駅以上利用可、駅徒歩10分以内、上階無し、敷地内ごみ置き場、プロパンガス、洗面所にドア、礼金1ヶ月、IT重説対応物件、初期費用カード決済可 入居日:'26年4月下旬 | ||
部屋の情報
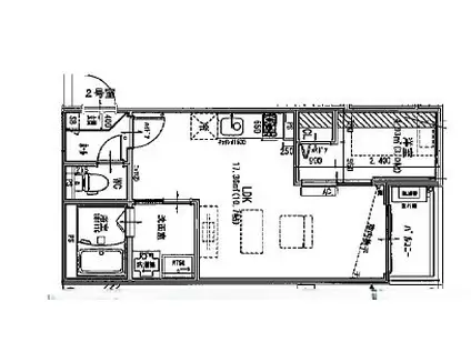
| 間取り | 1LDK | 専有面積 | 32.04m2 |
|---|---|---|---|
| 所在階 / 向き | 3階 / 北 | バルコニー面積 | - |
| 水道 / ガス | - | ||
| 設備 | バス・トイレ別、2階以上、オートロック、テレビドアホン、宅配ボックス、浴室乾燥機、追い焚き、インターネット対応、システムキッチン、エアコン、温水洗浄便座、バルコニー、フローリング、洗髪洗面化粧台、2口コンロ、コンロ:ガス、デザイナーズ、インターネット使用料無料、洗濯機:室内 | ||
| 当社物件ID | 160323043 | ||
建物の情報
| 建物名 | JACK SHINAGAWA | ||
|---|---|---|---|
| 所在地 | 愛知県名古屋市港区品川町 | ||
| 交通 | あおなみ線 荒子川公園駅 徒歩9分 あおなみ線 港北駅 徒歩21分 あおなみ線 稲永駅 徒歩22分 | ||
| 階数 | 3階建 | 総戸数 | 9戸 |
| 築年月 | 2026年04月 / 新築 | エレベーター | - |
| 駐車場 | 空有 7700円 | バイク置き場 | - |
| 駐輪場 | - | 管理人/管理会社 | - |
| 周辺環境 | その他 カネスエ 砂美店(スーパー)まで764m その他 ミニストップ 名古屋みなとコンコルド店(コンビニ)まで311m その他 スギ薬局 砂美店(ドラッグストア)まで569m その他 カインズ名古屋みなと店(ホームセンター)まで1455m その他 名古屋港北郵便局(郵便局)まで963m その他 ロピア 名古屋みなと店(スーパー)まで1198m | ||
| 建物種別 | アパート | 建物構造 | 木造 |
この部屋の取扱い不動産会社
| 会社名 | スタイルエステート西支店(株)エムホームエステート(SUUMO経由) | ||
|---|---|---|---|
| 所在地 | 愛知県名古屋市中川区高畑1-235 | 交通 | - |
| 営業時間 | 10:00~20:00 | 定休日 | - |
| 免許番号 | 愛知県知事22094 | 取引態様 | 仲介 |
| 不動産会社管理番号 | 100485990904 | 当社管理番号 | 89 |
| 所属団体 | (公社)愛知県宅地建物取引業協会会員 | ||
| 公正取引協議会 | 東海不動産公正取引協議会加盟 | ||
| 取扱い物件情報 | 物件詳細へ | ||
※各種情報と現状に差異がある場合は、現状優先となります。問い合わせをすることで、より詳しい条件、情報を確認する事ができます。
提供:スタイルエステート西支店(株)エムホームエステート(SUUMO経由)
この物件が気になったら掲載期限まであと10日
JACK SHINAGAWAに条件(家賃・エリア)が近い物件一覧
| 写真 | 家賃 管理費等 | 敷金 礼金 | 間取り 専有面積 | 築年数 | 最寄り駅 所在地 | キープ | 詳細 |
|---|---|---|---|---|---|---|---|
アパート レオパレスメゾン・ド・ユニオン(1K/2階) | |||||||
![]() | 5.3万円 5,000円 | なし 5.3万円 | 1K 19.87m2 | 築22年 | 中央本線 勝川駅(JR) 徒歩21分 愛知県春日井市下条町1丁目 | 詳細を見る | |
アパート ゼックス シュテルネ(1LDK/2階) | |||||||
![]() | 8.2万円 4,400円 | なし 8.2万円 | 1LDK 43.47m2 | 新築 | 名鉄名古屋本線 豊明駅 徒歩7分 愛知県豊明市阿野町奥屋 | 詳細を見る | |
マンション ビレッジハウス東野3号棟(3DK/3階) | |||||||
![]() | 5.69万円 なし | なし なし | 3DK 45.36m2 | 築63年 | 中央本線 春日井駅(JR) 徒歩29分 愛知県春日井市東野町 | 詳細を見る | |
アパート サプリーム大田川(1LDK/4階) | |||||||
![]() | 7.5万円 7,000円 | 15万円 なし | 1LDK 46.01m2 | 築19年 | 名鉄常滑線 太田川駅 徒歩5分 名鉄常滑線 新日鉄前駅 徒歩18分 名鉄河和線 高横須賀駅 徒歩21分 愛知県東海市大田町下浜田 | 詳細を見る | |
アパート JACK SHOHO IV(1LDK/2階) | |||||||
![]() | 5.85万円 3,500円 | なし なし | 1LDK 31.98m2 | 築1年 | あおなみ線 港北駅 徒歩6分 あおなみ線 中島駅(愛知) 徒歩13分 あおなみ線 荒子川公園駅 徒歩15分 愛知県名古屋市港区正保町 | 詳細を見る | |
マンション コンフォール和合(2LDK/2階) | |||||||
![]() | 6.5万円 3,000円 | なし なし | 2LDK 56.22m2 | 築20年 | 愛知県愛知郡東郷町大字和合前田 | 詳細を見る | |
アパート エターナル(1LDK/2階) | |||||||
![]() | 5.9万円 3,300円 | なし なし | 1LDK 51.13m2 | 築21年 | 東海道本線 清洲駅 徒歩25分 愛知県清須市春日 | 詳細を見る | |
アパート プリムローズⅡ(1LDK/2階) | |||||||
![]() | 6.4万円 3,500円 | なし 8万円 | 1LDK 42.37m2 | 築15年 | 名古屋市名港線 東海通駅 徒歩6分 愛知県名古屋市港区九番町4丁目 | 詳細を見る | |




/105x80-f1-q70-wp1)



/105x80-f1-q70-wp1)
