賃貸マンション
パレス93の賃貸物件情報(3LDK/4階)
| 家賃 | 管理費等 | 敷金 | 礼金 | 間取り | 専有面積 |
|---|---|---|---|---|---|
| 7.1万円 | 3,000円 | なし | 15万円 | 3LDK | 71m2 |
入居決定でお祝い金最大100,000円
- 保証金
- -
- 償却・敷引
- -
- 築年数
- 築33年
- 所在階
- 4階
- 向き
- 南
Point
24時間営業のスーパーをはじめ、コンビニや各種飲食店が徒歩圏内の魅力的な生活環境です。リビングをはじめ、各お部屋ともにゆったりとしたサイズ感です。当店では初期費用の分割払いが可能で御座います。
提供:(株)山本不動産(SUUMO経由)

詳細情報 パレス93
物件紹介
パレス93は西鉄天神大牟田線高宮駅から徒歩37分にあるマンションです。
このお部屋は2階以上に位置しているので、通行人や周囲の住人からの視線が気になりにくく、防犯面でも安心です。
人気の南向きのお部屋。また、フローリングなのでお掃除もラクラク。バス・トイレ別の仕様で、のんびりお風呂タイムも楽しめます。
通信設備面では、インターネット接続が可能です。また、BSアンテナ・CSアンテナがありCATVにも対応しているので、おうち時間も充実するでしょう(別途工事、契約料が必要な場合あり)。
このお部屋は2階以上に位置しているので、通行人や周囲の住人からの視線が気になりにくく、防犯面でも安心です。
人気の南向きのお部屋。また、フローリングなのでお掃除もラクラク。バス・トイレ別の仕様で、のんびりお風呂タイムも楽しめます。
通信設備面では、インターネット接続が可能です。また、BSアンテナ・CSアンテナがありCATVにも対応しているので、おうち時間も充実するでしょう(別途工事、契約料が必要な場合あり)。
お金・契約の情報
※「-」と表示されているものは、実際は料金が発生するものもございます。詳細はお問い合わせください。
| 家賃 | 7.1万円 | 管理費・共益費 | 3,000円 |
|---|---|---|---|
| 敷金 | なし | 礼金 | 15万円 |
| 入居決定でお祝い金最大100,000円 | |||
| 保証金 | - | 償却・敷引 | - |
| 住宅保険料 | - | 更新料 | - |
| 契約形態 | - | 契約期間 | - |
| 入居・引渡期間 | 即時 | 現況 | - |
| 契約備考 | 巡回管理 町会費300円 3LDK 二人入居可 普通借家2年 損保【要】 バストイレ別、バルコニー、ガスコンロ対応、フローリング、シャワー付洗面台、室内洗濯置、陽当り良好、南向き、洗面所独立、2口コンロ、駐輪場、CATV、光ファイバー、外壁タイル張り、即入居可、閑静な住宅地、最上階、BS・CS、敷金不要、出窓、二人入居相談、24時間換気システム、3駅以上利用可、24時間ゴミ出し可、LDK12畳以上、都市ガス | ||
部屋の情報
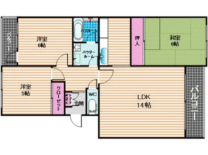
| 間取り | 3LDK | 専有面積 | 71m2 |
|---|---|---|---|
| 所在階 / 向き | 4階 / 南 | バルコニー面積 | - |
| 水道 / ガス | - | ||
| 設備 | バス・トイレ別、2階以上、インターネット対応、南向き、バルコニー、フローリング、洗髪洗面化粧台、2口コンロ、コンロ:ガス、CATV、CSアンテナ、BSアンテナ、洗濯機:室内 | ||
| 当社物件ID | 7848960 | ||
建物の情報
| 建物名 | パレス93 | ||
|---|---|---|---|
| 所在地 | 福岡県福岡市南区長丘 | ||
| 交通 | 西鉄天神大牟田線 高宮駅(福岡) 徒歩37分 西鉄天神大牟田線 西鉄平尾駅 徒歩38分 西鉄天神大牟田線 大橋駅(福岡) 徒歩50分 | ||
| 階数 | 4階建 | 総戸数 | - |
| 築年月 | 1994年01月 / 築33年 | エレベーター | - |
| 駐車場 | 空有 5500円 | バイク置き場 | - |
| 駐輪場 | あり | 管理人/管理会社 | - |
| 周辺環境 | その他 長丘小学校(小学校)まで500m その他 長丘中学校(中学校)まで307m その他 セブンイレブン(コンビニ)まで414m その他 サニー(スーパー)まで361m その他 長尾病院(病院)まで1300m | ||
| 建物種別 | マンション | 建物構造 | RC(鉄筋コンクリート) |
この部屋の取扱い不動産会社
| 会社名 | (株)山本不動産(SUUMO経由) | ||
|---|---|---|---|
| 所在地 | 福岡県福岡市南区大橋3-2-1 | 交通 | - |
| 営業時間 | 10:00~20:00 | 定休日 | 不定休 |
| 免許番号 | 福岡県知事18544 | 取引態様 | 仲介 |
| 不動産会社管理番号 | 100485066893 | 当社管理番号 | 89 |
| 所属団体 | (公社)全日本不動産協会福岡県本部会員 | ||
| 公正取引協議会 | (一社)九州不動産公正取引協議会加盟 | ||
| 取扱い物件情報 | 物件詳細へ | ||
※各種情報と現状に差異がある場合は、現状優先となります。問い合わせをすることで、より詳しい条件、情報を確認する事ができます。
提供:(株)山本不動産(SUUMO経由)
この物件が気になったら掲載期限まであと10日
パレス93に条件(家賃・エリア)が近い物件一覧
| 写真 | 家賃 管理費等 | 敷金 礼金 | 間取り 専有面積 | 築年数 | 最寄り駅 所在地 | キープ | 詳細 |
|---|---|---|---|---|---|---|---|
アパート レオパレスORCHIDⅠ(1K/2階) | |||||||
![]() | 6.3万円 5,000円 | なし 6.3万円 | 1K 20.28m2 | 築19年 | 鹿児島本線 笹原駅 徒歩14分 西鉄天神大牟田線 大橋駅(福岡) 徒歩25分 福岡県福岡市南区井尻2丁目 | 詳細を見る | |
マンション パワーズマンション南福岡(1K/2階) | |||||||
![]() | 4.6万円 4,000円 | なし 4.6万円 | 1K 28.3m2 | 築36年 | 鹿児島本線 笹原駅 徒歩3分 西鉄天神大牟田線 井尻駅 徒歩6分 西鉄天神大牟田線 雑餉隈駅 徒歩24分 福岡県福岡市南区井尻3丁目 | 詳細を見る | |
マンション シャーメゾン高宮ペルーレ(1K/2階) | |||||||
![]() | 7.8万円 4,000円 | なし 23.4万円 | 1K 31.36m2 | 築1年 | 西鉄天神大牟田線 高宮駅(福岡) 徒歩3分 西鉄天神大牟田線 西鉄平尾駅 徒歩19分 西鉄天神大牟田線 大橋駅(福岡) 徒歩21分 福岡県福岡市南区玉川町 | 詳細を見る | |
アパート 喜峰ハイツⅡ(2DK/1階) | |||||||
![]() | 5.2万円 2,000円 | なし 5.2万円 | 2DK 43.52m2 | 築38年 | 西鉄天神大牟田線 井尻駅 徒歩5分 鹿児島本線 笹原駅 徒歩11分 西鉄天神大牟田線 大橋駅(福岡) 徒歩24分 福岡県福岡市南区井尻1丁目 | 詳細を見る | |
マンション 博多南線 博多南駅 徒歩4分 築23年(1LDK/6階) | |||||||
![]() | 5万円 4,500円 | なし なし | 1LDK 26.97m2 | 築23年 | 博多南線 博多南駅 徒歩4分 鹿児島本線 南福岡駅 徒歩45分 鹿児島本線 春日駅(福岡) 徒歩45分 福岡県春日市 | 詳細を見る | |
アパート エクセルクローバーC棟(3LDK/2階) | |||||||
![]() | 5.3万円 4,000円 | なし 6万円 | 3LDK 62.92m2 | 築36年 | 西鉄天神大牟田線 下大利駅 徒歩31分 福岡県春日市平田台4丁目 | 詳細を見る | |
アパート HINATA(1LDK/2階) | |||||||
![]() | 7.5万円 5,000円 | なし 6.3万円 | 1LDK 40.95m2 | 築8年 | 西鉄天神大牟田線 高宮駅(福岡) 徒歩33分 西鉄天神大牟田線 大橋駅(福岡) 徒歩37分 JR鹿児島本線 竹下駅 徒歩46分 福岡県福岡市南区中尾 | 詳細を見る | |
マンション LIFEFIELD曰佐(1SLDK/2階) | |||||||
![]() | 8万円 4,000円 | なし なし | 1SLDK 40.42m2 | 築1年 | 西鉄天神大牟田線 井尻駅 徒歩20分 鹿児島本線 笹原駅 徒歩25分 西鉄天神大牟田線 大橋駅(福岡) 徒歩33分 福岡県福岡市南区曰佐1丁目 | 詳細を見る | |









