賃貸マンション
グランパークハイツの賃貸物件情報(2LDK/24階)
| 家賃 | 管理費等 | 敷金 | 礼金 | 間取り | 専有面積 |
|---|---|---|---|---|---|
| 42.5万円 | 2.3万円 | 85万円 | 42.5万円 | 2LDK | 78.53m2 |
入居決定でお祝い金最大100,000円
Point
駅前のムスブ田町商業施設あり(スーパーライフ・マツモトキヨシ・飲食店)徒歩3分
提供:ミトミ(株)(SUUMO経由)

詳細情報 グランパークハイツ
物件紹介
グランパークハイツはJR山手線田町駅から徒歩4分にあり、駅近で通勤通学に便利なマンションです。
このお部屋は2階以上に位置しているので、通行人や周囲の住人からの視線が気になりにくく、防犯面でも安心。建物のエントランスはオートロックがついており、インターホンにはTVモニタもついているため、相手の顔を確認してから来客対応することができます。
人気の角部屋で周囲の居住者の生活音も気になりにくく、また、フローリングのお部屋なのでお掃除もラクラク。キッチンはシステムキッチン仕様になっていますので、お料理好きの方にもぴったり。バス・トイレは別なので、のんびりお風呂タイムも楽しめるでしょう。また、雨の日でも浴室乾燥機を使えば、お洗濯も問題ありません。
通信設備面では、インターネット接続が可能です。また、BSアンテナがありCATVにも対応しているので、おうち時間も充実するでしょう(別途工事、契約料が必要な場合あり)。
建物にはエレベーターがついているので、重い荷物があっても安心。共用部には宅配ボックスが設定されているので、不在の時にも荷物を受け取ることができます。
このお部屋は2階以上に位置しているので、通行人や周囲の住人からの視線が気になりにくく、防犯面でも安心。建物のエントランスはオートロックがついており、インターホンにはTVモニタもついているため、相手の顔を確認してから来客対応することができます。
人気の角部屋で周囲の居住者の生活音も気になりにくく、また、フローリングのお部屋なのでお掃除もラクラク。キッチンはシステムキッチン仕様になっていますので、お料理好きの方にもぴったり。バス・トイレは別なので、のんびりお風呂タイムも楽しめるでしょう。また、雨の日でも浴室乾燥機を使えば、お洗濯も問題ありません。
通信設備面では、インターネット接続が可能です。また、BSアンテナがありCATVにも対応しているので、おうち時間も充実するでしょう(別途工事、契約料が必要な場合あり)。
建物にはエレベーターがついているので、重い荷物があっても安心。共用部には宅配ボックスが設定されているので、不在の時にも荷物を受け取ることができます。
お金・契約の情報
※「-」と表示されているものは、実際は料金が発生するものもございます。詳細はお問い合わせください。
| 家賃 | 42.5万円 | 管理費・共益費 | 2.3万円 |
|---|---|---|---|
| 敷金 | 85万円 | 礼金 | 42.5万円 |
| 入居決定でお祝い金最大100,000円 | |||
| 保証金 | - | 償却・敷引 | - |
| 住宅保険料 | - | 更新料 | - |
| 保証会社利用 | 必須 | 保証会社名 | - |
| 保証会社費用 | - | 保証会社備考 | 保証会社利用必 契約時の賃料等の50%継続保証料2年目以降1年毎に13000円 |
| 契約形態 | - | 契約期間 | - |
| 入居・引渡期間 | - | 現況 | - |
| 契約備考 | 常駐管理/1年未満で解約の場合、違約金1ヶ月あり、解約予告は2ヶ月、ペット不可、楽器不可、事務所使用不可 2LDK 損保【2.6万円2年】 バストイレ別、オートロック、室内洗濯置、システムキッチン、追焚機能浴室、温水洗浄便座、脱衣所、洗面所独立、駐輪場、宅配ボックス、CATV、光ファイバー、礼金不要、24時間有人管理、バイク置場、LDK15畳以上、エレベーター2基、3沿線以上利用可、バス2路線、100円バス路線、駅徒歩5分以内、タワー型マンション、車寄せ、24時間ゴミ出し可、ビルトインエアコン 入居日:'26年3月下旬 | ||
部屋の情報
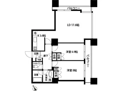
| 間取り | 2LDK | 専有面積 | 78.53m2 |
|---|---|---|---|
| 所在階 / 向き | 24階 / 西 | バルコニー面積 | - |
| 水道 / ガス | - | ||
| 設備 | バス・トイレ別、2階以上、オートロック、宅配ボックス、追い焚き、インターネット対応、システムキッチン、エアコン、エレベーター、温水洗浄便座、洗髪洗面化粧台、タワーマンション、CATV、洗濯機:室内 | ||
| 当社物件ID | 160247209 | ||
建物の情報
| 建物名 | グランパークハイツ | ||
|---|---|---|---|
| 所在地 | 東京都港区芝浦 | ||
| 交通 | JR山手線 田町駅(東京) 徒歩4分 都営三田線 三田駅(東京) 徒歩6分 | ||
| 階数 | 地下4地上28階建 | 総戸数 | - |
| 築年月 | 1996年10月 / 築30年 | エレベーター | あり |
| 駐車場 | 空有 47300円/地下車庫 | バイク置き場 | あり |
| 駐輪場 | あり | 管理人/管理会社 | - |
| 周辺環境 | その他 ピーコックストアグランパーク田町店(スーパー)まで123m その他 ファミリーマート田町グランパーク店(コンビニ)まで95m その他 サンドラッグ田町店(ドラッグストア)まで124m その他 港芝浦郵便局(郵便局)まで74m その他 グランパーク(ショッピングセンター)まで119m | ||
| 建物種別 | マンション | 建物構造 | RC(鉄筋コンクリート) |
この部屋の取扱い不動産会社
| 会社名 | ミトミ(株)(SUUMO経由) | ||
|---|---|---|---|
| 所在地 | 東京都港区芝5-30-6 | 交通 | - |
| 営業時間 | 午前9:00~午後6:30 | 定休日 | 夏季休暇 |
| 免許番号 | 東京都知事70892 | 取引態様 | 仲介 |
| 不動産会社管理番号 | 100484087450 | 当社管理番号 | 89 |
| 所属団体 | (公社)全日本不動産協会東京都本部会員 | ||
| 公正取引協議会 | (公社)首都圏不動産公正取引協議会加盟 | ||
| 取扱い物件情報 | 物件詳細へ | ||
※各種情報と現状に差異がある場合は、現状優先となります。問い合わせをすることで、より詳しい条件、情報を確認する事ができます。
提供:ミトミ(株)(SUUMO経由)
この物件が気になったら掲載期限まであと11日
グランパークハイツに条件(家賃・エリア)が近い物件一覧
| 写真 | 家賃 管理費等 | 敷金 礼金 | 間取り 専有面積 | 築年数 | 最寄り駅 所在地 | キープ | 詳細 |
|---|---|---|---|---|---|---|---|
マンション ザ・パークハビオ日本橋茅場町(1LDK/8階) | |||||||
![]() | 29.4万円 2万円 | 29.4万円 なし | 1LDK 47.26m2 | 新築 | 東京メトロ日比谷線 茅場町駅 徒歩3分 東京メトロ日比谷線 八丁堀駅(東京) 徒歩8分 都営浅草線 日本橋駅(東京) 徒歩11分 東京都中央区日本橋茅場町 | 詳細を見る | |
マンション レジデンス渋谷富ヶ谷(1SLDK/7階) | |||||||
![]() | 28万円 1.5万円 | なし なし | 1SLDK 39.47m2 | 築20年 | 東京地下鉄千代田線 代々木公園駅 徒歩11分 小田急電鉄小田原線 代々木八幡駅 徒歩11分 東京都渋谷区富ヶ谷2丁目 | 詳細を見る | |
マンション TRACK八丁堀(2K/8階) | |||||||
![]() | 25.6万円 2万円 | なし なし | 2K 35.01m2 | 築1年 | 東京メトロ日比谷線 八丁堀駅(東京) 徒歩2分 東京メトロ日比谷線 茅場町駅 徒歩7分 東京メトロ有楽町線 新富町駅(東京) 徒歩12分 東京都中央区八丁堀 | 詳細を見る | |
マンション ルフォン築地 ザ・レジデンス(2LDK/5階) | |||||||
![]() | 32万円 2万円 | 64万円 32万円 | 2LDK 55.8m2 | 築8年 | 東京メトロ日比谷線 築地駅 徒歩6分 東京メトロ有楽町線 新富町駅(東京) 徒歩9分 都営浅草線 東銀座駅 徒歩10分 東京都中央区築地 | 詳細を見る | |
アパート デコール代官山 2F(1LDK/2階) | |||||||
![]() | 46.5万円 1.5万円 | 93万円 46.5万円 | 1LDK 61.83m2 | 築2年 | JR山手線 渋谷駅 徒歩11分 東急東横線 代官山駅 徒歩11分 京王井の頭線 神泉駅 徒歩13分 東京都渋谷区鉢山町 | 詳細を見る | |
マンション THE TOKYO TOWERS MIDTOWER(1LDK/9階) | |||||||
![]() | 25.8万円 1.5万円 | 51.6万円 なし | 1LDK 56.55m2 | 築19年 | 都営大江戸線 勝どき駅 徒歩6分 都営大江戸線 築地市場駅 徒歩18分 東京メトロ有楽町線 月島駅 徒歩19分 東京都中央区勝どき | 詳細を見る | |
マンション パークベアー四谷三丁目(3LDK/2階) | |||||||
![]() | 36万円 2万円 | 36万円 なし | 3LDK 73.72m2 | 築1年 | 東京メトロ丸ノ内線 四谷三丁目駅 徒歩3分 都営新宿線 曙橋駅 徒歩7分 JR総武線 四ツ谷駅 徒歩17分 東京都新宿区愛住町 | 詳細を見る | |
マンション スぺーシア麻布十番I(ワンルーム/5階) | |||||||
![]() | 28万円 1.8万円 | なし なし | ワンルーム 42.9m2 | 築23年 | 都営大江戸線 麻布十番駅 徒歩4分 東京メトロ日比谷線 六本木駅 徒歩11分 東京メトロ南北線 六本木一丁目駅 徒歩11分 東京都港区六本木 | 詳細を見る | |









