賃貸マンション
TO-BE-1 東照の丘の賃貸物件情報(4LDK/1階)
| 家賃 | 管理費等 | 敷金 | 礼金 | 間取り | 専有面積 |
|---|---|---|---|---|---|
| 16万円 | 6,000円 | 32万円 | 16万円 | 4LDK | 86.31m2 |
入居決定でお祝い金最大100,000円
- 保証金
- -
- 償却・敷引
- -
- 築年数
- 築21年
- 所在階
- 1階
- 向き
- 南東
Point
スタッフ一同、お客様のご来店をこころよりお待ちしております!
提供:(株)FIND(SUUMO経由)

詳細情報 TO-BE-1 東照の丘
物件紹介
TO-BE-1 東照の丘はJR仙山線東照宮駅から徒歩6分にあり、駅近で通勤通学に便利なマンションです。
建物のエントランスはオートロックがついており、インターホンにはTVモニタもついているため、相手の顔を確認してから来客対応することができます。
人気の南向き・フローリングのお部屋。角部屋でもあるため、周囲の居住者の生活音も気になりにくい場所です。室内にはウォークインクローゼットがありますので、たくさんの荷物も効率的に収納ができます。キッチンはシステムキッチン仕様になっていますので、お料理好きの方にもぴったり。バス・トイレは別なので、のんびりお風呂タイムも楽しめるでしょう。また、雨の日でも浴室乾燥機を使えば、お洗濯も問題ありません。
通信設備面ではBSアンテナ・CSアンテナがありますので、おうち時間も充実するでしょう(別途工事、契約料が必要な場合あり)。
建物にはエレベーターがついているので、重い荷物があっても安心。共用部には宅配ボックスが設定されているので、不在の時にも荷物を受け取ることができます。
建物のエントランスはオートロックがついており、インターホンにはTVモニタもついているため、相手の顔を確認してから来客対応することができます。
人気の南向き・フローリングのお部屋。角部屋でもあるため、周囲の居住者の生活音も気になりにくい場所です。室内にはウォークインクローゼットがありますので、たくさんの荷物も効率的に収納ができます。キッチンはシステムキッチン仕様になっていますので、お料理好きの方にもぴったり。バス・トイレは別なので、のんびりお風呂タイムも楽しめるでしょう。また、雨の日でも浴室乾燥機を使えば、お洗濯も問題ありません。
通信設備面ではBSアンテナ・CSアンテナがありますので、おうち時間も充実するでしょう(別途工事、契約料が必要な場合あり)。
建物にはエレベーターがついているので、重い荷物があっても安心。共用部には宅配ボックスが設定されているので、不在の時にも荷物を受け取ることができます。
お金・契約の情報
※「-」と表示されているものは、実際は料金が発生するものもございます。詳細はお問い合わせください。
| 家賃 | 16万円 | 管理費・共益費 | 6,000円 |
|---|---|---|---|
| 敷金 | 32万円 | 礼金 | 16万円 |
| 入居決定でお祝い金最大100,000円 | |||
| 保証金 | - | 償却・敷引 | - |
| 住宅保険料 | - | 更新料 | - |
| 契約形態 | - | 契約期間 | - |
| 入居・引渡期間 | 即時 | 現況 | - |
| 契約備考 | ・駐輪ステッカー申請必要/1区画年間300円・火災保険:地震無12,000円/地震有15,000円・マンション内禁煙・分譲賃貸となります。・契約期間5年間の定期借家契約。・更新不可/再契約不可/期間満了に伴い契約は終了となります。・1階専用庭の維持管理は借主負担・退去時、原状回復費用とは別にハウスクリーニング費用、エアコン清掃費用が発生いたします。・駐車場は管理組合と直接契約です。 合計3.3万円(内訳:鍵交換代3.3万円) 駐輪場300円 4LDK 損保【1.5万円2年】 バストイレ別、バルコニー、エアコン、クロゼット、フローリング、シャワー付洗面台、TVインターホン、浴室乾燥機、オートロック、室内洗濯置、シューズボックス、システムキッチン、温水洗浄便座、エレベーター、洗面所独立、駐輪場、宅配ボックス、外壁タイル張り、BS・CS、3口以上コンロ、対面式キッチン、防犯カメラ、IHクッキングヒーター、出窓、分譲賃貸、オール電化、専用庭、エアコン2台、敷金2ヶ月、保証金不要、BS、礼金1ヶ月、IT重説対応物件 | ||
部屋の情報
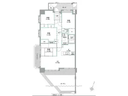
| 間取り | 4LDK | 専有面積 | 86.31m2 |
|---|---|---|---|
| 所在階 / 向き | 1階 / 南東 | バルコニー面積 | - |
| 水道 / ガス | - | ||
| 設備 | バス・トイレ別、オートロック、テレビドアホン、宅配ボックス、浴室乾燥機、システムキッチン、エアコン、エレベーター、温水洗浄便座、南向き、バルコニー、フローリング、洗髪洗面化粧台、オール電化、2口コンロ、コンロ:IH、CSアンテナ、BSアンテナ、専用庭、洗濯機:室内 | ||
| 当社物件ID | 159339154 | ||
建物の情報
| 建物名 | TO-BE-1 東照の丘 | ||
|---|---|---|---|
| 所在地 | 宮城県仙台市青葉区東照宮 | ||
| 交通 | JR仙山線 東照宮駅 徒歩6分 仙台市地下鉄南北線 台原駅 徒歩21分 JR仙山線 北仙台駅 徒歩26分 | ||
| 階数 | 地下1地上10階建 | 総戸数 | 68戸 |
| 築年月 | 2005年12月 / 築21年 | エレベーター | あり |
| 駐車場 | 空有 4000円 | バイク置き場 | - |
| 駐輪場 | あり | 管理人/管理会社 | - |
| 周辺環境 | その他 ローソン 仙台高松店(コンビニ)まで452m その他 ミニストップ 仙台高松2丁目店(コンビニ)まで493m その他 東照宮(その他)まで504m その他 ジョイフル 仙台東照宮店(飲食店)まで611m その他 COOP MIYAGI(みやぎ生協) 台原店(スーパー)まで980m | ||
| 建物種別 | マンション | 建物構造 | SRC(鉄骨鉄筋コンクリート) |
この部屋の取扱い不動産会社
| 会社名 | いい部屋ネット大東建託リーシング(株)中野栄店(SUUMO経由) | ||
|---|---|---|---|
| 所在地 | 宮城県仙台市宮城野区中野字柳原 13-1 | 交通 | - |
| 営業時間 | 10:00~18:00※12:30~13:30昼休 | 定休日 | 火曜日・水曜日・11日(木) |
| 免許番号 | 国土交通大臣9120 | 取引態様 | 仲介 |
| 不動産会社管理番号 | 100457247028 | 当社管理番号 | 89 |
| 所属団体 | (公財)日本賃貸住宅管理協会会員 | ||
| 公正取引協議会 | (公社)首都圏不動産公正取引協議会加盟 | ||
| 取扱い物件情報 | 物件詳細へ | ||
※各種情報と現状に差異がある場合は、現状優先となります。問い合わせをすることで、より詳しい条件、情報を確認する事ができます。
提供:いい部屋ネット大東建託リーシング(株)中野栄店(SUUMO経由)
この物件が気になったら掲載期限まであと10日
TO-BE-1 東照の丘に条件(家賃・エリア)が近い物件一覧
| 写真 | 家賃 管理費等 | 敷金 礼金 | 間取り 専有面積 | 築年数 | 最寄り駅 所在地 | キープ | 詳細 |
|---|---|---|---|---|---|---|---|
マンション デュオヒルズ仙台広瀬川(2LDK/5階) | |||||||
![]() | 13万円 1万円 | 26万円 13万円 | 2LDK 70.65m2 | 築12年 | 仙台市地下鉄東西線 大町西公園駅 徒歩13分 仙台市地下鉄南北線 五橋駅 徒歩16分 宮城県仙台市青葉区霊屋下 | 詳細を見る | |
マンション デュオフラッツ仙台木町通リネア(1DK/11階) | |||||||
![]() | 10.3万円 5,000円 | 10.3万円 なし | 1DK 31.39m2 | 築1年 | 仙台市地下鉄南北線 北四番丁駅 徒歩9分 仙台市地下鉄南北線 勾当台公園駅 徒歩15分 仙台市地下鉄東西線 国際センター駅(宮城) 徒歩23分 宮城県仙台市青葉区木町通 | 詳細を見る | |
マンション ロータス上杉(2LDK/1階) | |||||||
![]() | 12.5万円 4,000円 | 12.5万円 12.5万円 | 2LDK 59m2 | 築3年 | JR仙山線 東照宮駅 徒歩14分 仙台市地下鉄南北線 北四番丁駅 徒歩15分 仙台市地下鉄南北線 勾当台公園駅 徒歩16分 宮城県仙台市青葉区上杉 | 詳細を見る | |
マンション ロイヤルパークス仙台青葉通(2LDK/4階) | |||||||
![]() | 19.6万円 1.2万円 | 19.6万円 19.6万円 | 2LDK 68.1m2 | 新築 | 仙台市地下鉄東西線 大町西公園駅 徒歩3分 宮城県仙台市青葉区大町2丁目 | 詳細を見る | |
マンション NICEアーバンステイツ柏木(2SLDK/6階) | |||||||
![]() | 12万円 なし | 24万円 なし | 2SLDK 68.96m2 | 築29年 | 仙台市地下鉄南北線 北四番丁駅 徒歩19分 JR仙山線 東北福祉大前駅 徒歩21分 JR仙山線 北山駅(宮城) 徒歩25分 宮城県仙台市青葉区柏木 | 詳細を見る | |
マンション ダイアパレス花京院(3LDK/8階) | |||||||
![]() | 12.7万円 なし | 12.7万円 12.7万円 | 3LDK 72.71m2 | 築27年 | 仙台市地下鉄南北線 仙台駅 徒歩12分 仙台市地下鉄南北線 広瀬通駅 徒歩14分 仙台市地下鉄南北線 勾当台公園駅 徒歩14分 宮城県仙台市青葉区花京院 | 詳細を見る | |
マンション シーズンフラッツ青葉通一番町(1LDK/7階) | |||||||
![]() | 15.2万円 6,000円 | 15.2万円 なし | 1LDK 40.73m2 | 築2年 | 仙台市地下鉄東西線 青葉通一番町駅 徒歩6分 JR仙石線 あおば通駅 徒歩10分 仙台市地下鉄南北線 広瀬通駅 徒歩14分 宮城県仙台市青葉区一番町 | 詳細を見る | |
マンション ガーネットヒルズ上杉(2DK/6階) | |||||||
![]() | 11万円 1万円 | なし なし | 2DK 51.8m2 | 築19年 | 仙台市地下鉄南北線 勾当台公園駅 徒歩8分 宮城県仙台市青葉区上杉3丁目 | 詳細を見る | |








/105x80-f1-q70-wp1)