賃貸アパート
プラザ中野富士見町の賃貸物件情報(1K/2階)
| 家賃 | 管理費等 | 敷金 | 礼金 | 間取り | 専有面積 |
|---|---|---|---|---|---|
| 5.3万円 | 2,000円 | 5.3万円 | 5.3万円 | 1K | 15.48m2 |
入居決定でお祝い金最大100,000円
- 保証金
- -
- 償却・敷引
- 5.3万円
- 築年数
- 築36年
- 所在階
- 2階
- 向き
- 南
Point
まずはお問い合わせ!
不動産会社は街のプロ、あなたに合った物件がきっと見つかります。
提供:(有)住宅ニュース社(SUUMO経由)

詳細情報 プラザ中野富士見町
物件紹介
プラザ中野富士見町は東京メトロ丸ノ内線中野富士見町駅から徒歩13分にあるアパートです。
このお部屋は2階以上に位置しているので、通行人や周囲の住人からの視線が気になりにくく、防犯面でも安心です。
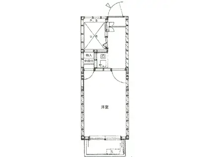
人気の南向き・フローリングのお部屋。室内には多目的に利用できるロフトもあり、お部屋のアレンジも自在です。キッチンはシステムキッチン仕様になっていますので、お料理好きの方にもぴったり。
通信設備面では、インターネットが無料で使えるので、月々の出費を抑えられるのも魅力です。また、CATVにも対応しているので、おうち時間も充実するでしょう(別途工事、CATVの契約料等が必要な場合あり)。
このお部屋は2階以上に位置しているので、通行人や周囲の住人からの視線が気になりにくく、防犯面でも安心です。
人気の南向き・フローリングのお部屋。室内には多目的に利用できるロフトもあり、お部屋のアレンジも自在です。キッチンはシステムキッチン仕様になっていますので、お料理好きの方にもぴったり。
通信設備面では、インターネットが無料で使えるので、月々の出費を抑えられるのも魅力です。また、CATVにも対応しているので、おうち時間も充実するでしょう(別途工事、CATVの契約料等が必要な場合あり)。
お金・契約の情報
※「-」と表示されているものは、実際は料金が発生するものもございます。詳細はお問い合わせください。
| 家賃 | 5.3万円 | 管理費・共益費 | 2,000円 |
|---|---|---|---|
| 敷金 | 5.3万円 | 礼金 | 5.3万円 |
| 入居決定でお祝い金最大100,000円 | |||
| 保証金 | - | 償却・敷引 | 5.3万円 |
| 住宅保険料 | - | 更新料 | - |
| 保証会社利用 | 必須 | 保証会社名 | - |
| 保証会社費用 | - | 保証会社備考 | 保証会社利用必 CIZ宅建保証、契約時14300円、更新1年ごとに6000円 |
| 契約形態 | - | 契約期間 | - |
| 入居・引渡期間 | 即時 | 現況 | - |
| 契約備考 | 巡回管理/リフォーム:2025年12月浴室・キッチン・フローリング・壁紙・エアコン・照明/セコムホームセキュリティ有 1K 普通借家2年 損保【1.5万円2年】 エアコン、フローリング、システムキッチン、南向き、CATV、即入居可、最上階、電気コンロ、ロフト、CATVインターネット、全居室フローリング、ネット使用料不要、内装リフォーム済、敷地内ごみ置き場、セキュリティ会社加入済、都市ガス | ||
部屋の情報
| 間取り | 1K | 専有面積 | 15.48m2 |
|---|---|---|---|
| 所在階 / 向き | 2階 / 南 | バルコニー面積 | - |
| 水道 / ガス | - | ||
| 設備 | 2階以上、インターネット対応、システムキッチン、エアコン、南向き、フローリング、ロフトあり、CATV、インターネット使用料無料 | ||
| 当社物件ID | 159894197 | ||
建物の情報
| 建物名 | プラザ中野富士見町 | ||
|---|---|---|---|
| 所在地 | 東京都中野区南台 | ||
| 交通 | 東京メトロ丸ノ内線 中野富士見町駅 徒歩13分 JR中央線 新宿駅 バス乗車時間:17分 最寄りバス停で下車 徒歩2分 | ||
| 階数 | 2階建 | 総戸数 | - |
| 築年月 | 1990年06月 / 築36年 | エレベーター | - |
| 駐車場 | なし | バイク置き場 | - |
| 駐輪場 | - | 管理人/管理会社 | - |
| 周辺環境 | その他 ライフ南台店(スーパー)まで197m | ||
| 建物種別 | アパート | 建物構造 | 軽量鉄骨造 |
この部屋の取扱い不動産会社
| 会社名 | (有)住宅ニュース社(SUUMO経由) | ||
|---|---|---|---|
| 所在地 | 東京都杉並区高円寺南1-30-6 | 交通 | - |
| 営業時間 | 月~土10時-18時、日祝11時-18時 | 定休日 | 水曜日 |
| 免許番号 | 東京都知事32673 | 取引態様 | 仲介 |
| 不動産会社管理番号 | 100473421219 | 当社管理番号 | 89 |
| 所属団体 | (公社)東京都宅地建物取引業協会会員 | ||
| 公正取引協議会 | (公社)首都圏不動産公正取引協議会加盟 | ||
| 取扱い物件情報 | 物件詳細へ | ||
※各種情報と現状に差異がある場合は、現状優先となります。問い合わせをすることで、より詳しい条件、情報を確認する事ができます。
提供:(有)住宅ニュース社(SUUMO経由)
この物件が気になったら掲載期限まであと10日
プラザ中野富士見町に条件(家賃・エリア)が近い物件一覧
| 写真 | 家賃 管理費等 | 敷金 礼金 | 間取り 専有面積 | 築年数 | 最寄り駅 所在地 | キープ | 詳細 |
|---|---|---|---|---|---|---|---|
マンション マンション武蔵ヶ丘(2DK/1階) | |||||||
![]() | 8万円 5,000円 | 8万円 8万円 | 2DK 40m2 | 築52年 | 西武新宿線 鷺ノ宮駅 徒歩13分 西武池袋線 富士見台駅 徒歩14分 西武新宿線 下井草駅 徒歩15分 東京都中野区上鷺宮 | 詳細を見る | |
アパート ロワジール貫井D(1K/2階) | |||||||
![]() | 6.7万円 2,000円 | 6.7万円 なし | 1K 30.4m2 | 築29年 | 西武池袋線 中村橋駅 徒歩3分 西武池袋線 富士見台駅 徒歩14分 西武豊島線 豊島園駅 徒歩19分 東京都練馬区貫井 | 詳細を見る | |
アパート シャンテ大塚(ワンルーム/1階) | |||||||
![]() | 6.3万円 3,000円 | 6.3万円 なし | ワンルーム 13.02m2 | 築7年 | 東京メトロ丸ノ内線 新大塚駅 徒歩2分 JR山手線 大塚駅(東京) 徒歩6分 都電荒川線 大塚駅前駅 徒歩6分 東京都豊島区南大塚 | 詳細を見る | |
マンション BERG(1K/2階) | |||||||
![]() | 8.2万円 3,000円 | 8.2万円 8.2万円 | 1K 27.37m2 | 築17年 | 東武東上線 下板橋駅 徒歩1分 東武東上線 北池袋駅 徒歩4分 JR埼京線 板橋駅 徒歩7分 東京都豊島区池袋本町 | 詳細を見る | |
アパート ハイム工藤(2K/1階) | |||||||
![]() | 7万円 3,000円 | 7万円 7万円 | 2K 29m2 | 築39年 | 京王井の頭線 永福町駅 徒歩5分 京王線 下高井戸駅 徒歩18分 京王線 明大前駅 徒歩19分 東京都杉並区和泉 | 詳細を見る | |
マンション クレセールオギクボ(1K/3階) | |||||||
![]() | 8.2万円 2,000円 | 8.2万円 8.2万円 | 1K 20.6m2 | 築27年 | JR中央線 荻窪駅 徒歩4分 東京メトロ丸ノ内線 荻窪駅 徒歩4分 JR中央線 阿佐ケ谷駅 徒歩18分 東京都杉並区天沼 | 詳細を見る | |
アパート メゾン関町南(1K/2階) | |||||||
![]() | 6.3万円 3,000円 | 6.3万円 なし | 1K 18.83m2 | 築11年 | 西武新宿線 東伏見駅 徒歩14分 JR中央線 三鷹駅 徒歩28分 JR中央線 吉祥寺駅 徒歩44分 東京都練馬区関町南 | 詳細を見る | |
マンション ジュリアス哲学堂(ワンルーム/2階) | |||||||
![]() | 8.2万円 8,000円 | なし なし | ワンルーム 15.13m2 | 築3年 | 西武新宿線 新井薬師前駅 徒歩6分 西武新宿線 沼袋駅 徒歩8分 都営大江戸線 落合南長崎駅 徒歩19分 東京都中野区松が丘 | 詳細を見る | |









