賃貸一戸建て
京王電鉄井の頭線 浜田山駅 徒歩6分 2階建 築25年の賃貸物件情報(3LDK)
| 家賃 | 管理費等 | 敷金 | 礼金 | 間取り | 専有面積 |
|---|---|---|---|---|---|
| 19万円 | なし | 38万円 | なし | 3LDK | 91.8m2 |
入居決定でお祝い金最大100,000円
Point
モニターで来訪者を確認し、インターホンを通じて室内から会話することができます。
提供:ハウスコム東東京株式会社 荻窪店

詳細情報 京王電鉄井の頭線 浜田山駅 徒歩6分 2階建 築25年
物件紹介
京王電鉄井の頭線浜田山駅から徒歩6分にあり、駅近で通勤通学に便利な一戸建てです。
このお部屋のインターホンにはTVモニタがついているため、相手の顔を確認してから来客対応することができます。
フローリングのお部屋なのでお掃除もラクラク。キッチンはシステムキッチン仕様になっていますので、お料理好きの方にもぴったり。バス・トイレは別なので、のんびりお風呂タイムも楽しめるでしょう。また、雨の日でも浴室乾燥機を使えば、お洗濯も問題ありません。
このお部屋のインターホンにはTVモニタがついているため、相手の顔を確認してから来客対応することができます。
フローリングのお部屋なのでお掃除もラクラク。キッチンはシステムキッチン仕様になっていますので、お料理好きの方にもぴったり。バス・トイレは別なので、のんびりお風呂タイムも楽しめるでしょう。また、雨の日でも浴室乾燥機を使えば、お洗濯も問題ありません。
お金・契約の情報
※「-」と表示されているものは、実際は料金が発生するものもございます。詳細はお問い合わせください。
| 家賃 | 19万円 | 管理費・共益費 | なし |
|---|---|---|---|
| 敷金 | 38万円 | 礼金 | なし |
| 入居決定でお祝い金最大100,000円 | |||
| 保証金 | - | 償却・敷引 | - |
| 住宅保険料 | 1円 | 更新料 | - |
| その他費用 | 駐車場登録料 1台(利用時のみ):1.1万円、19800円: | ||
| 保証会社利用 | 必須 | 保証会社名 | - |
| 保証会社費用 | - | 保証会社備考 | 保証会社 要:初回 賃料総額100%+月額 賃料総額2%(最低1,000円) |
| 契約形態 | - | 契約期間 | 2年 |
| 入居・引渡期間 | 相談 | 現況 | - |
| 入居可能条件 | 事務所不可 | ||
| 契約備考 | 月額(リロサポ加入必須 1500円) その他設備/条件:室内洗濯機置き場、独立洗面台、ルームシェア不可、オートバス | ||
部屋の情報
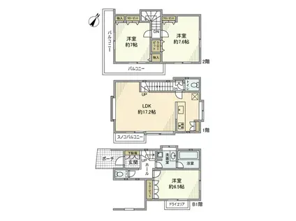
| 間取り | 3LDK | 専有面積 | 91.8m2 |
|---|---|---|---|
| 間取り詳細 | LDK(17.2帖)、洋室(6.5帖)、洋室(7帖)、洋室(7.6帖) | ||
| 所在階 / 向き | 1階 / 南東 | バルコニー面積 | - |
| 水道 / ガス | 水道【公営】、ガス【都市】 | ||
| 設備 | バス・トイレ別、テレビドアホン、浴室乾燥機、追い焚き、システムキッチン、カウンターキッチン、温水洗浄便座、バルコニー、フローリング、3口コンロ、コンロ:ガス、シャワー、専用庭、給湯 | ||
| 当社物件ID | 101647130 | ||
建物の情報
| 建物名 | 京王電鉄井の頭線 浜田山駅 徒歩6分 2階建 築25年 | ||
|---|---|---|---|
| 所在地 | 東京都杉並区浜田山1丁目 | ||
| 交通 | 京王電鉄井の頭線 浜田山駅 徒歩6分 京王電鉄井の頭線 西永福駅 徒歩10分 | ||
| 階数 | 地下1地上2階建 | 総戸数 | - |
| 築年月 | 2001年03月 / 築25年 | エレベーター | - |
| 駐車場 | 空有 [全長]0/[全幅]0/[全高]0/[総重量]0 | バイク置き場 | - |
| 駐輪場 | - | 管理人/管理会社 | - |
| 周辺環境 | 販売店 徒歩26分(2029m) 小学校 杉並区立高井戸小学校 徒歩22分(1725m) その他 ドラッグストア その他 公園 その他 銀行 その他 * | ||
| 建物種別 | 一戸建て | 建物構造 | 木造 |
この部屋の取扱い不動産会社
| 会社名 | ハウスコム東東京株式会社 荻窪店 | ||
|---|---|---|---|
| 所在地 | 東京都杉並区28-12サカエビル8階 | 交通 | - |
| 営業時間 | 10:00~18:00 | 定休日 | 水曜定休 |
| 免許番号 | 東京都知事(1)第108283号 | 取引態様 | 仲介 |
| 不動産会社管理番号 | HC5-5323335-1-0065 | 当社管理番号 | 468 |
| 所属団体 | 、 | ||
| 取扱い物件情報 | 物件詳細へ | ||
※各種情報と現状に差異がある場合は、現状優先となります。問い合わせをすることで、より詳しい条件、情報を確認する事ができます。
提供:ハウスコム東東京株式会社 荻窪店
この物件が気になったら掲載期限まであと4日
京王電鉄井の頭線 浜田山駅 徒歩6分 2階建 築25年に条件(家賃・エリア)が近い物件一覧
| 写真 | 家賃 管理費等 | 敷金 礼金 | 間取り 専有面積 | 築年数 | 最寄り駅 所在地 | キープ | 詳細 |
|---|---|---|---|---|---|---|---|
アパート THE HALE(2LDK/2階) | |||||||
![]() | 19万円 1万円 | 19万円 38万円 | 2LDK 45.34m2 | 築3年 | JR中央線 吉祥寺駅 徒歩11分 JR中央線 三鷹駅 徒歩23分 西武新宿線 武蔵関駅 徒歩39分 東京都武蔵野市吉祥寺本町 | 詳細を見る | |
マンション SーRESIDENCE富士見ヶ丘AFFORD(3LDK/1階) | |||||||
![]() | 27.9万円 1.5万円 | なし なし | 3LDK 68.15m2 | 築1年 | 京王井の頭線 富士見ケ丘駅 徒歩13分 京王井の頭線 久我山駅 徒歩16分 JR総武線 西荻窪駅 徒歩21分 東京都杉並区宮前 | 詳細を見る | |
マンション ジェノヴィア桜上水II(1LDK/1階) | |||||||
![]() | 17.95万円 2万円 | なし なし | 1LDK 44.75m2 | 築2年 | 京王線 桜上水駅 徒歩8分 京王線 上北沢駅 徒歩9分 東急世田谷線 下高井戸駅 徒歩19分 東京都杉並区下高井戸 | 詳細を見る | |
マンション ARK・Jアークジェイ(2LDK/5階) | |||||||
![]() | 20万円 1万円 | 20万円 なし | 2LDK 55.71m2 | 築32年 | 京王線 八幡山駅 徒歩3分 京王線 芦花公園駅 徒歩9分 京王線 上北沢駅 徒歩10分 東京都杉並区上高井戸 | 詳細を見る | |
一戸建て 総武・中央緩行線 荻窪駅 徒歩15分 築5年(1SLDK) | |||||||
![]() | 23万円 なし | 46万円 23万円 | 1SLDK 81.57m2 | 築5年 | 総武・中央緩行線 荻窪駅 徒歩15分 東京都杉並区桃井1丁目 | 詳細を見る | |
マンション SOLASIA RESIDENCE世田谷代田(1SLDK/1階) | |||||||
![]() | 22.8万円 1.2万円 | 22.8万円 なし | 1SLDK 50.73m2 | 築1年 | 小田急線 梅ケ丘駅 徒歩5分 小田急線 世田谷代田駅 徒歩6分 東京都世田谷区代田 | 詳細を見る | |







