賃貸マンション
プレジオ難波EUROの賃貸物件情報(1LDK/11階)
| 家賃 | 管理費等 | 敷金 | 礼金 | 間取り | 専有面積 |
|---|---|---|---|---|---|
| 12.1万円 | 1万円 | なし | 12.1万円 | 1LDK | 33.75m2 |
入居決定でお祝い金最大100,000円
Point
セキュリティ面は、オートロック・TVインターホンなど充実しているので安心して生活できます。
提供:大阪ハウスコム株式会社 心斎橋店

詳細情報 プレジオ難波EURO
物件紹介
プレジオ難波EUROは大阪環状線芦原橋駅から徒歩8分にあり、駅近で通勤通学に便利なマンションです。
このお部屋は2階以上に位置しているので、通行人や周囲の住人からの視線が気になりにくく、防犯面でも安心。建物のエントランスはオートロックがついており、インターホンにはTVモニタもついているため、相手の顔を確認してから来客対応することができます。
おしゃれなデザイナーズ物件!人気の角部屋で周囲の居住者の生活音も気になりにくく、また、フローリングのお部屋なのでお掃除もラクラク。室内にはウォークインクローゼットがありますので、たくさんの荷物も効率的に収納ができます。キッチンはシステムキッチン仕様になっていますので、お料理好きの方にもぴったり。バス・トイレは別なので、のんびりお風呂タイムも楽しめるでしょう。また、雨の日でも浴室乾燥機を使えば、お洗濯も問題ありません。
通信設備面では、インターネットが無料で使えるので、月々の出費を抑えられるのも魅力です。また、BSアンテナ・CSアンテナがありCATVにも対応しているので、おうち時間も充実するでしょう(別途工事、BS・CS・CATVの契約料等が必要な場合あり)。
建物にはエレベーターがついているので、重い荷物があっても安心。共用部には宅配ボックスが設定されているので、不在の時にも荷物を受け取ることができます。また、ペット飼育の相談ができますので、あなたの大切な家族の一員も快適に暮らせるか、ぜひ確認してみてください。
コンビニまで徒歩4分の場所にあり、日用品や食料品のお買い物にも便利です。
このお部屋は2階以上に位置しているので、通行人や周囲の住人からの視線が気になりにくく、防犯面でも安心。建物のエントランスはオートロックがついており、インターホンにはTVモニタもついているため、相手の顔を確認してから来客対応することができます。
おしゃれなデザイナーズ物件!人気の角部屋で周囲の居住者の生活音も気になりにくく、また、フローリングのお部屋なのでお掃除もラクラク。室内にはウォークインクローゼットがありますので、たくさんの荷物も効率的に収納ができます。キッチンはシステムキッチン仕様になっていますので、お料理好きの方にもぴったり。バス・トイレは別なので、のんびりお風呂タイムも楽しめるでしょう。また、雨の日でも浴室乾燥機を使えば、お洗濯も問題ありません。
通信設備面では、インターネットが無料で使えるので、月々の出費を抑えられるのも魅力です。また、BSアンテナ・CSアンテナがありCATVにも対応しているので、おうち時間も充実するでしょう(別途工事、BS・CS・CATVの契約料等が必要な場合あり)。
建物にはエレベーターがついているので、重い荷物があっても安心。共用部には宅配ボックスが設定されているので、不在の時にも荷物を受け取ることができます。また、ペット飼育の相談ができますので、あなたの大切な家族の一員も快適に暮らせるか、ぜひ確認してみてください。
コンビニまで徒歩4分の場所にあり、日用品や食料品のお買い物にも便利です。
お金・契約の情報
※「-」と表示されているものは、実際は料金が発生するものもございます。詳細はお問い合わせください。
| 家賃 | 12.1万円 | 管理費・共益費 | 1万円 |
|---|---|---|---|
| 敷金 | なし | 礼金 | 12.1万円 |
| 入居決定でお祝い金最大100,000円 | |||
| 保証金 | - | 償却・敷引 | - |
| 住宅保険料 | 1円 | 更新料 | - |
| その他費用 | PREGIOCLUB:2万円 | ||
| 保証会社利用 | 必須 | 保証会社名 | エポスカード |
| 保証会社費用 | - | 保証会社備考 | 初回保証料:月額総賃料の20%、月額保証料:月額総賃料の1% |
| 契約形態 | - | 契約期間 | 2年 |
| 入居・引渡期間 | 即時 | 現況 | - |
| 入居可能条件 | 2人入居可、ペット相談 | ||
| 契約備考 | 退去時費用退去時クリーニング代 38500円(税込)、退去時エアコンクリーニング代 1台につき 16500円(税込)違約金1年未満の解約時は、総賃料の1ヶ月分要 鍵交換費用:16500 その他設備/条件:室内洗濯機置き場、ごみ出し24時間OK、独立洗面台、防犯カメラ、初期費用カード決済可、クローゼット | ||
部屋の情報
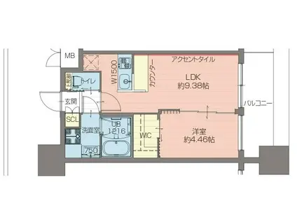
| 間取り | 1LDK | 専有面積 | 33.75m2 |
|---|---|---|---|
| 間取り詳細 | LDK(9.4帖)、洋室(4.5帖) | ||
| 所在階 / 向き | 11階 / 北 | バルコニー面積 | 3m2 |
| 水道 / ガス | 水道【公営】 | ||
| 設備 | バス・トイレ別、オートロック、テレビドアホン、宅配ボックス、浴室乾燥機、ウォークインクローゼット、インターネット対応、システムキッチン、カウンターキッチン、エアコン、エレベーター、温水洗浄便座、バルコニー、フローリング、洗髪洗面化粧台、2口コンロ、コンロ:ガス、CSアンテナ、BSアンテナ、インターネット使用料無料、タイル張り | ||
| 当社物件ID | 119943266 | ||
建物の情報
| 建物名 | プレジオ難波EURO | ||
|---|---|---|---|
| 所在地 | 大阪府大阪市浪速区塩草1丁目 | ||
| 交通 | 大阪環状線 芦原橋駅 徒歩8分 関西本線 JR難波駅 徒歩12分 | ||
| 階数 | 15階建 | 総戸数 | 112戸 |
| 築年月 | 2022年11月 / 築4年 | エレベーター | あり |
| 駐車場 | 空有 2.299万円/月 | バイク置き場 | あり |
| 駐輪場 | あり | 管理人/管理会社 | - |
| 周辺環境 | コンビニ 徒歩4分(295m) 販売店 徒歩4分(305m) その他 ドラッグストア その他 公園 その他 銀行 その他 * | ||
| 建物種別 | マンション | 建物構造 | RC(鉄筋コンクリート) |
この部屋の取扱い不動産会社
| 会社名 | 大阪ハウスコム株式会社 心斎橋店 | ||
|---|---|---|---|
| 所在地 | 大阪府大阪市中央区11-6アルファビル1階 | 交通 | - |
| 営業時間 | 10:00~18:00 | 定休日 | - |
| 免許番号 | 国土交通大臣(3)第8685号 | 取引態様 | 仲介 |
| 不動産会社管理番号 | HC2-3396561-1104-0254 | 当社管理番号 | 468 |
| 所属団体 | 、 | ||
| 取扱い物件情報 | 物件詳細へ | ||
※各種情報と現状に差異がある場合は、現状優先となります。問い合わせをすることで、より詳しい条件、情報を確認する事ができます。
提供:大阪ハウスコム株式会社 心斎橋店
この物件が気になったら掲載期限まであと5日
プレジオ難波EUROに条件(家賃・エリア)が近い物件一覧
| 写真 | 家賃 管理費等 | 敷金 礼金 | 間取り 専有面積 | 築年数 | 最寄り駅 所在地 | キープ | 詳細 |
|---|---|---|---|---|---|---|---|
マンション ディームス江坂(1K/13階) | |||||||
| 8.8万円 1万円 | なし なし | 1K 24.8m2 | 築9年 | 北大阪急行南北線 江坂駅 徒歩9分 阪急電鉄宝塚線 庄内駅(大阪) 徒歩27分 阪急電鉄千里線 豊津駅(大阪) 徒歩28分 大阪府吹田市江の木町10-3 | 詳細を見る | ||
マンション S-RESIDENCE江坂EMINENCE(1K/3階) | |||||||
| 8万円 1.1万円 | なし なし | 1K 26.04m2 | 築7年 | 大阪市御堂筋線 江坂駅 徒歩7分 阪急電鉄千里線 豊津駅(大阪) 徒歩17分 阪急電鉄千里線 関大前駅 徒歩21分 大阪府吹田市江坂町1丁目12-50 | 詳細を見る | ||
マンション 和の杜 江坂(1LDK/2階) | |||||||
![]() | 15.8万円 1.5万円 | 15万円 なし | 1LDK 50.68m2 | 新築 | 大阪市御堂筋線 江坂駅 徒歩9分 阪急電鉄宝塚線 服部天神駅 徒歩27分 阪急電鉄宝塚線 庄内駅(大阪) 徒歩30分 大阪府吹田市豊津町798-1 | 詳細を見る | |
マンション パークナードフィット津雲台(ワンルーム/1階) | |||||||
| 9.2万円 7,000円 | 4.6万円 18.4万円 | ワンルーム 32.9m2 | 築6年 | 大阪モノレール本線 山田駅(大阪) 徒歩5分 阪急電鉄千里線 山田駅(大阪) 徒歩5分 阪急電鉄千里線 南千里駅 徒歩21分 大阪府吹田市津雲台5丁目11-1-4 | 詳細を見る | ||
アパート リジエール(1LDK/2階) | |||||||
![]() | 7.95万円 3,500円 | なし 7.95万円 | 1LDK 44.88m2 | 築5年 | 片町線 徳庵駅 徒歩13分 近鉄けいはんな線 長田駅(大阪) 徒歩19分 おおさか東線 高井田中央駅 徒歩30分 大阪府東大阪市楠根3丁目 | 詳細を見る | |
マンション SERENITE江坂四番館(1K/10階) | |||||||
| 8.1万円 8,000円 | なし なし | 1K 28.48m2 | 築17年 | 阪急電鉄千里線 豊津駅(大阪) 徒歩9分 北大阪急行南北線 江坂駅 徒歩11分 阪急電鉄千里線 関大前駅 徒歩17分 大阪府吹田市垂水町3丁目15-23 | 詳細を見る | ||



