賃貸アパート
グレイスコート熊本学園大学東の賃貸物件情報(1LDK/2階)
| 家賃 | 管理費等 | 敷金 | 礼金 | 間取り | 専有面積 |
|---|---|---|---|---|---|
| 5.8万円 | 4,000円 | なし | 5.8万円 | 1LDK | 37.85m2 |
入居決定でお祝い金最大100,000円
Point
こだわりで選びたい方におすすめ。熊本市中央区エリアで住まいをお探しなら「グレイスコート熊本学園大学東」。収納はクロゼット・シューズボックスなどが備え付けられているので、衣類や日用品の収納に重宝します。
提供:(株)コスギ不動産リーシング営業本店(SUUMO経由)

詳細情報 グレイスコート熊本学園大学東
物件紹介
グレイスコート熊本学園大学東はJR豊肥本線東海学園前駅から徒歩14分にあるアパートです。
このお部屋は2階以上に位置しているので、通行人や周囲の住人からの視線が気になりにくく、防犯面でも安心。建物のエントランスはオートロックがついており、インターホンにはTVモニタもついているため、相手の顔を確認してから来客対応することができます。
人気の角部屋で周囲の居住者の生活音も気になりにくく、また、フローリングのお部屋なのでお掃除もラクラク。キッチンはシステムキッチン仕様になっていますので、お料理好きの方にもぴったり。バス・トイレは別なので、のんびりお風呂タイムも楽しめるでしょう。また、雨の日でも浴室乾燥機を使えば、お洗濯も問題ありません。
通信設備面では、インターネットが無料で使えるので、月々の出費を抑えられるのも魅力です(別途工事等が必要な場合あり)。
このお部屋は2階以上に位置しているので、通行人や周囲の住人からの視線が気になりにくく、防犯面でも安心。建物のエントランスはオートロックがついており、インターホンにはTVモニタもついているため、相手の顔を確認してから来客対応することができます。
人気の角部屋で周囲の居住者の生活音も気になりにくく、また、フローリングのお部屋なのでお掃除もラクラク。キッチンはシステムキッチン仕様になっていますので、お料理好きの方にもぴったり。バス・トイレは別なので、のんびりお風呂タイムも楽しめるでしょう。また、雨の日でも浴室乾燥機を使えば、お洗濯も問題ありません。
通信設備面では、インターネットが無料で使えるので、月々の出費を抑えられるのも魅力です(別途工事等が必要な場合あり)。
お金・契約の情報
※「-」と表示されているものは、実際は料金が発生するものもございます。詳細はお問い合わせください。
| 家賃 | 5.8万円 | 管理費・共益費 | 4,000円 |
|---|---|---|---|
| 敷金 | なし | 礼金 | 5.8万円 |
| 入居決定でお祝い金最大100,000円 | |||
| 保証金 | - | 償却・敷引 | - |
| 住宅保険料 | - | 更新料 | - |
| 保証会社利用 | 必須 | 保証会社名 | - |
| 保証会社費用 | - | 保証会社備考 | 保証会社利用必 初回保証料:月額賃料の60%(下限30,000円) 更新保証料なし、毎月保証料(口座振替手数料含む)800円(非課税)/月 |
| 契約形態 | - | 契約期間 | - |
| 入居・引渡期間 | 即時 | 現況 | - |
| 契約備考 | 合計2.31万円(内訳:入居時消毒代1.76万円ネット初期工事代0.55万円) 室内清掃費用 49500円 町費 月額200円 1LDK 二人入居可 普通借家2年 損保【2万円2年】 バストイレ別、バルコニー、エアコン、ガスコンロ対応、クロゼット、フローリング、TVインターホン、浴室乾燥機、オートロック、室内洗濯置、シューズボックス、システムキッチン、角住戸、温水洗浄便座、洗面所独立、2口コンロ、光ファイバー、敷金不要、対面式キッチン、グリル付、二人入居相談、全居室フローリング、2沿線利用可、ネット専用回線、ネット使用料不要、保証金不要、3駅以上利用可、プロパンガス、礼金1ヶ月、保証会社利用可 | ||
部屋の情報
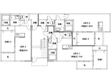
| 間取り | 1LDK | 専有面積 | 37.85m2 |
|---|---|---|---|
| 所在階 / 向き | 2階 / - | バルコニー面積 | - |
| 水道 / ガス | - | ||
| 設備 | バス・トイレ別、2階以上、オートロック、テレビドアホン、浴室乾燥機、インターネット対応、システムキッチン、エアコン、温水洗浄便座、角部屋、バルコニー、フローリング、洗髪洗面化粧台、2口コンロ、コンロ:ガス、インターネット使用料無料、洗濯機:室内 | ||
| 当社物件ID | 159858032 | ||
建物の情報
| 建物名 | グレイスコート熊本学園大学東 | ||
|---|---|---|---|
| 所在地 | 熊本県熊本市中央区 | ||
| 交通 | JR豊肥本線 東海学園前駅 徒歩14分 JR豊肥本線 水前寺駅 徒歩16分 | ||
| 階数 | 3階建 | 総戸数 | 9戸 |
| 築年月 | 2025年12月 / 築1年 | エレベーター | - |
| 駐車場 | 空有 5500円 | バイク置き場 | - |
| 駐輪場 | - | 管理人/管理会社 | - |
| 建物種別 | アパート | 建物構造 | 木造 |
この部屋の取扱い不動産会社
| 会社名 | (株)コスギ不動産リーシング営業本店(SUUMO経由) | ||
|---|---|---|---|
| 所在地 | 熊本県熊本市中央区九品寺2-2-43 ライズ九品寺 1階 | 交通 | - |
| 営業時間 | 10:00~18:00 | 定休日 | 水曜 |
| 免許番号 | 熊本県知事5551 | 取引態様 | 仲介 |
| 不動産会社管理番号 | 100472407071 | 当社管理番号 | 89 |
| 所属団体 | (公社)熊本県宅地建物取引業協会会員 | ||
| 公正取引協議会 | (一社)九州不動産公正取引協議会加盟 | ||
| 取扱い物件情報 | 物件詳細へ | ||
※各種情報と現状に差異がある場合は、現状優先となります。問い合わせをすることで、より詳しい条件、情報を確認する事ができます。
提供:(株)コスギ不動産リーシング営業本店(SUUMO経由)
この物件が気になったら掲載期限まであと10日
グレイスコート熊本学園大学東に条件(家賃・エリア)が近い物件一覧
| 写真 | 家賃 管理費等 | 敷金 礼金 | 間取り 専有面積 | 築年数 | 最寄り駅 所在地 | キープ | 詳細 |
|---|---|---|---|---|---|---|---|
アパート モイセス下南部(1K/1階) | |||||||
![]() | 3.5万円 3,000円 | なし なし | 1K 27.89m2 | 築25年 | JR豊肥本線 東海学園前駅 徒歩22分 JR豊肥本線 竜田口駅 徒歩28分 熊本電気鉄道 北熊本駅 徒歩62分 熊本県熊本市東区下南部 | 詳細を見る | |
マンション ワンティック水前寺II(1LDK/6階) | |||||||
![]() | 5.9万円 4,000円 | なし なし | 1LDK 36.7m2 | 築12年 | JR豊肥本線 水前寺駅 徒歩6分 熊本市電健軍線 新水前寺駅前駅 徒歩11分 熊本県熊本市中央区水前寺 | 詳細を見る | |
マンション WELL保田窪(2LDK/6階) | |||||||
![]() | 7.5万円 5,000円 | なし 7.5万円 | 2LDK 63.05m2 | 築8年 | 熊本県熊本市東区 | 詳細を見る | |
アパート サンコーポ(2LDK/1階) | |||||||
![]() | 4.3万円 2,000円 | なし 4.3万円 | 2LDK 52m2 | 築47年 | JR豊肥本線 南熊本駅 徒歩12分 JR豊肥本線 平成駅 徒歩17分 熊本県熊本市中央区 | 詳細を見る | |
マンション 優染ビル(2LDK/7階) | |||||||
![]() | 6万円 2,000円 | 12万円 なし | 2LDK 52m2 | 築36年 | JR豊肥本線 新水前寺駅 徒歩3分 熊本県熊本市中央区国府 | 詳細を見る | |
アパート ディアコート琴平(1K/2階) | |||||||
![]() | 4.3万円 3,000円 | なし なし | 1K 22.49m2 | 築9年 | JR豊肥本線 南熊本駅 徒歩12分 熊本県熊本市中央区琴平 | 詳細を見る | |
マンション ラフレシーサ水前寺(1LDK/2階) | |||||||
![]() | 5.7万円 4,000円 | なし なし | 1LDK 35m2 | 築7年 | JR豊肥本線 水前寺駅 徒歩6分 熊本市電健軍線 国府駅(熊本) 徒歩13分 熊本県熊本市中央区水前寺 | 詳細を見る | |
マンション クラウディア八王寺(1LDK/9階) | |||||||
![]() | 6万円 4,000円 | なし なし | 1LDK 37.66m2 | 築19年 | JR豊肥本線 南熊本駅 徒歩12分 熊本県熊本市中央区 | 詳細を見る | |
熊本市中央区の町名から探す
熊本市中央区の部屋を間取りから探す
熊本市中央区の駅から探す
熊本市中央区と隣接している市区町村から探す
- 熊本市中央区(5,717)









