賃貸マンション
GRANDGRACE富ケ丘の賃貸物件情報(1LDK/1階)
| 家賃 | 管理費等 | 敷金 | 礼金 | 間取り | 専有面積 |
|---|---|---|---|---|---|
| 9.4万円 | 1万円 | 9.4万円 | 9.4万円 | 1LDK | 55.6m2 |
入居決定でお祝い金最大100,000円
- 保証金
- -
- 償却・敷引
- -
- 築年数
- 築1年
- 所在階
- 1階
- 向き
- 西
- 交通
- 所在地
- 宮城県富谷市富ケ丘
GRANDGRACE富ケ丘
[地図を表示]
Point
仙台市に3店舗、黒川郡大和町に1店舗を構えており、様々なエリアのお部屋探しが可能!オンライン内見も可能です!お気軽にお問い合わせください♪
提供:(株)シライシコーポレーション富谷店(SUUMO経由)

詳細情報 GRANDGRACE富ケ丘
物件紹介
このお部屋は2階以上に位置しているので、通行人や周囲の住人からの視線が気になりにくく、防犯面でも安心。建物のエントランスはオートロックがついており、インターホンにはTVモニタもついているため、相手の顔を確認してから来客対応することができます。
フローリングのお部屋なのでお掃除もラクラク。室内には人気のウォークインクローゼットがありますので、たくさんの荷物も効率的に収納ができます。キッチンはシステムキッチン仕様になっていますので、お料理好きの方にもぴったり。バス・トイレは別なので、のんびりお風呂タイムも楽しめるでしょう。また、雨の日でも浴室乾燥機を使えば、お洗濯も問題ありません。
通信設備面では、インターネットが無料で使えるので、月々の出費を抑えられるのも魅力です。また、BSアンテナ・CSアンテナもありますので、おうち時間も充実するでしょう(別途工事、BS・CSの契約料等が必要な場合あり)。
建物にはエレベーターがついているので、重い荷物があっても安心。共用部には宅配ボックスが設定されているので、不在の時にも荷物を受け取ることができます。
フローリングのお部屋なのでお掃除もラクラク。室内には人気のウォークインクローゼットがありますので、たくさんの荷物も効率的に収納ができます。キッチンはシステムキッチン仕様になっていますので、お料理好きの方にもぴったり。バス・トイレは別なので、のんびりお風呂タイムも楽しめるでしょう。また、雨の日でも浴室乾燥機を使えば、お洗濯も問題ありません。
通信設備面では、インターネットが無料で使えるので、月々の出費を抑えられるのも魅力です。また、BSアンテナ・CSアンテナもありますので、おうち時間も充実するでしょう(別途工事、BS・CSの契約料等が必要な場合あり)。
建物にはエレベーターがついているので、重い荷物があっても安心。共用部には宅配ボックスが設定されているので、不在の時にも荷物を受け取ることができます。
お金・契約の情報
※「-」と表示されているものは、実際は料金が発生するものもございます。詳細はお問い合わせください。
| 家賃 | 9.4万円 | 管理費・共益費 | 1万円 |
|---|---|---|---|
| 敷金 | 9.4万円 | 礼金 | 9.4万円 |
| 入居決定でお祝い金最大100,000円 | |||
| 保証金 | - | 償却・敷引 | - |
| 住宅保険料 | - | 更新料 | - |
| 保証会社利用 | 必須 | 保証会社名 | - |
| 保証会社費用 | - | 保証会社備考 | 保証会社利用必 初回保証料:月額賃料等合計×40% 月額保証料:1600円 |
| 契約形態 | - | 契約期間 | - |
| 入居・引渡期間 | 即時 | 現況 | - |
| 契約備考 | ※初期費用についてはお問い合わせください。※現況優先※短期違約金解約あり(6ヶ月未満・賃料等1か月分)※24時間安心サポート加入必須(金額要確認)※駐車場平置き8,800円(税込)、屋根付き駐車場11,000円(税込)、シャッター付き駐車場16,500円(税込)駐車場2台目契約可能※喫煙不可 合計1.87万円(内訳:カードキー設定手数料 16500円税込 駐輪場ステッカー発行料(駐輪希望時) 1100円税込 バイク置き場ステッカー発行料(駐輪希望時) 1100円税込) 町内会費 330円/月額 更新料 22000円 1LDK 普通借家2年 損保【1.8万円2年】 バストイレ別、バルコニー、エアコン、クロゼット、フローリング、シャワー付洗面台、TVインターホン、浴室乾燥機、オートロック、室内洗濯置、シューズボックス、追焚機能浴室、温水洗浄便座、エレベーター、洗面所独立、駐輪場、宅配ボックス、即入居可、BS・CS、防犯カメラ、IHクッキングヒーター、全居室収納、ウォークインクロゼット、敷金1ヶ月、バイク置場、カードキー、全居室フローリング、エアコン2台、CS、メゾネット、ネット使用料不要、食器洗乾燥機、トランクルーム、24時間換気システム、外壁コンクリート、未入居、車寄せ、LDK12畳以上、全居室6畳以上、プロパンガス、電動シャッター、ダウンライト、BS、礼金1ヶ月、初期費用カード決済可 | ||
部屋の情報
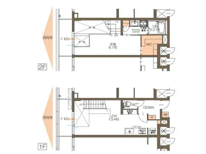
| 間取り | 1LDK | 専有面積 | 55.6m2 |
|---|---|---|---|
| 所在階 / 向き | 1階 / 西 | バルコニー面積 | - |
| 水道 / ガス | - | ||
| 設備 | バス・トイレ別、オートロック、テレビドアホン、宅配ボックス、浴室乾燥機、ウォークインクローゼット、追い焚き、インターネット対応、エアコン、エレベーター、温水洗浄便座、バルコニー、フローリング、トランクルーム、洗髪洗面化粧台、コンロ:IH、CSアンテナ、BSアンテナ、インターネット使用料無料、洗濯機:室内 | ||
| 当社物件ID | 158350044 | ||
建物の情報
| 建物名 | GRANDGRACE富ケ丘 | ||
|---|---|---|---|
| 所在地 | 宮城県富谷市富ケ丘 | ||
| 交通 | - | ||
| 階数 | 3階建 | 総戸数 | 16戸 |
| 築年月 | 2025年03月 / 築1年 | エレベーター | あり |
| 駐車場 | 空有 8800円 | バイク置き場 | あり |
| 駐輪場 | あり | 管理人/管理会社 | - |
| 周辺環境 | その他 イオン富谷店(スーパー)まで1090m その他 ローソン富谷富ヶ丘二丁目店(コンビニ)まで399m その他 サンドラッグ富谷店(ドラッグストア)まで1010m その他 富谷富ケ丘郵便局(郵便局)まで676m その他 ゆうちょ銀行仙台支店イオンモール富谷内出張所(銀行)まで1069m その他 COCO’S富谷店(飲食店)まで368m | ||
| 建物種別 | マンション | 建物構造 | RC(鉄筋コンクリート) |
この部屋の取扱い不動産会社
| 会社名 | リロの賃貸 (株)進和商事泉中央駅前店(SUUMO経由) | ||
|---|---|---|---|
| 所在地 | 宮城県仙台市泉区泉中央1-16-6 泉中央ビル1階 | 交通 | - |
| 営業時間 | 10:00~18:30 | 定休日 | 毎週水曜日 |
| 免許番号 | 宮城県知事2649 | 取引態様 | 仲介 |
| 不動産会社管理番号 | 100460366111 | 当社管理番号 | 89 |
| 所属団体 | (公社)宮城県宅地建物取引業協会会員 | ||
| 公正取引協議会 | 東北地区不動産公正取引協議会加盟 | ||
| 取扱い物件情報 | 物件詳細へ | ||
※各種情報と現状に差異がある場合は、現状優先となります。問い合わせをすることで、より詳しい条件、情報を確認する事ができます。
提供:リロの賃貸 (株)進和商事泉中央駅前店(SUUMO経由)
この物件が気になったら掲載期限まであと10日
GRANDGRACE富ケ丘に条件(家賃・エリア)が近い物件一覧
| 写真 | 家賃 管理費等 | 敷金 礼金 | 間取り 専有面積 | 築年数 | 最寄り駅 所在地 | キープ | 詳細 |
|---|---|---|---|---|---|---|---|
アパート フロレスタ I(2LDK/3階) | |||||||
![]() | 7.2万円 4,000円 | なし 7.2万円 | 2LDK 54.23m2 | 築11年 | 宮城県富谷市ひより台 | 詳細を見る | |
アパート ドリームポート富谷(1DK/1階) | |||||||
![]() | 5.7万円 3,500円 | なし なし | 1DK 30.35m2 | 築1年 | 宮城県富谷市ひより台 | 詳細を見る | |
アパート ラ・エスペーロ(1LDK/2階) | |||||||
![]() | 6.2万円 4,000円 | 6.2万円 6.2万円 | 1LDK 43.26m2 | 築17年 | 仙台市地下鉄南北線 泉中央駅 徒歩69分 宮城県富谷市富ケ丘1丁目 | 詳細を見る | |
マンション レジデンス内海(2LDK/2階) | |||||||
![]() | 5.8万円 2,000円 | なし なし | 2LDK 61.4m2 | 築26年 | 宮城県富谷市富谷清水仲 | 詳細を見る | |
アパート アルス明石台 AH(2LDK/1階) | |||||||
![]() | 6.5万円 なし | なし なし | 2LDK 53.76m2 | 築24年 | 仙台市地下鉄南北線 泉中央駅 徒歩48分 宮城県富谷市明石台4丁目 | 詳細を見る | |
アパート グレイスコート21壱番館(2LDK/2階) | |||||||
![]() | 6.55万円 2,000円 | なし なし | 2LDK 65.64m2 | 築21年 | 宮城県富谷市富谷一枚沖 | 詳細を見る | |
アパート ラ・エスペーロ(1LDK/2階) | |||||||
![]() | 6.2万円 4,000円 | 6.2万円 6.2万円 | 1LDK 43.26m2 | 築17年 | 仙台市地下鉄南北線 泉中央駅 徒歩68分 宮城県富谷市富ケ丘 | 詳細を見る | |
マンション コンフィアンサ(1LDK/2階) | |||||||
![]() | 6.9万円 7,000円 | 6.9万円 6.9万円 | 1LDK 46.51m2 | 築9年 | 宮城県富谷市富ケ丘 | 詳細を見る | |
富谷市の町名から探す
富谷市の部屋を間取りから探す
富谷市と隣接している市区町村から探す
- 富谷市(292)





/105x80-f1-q70-wp1)


