賃貸アパート
東グリーンホームズIの賃貸物件情報(1K/2階)
| 家賃 | 管理費等 | 敷金 | 礼金 | 間取り | 専有面積 |
|---|---|---|---|---|---|
| 4.7万円 | なし | 4.7万円 | なし | 1K | 32.76m2 |
入居決定でお祝い金最大100,000円
- 保証金
- -
- 償却・敷引
- -
- 築年数
- 築37年
- 所在階
- 2階
- 向き
- 東
Point
都市ガス仕様。駐車場融雪あり!宅配BOX設置済み!
提供:ピタットハウス三条店(株)ユタカ不動産(SUUMO経由)

詳細情報 東グリーンホームズI
物件紹介
東グリーンホームズIはJR信越本線東三条駅から徒歩7分にあり、駅近で通勤通学に便利なアパートです。
このお部屋は2階以上に位置しているので、通行人や周囲の住人からの視線が気になりにくく、防犯面でも安心です。
キッチンはシステムキッチン仕様になっていますので、お料理好きの方にもぴったり。また、バス・トイレは別で、のんびりお風呂タイムも楽しめるでしょう。
このお部屋は2階以上に位置しているので、通行人や周囲の住人からの視線が気になりにくく、防犯面でも安心です。
キッチンはシステムキッチン仕様になっていますので、お料理好きの方にもぴったり。また、バス・トイレは別で、のんびりお風呂タイムも楽しめるでしょう。
お金・契約の情報
※「-」と表示されているものは、実際は料金が発生するものもございます。詳細はお問い合わせください。
| 家賃 | 4.7万円 | 管理費・共益費 | なし |
|---|---|---|---|
| 敷金 | 4.7万円 | 礼金 | なし |
| 入居決定でお祝い金最大100,000円 | |||
| 保証金 | - | 償却・敷引 | - |
| 住宅保険料 | - | 更新料 | - |
| 保証会社利用 | 必須 | 保証会社名 | - |
| 保証会社費用 | - | 保証会社備考 | 保証会社利用必 Jリース 契約時保証料賃料総額80%、月額継続保証料500円 |
| 契約形態 | - | 契約期間 | - |
| 入居・引渡期間 | 即時 | 現況 | - |
| 契約備考 | 保証会社加入必須。連帯保証人様必要。 町内会費200円 1K 損保【2万円2年】 バストイレ別、エアコン、シャワー付洗面台、室内洗濯置、シューズボックス、システムキッチン、温水洗浄便座、即入居可、礼金不要、最上階、2沿線利用可、駅徒歩10分以内、都市ガス | ||
部屋の情報
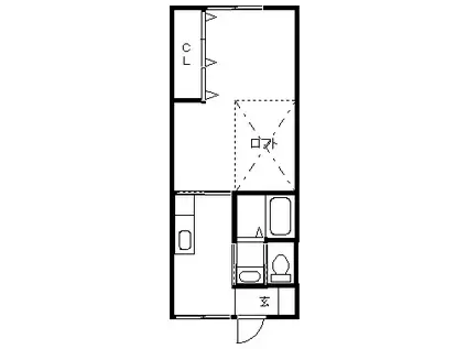
| 間取り | 1K | 専有面積 | 32.76m2 |
|---|---|---|---|
| 所在階 / 向き | 2階 / 東 | バルコニー面積 | - |
| 水道 / ガス | - | ||
| 設備 | バス・トイレ別、2階以上、システムキッチン、エアコン、温水洗浄便座、洗濯機:室内 | ||
| 当社物件ID | 128291432 | ||
建物の情報
| 建物名 | 東グリーンホームズI | ||
|---|---|---|---|
| 所在地 | 新潟県三条市東三条 | ||
| 交通 | JR信越本線 東三条駅 徒歩7分 JR弥彦線 東三条駅 徒歩7分 JR信越本線 三条駅(新潟) 徒歩31分 | ||
| 階数 | 2階建 | 総戸数 | 8戸 |
| 築年月 | 1989年03月 / 築37年 | エレベーター | - |
| 駐車場 | なし | バイク置き場 | - |
| 駐輪場 | - | 管理人/管理会社 | - |
| 周辺環境 | その他 加茂ショッピングパーク・メリア(ショッピングセンター)まで7145m その他 ニューデイズミニ東三条(コンビニ)まで553m その他 ウオロク興野店(スーパー)まで1276m その他 富永草野病院(病院)まで831m その他 三条市役所(役所)まで1954m その他 三条警察署(警察署・交番)まで1843m | ||
| 建物種別 | アパート | 建物構造 | 木造 |
この部屋の取扱い不動産会社
| 会社名 | ピタットハウス三条店(株)ユタカ不動産(SUUMO経由) | ||
|---|---|---|---|
| 所在地 | 新潟県三条市旭町1-1-19-3 ユタカビル | 交通 | - |
| 営業時間 | 9時~18時 | 定休日 | 火・祝日 |
| 免許番号 | 新潟県知事3203 | 取引態様 | 仲介 |
| 不動産会社管理番号 | 100418441258 | 当社管理番号 | 89 |
| 所属団体 | (公社)新潟県宅地建物取引業協会会員 | ||
| 公正取引協議会 | (公社)首都圏不動産公正取引協議会加盟 | ||
| 取扱い物件情報 | 物件詳細へ | ||
※各種情報と現状に差異がある場合は、現状優先となります。問い合わせをすることで、より詳しい条件、情報を確認する事ができます。
提供:ピタットハウス三条店(株)ユタカ不動産(SUUMO経由)
この物件が気になったら掲載期限まであと10日
東グリーンホームズIに条件(家賃・エリア)が近い物件一覧
| 写真 | 家賃 管理費等 | 敷金 礼金 | 間取り 専有面積 | 築年数 | 最寄り駅 所在地 | キープ | 詳細 |
|---|---|---|---|---|---|---|---|
アパート サンライズ A201(1LDK/2階) | |||||||
![]() | 5.9万円 4,500円 | なし 5.9万円 | 1LDK 45.41m2 | 築28年 | 新潟県新潟市東区はなみずき | 詳細を見る | |
アパート ライフタウンA(1K/2階) | |||||||
![]() | 4.05万円 なし | 4.05万円 4.05万円 | 1K 24.75m2 | 築40年 | JR信越本線 越後石山駅 徒歩5分 JR白新線 東新潟駅 徒歩28分 JR信越本線 亀田駅 徒歩37分 新潟県新潟市東区石山 | 詳細を見る | |
マンション レオパレスウエストドリーム(1K/1階) | |||||||
![]() | 5.8万円 6,000円 | なし なし | 1K 20.81m2 | 築18年 | 信越本線 新潟駅 徒歩16分 新潟県新潟市中央区西馬越 | 詳細を見る | |
アパート アパートメント山木戸(1LDK/1階) | |||||||
![]() | 6万円 3,000円 | 6万円 6万円 | 1LDK 36.44m2 | 築3年 | 上越新幹線 新潟駅 徒歩37分 JR信越本線 新潟駅 徒歩37分 JR白新線 東新潟駅 徒歩44分 新潟県新潟市東区 | 詳細を見る | |
マンション JR信越本線 新潟駅 徒歩10分 築28年(1K/3階) | |||||||
![]() | 5.5万円 なし | 11万円 なし | 1K 27.87m2 | 築28年 | JR信越本線 新潟駅 徒歩10分 JR信越本線 越後石山駅 徒歩48分 新潟県新潟市中央区南笹口 | 詳細を見る | |
アパート コーポしぶや(ワンルーム/1階) | |||||||
![]() | 3.4万円 2,000円 | なし 3.4万円 | ワンルーム 17.39m2 | 築28年 | 白新線 大形駅 徒歩21分 新潟県新潟市東区大形本町2丁目 | 詳細を見る | |
アパート バーミーハウスI(3K/2階) | |||||||
![]() | 4.9万円 2,000円 | 4.9万円 4.9万円 | 3K 51.34m2 | 築38年 | JR信越本線 荻川駅 徒歩6分 新潟県新潟市秋葉区中野 | 詳細を見る | |
アパート レオパレスサンフラワ(1K/1階) | |||||||
![]() | 4.1万円 4,000円 | なし 4.1万円 | 1K 20.28m2 | 築24年 | 新潟県新潟市東区太平4丁目 | 詳細を見る | |



/105x80-f1-q70-wp1)


/105x80-f1-q70-wp1)

/105x80-f1-q70-wp1)