賃貸マンション
エスティメゾン葵の賃貸物件情報(ワンルーム/8階)
| 家賃 | 管理費等 | 敷金 | 礼金 | 間取り | 専有面積 |
|---|---|---|---|---|---|
| 8.9万円 | 1万円 | なし | なし | ワンルーム | 42.04m2 |
入居決定でお祝い金最大100,000円
- 保証金
- -
- 償却・敷引
- -
- 築年数
- 築19年
- 所在階
- 8階
- 向き
- -
Point
セキュリティ面は、TVインターホン・オートロックなどを設置しているので安全面でも優れております。収納はクロゼット・シューズボックスなどが備え付けられているので、衣類や日用品の収納に重宝します。
提供:(株)ニッショー千種支店(SUUMO経由)

詳細情報 エスティメゾン葵
物件紹介
エスティメゾン葵は地下鉄東山線新栄町駅から徒歩7分にあり、駅近で通勤通学に便利なマンションです。
このお部屋は2階以上に位置しているので、通行人や周囲の住人からの視線が気になりにくく、防犯面でも安心。建物のエントランスはオートロックがついており、インターホンにはTVモニタもついているため、相手の顔を確認してから来客対応することができます。
フローリングのお部屋なのでお掃除もラクラク。バス・トイレ別の仕様で、のんびりお風呂タイムも楽しめます。また、浴室乾燥機を使えば、雨の日でもお洗濯は問題ありません。
通信設備面ではBSアンテナ・CSアンテナがありますので、おうち時間も充実するでしょう(別途工事、契約料が必要な場合あり)。
床暖房があり、冬も足元から暖かく快適に過ごすことができます。建物にはエレベーターがついているので、重い荷物があっても安心。共用部には宅配ボックスが設定されているので、不在の時にも荷物を受け取ることができます。
このお部屋は2階以上に位置しているので、通行人や周囲の住人からの視線が気になりにくく、防犯面でも安心。建物のエントランスはオートロックがついており、インターホンにはTVモニタもついているため、相手の顔を確認してから来客対応することができます。
フローリングのお部屋なのでお掃除もラクラク。バス・トイレ別の仕様で、のんびりお風呂タイムも楽しめます。また、浴室乾燥機を使えば、雨の日でもお洗濯は問題ありません。
通信設備面ではBSアンテナ・CSアンテナがありますので、おうち時間も充実するでしょう(別途工事、契約料が必要な場合あり)。
床暖房があり、冬も足元から暖かく快適に過ごすことができます。建物にはエレベーターがついているので、重い荷物があっても安心。共用部には宅配ボックスが設定されているので、不在の時にも荷物を受け取ることができます。
お金・契約の情報
※「-」と表示されているものは、実際は料金が発生するものもございます。詳細はお問い合わせください。
| 家賃 | 8.9万円 | 管理費・共益費 | 1万円 |
|---|---|---|---|
| 敷金 | なし | 礼金 | なし |
| 入居決定でお祝い金最大100,000円 | |||
| 保証金 | - | 償却・敷引 | - |
| 住宅保険料 | - | 更新料 | - |
| 保証会社利用 | 必須 | 保証会社名 | - |
| 保証会社費用 | - | 保証会社備考 | 保証会社利用必 日本セーフティー株式会社 大手法人相談可 |
| 契約形態 | - | 契約期間 | - |
| 入居・引渡期間 | 即時 | 現況 | - |
| 契約備考 | 合計13.31万円(内訳:カギ代3.85万円退去時RC代9.46万円) 自治会費 月額300円 使用料 月額550円 ワンルーム 普通借家2年 損保【2.2万円2年】 バストイレ別、バルコニー、エアコン、クロゼット、フローリング、TVインターホン、浴室乾燥機、オートロック、室内洗濯置、シューズボックス、エレベーター、2口コンロ、駐輪場、宅配ボックス、防犯カメラ、バイク置場、クッションフロア、CS、床暖房、都市ガス、BS | ||
部屋の情報
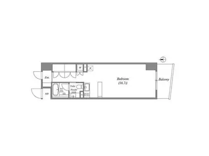
| 間取り | ワンルーム | 専有面積 | 42.04m2 |
|---|---|---|---|
| 所在階 / 向き | 8階 / - | バルコニー面積 | - |
| 水道 / ガス | - | ||
| 設備 | バス・トイレ別、2階以上、オートロック、テレビドアホン、宅配ボックス、浴室乾燥機、エアコン、エレベーター、バルコニー、フローリング、床暖房、2口コンロ、CSアンテナ、BSアンテナ、洗濯機:室内 | ||
| 当社物件ID | 17800270 | ||
建物の情報
| 建物名 | エスティメゾン葵 | ||
|---|---|---|---|
| 所在地 | 愛知県名古屋市東区葵 | ||
| 交通 | 地下鉄東山線 新栄町駅(愛知) 徒歩7分 地下鉄桜通線 車道駅 徒歩10分 JR中央本線 千種駅 徒歩10分 | ||
| 階数 | 14階建 | 総戸数 | 72戸 |
| 築年月 | 2007年10月 / 築19年 | エレベーター | あり |
| 駐車場 | なし | バイク置き場 | あり |
| 駐輪場 | あり | 管理人/管理会社 | - |
| 周辺環境 | その他 vドラッグ新栄店(ドラッグストア)まで430m その他 スーパーマーケットバロー 車道店(スーパー)まで335m その他 セブン-イレブン 名古屋葵2丁目店(コンビニ)まで122m その他 千種駅(その他)まで640m その他 新栄町(その他)まで310m その他 車道駅(その他)まで727m | ||
| 建物種別 | マンション | 建物構造 | SRC(鉄骨鉄筋コンクリート) |
この部屋の取扱い不動産会社
| 会社名 | (株)ニッショー千種支店(SUUMO経由) | ||
|---|---|---|---|
| 所在地 | 愛知県名古屋市千種区今池1-2-6 | 交通 | - |
| 営業時間 | 10:00~18:00 | 定休日 | 水曜定休(土日祝は営業) |
| 免許番号 | 国土交通大臣2018 | 取引態様 | 仲介 |
| 不動産会社管理番号 | 100491462455 | 当社管理番号 | 89 |
| 所属団体 | (公社)愛知県宅地建物取引業協会会員 | ||
| 公正取引協議会 | 東海不動産公正取引協議会加盟 | ||
| 取扱い物件情報 | 物件詳細へ | ||
※各種情報と現状に差異がある場合は、現状優先となります。問い合わせをすることで、より詳しい条件、情報を確認する事ができます。
提供:(株)ニッショー千種支店(SUUMO経由)
この物件が気になったら掲載期限まであと12日
エスティメゾン葵に条件(家賃・エリア)が近い物件一覧
| 写真 | 家賃 管理費等 | 敷金 礼金 | 間取り 専有面積 | 築年数 | 最寄り駅 所在地 | キープ | 詳細 |
|---|---|---|---|---|---|---|---|
アパート I-CUBE(1LDK/3階) | |||||||
![]() | 7.1万円 4,000円 | なし なし | 1LDK 30.52m2 | 築11年 | 地下鉄東山線 新栄町駅(愛知) 徒歩9分 JR中央本線 千種駅 徒歩17分 地下鉄桜通線 高岳駅 徒歩18分 愛知県名古屋市中区新栄 | 詳細を見る | |
マンション アクアエテルナ泉(1K/2階) | |||||||
![]() | 6.3万円 7,000円 | なし 6.3万円 | 1K 27.68m2 | 築5年 | 地下鉄桜通線 高岳駅 徒歩10分 地下鉄東山線 新栄町駅(愛知) 徒歩13分 名鉄瀬戸線 尼ケ坂駅 徒歩15分 愛知県名古屋市東区泉 | 詳細を見る | |
マンション リアレクト白壁(2LDK/1階) | |||||||
![]() | 13.8万円 9,500円 | なし 20.7万円 | 2LDK 63.53m2 | 築3年 | 名鉄瀬戸線 清水駅(愛知) 徒歩5分 名鉄瀬戸線 東大手駅 徒歩8分 名古屋市名城線 名古屋城駅 徒歩11分 愛知県名古屋市東区白壁2丁目 | 詳細を見る | |
マンション ポルタニグラ千種(1LDK/6階) | |||||||
![]() | 10万円 1万円 | なし なし | 1LDK 36.26m2 | 築7年 | 地下鉄鶴舞線 鶴舞駅 徒歩12分 地下鉄東山線 新栄町駅(愛知) 徒歩15分 地下鉄東山線 千種駅 徒歩15分 愛知県名古屋市中区新栄 | 詳細を見る | |
マンション ハーモニーレジデンス名古屋 イースト(1LDK/8階) | |||||||
![]() | 7.3万円 1万円 | なし なし | 1LDK 30.6m2 | 築9年 | 名古屋市東山線 新栄町駅(愛知) 徒歩10分 中央本線 鶴舞駅 徒歩12分 名古屋市名城線 矢場町駅 徒歩13分 愛知県名古屋市中区新栄1丁目 | 詳細を見る | |
アパート ハーモニーテラス千種Ⅵ(1K/1階) | |||||||
![]() | 5.6万円 4,000円 | なし 5.6万円 | 1K 20.74m2 | 築8年 | 名古屋市桜通線 吹上駅(愛知) 徒歩7分 愛知県名古屋市千種区千種1丁目 | 詳細を見る | |
マンション エステムコート名古屋新栄Ⅱアリーナ(1K/4階) | |||||||
![]() | 5.65万円 8,530円 | なし 5.65万円 | 1K 21.08m2 | 築7年 | 中央本線 鶴舞駅 徒歩9分 名古屋市名城線 矢場町駅 徒歩9分 名古屋市東山線 新栄町駅(愛知) 徒歩10分 愛知県名古屋市中区新栄2丁目 | 詳細を見る | |
マンション レジデンシア泉Ⅰ(1K/10階) | |||||||
![]() | 7.5万円 7,000円 | なし なし | 1K 28.56m2 | 築6年 | 名古屋市桜通線 高岳駅 徒歩6分 愛知県名古屋市東区泉3丁目 | 詳細を見る | |







/105x80-f1-q70-wp1)

/105x80-f1-q70-wp1)