賃貸マンション
フラッツ美竹の賃貸物件情報(1LDK/7階)
| 家賃 | 管理費等 | 敷金 | 礼金 | 間取り | 専有面積 |
|---|---|---|---|---|---|
| 22.8万円 | 1万円 | 22.8万円 | 22.8万円 | 1LDK | 39.92m2 |
入居決定でお祝い金最大100,000円
- 保証金
- -
- 償却・敷引
- -
- 築年数
- 築5年
- 所在階
- 7階
- 向き
- 北西
Point
セキュリティ面は、TVインターホン・オートロックなどを備え付けているので安心して暮らせます。こちらは家賃22.8万円の物件です。周辺に2駅ありの電車通勤しやすい物件です。
提供:(株)ネクストライフエージェント(SUUMO経由)

詳細情報 フラッツ美竹
物件紹介
フラッツ美竹はJR山手線渋谷駅から徒歩11分にあるマンションです。
このお部屋は2階以上に位置しているので、通行人や周囲の住人からの視線が気になりにくく、防犯面でも安心。建物のエントランスはオートロックがついており、インターホンにはTVモニタもついているため、相手の顔を確認してから来客対応することができます。
フローリングのお部屋なのでお掃除もラクラク。キッチンはシステムキッチン仕様になっていますので、お料理好きの方にもぴったり。バス・トイレは別なので、のんびりお風呂タイムも楽しめるでしょう。また、雨の日でも浴室乾燥機を使えば、お洗濯も問題ありません。
通信設備面では、インターネットが無料で使えるので、月々の出費を抑えられるのも魅力です(別途工事等が必要な場合あり)。
建物にはエレベーターがついているので、重い荷物があっても安心。共用部には宅配ボックスが設定されているので、不在の時にも荷物を受け取ることができます。
このお部屋は2階以上に位置しているので、通行人や周囲の住人からの視線が気になりにくく、防犯面でも安心。建物のエントランスはオートロックがついており、インターホンにはTVモニタもついているため、相手の顔を確認してから来客対応することができます。
フローリングのお部屋なのでお掃除もラクラク。キッチンはシステムキッチン仕様になっていますので、お料理好きの方にもぴったり。バス・トイレは別なので、のんびりお風呂タイムも楽しめるでしょう。また、雨の日でも浴室乾燥機を使えば、お洗濯も問題ありません。
通信設備面では、インターネットが無料で使えるので、月々の出費を抑えられるのも魅力です(別途工事等が必要な場合あり)。
建物にはエレベーターがついているので、重い荷物があっても安心。共用部には宅配ボックスが設定されているので、不在の時にも荷物を受け取ることができます。
お金・契約の情報
※「-」と表示されているものは、実際は料金が発生するものもございます。詳細はお問い合わせください。
| 家賃 | 22.8万円 | 管理費・共益費 | 1万円 |
|---|---|---|---|
| 敷金 | 22.8万円 | 礼金 | 22.8万円 |
| 入居決定でお祝い金最大100,000円 | |||
| 保証金 | - | 償却・敷引 | - |
| 住宅保険料 | - | 更新料 | - |
| 保証会社利用 | 必須 | 保証会社名 | - |
| 保証会社費用 | - | 保証会社備考 | 保証会社利用必 初回保証料 賃料等合計額の50% (保証会社により変動あり) |
| 契約形態 | - | 契約期間 | - |
| 入居・引渡期間 | 即時 | 現況 | - |
| 契約備考 | 更新料 新賃料1.00ヶ月分 1LDK 普通借家2年 損保【要】 バストイレ別、バルコニー、エアコン、ガスコンロ対応、クロゼット、フローリング、TVインターホン、浴室乾燥機、オートロック、室内洗濯置、シューズボックス、システムキッチン、追焚機能浴室、エレベーター、駐輪場、宅配ボックス、光ファイバー、即入居可、3口以上コンロ、グリル付、保証人不要、敷金1ヶ月、ガスレンジ付、2沿線利用可、ネット使用料不要、保証金不要、電子キー、2駅利用可、3駅以上利用可、3沿線以上利用可、24時間ゴミ出し可、敷地内ごみ置き場、築5年以内、都市ガス、礼金1ヶ月、保証会社利用可 | ||
部屋の情報
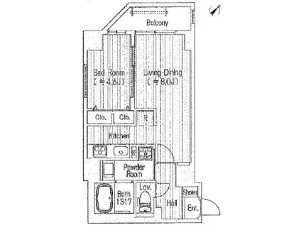
| 間取り | 1LDK | 専有面積 | 39.92m2 |
|---|---|---|---|
| 所在階 / 向き | 7階 / 北西 | バルコニー面積 | - |
| 水道 / ガス | - | ||
| 設備 | バス・トイレ別、2階以上、オートロック、テレビドアホン、宅配ボックス、浴室乾燥機、追い焚き、インターネット対応、システムキッチン、エアコン、エレベーター、バルコニー、フローリング、2口コンロ、コンロ:ガス、インターネット使用料無料、洗濯機:室内 | ||
| 当社物件ID | 158733001 | ||
建物の情報
| 建物名 | フラッツ美竹 | ||
|---|---|---|---|
| 所在地 | 東京都渋谷区渋谷 | ||
| 交通 | JR山手線 渋谷駅 徒歩11分 東急東横線 渋谷駅 徒歩11分 東京メトロ千代田線 表参道駅 徒歩12分 | ||
| 階数 | 9階建 | 総戸数 | - |
| 築年月 | 2021年01月 / 築5年 | エレベーター | あり |
| 駐車場 | なし | バイク置き場 | - |
| 駐輪場 | あり | 管理人/管理会社 | - |
| 周辺環境 | その他 まいばすけっと 神泉駅前店(スーパー)まで1516m その他 イルチェントロ表参道(ショッピングセンター)まで605m その他 セブンイレブン 渋谷神宮前5丁目店(コンビニ)まで641m その他 ドン・キホーテ環七方南町店(その他)まで5408m その他 平田薬局(ドラッグストア)まで1310m その他 東京メディサイトクリニック(病院)まで1525m | ||
| 建物種別 | マンション | 建物構造 | RC(鉄筋コンクリート) |
この部屋の取扱い不動産会社
| 会社名 | (株)ネクストライフエージェント(SUUMO経由) | ||
|---|---|---|---|
| 所在地 | 東京都新宿区新宿2-13-16 | 交通 | - |
| 営業時間 | 10:00-19:00 | 定休日 | 年末年始休暇 |
| 免許番号 | 東京都知事95274 | 取引態様 | 仲介 |
| 不動産会社管理番号 | 100455461327 | 当社管理番号 | 89 |
| 所属団体 | (公社)全日本不動産協会東京都本部会員 | ||
| 公正取引協議会 | (公社)首都圏不動産公正取引協議会加盟 | ||
| 取扱い物件情報 | 物件詳細へ | ||
※各種情報と現状に差異がある場合は、現状優先となります。問い合わせをすることで、より詳しい条件、情報を確認する事ができます。
提供:(株)ネクストライフエージェント(SUUMO経由)
この物件が気になったら掲載期限まであと10日
フラッツ美竹に条件(家賃・エリア)が近い物件一覧
| 写真 | 家賃 管理費等 | 敷金 礼金 | 間取り 専有面積 | 築年数 | 最寄り駅 所在地 | キープ | 詳細 |
|---|---|---|---|---|---|---|---|
マンション ウェルスクエア武蔵小山II(1LDK/2階) | |||||||
![]() | 22.5万円 1万円 | 22.5万円 なし | 1LDK 43.9m2 | 築1年 | 東急目黒線 武蔵小山駅 徒歩8分 東急目黒線 西小山駅 徒歩10分 東急池上線 荏原中延駅 徒歩14分 東京都品川区荏原 | 詳細を見る | |
マンション ブランシエスタ目黒中央町(2LDK/2階) | |||||||
![]() | 25.2万円 1.8万円 | 25.2万円 なし | 2LDK 52.72m2 | 築1年 | 東急東横線 学芸大学駅 徒歩11分 東急東横線 祐天寺駅 徒歩18分 東急目黒線 武蔵小山駅 徒歩22分 東京都目黒区中央町 | 詳細を見る | |
マンション GRANSITE NAKAMEGURO(1K/10階) | |||||||
![]() | 16.5万円 1万円 | 16.5万円 16.5万円 | 1K 26.27m2 | 築1年 | 東急東横線 中目黒駅 徒歩10分 東京メトロ日比谷線 中目黒駅 徒歩10分 東急田園都市線 池尻大橋駅 徒歩10分 東京都目黒区東山 | 詳細を見る | |
マンション ハイム江川(1LDK/4階) | |||||||
![]() | 15万円 なし | 15万円 15万円 | 1LDK 42m2 | 築47年 | 東京メトロ南北線 麻布十番駅 徒歩7分 東京メトロ日比谷線 広尾駅 徒歩16分 東京メトロ南北線 白金高輪駅 徒歩17分 東京都港区南麻布 | 詳細を見る | |
マンション レジディアタワー目黒不動前(2LDK/6階) | |||||||
![]() | 28.9万円 1.5万円 | 28.9万円 なし | 2LDK 55.33m2 | 築19年 | JR山手線 五反田駅 徒歩7分 東急目黒線 不動前駅 徒歩7分 東急池上線 大崎広小路駅 徒歩7分 東京都品川区西五反田 | 詳細を見る | |
マンション MAY FAIR(1K/7階) | |||||||
![]() | 14.8万円 6,900円 | なし 19.2万円 | 1K 29.81m2 | 築3年 | 東急田園都市線 池尻大橋駅 徒歩4分 京王電鉄井の頭線 神泉駅 徒歩12分 東京都目黒区大橋2丁目 | 詳細を見る | |
マンション リーガランド祐天寺(ワンルーム/1階) | |||||||
![]() | 13.8万円 1.1万円 | なし 13.8万円 | ワンルーム 22.01m2 | 築5年 | 東急東横線 祐天寺駅 徒歩8分 東急東横線 学芸大学駅 徒歩11分 東京メトロ日比谷線 中目黒駅 徒歩23分 東京都目黒区中央町 | 詳細を見る | |
マンション ベルファース芝浦タワー(1LDK/22階) | |||||||
![]() | 26.8万円 1.2万円 | 26.8万円 なし | 1LDK 53.8m2 | 築16年 | 京急本線 泉岳寺駅 徒歩13分 JR山手線 田町駅(東京) 徒歩13分 JR山手線 高輪ゲートウェイ駅 徒歩19分 東京都港区芝浦 | 詳細を見る | |









