賃貸マンション
メインステージ押上Ⅲの賃貸物件情報(1K/5階)
| 家賃 | 管理費等 | 敷金 | 礼金 | 間取り | 専有面積 |
|---|---|---|---|---|---|
| 10.9万円 | 1.5万円 | なし | 10.9万円 | 1K | 21.08m2 |
入居決定でお祝い金最大100,000円
- 保証金
- -
- 償却・敷引
- -
- 築年数
- 築18年
- 所在階
- 5階
- 向き
- 北東
- 交通
- 東武伊勢崎・大師線 とうきょうスカイツリー駅 徒歩3分
- 所在地
- 東京都墨田区向島1丁目
メインステージ押上Ⅲ
[地図を表示]
Point
まずはお問い合わせ!
不動産会社は街のプロ、あなたに合った物件がきっと見つかります。
提供:アパマンショップ東陽町店

詳細情報 メインステージ押上Ⅲ
物件紹介
メインステージ押上Ⅲは東武伊勢崎・大師線とうきょうスカイツリー駅から徒歩3分にあり、駅近で通勤通学に便利なマンションです。
このお部屋は2階以上に位置しているので、通行人や周囲の住人からの視線が気になりにくく、防犯面でも安心。建物のエントランスはオートロックがついており、インターホンにはTVモニタもついているため、相手の顔を確認してから来客対応することができます。
キッチンはシステムキッチン仕様になっていますので、お料理好きの方にもぴったり。バス・トイレは別なので、のんびりお風呂タイムも楽しめるでしょう。また、雨の日でも浴室乾燥機を使えば、お洗濯も問題ありません。
通信設備面では、インターネット接続が可能です。また、BSアンテナ・CSアンテナがありCATVにも対応しているので、おうち時間も充実するでしょう(別途工事、契約料が必要な場合あり)。
建物にはエレベーターがついているので、重い荷物があっても安心。共用部には宅配ボックスが設定されているので、不在の時にも荷物を受け取ることができます。
このお部屋は2階以上に位置しているので、通行人や周囲の住人からの視線が気になりにくく、防犯面でも安心。建物のエントランスはオートロックがついており、インターホンにはTVモニタもついているため、相手の顔を確認してから来客対応することができます。
キッチンはシステムキッチン仕様になっていますので、お料理好きの方にもぴったり。バス・トイレは別なので、のんびりお風呂タイムも楽しめるでしょう。また、雨の日でも浴室乾燥機を使えば、お洗濯も問題ありません。
通信設備面では、インターネット接続が可能です。また、BSアンテナ・CSアンテナがありCATVにも対応しているので、おうち時間も充実するでしょう(別途工事、契約料が必要な場合あり)。
建物にはエレベーターがついているので、重い荷物があっても安心。共用部には宅配ボックスが設定されているので、不在の時にも荷物を受け取ることができます。
お金・契約の情報
※「-」と表示されているものは、実際は料金が発生するものもございます。詳細はお問い合わせください。
| 家賃 | 10.9万円 | 管理費・共益費 | 1.5万円 |
|---|---|---|---|
| 敷金 | なし | 礼金 | 10.9万円 |
| 入居決定でお祝い金最大100,000円 | |||
| 保証金 | - | 償却・敷引 | - |
| 住宅保険料 | 1.6万円(2年) | 更新料 | - |
| 保証会社利用 | 必須 | 保証会社名 | エポス |
| 保証会社費用 | - | 保証会社備考 | 家賃総額より50%〜 |
| 契約形態 | - | 契約期間 | 2年 |
| 入居・引渡期間 | 2026年03月下旬 | 現況 | - |
| 契約備考 | ①短期解約違約金有(1年未満=1ヶ月、半年未満=2ヶ月)②エアコンクリーニング費用(1台あたり16,500円税込み・退去時請求) 鍵交換費用 29700円/AMLクラブサポート費 16500円、[退去時費用:ルームクリーニング費 49,500円 ※故意・過失等別途実費] | ||
部屋の情報
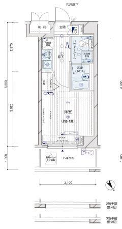
| 間取り | 1K | 専有面積 | 21.08m2 |
|---|---|---|---|
| 間取り詳細 | 洋室(6.4帖) | ||
| 所在階 / 向き | 5階 / 北東 | バルコニー面積 | - |
| 水道 / ガス | ガス【都市】 | ||
| 設備 | バス・トイレ別、オートロック、テレビドアホン、宅配ボックス、浴室乾燥機、光ファイバー対応、システムキッチン、エレベーター、温水洗浄便座、バルコニー、コンロ:ガス、CATV、CSアンテナ、BSアンテナ、シャワー、給湯、洗濯機:室内、タイル張り | ||
| 当社物件ID | 46192107 | ||
建物の情報
| 建物名 | メインステージ押上Ⅲ | ||
|---|---|---|---|
| 所在地 | 東京都墨田区向島1丁目 | ||
| 交通 | 東武伊勢崎・大師線 とうきょうスカイツリー駅 徒歩3分 | ||
| 階数 | 10階建 | 総戸数 | 43戸 |
| 築年月 | 2008年03月 / 築18年 | エレベーター | あり |
| 駐車場 | - | バイク置き場 | - |
| 駐輪場 | あり | 管理人/管理会社 | - |
| 周辺環境 | 小学校 二葉小学校 徒歩25分(1982m) 幼稚園 江東学園幼稚園 徒歩28分(2230m) 保育園 亀沢保育園 徒歩27分(2153m) その他 マルエツ錦糸町店 徒歩17分(1319m) その他 安田学園中学高等学校 徒歩28分(2161m) その他 マルエツ両国亀沢店 徒歩26分(2038m) その他 どらっぐぱぱす両国店 徒歩26分(2068m) その他 築地本願寺慈光院 徒歩28分(2230m) | ||
| 建物種別 | マンション | 建物構造 | RC(鉄筋コンクリート) |
この部屋の取扱い不動産会社
| 会社名 | アパマンショップ森下店 | ||
|---|---|---|---|
| 所在地 | 東京都江東区森下1丁目 16-10河田ビル1階 | 交通 | 東京都新宿線森下から徒歩1分 |
| 営業時間 | 10:00〜19:00 | 定休日 | - |
| 免許番号 | 東京都知事(4)89517 | 取引態様 | 仲介 |
| 不動産会社管理番号 | 88100213 | 当社管理番号 | 4 |
| 所属団体 | (公社)東京都宅地建物取引業協会 | ||
| 公正取引協議会 | (公社) 首都圏不動産公正取引協議会加盟 | ||
| 取扱い物件情報 | 物件詳細へ | ||
※各種情報と現状に差異がある場合は、現状優先となります。問い合わせをすることで、より詳しい条件、情報を確認する事ができます。
提供:アパマンショップ森下店
この物件が気になったら掲載期限まであと13日
メインステージ押上Ⅲに条件(家賃・エリア)が近い物件一覧
| 写真 | 家賃 管理費等 | 敷金 礼金 | 間取り 専有面積 | 築年数 | 最寄り駅 所在地 | キープ | 詳細 |
|---|---|---|---|---|---|---|---|
マンション ハイツ三原田(1K/5階) | |||||||
![]() | 7.3万円 5,000円 | 7.3万円 7.3万円 | 1K 26.41m2 | 築31年 | 東武伊勢崎・大師線 曳舟駅 徒歩5分 東京地下鉄半蔵門線 押上駅 徒歩9分 東京都浅草線 本所吾妻橋駅 徒歩10分 東京都墨田区向島3丁目 | 詳細を見る | |
マンション プレール・ドゥーク両国Ⅳ(1K/4階) | |||||||
![]() | 13.6万円 1.1万円 | なし 13.6万円 | 1K 25.35m2 | 築2年 | 東京都大江戸線 両国駅 徒歩3分 総武・中央緩行線 両国駅 徒歩7分 東京都新宿線 森下駅(東京) 徒歩11分 東京都墨田区緑1丁目 | 詳細を見る | |
マンション ドゥーエ曳舟2(1LDK/1階) | |||||||
![]() | 16.1万円 1万円 | なし なし | 1LDK 32.83m2 | 築1年 | 東武伊勢崎・大師線 曳舟駅 徒歩5分 京成電鉄押上線 京成曳舟駅 徒歩9分 東京都墨田区東向島1丁目 | 詳細を見る | |




