賃貸アパート
BLX HIRAIの賃貸物件情報(ワンルーム/1階)
| 家賃 | 管理費等 | 敷金 | 礼金 | 間取り | 専有面積 |
|---|---|---|---|---|---|
| 6.8万円 | 4,000円 | なし | 6.8万円 | ワンルーム | 12.46m2 |
入居決定でお祝い金最大100,000円
Point
まずはお問い合わせ!
不動産会社は街のプロ、あなたに合った物件がきっと見つかります。
提供:アパマンショップ門前仲町駅前店

詳細情報 BLX HIRAI
物件紹介
BLX HIRAIは総武・中央緩行線平井駅から徒歩10分にあり、駅近で通勤通学に便利なアパートです。
このお部屋のインターホンにはTVモニタがついているため、相手の顔を確認してから来客対応することができます。
おしゃれなデザイナーズ物件!人気の角部屋で周囲の居住者の生活音も気になりにくく、また、フローリングのお部屋なのでお掃除もラクラク。室内にはウォークインクローゼットがありますので、たくさんの荷物も効率的に収納ができます。キッチンはシステムキッチン仕様になっていますので、お料理好きの方にもぴったり。また、バス・トイレは別で、のんびりお風呂タイムも楽しめるでしょう。
通信設備面では、インターネットが無料で使えるので、月々の出費を抑えられるのも魅力です(別途工事等が必要な場合あり)。
共用部には宅配ボックスが設定されているので、不在の時にも荷物を受け取ることができます。
このお部屋のインターホンにはTVモニタがついているため、相手の顔を確認してから来客対応することができます。
おしゃれなデザイナーズ物件!人気の角部屋で周囲の居住者の生活音も気になりにくく、また、フローリングのお部屋なのでお掃除もラクラク。室内にはウォークインクローゼットがありますので、たくさんの荷物も効率的に収納ができます。キッチンはシステムキッチン仕様になっていますので、お料理好きの方にもぴったり。また、バス・トイレは別で、のんびりお風呂タイムも楽しめるでしょう。
通信設備面では、インターネットが無料で使えるので、月々の出費を抑えられるのも魅力です(別途工事等が必要な場合あり)。
共用部には宅配ボックスが設定されているので、不在の時にも荷物を受け取ることができます。
お金・契約の情報
※「-」と表示されているものは、実際は料金が発生するものもございます。詳細はお問い合わせください。
| 家賃 | 6.8万円 | 管理費・共益費 | 4,000円 |
|---|---|---|---|
| 敷金 | なし | 礼金 | 6.8万円 |
| 入居決定でお祝い金最大100,000円 | |||
| 保証金 | - | 償却・敷引 | - |
| 住宅保険料 | 2万円(2年) | 更新料 | - |
| 保証会社利用 | 必須 | 保証会社名 | シノケンコミュニケーションズ |
| 保証会社費用 | - | 保証会社備考 | 初回保証料 月額賃借料の30〜50% (最低保証料30,000円〜50,000円) 保証人有・無問わず、審査による |
| 契約形態 | - | 契約期間 | 2年 |
| 入居・引渡期間 | 相談 | 現況 | - |
| 契約備考 | 解約予告 2か月前短期解約違約金 ・1年未満、賃料2か月分 ・1年以上2年未満。賃料1か月分 インターネット開通 16500円/IOT登録 16500円/24時間サポート 19800円/契約事務手数料 11000円/除菌消臭 19800円/ハウスクリーニング 38500円 | ||
部屋の情報
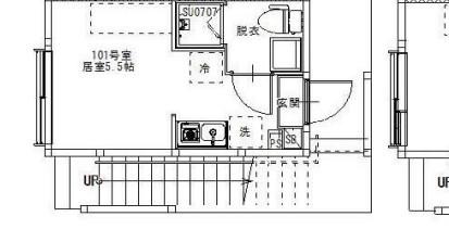
| 間取り | ワンルーム | 専有面積 | 12.46m2 |
|---|---|---|---|
| 所在階 / 向き | 1階 / 西 | バルコニー面積 | - |
| 水道 / ガス | ガス【都市】 | ||
| 設備 | バス・トイレ別、テレビドアホン、宅配ボックス、システムキッチン、温水洗浄便座、フローリング、ロフトあり、インターネット使用料無料、洗濯機:室内 | ||
| 当社物件ID | 160050029 | ||
建物の情報
| 建物名 | BLX HIRAI | ||
|---|---|---|---|
| 所在地 | 東京都江戸川区平井1丁目 | ||
| 交通 | 総武・中央緩行線 平井駅(東京) 徒歩10分 | ||
| 階数 | 2階建 | 総戸数 | - |
| 築年月 | 2025年12月 / 築1年 | エレベーター | - |
| 駐車場 | - | バイク置き場 | - |
| 駐輪場 | - | 管理人/管理会社 | - |
| 周辺環境 | その他 江戸川平井郵便局 徒歩7分(530m) その他 (株)東日本銀行/平井支店 徒歩9分(670m) その他 (株)みずほ銀行/平井支店 徒歩9分(708m) その他 平井駅 徒歩10分(785m) その他 西友平井店 徒歩12分(947m) その他 平井駅前郵便局 徒歩14分(1062m) その他 セブン−イレブン葛飾新小岩1丁目西店 徒歩31分(2465m) その他 ピカソ新小岩店 徒歩31分(2422m) | ||
| 建物種別 | アパート | 建物構造 | 木造 |
この部屋の取扱い不動産会社
| 会社名 | アパマンショップ亀戸店 | ||
|---|---|---|---|
| 所在地 | 東京都江東区亀戸5丁目 2-1カメヤビル401 | 交通 | 総武・中央緩行線亀戸から徒歩1分 |
| 営業時間 | 10:00〜19:00(毎週水曜日は定休となります。) | 定休日 | 水曜日 |
| 免許番号 | 国土交通大臣(5)6971 | 取引態様 | 仲介 |
| 不動産会社管理番号 | 111597722 | 当社管理番号 | 4 |
| 所属団体 | (公社)東京都宅地建物取引業協会 | ||
| 公正取引協議会 | (公社) 首都圏不動産公正取引協議会加盟 | ||
| 取扱い物件情報 | 物件詳細へ | ||
※各種情報と現状に差異がある場合は、現状優先となります。問い合わせをすることで、より詳しい条件、情報を確認する事ができます。
提供:アパマンショップ亀戸店
この物件が気になったら掲載期限まであと6日
BLX HIRAIに条件(家賃・エリア)が近い物件一覧
| 写真 | 家賃 管理費等 | 敷金 礼金 | 間取り 専有面積 | 築年数 | 最寄り駅 所在地 | キープ | 詳細 |
|---|---|---|---|---|---|---|---|
マンション GRANDE菊川(1K/5階) | |||||||
![]() | 10.8万円 1万円 | 10.8万円 10.8万円 | 1K 25.07m2 | 築7年 | 東京都新宿線 菊川駅(東京) 徒歩4分 東京都大江戸線 森下駅(東京) 徒歩10分 総武・中央緩行線 錦糸町駅 徒歩23分 東京都墨田区菊川2丁目 | 詳細を見る | |
マンション ヴィスタハウスNO5(ワンルーム/5階) | |||||||
![]() | 7.5万円 5,000円 | 7.5万円 7.5万円 | ワンルーム 17.15m2 | 築35年 | 東京都浅草線 押上駅 徒歩10分 東武伊勢崎・大師線 押上駅 徒歩10分 東京都墨田区業平2丁目 | 詳細を見る | |
マンション マイナビSTAYミライエ浅草リバータウン(1K/10階) | |||||||
![]() | 11万円 1.1万円 | なし 22万円 | 1K 22.06m2 | 築18年 | 東京地下鉄銀座線 浅草駅(東武・都営・メトロ) 徒歩5分 東京都浅草線 浅草駅(東武・都営・メトロ) 徒歩5分 東京都浅草線 本所吾妻橋駅 徒歩9分 東京都墨田区東駒形1丁目 | 詳細を見る | |
マンション ジュイールパルフェ平井(1K/1階) | |||||||
![]() | 8.7万円 1.5万円 | なし なし | 1K 25.93m2 | 築10年 | 総武・中央緩行線 平井駅(東京) 徒歩8分 東武鉄道亀戸線 東あずま駅 徒歩8分 東武鉄道亀戸線 小村井駅 徒歩8分 東京都墨田区立花6丁目 | 詳細を見る | |
アパート ハイム73(1K/2階) | |||||||
![]() | 6.5万円 3,000円 | 6.5万円 なし | 1K 19.87m2 | 築36年 | 京成電鉄本線 京成小岩駅 徒歩6分 総武・中央緩行線 小岩駅 徒歩9分 京成電鉄本線 江戸川駅 徒歩13分 東京都江戸川区北小岩2丁目 | 詳細を見る | |
マンション プレール・ドゥーク東京CANAL(1K/6階) | |||||||
![]() | 10.6万円 1.1万円 | なし 10.6万円 | 1K 22.34m2 | 築20年 | 京葉線 潮見駅 徒歩7分 東京地下鉄有楽町線 豊洲駅 徒歩22分 東京地下鉄東西線 木場駅 徒歩23分 東京都江東区枝川3丁目 | 詳細を見る | |
マンション コスモスパジオ東大島(ワンルーム/2階) | |||||||
![]() | 6.4万円 5,000円 | なし 6.4万円 | ワンルーム 20.32m2 | 築37年 | 都営新宿線 東大島駅 徒歩4分 都営新宿線 大島駅(東京) 徒歩13分 JR総武線 平井駅(東京) 徒歩26分 東京都江東区大島 | 詳細を見る | |







