賃貸マンション
BRILLIA有明 SKY TOWERの賃貸物件情報(3LDK/20階)
| 家賃 | 管理費等 | 敷金 | 礼金 | 間取り | 専有面積 |
|---|---|---|---|---|---|
| 48万円 | 2万円 | 96万円 | 48万円 | 3LDK | 93.55m2 |
入居決定でお祝い金最大100,000円
- 保証金
- -
- 償却・敷引
- -
- 築年数
- 築16年
- 所在階
- 20階
- 向き
- 南
Point
まずはお問い合わせ!
不動産会社は街のプロ、あなたに合った物件がきっと見つかります。
提供:(株)Lim estate(SUUMO経由)

詳細情報 BRILLIA有明 SKY TOWER
物件紹介
BRILLIA有明 SKY TOWERは新交通ゆりかもめ有明テニスの森駅から徒歩7分にあり、駅近で通勤通学に便利なマンションです。
このお部屋は2階以上に位置しているので、通行人や周囲の住人からの視線が気になりにくく、防犯面でも安心。建物のエントランスはオートロックがついており、インターホンにはTVモニタもついているため、相手の顔を確認してから来客対応することができます。
おしゃれなデザイナーズ物件!人気の南向き・フローリングのお部屋。角部屋でもあるため、周囲の居住者の生活音も気になりにくい場所です。室内にはウォークインクローゼットがありますので、たくさんの荷物も効率的に収納ができます。キッチンはシステムキッチン仕様になっていますので、お料理好きの方にもぴったり。バス・トイレは別なので、のんびりお風呂タイムも楽しめるでしょう。また、雨の日でも浴室乾燥機を使えば、お洗濯も問題ありません。
通信設備面では、インターネットが無料で使えるので、月々の出費を抑えられるのも魅力です。また、BSアンテナ・CSアンテナがありCATVにも対応しているので、おうち時間も充実するでしょう(別途工事、BS・CS・CATVの契約料等が必要な場合あり)。
床暖房があり、冬も足元から暖かく快適に過ごすことができます。建物にはエレベーターがついているので、重い荷物があっても安心。共用部には宅配ボックスが設定されているので、不在の時にも荷物を受け取ることができます。
このお部屋は2階以上に位置しているので、通行人や周囲の住人からの視線が気になりにくく、防犯面でも安心。建物のエントランスはオートロックがついており、インターホンにはTVモニタもついているため、相手の顔を確認してから来客対応することができます。
おしゃれなデザイナーズ物件!人気の南向き・フローリングのお部屋。角部屋でもあるため、周囲の居住者の生活音も気になりにくい場所です。室内にはウォークインクローゼットがありますので、たくさんの荷物も効率的に収納ができます。キッチンはシステムキッチン仕様になっていますので、お料理好きの方にもぴったり。バス・トイレは別なので、のんびりお風呂タイムも楽しめるでしょう。また、雨の日でも浴室乾燥機を使えば、お洗濯も問題ありません。
通信設備面では、インターネットが無料で使えるので、月々の出費を抑えられるのも魅力です。また、BSアンテナ・CSアンテナがありCATVにも対応しているので、おうち時間も充実するでしょう(別途工事、BS・CS・CATVの契約料等が必要な場合あり)。
床暖房があり、冬も足元から暖かく快適に過ごすことができます。建物にはエレベーターがついているので、重い荷物があっても安心。共用部には宅配ボックスが設定されているので、不在の時にも荷物を受け取ることができます。
お金・契約の情報
※「-」と表示されているものは、実際は料金が発生するものもございます。詳細はお問い合わせください。
| 家賃 | 48万円 | 管理費・共益費 | 2万円 |
|---|---|---|---|
| 敷金 | 96万円 | 礼金 | 48万円 |
| 入居決定でお祝い金最大100,000円 | |||
| 保証金 | - | 償却・敷引 | - |
| 住宅保険料 | - | 更新料 | - |
| 保証会社利用 | 必須 | 保証会社名 | - |
| 保証会社費用 | - | 保証会社備考 | 保証会社利用必 初年度委託料:賃料等合計額の50% |
| 契約形態 | - | 契約期間 | - |
| 入居・引渡期間 | 相談 | 現況 | - |
| 契約備考 | 常駐管理/※1年未満解約時賃料1ヶ月分の違約金有★同タイプ・別階の内観写真を掲載している場合があります。図面と現況が異なる場合は現況を優先いたします。 3LDK 事務所利用不可 普通借家2年 バストイレ別、バルコニー、エアコン、フローリング、TVインターホン、浴室乾燥機、オートロック、シューズボックス、システムキッチン、南向き、追焚機能浴室、角住戸、温水洗浄便座、エレベーター、洗面所独立、駐輪場、宅配ボックス、CATV、BS・CS、3口以上コンロ、対面式キッチン、防犯カメラ、IHクッキングヒーター、分譲賃貸、ウォークインクロゼット、保証人不要、東南角住戸、全居室フローリング、2面バルコニー、デザイナーズ、2沿線利用可、エアコン2台、CS、ネット使用料不要、床暖房、全室南向き、エアコン全室、エアコン3台、南面リビング、エレベーター2基、エアコン4台、耐火構造、全室東南向き、2駅利用可、3駅以上利用可、3沿線以上利用可、駅徒歩5分以内、駅徒歩10分以内、タワー型マンション、高層階、ゲストルーム、敷地内ごみ置き場、東南向き、セキュリティ会社加入済、都市ガス、南面バルコニー、シューズWIC、BS、IT重説対応物件、初期費用カード決済可 | ||
部屋の情報
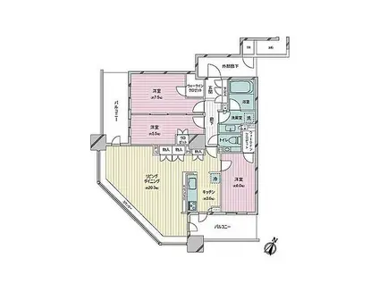
| 間取り | 3LDK | 専有面積 | 93.55m2 |
|---|---|---|---|
| 所在階 / 向き | 20階 / 南 | バルコニー面積 | 17m2 |
| 水道 / ガス | - | ||
| 設備 | バス・トイレ別、2階以上、オートロック、テレビドアホン、宅配ボックス、浴室乾燥機、ウォークインクローゼット、追い焚き、インターネット対応、システムキッチン、エアコン、エレベーター、温水洗浄便座、南向き、角部屋、バルコニー、フローリング、洗髪洗面化粧台、タワーマンション、床暖房、2口コンロ、コンロ:IH、デザイナーズ、CATV、CSアンテナ、BSアンテナ、インターネット使用料無料 | ||
| 当社物件ID | 145743862 | ||
建物の情報
| 建物名 | BRILLIA有明 SKY TOWER | ||
|---|---|---|---|
| 所在地 | 東京都江東区有明 | ||
| 交通 | 新交通ゆりかもめ 有明テニスの森駅 徒歩7分 りんかい線 国際展示場駅 徒歩7分 新交通ゆりかもめ 有明駅(東京) 徒歩9分 | ||
| 階数 | 地下1地上33階建 | 総戸数 | 600戸 |
| 築年月 | 2011年02月 / 築16年 | エレベーター | あり |
| 駐車場 | なし | バイク置き場 | - |
| 駐輪場 | あり | 管理人/管理会社 | - |
| 周辺環境 | その他 港区立にじのはし幼稚園(幼稚園・保育園)まで1280m その他 スーパー文化堂有明店(スーパー)まで17m その他 デイリーヤマザキ ブリリアマーレ有明店(コンビニ)まで159m その他 セブンイレブン FR有明店(コンビニ)まで702m その他 トモズ 有明ガーデン店(ドラッグストア)まで752m その他 お台場海浜公園前郵便局(郵便局)まで1073m | ||
| 建物種別 | マンション | 建物構造 | RC(鉄筋コンクリート) |
この部屋の取扱い不動産会社
| 会社名 | (株)Lim estate銀座店(SUUMO経由) | ||
|---|---|---|---|
| 所在地 | 東京都中央区銀座1-5-1 HOLON-GINZAII601 | 交通 | - |
| 営業時間 | 9:00~18:30 | 定休日 | - |
| 免許番号 | 東京都知事109763 | 取引態様 | 仲介 |
| 不動産会社管理番号 | 100486956172 | 当社管理番号 | 89 |
| 所属団体 | (公社)東京都宅地建物取引業協会会員 | ||
| 公正取引協議会 | (公社)首都圏不動産公正取引協議会加盟 | ||
| 取扱い物件情報 | 物件詳細へ | ||
※各種情報と現状に差異がある場合は、現状優先となります。問い合わせをすることで、より詳しい条件、情報を確認する事ができます。
提供:(株)Lim estate銀座店(SUUMO経由)
この物件が気になったら掲載期限まであと10日
BRILLIA有明 SKY TOWERに条件(家賃・エリア)が近い物件一覧
| 写真 | 家賃 管理費等 | 敷金 礼金 | 間取り 専有面積 | 築年数 | 最寄り駅 所在地 | キープ | 詳細 |
|---|---|---|---|---|---|---|---|
マンション ザ・クレストタワー(1LDK/20階) | |||||||
![]() | 29万円 1万円 | 29万円 29万円 | 1LDK 54.21m2 | 築22年 | 東京メトロ有楽町線 月島駅 徒歩5分 JR京葉線 越中島駅 徒歩13分 東京メトロ東西線 門前仲町駅 徒歩18分 東京都中央区佃 | 詳細を見る | |
マンション プラウド五反田(1LDK/15階) | |||||||
![]() | 32.5万円 1.5万円 | 32.5万円 32.5万円 | 1LDK 56.42m2 | 築3年 | JR山手線 五反田駅 徒歩5分 東急池上線 大崎広小路駅 徒歩6分 東急目黒線 不動前駅 徒歩10分 東京都品川区西五反田 | 詳細を見る | |
マンション LE UNDEUX南青山(2LDK/7階) | |||||||
![]() | 51万円 なし | 25.5万円 なし | 2LDK 78.29m2 | 築1年 | 東京メトロ銀座線 外苑前駅 徒歩5分 東京メトロ銀座線 表参道駅 徒歩10分 東京メトロ千代田線 乃木坂駅 徒歩15分 東京都港区南青山 | 詳細を見る | |
マンション パークタワー勝どきサウス(1SLDK/20階) | |||||||
![]() | 37.5万円 2万円 | 37.5万円 56.25万円 | 1SLDK 57.12m2 | 築3年 | 都営大江戸線 勝どき駅 徒歩5分 東京メトロ有楽町線 月島駅 徒歩18分 都営大江戸線 築地市場駅 徒歩21分 東京都中央区勝どき | 詳細を見る | |
マンション グランパークハイツ(2LDK/24階) | |||||||
![]() | 42.5万円 2.3万円 | 85万円 42.5万円 | 2LDK 78.53m2 | 築30年 | JR山手線 田町駅(東京) 徒歩4分 都営三田線 三田駅(東京) 徒歩6分 東京都港区芝浦 | 詳細を見る | |
マンション 品川Vタワー(1LDK/15階) | |||||||
![]() | 31万円 3万円 | 31万円 31万円 | 1LDK 53.01m2 | 築23年 | JR山手線 品川駅 徒歩6分 京急本線 北品川駅 徒歩7分 京急本線 新馬場駅 徒歩15分 東京都港区港南 | 詳細を見る | |
マンション 晴海アイランドトリトンスクエアビュータワー(3LDK/44階) | |||||||
![]() | 50万円 5万円 | 100万円 50万円 | 3LDK 98.27m2 | 築29年 | 都営大江戸線 月島駅 徒歩9分 東京メトロ有楽町線 月島駅 徒歩9分 都営大江戸線 勝どき駅 徒歩10分 東京都中央区晴海 | 詳細を見る | |
マンション プラウド虎ノ門(2LDK/17階) | |||||||
![]() | 49.8万円 なし | 49.8万円 49.8万円 | 2LDK 68.39m2 | 築7年 | 東京メトロ南北線 六本木一丁目駅 徒歩9分 東京メトロ銀座線 溜池山王駅 徒歩10分 東京都港区虎ノ門 | 詳細を見る | |








