賃貸マンション
ブランソワの賃貸物件情報(1LDK/1階)
| 家賃 | 管理費等 | 敷金 | 礼金 | 間取り | 専有面積 |
|---|---|---|---|---|---|
| 12.6万円 | 6,000円 | なし | 12.6万円 | 1LDK | 48.64m2 |
入居決定でお祝い金最大100,000円
- 保証金
- -
- 償却・敷引
- -
- 築年数
- 築4年
- 所在階
- 1階
- 向き
- 西
Point
積水ハウス施工ホテルライクの新築物件。オートロック完備。共用部はエレベーター、宅配ボックス付き。お気軽にお問い合わせくださいませ。
提供:シャーメゾンショップ (株)ハウスパートナー草加店(SUUMO経由)

詳細情報 ブランソワ
物件紹介
ブランソワは東武伊勢崎線草加駅から徒歩11分にあるマンションです。
建物のエントランスはオートロックがついており、インターホンにはTVモニタもついているため、相手の顔を確認してから来客対応することができます。
人気の角部屋で周囲の居住者の生活音も気になりにくく、また、フローリングのお部屋なのでお掃除もラクラク。キッチンはシステムキッチン仕様になっていますので、お料理好きの方にもぴったり。バス・トイレは別なので、のんびりお風呂タイムも楽しめるでしょう。また、雨の日でも浴室乾燥機を使えば、お洗濯も問題ありません。
通信設備面では、インターネットが無料で使えるので、月々の出費を抑えられるのも魅力です。また、BSアンテナ・CSアンテナもありますので、おうち時間も充実するでしょう(別途工事、BS・CSの契約料等が必要な場合あり)。
建物にはエレベーターがついているので、重い荷物があっても安心。共用部には宅配ボックスが設定されているので、不在の時にも荷物を受け取ることができます。
建物のエントランスはオートロックがついており、インターホンにはTVモニタもついているため、相手の顔を確認してから来客対応することができます。
人気の角部屋で周囲の居住者の生活音も気になりにくく、また、フローリングのお部屋なのでお掃除もラクラク。キッチンはシステムキッチン仕様になっていますので、お料理好きの方にもぴったり。バス・トイレは別なので、のんびりお風呂タイムも楽しめるでしょう。また、雨の日でも浴室乾燥機を使えば、お洗濯も問題ありません。
通信設備面では、インターネットが無料で使えるので、月々の出費を抑えられるのも魅力です。また、BSアンテナ・CSアンテナもありますので、おうち時間も充実するでしょう(別途工事、BS・CSの契約料等が必要な場合あり)。
建物にはエレベーターがついているので、重い荷物があっても安心。共用部には宅配ボックスが設定されているので、不在の時にも荷物を受け取ることができます。
お金・契約の情報
※「-」と表示されているものは、実際は料金が発生するものもございます。詳細はお問い合わせください。
| 家賃 | 12.6万円 | 管理費・共益費 | 6,000円 |
|---|---|---|---|
| 敷金 | なし | 礼金 | 12.6万円 |
| 入居決定でお祝い金最大100,000円 | |||
| 保証金 | - | 償却・敷引 | - |
| 住宅保険料 | - | 更新料 | - |
| 保証会社利用 | 必須 | 保証会社名 | - |
| 保証会社費用 | - | 保証会社備考 | 保証会社利用必 初回保証料33000円、月額保証料総賃料2%。 |
| 契約形態 | - | 契約期間 | - |
| 入居・引渡期間 | - | 現況 | - |
| 契約備考 | 安心サポート24 1320円(月額)。消毒料22000円。ハウスクリーニング代66500円。鍵交換費用16500円。 更新料新賃料(ヶ月):1.00ヶ月 1LDK 二人入居可 普通借家2年 損保【要】 バストイレ別、バルコニー、エアコン、クロゼット、フローリング、シャワー付洗面台、TVインターホン、浴室乾燥機、オートロック、室内洗濯置、シューズボックス、システムキッチン、追焚機能浴室、角住戸、温水洗浄便座、脱衣所、エレベーター、洗面所独立、駐輪場、宅配ボックス、光ファイバー、閑静な住宅地、BS・CS、敷金不要、3口以上コンロ、対面式キッチン、防犯カメラ、IHクッキングヒーター、グリル付、保証人不要、二人入居相談、防犯シャッター、ネット使用料不要、都市ガス、高速ネット対応、礼金1ヶ月、IT重説対応物件、初期費用カード決済可 入居日:'26年2月中旬 | ||
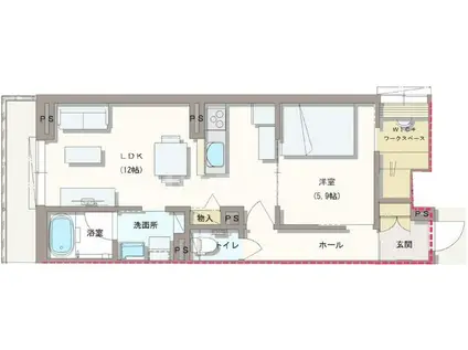
部屋の情報
| 間取り | 1LDK | 専有面積 | 48.64m2 |
|---|---|---|---|
| 所在階 / 向き | 1階 / 西 | バルコニー面積 | - |
| 水道 / ガス | - | ||
| 設備 | バス・トイレ別、オートロック、テレビドアホン、宅配ボックス、浴室乾燥機、追い焚き、インターネット対応、システムキッチン、エアコン、エレベーター、温水洗浄便座、角部屋、バルコニー、フローリング、洗髪洗面化粧台、2口コンロ、コンロ:IH、CSアンテナ、BSアンテナ、インターネット使用料無料、洗濯機:室内 | ||
| 当社物件ID | 121223038 | ||
建物の情報
| 建物名 | ブランソワ | ||
|---|---|---|---|
| 所在地 | 埼玉県草加市吉町 | ||
| 交通 | 東武伊勢崎線 草加駅 徒歩11分 東武伊勢崎線 谷塚駅 徒歩21分 つくばエクスプレス 八潮駅 バス乗車時間:22分 最寄りバス停で下車 徒歩7分 | ||
| 階数 | 3階建 | 総戸数 | 9戸 |
| 築年月 | 2022年09月 / 築4年 | エレベーター | あり |
| 駐車場 | なし | バイク置き場 | - |
| 駐輪場 | あり | 管理人/管理会社 | - |
| 周辺環境 | その他 ヨークマート草加店(スーパー)まで340m その他 セブンイレブン草加吉町1丁目店(コンビニ)まで270m その他 草加市立高砂小学校(小学校)まで100m その他 土谷メディカルクリニック(病院)まで1830m その他 草加市立あずま保育園(幼稚園・保育園)まで170m その他 花畑北駐在所(警察署・交番)まで2410m | ||
| 建物種別 | マンション | 建物構造 | 鉄骨造 |
この部屋の取扱い不動産会社
| 会社名 | シャーメゾンショップ (株)ハウスパートナー草加店(SUUMO経由) | ||
|---|---|---|---|
| 所在地 | 埼玉県草加市高砂2-18-52 清水ビル1階 | 交通 | - |
| 営業時間 | AM10:00~PM6:00 | 定休日 | 毎週水曜日 |
| 免許番号 | 国土交通大臣9556 | 取引態様 | 仲介 |
| 不動産会社管理番号 | 100479924450 | 当社管理番号 | 89 |
| 所属団体 | (公社)全日本不動産協会埼玉県本部会員 | ||
| 公正取引協議会 | (公社)首都圏不動産公正取引協議会加盟 | ||
| 取扱い物件情報 | 物件詳細へ | ||
※各種情報と現状に差異がある場合は、現状優先となります。問い合わせをすることで、より詳しい条件、情報を確認する事ができます。
提供:シャーメゾンショップ (株)ハウスパートナー草加店(SUUMO経由)
この物件が気になったら掲載期限まであと11日
ブランソワに条件(家賃・エリア)が近い物件一覧
| 写真 | 家賃 管理費等 | 敷金 礼金 | 間取り 専有面積 | 築年数 | 最寄り駅 所在地 | キープ | 詳細 |
|---|---|---|---|---|---|---|---|
アパート アウラ ラクース(1LDK/2階) | |||||||
![]() | 8.5万円 2,000円 | なし 8.5万円 | 1LDK 45.53m2 | 築10年 | JR武蔵野線 越谷レイクタウン駅 徒歩9分 JR武蔵野線 吉川駅 徒歩36分 東武伊勢崎線 新越谷駅 徒歩46分 埼玉県越谷市レイクタウン | 詳細を見る | |
マンション ロスマリーノ 東川口(2LDK/2階) | |||||||
![]() | 15.9万円 1.2万円 | なし 15.9万円 | 2LDK 66.26m2 | 築1年 | JR武蔵野線 東川口駅 徒歩12分 埼玉高速鉄道 戸塚安行駅 徒歩25分 埼玉高速鉄道 浦和美園駅 徒歩46分 埼玉県川口市 | 詳細を見る | |
マンション アルファコート蕨7(1K/5階) | |||||||
![]() | 8.6万円 1万円 | 8.6万円 なし | 1K 21.26m2 | 築2年 | JR京浜東北線 蕨駅 徒歩6分 埼玉県川口市芝新町 | 詳細を見る | |
一戸建て 東武伊勢崎・大師線 大袋駅 徒歩6分 築4年(4LDK) | |||||||
![]() | 18.2万円 なし | 18.2万円 18.2万円 | 4LDK 95.64m2 | 築4年 | 東武伊勢崎・大師線 大袋駅 徒歩6分 埼玉県越谷市大字下間久里 | 詳細を見る | |
アパート アムール(1LDK/1階) | |||||||
![]() | 10.5万円 7,000円 | なし 21万円 | 1LDK 41.95m2 | 築4年 | つくばエクスプレス 八潮駅 徒歩8分 埼玉県八潮市大字古新田 | 詳細を見る | |
マンション PJ TREE NEST(3LDK/4階) | |||||||
![]() | 19.1万円 1.3万円 | 19.1万円 19.1万円 | 3LDK 71.88m2 | 新築 | JR武蔵野線 南越谷駅 徒歩5分 東武伊勢崎線 新越谷駅 徒歩6分 東武伊勢崎線 越谷駅 徒歩19分 埼玉県越谷市南越谷 | 詳細を見る | |
アパート D-ROOM汐止(1LDK/1階) | |||||||
![]() | 9.9万円 7,000円 | なし 9.9万円 | 1LDK 41.95m2 | 築18年 | つくばエクスプレス 八潮駅 徒歩9分 埼玉県八潮市大字南川崎 | 詳細を見る | |
マンション グランディール西川口(3DK/2階) | |||||||
![]() | 11.5万円 1.5万円 | なし 11.5万円 | 3DK 60.9m2 | 築35年 | JR京浜東北線 西川口駅 徒歩15分 JR京浜東北線 川口駅 徒歩20分 JR埼京線 戸田公園駅 徒歩29分 埼玉県川口市西川口 | 詳細を見る | |









