賃貸マンション
セレッソコート芦屋中央公園の賃貸物件情報(3LDK/4階)
| 家賃 | 管理費等 | 敷金 | 礼金 | 間取り | 専有面積 |
|---|---|---|---|---|---|
| 13.8万円 | なし | 13.8万円 | 27.6万円 | 3LDK | 61.75m2 |
入居決定でお祝い金最大100,000円
Point
まずはお問い合わせ!
不動産会社は街のプロ、あなたに合った物件がきっと見つかります。
提供:(株)芦屋りぶす住宅販売(SUUMO経由)

詳細情報 セレッソコート芦屋中央公園
物件紹介
セレッソコート芦屋中央公園は阪神本線打出駅から徒歩15分にあるマンションです。
このお部屋は2階以上に位置しているので通行人や周囲の住人からの視線が気になりにくく、建物のエントランスはオートロックがついているので防犯性が高くなっています。
人気の南向き・フローリングのお部屋。角部屋でもあるため、周囲の居住者の生活音も気になりにくい場所です。キッチンはシステムキッチン仕様になっていますので、お料理好きの方にもぴったり。また、バス・トイレは別で、のんびりお風呂タイムも楽しめるでしょう。
建物にはエレベーターがついているので、重い荷物があっても安心。
このお部屋は2階以上に位置しているので通行人や周囲の住人からの視線が気になりにくく、建物のエントランスはオートロックがついているので防犯性が高くなっています。
人気の南向き・フローリングのお部屋。角部屋でもあるため、周囲の居住者の生活音も気になりにくい場所です。キッチンはシステムキッチン仕様になっていますので、お料理好きの方にもぴったり。また、バス・トイレは別で、のんびりお風呂タイムも楽しめるでしょう。
建物にはエレベーターがついているので、重い荷物があっても安心。
お金・契約の情報
※「-」と表示されているものは、実際は料金が発生するものもございます。詳細はお問い合わせください。
| 家賃 | 13.8万円 | 管理費・共益費 | なし |
|---|---|---|---|
| 敷金 | 13.8万円 | 礼金 | 27.6万円 |
| 入居決定でお祝い金最大100,000円 | |||
| 保証金 | - | 償却・敷引 | - |
| 住宅保険料 | - | 更新料 | - |
| 保証会社利用 | 必須 | 保証会社名 | - |
| 保証会社費用 | - | 保証会社備考 | 保証会社利用必 日本管理サポート株式会社(初回100%更新料あり) |
| 契約形態 | 定期借家 | 契約期間 | 3年 |
| 入居・引渡期間 | 相談 | 現況 | - |
| 契約備考 | 通勤管理/※現状有姿でのお引渡しとします。※定期賃貸借期間3年間とします。※短期解約不可・保証会社要加入※マンション管理規約を遵守するものとします。※鍵交換は、借主負担とします。※退去時ハウスクリーニング代7.7万円税込 退去時、ハウスクリーニング代7.7万円税込 3LDK 二人入居可/子供可 定期借家3年 損保【2万円2年】 バストイレ別、フローリング、オートロック、システムキッチン、角住戸、エレベーター、最上階、対面式キッチン、分譲賃貸、玄関ポーチ、東南向き、日勤管理、L字型バルコニー | ||
部屋の情報
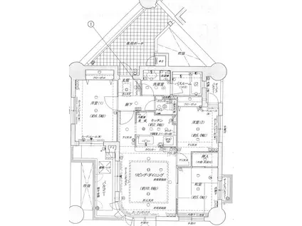
| 間取り | 3LDK | 専有面積 | 61.75m2 |
|---|---|---|---|
| 所在階 / 向き | 4階 / 東 | バルコニー面積 | - |
| 水道 / ガス | - | ||
| 設備 | バス・トイレ別、2階以上、オートロック、システムキッチン、エレベーター、南向き、角部屋、バルコニー、フローリング | ||
| 当社物件ID | 160252682 | ||
建物の情報
| 建物名 | セレッソコート芦屋中央公園 | ||
|---|---|---|---|
| 所在地 | 兵庫県芦屋市呉川町 | ||
| 交通 | 阪神本線 打出駅 徒歩15分 阪神本線 芦屋駅(阪神) 徒歩20分 | ||
| 階数 | 5階建 | 総戸数 | - |
| 築年月 | 2001年11月 / 築25年 | エレベーター | あり |
| 駐車場 | なし | バイク置き場 | - |
| 駐輪場 | - | 管理人/管理会社 | - |
| 周辺環境 | その他 コープ浜芦屋(スーパー)まで146m その他 スギ薬局芦屋呉川町店(ドラッグストア)まで211m その他 ライフ芦屋呉川町店(スーパー)まで287m その他 兵庫県立国際高校(高校・高専)まで524m その他 芦屋市立宮川小学校(小学校)まで878m その他 芦屋市立精道中学校(中学校)まで1229m | ||
| 建物種別 | マンション | 建物構造 | RC(鉄筋コンクリート) |
この部屋の取扱い不動産会社
| 会社名 | (株)芦屋りぶす住宅販売(SUUMO経由) | ||
|---|---|---|---|
| 所在地 | 兵庫県芦屋市浜町 2-13 フレーシュ芦屋1階 | 交通 | - |
| 営業時間 | - | 定休日 | - |
| 免許番号 | 兵庫県知事204703 | 取引態様 | 仲介 |
| 不動産会社管理番号 | 100484074257 | 当社管理番号 | 89 |
| 所属団体 | (一社)兵庫県宅地建物取引業協会会員 | ||
| 公正取引協議会 | (公社)近畿地区不動産公正取引協議会加盟 | ||
| 取扱い物件情報 | 物件詳細へ | ||
※各種情報と現状に差異がある場合は、現状優先となります。問い合わせをすることで、より詳しい条件、情報を確認する事ができます。
提供:(株)芦屋りぶす住宅販売(SUUMO経由)
この物件が気になったら掲載期限まであと1日
セレッソコート芦屋中央公園に条件(家賃・エリア)が近い物件一覧
| 写真 | 家賃 管理費等 | 敷金 礼金 | 間取り 専有面積 | 築年数 | 最寄り駅 所在地 | キープ | 詳細 |
|---|---|---|---|---|---|---|---|
マンション MICAELENOKURAKUEN(1LDK/3階) | |||||||
![]() | 12.6万円 なし | なし 25.2万円 | 1LDK 49.5m2 | 築1年 | 阪急甲陽線 苦楽園口駅 徒歩12分 阪急神戸線 夙川駅 徒歩20分 JR東海道本線 さくら夙川駅 徒歩28分 兵庫県西宮市樋之池町 | 詳細を見る | |
アパート プラーフ8(2DK/3階) | |||||||
![]() | 9.5万円 5,000円 | なし 20万円 | 2DK 40.99m2 | 築7年 | 山陽電鉄本線 大開駅 徒歩2分 地下鉄西神・山手線 上沢駅 徒歩6分 JR山陽本線 兵庫駅 徒歩7分 兵庫県神戸市兵庫区水木通 | 詳細を見る | |
マンション プレサンス三宮花時計前(1LDK/15階) | |||||||
![]() | 12.32万円 1.489万円 | 5万円 15万円 | 1LDK 38.15m2 | 築21年 | 阪急神戸線 神戸三宮駅(阪急) 徒歩6分 阪神本線 神戸三宮駅(阪神) 徒歩6分 JR東海道本線 三ノ宮駅(JR) 徒歩7分 兵庫県神戸市中央区八幡通 | 詳細を見る | |
マンション フォーラムノリタケ(2LDK/2階) | |||||||
![]() | 12.4万円 1万円 | 10万円 25万円 | 2LDK 61.9m2 | 築36年 | 東海道本線 住吉駅(JR・六甲ライナー) 徒歩9分 阪急電鉄神戸線 御影駅(阪急) 徒歩12分 兵庫県神戸市東灘区住吉本町3丁目 5-28 | 詳細を見る | |
アパート PISTA神戸板宿(1LDK/3階) | |||||||
![]() | 11.5万円 1万円 | なし なし | 1LDK 40.54m2 | 築1年 | 山陽電鉄本線 西代駅 徒歩3分 JR山陽本線 新長田駅 徒歩9分 山陽電鉄本線 板宿駅 徒歩10分 兵庫県神戸市長田区山下町 | 詳細を見る | |
マンション プレサンス新神戸(1LDK/12階) | |||||||
![]() | 11.651万円 1.949万円 | なし 15万円 | 1LDK 49.27m2 | 築25年 | 東海道・山陽新幹線 新神戸駅 徒歩8分 東海道本線 三ノ宮駅(JR) 徒歩13分 兵庫県神戸市中央区布引町2丁目 4-8 | 詳細を見る | |
マンション プレサンスKOBEグレンツ(1LDK/4階) | |||||||
![]() | 12.16万円 1.34万円 | なし 15万円 | 1LDK 46.22m2 | 築10年 | 神戸高速鉄道東西線 高速神戸駅 徒歩5分 JR東海道本線 神戸駅(兵庫) 徒歩10分 地下鉄西神・山手線 大倉山駅(兵庫) 徒歩15分 兵庫県神戸市兵庫区新開地 | 詳細を見る | |








