賃貸マンション
アルファステイツ神塩屋シーサイドテラスIIの賃貸物件情報(3LDK/1階)
| 家賃 | 管理費等 | 敷金 | 礼金 | 間取り | 専有面積 |
|---|---|---|---|---|---|
| 18.5万円 | なし | 18.5万円 | 18.5万円 | 3LDK | 82.59m2 |
入居決定でお祝い金最大100,000円
- 保証金
- -
- 償却・敷引
- -
- 築年数
- 築12年
- 所在階
- 1階
- 向き
- 南
Point
『オンライン内見・相談』ご対応可能です!現地待ち合わせにてご内覧頂く事も可能です!阪神間のお部屋探しは”KURAS”へお問い合わせ下さい!
提供:KURAS垂水店(株)StarLifes(SUUMO経由)

詳細情報 アルファステイツ神塩屋シーサイドテラスII
物件紹介
アルファステイツ神塩屋シーサイドテラスIIはJR山陽本線塩屋駅から徒歩3分にあり、駅近で通勤通学に便利なマンションです。
建物のエントランスはオートロックがついており、インターホンにはTVモニタもついているため、相手の顔を確認してから来客対応することができます。
人気の南向き・フローリングのお部屋。角部屋でもあるため、周囲の居住者の生活音も気になりにくい場所です。室内にはウォークインクローゼットがありますので、たくさんの荷物も効率的に収納ができます。バス・トイレ別の仕様で、のんびりお風呂タイムも楽しめます。また、浴室乾燥機を使えば、雨の日でもお洗濯は問題ありません。
通信設備面ではCATVに対応しているので、おうち時間も充実するでしょう(別途工事、契約料が必要な場合あり)。
建物にはエレベーターがついているので、重い荷物があっても安心。共用部には宅配ボックスが設定されているので、不在の時にも荷物を受け取ることができます。
建物のエントランスはオートロックがついており、インターホンにはTVモニタもついているため、相手の顔を確認してから来客対応することができます。
人気の南向き・フローリングのお部屋。角部屋でもあるため、周囲の居住者の生活音も気になりにくい場所です。室内にはウォークインクローゼットがありますので、たくさんの荷物も効率的に収納ができます。バス・トイレ別の仕様で、のんびりお風呂タイムも楽しめます。また、浴室乾燥機を使えば、雨の日でもお洗濯は問題ありません。
通信設備面ではCATVに対応しているので、おうち時間も充実するでしょう(別途工事、契約料が必要な場合あり)。
建物にはエレベーターがついているので、重い荷物があっても安心。共用部には宅配ボックスが設定されているので、不在の時にも荷物を受け取ることができます。
お金・契約の情報
※「-」と表示されているものは、実際は料金が発生するものもございます。詳細はお問い合わせください。
| 家賃 | 18.5万円 | 管理費・共益費 | なし |
|---|---|---|---|
| 敷金 | 18.5万円 | 礼金 | 18.5万円 |
| 入居決定でお祝い金最大100,000円 | |||
| 保証金 | - | 償却・敷引 | - |
| 住宅保険料 | - | 更新料 | - |
| 保証会社利用 | 必須 | 保証会社名 | - |
| 保証会社費用 | - | 保証会社備考 | 保証会社利用必 初回総賃料50% 80% |
| 契約形態 | - | 契約期間 | - |
| 入居・引渡期間 | - | 現況 | - |
| 契約備考 | 合計8.58万円(内訳:抗菌施工費用1.98万円鍵交換代6.6万円) ハッピーサポート 月額550円 3LDK 二人入居可/子供可 普通借家2年 損保【2.1万円2年】 バストイレ別、バルコニー、エアコン、ガスコンロ対応、クロゼット、フローリング、シャワー付洗面台、TVインターホン、浴室乾燥機、オートロック、室内洗濯置、陽当り良好、シューズボックス、南向き、追焚機能浴室、角住戸、温水洗浄便座、脱衣所、エレベーター、洗面所独立、洗面化粧台、駐輪場、宅配ボックス、CATV、閑静な住宅地、3口以上コンロ、対面式キッチン、防犯カメラ、全居室収納、グリル付、ウォークインクロゼット、二人入居相談、バイク置場、2沿線利用可、食器洗乾燥機、複層ガラス、クロゼット2ヶ所、平坦地、南面リビング、2駅利用可、3駅以上利用可、駅前、駅徒歩5分以内、駅徒歩10分以内、平面駐車場、リビングの隣和室、和室、都市ガス、洗面所にドア、ワイドバルコニー、南面バルコニー、2WAYバルコニー、玄関収納、保証会社利用可、IT重説対応物件、初期費用カード決済可、通風良好 入居日:'26年3月下旬 | ||
部屋の情報
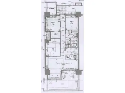
| 間取り | 3LDK | 専有面積 | 82.59m2 |
|---|---|---|---|
| 所在階 / 向き | 1階 / 南 | バルコニー面積 | - |
| 水道 / ガス | - | ||
| 設備 | バス・トイレ別、オートロック、テレビドアホン、宅配ボックス、浴室乾燥機、ウォークインクローゼット、追い焚き、エアコン、エレベーター、温水洗浄便座、南向き、角部屋、バルコニー、フローリング、洗髪洗面化粧台、2口コンロ、コンロ:ガス、CATV、洗濯機:室内 | ||
| 当社物件ID | 160469513 | ||
建物の情報
| 建物名 | アルファステイツ神塩屋シーサイドテラスII | ||
|---|---|---|---|
| 所在地 | 兵庫県神戸市垂水区塩屋町 | ||
| 交通 | JR山陽本線 塩屋駅(兵庫) 徒歩3分 山陽電鉄本線 山陽塩屋駅 徒歩3分 山陽電鉄本線 滝の茶屋駅 徒歩14分 | ||
| 階数 | 10階建 | 総戸数 | - |
| 築年月 | 2015年02月 / 築12年 | エレベーター | あり |
| 駐車場 | 空有 12500円 | バイク置き場 | あり |
| 駐輪場 | あり | 管理人/管理会社 | - |
| 周辺環境 | その他 幼保連携型認定こども園しおやこども園(その他)まで642m その他 神戸塩屋八郵便局(郵便局)まで953m その他 山田医院(病院)まで1107m その他 ローソン 神戸滝の茶屋店(コンビニ)まで1172m その他 MISUGIYA(ミスギヤ) 滝の茶屋店(スーパー)まで1267m その他 兵庫信用金庫滝の茶屋支店(銀行)まで1209m | ||
| 建物種別 | マンション | 建物構造 | RC(鉄筋コンクリート) |
この部屋の取扱い不動産会社
| 会社名 | KURAS垂水店(株)StarLifes(SUUMO経由) | ||
|---|---|---|---|
| 所在地 | 兵庫県神戸市垂水区神田町 2-40-603 | 交通 | - |
| 営業時間 | 9:30~19:00 | 定休日 | 水曜日 |
| 免許番号 | 兵庫県知事12247 | 取引態様 | 仲介 |
| 不動産会社管理番号 | 100490405713 | 当社管理番号 | 89 |
| 所属団体 | (公社)全日本不動産協会兵庫県本部会員 | ||
| 公正取引協議会 | (公社)近畿地区不動産公正取引協議会加盟 | ||
| 取扱い物件情報 | 物件詳細へ | ||
※各種情報と現状に差異がある場合は、現状優先となります。問い合わせをすることで、より詳しい条件、情報を確認する事ができます。
提供:KURAS垂水店(株)StarLifes(SUUMO経由)
この物件が気になったら掲載期限まであと10日
アルファステイツ神塩屋シーサイドテラスIIに条件(家賃・エリア)が近い物件一覧
| 写真 | 家賃 管理費等 | 敷金 礼金 | 間取り 専有面積 | 築年数 | 最寄り駅 所在地 | キープ | 詳細 |
|---|---|---|---|---|---|---|---|
マンション SEASIDE HOUSE(2LDK/1階) | |||||||
![]() | 11.5万円 9,500円 | 3万円 なし | 2LDK 61.1m2 | 新築 | 山陽電鉄本線 江井ケ島駅 徒歩9分 山陽電鉄本線 中八木駅 徒歩22分 JR山陽本線 大久保駅(兵庫) 徒歩29分 兵庫県明石市大久保町江井島 | 詳細を見る | |
アパート LA MAISON林崎(2LDK/2階) | |||||||
![]() | 12.5万円 7,000円 | 3万円 25万円 | 2LDK 58.68m2 | 築1年 | 山陽電気鉄道本線 林崎松江海岸駅 徒歩9分 山陽電気鉄道本線 西新町駅 徒歩12分 兵庫県明石市林崎1 | 詳細を見る | |
アパート シャーメゾンさくら大久保駅前(2LDK/4階) | |||||||
![]() | 13.9万円 1.05万円 | 3万円 なし | 2LDK 62.54m2 | 築3年 | JR山陽本線 大久保駅(兵庫) 徒歩2分 山陽電鉄本線 中八木駅 徒歩23分 山陽電鉄本線 江井ケ島駅 徒歩25分 兵庫県明石市大久保町駅前 | 詳細を見る | |
マンション LA FIORE(2LDK/1階) | |||||||
![]() | 11.3万円 5,000円 | 3万円 なし | 2LDK 63.04m2 | 築5年 | JR山陽本線 大久保駅(兵庫) 徒歩24分 山陽電鉄本線 中八木駅 徒歩35分 JR山陽本線 西明石駅 徒歩38分 兵庫県明石市大久保町松陰山手 | 詳細を見る | |
マンション SHAMAISON MIMOSA OKUBO(2LDK/1階) | |||||||
![]() | 13.6万円 9,500円 | 5万円 なし | 2LDK 64.75m2 | 築1年 | JR山陽本線 大久保駅(兵庫) 徒歩17分 山陽電鉄本線 中八木駅 徒歩35分 山陽電鉄本線 江井ケ島駅 徒歩41分 兵庫県明石市大久保町大窪 | 詳細を見る | |
一戸建て 山陽本線 魚住駅 徒歩25分 築40年(4SDK) | |||||||
![]() | 12万円 なし | なし 12万円 | 4SDK 86.95m2 | 築40年 | 山陽本線 魚住駅 徒歩25分 山陽本線 土山駅 徒歩28分 兵庫県加古郡稲美町六分一 | 詳細を見る | |
マンション フェリッツ上甲子園(2LDK/2階) | |||||||
![]() | 15万円 5,000円 | なし 30万円 | 2LDK 83.31m2 | 築29年 | 阪神電鉄本線 久寿川駅 徒歩12分 阪急電鉄今津線 阪神国道駅 徒歩15分 阪神電鉄本線 甲子園駅 徒歩16分 兵庫県西宮市上甲子園4丁目 | 詳細を見る | |
アパート D-ROOM沢野南(2LDK/2階) | |||||||
![]() | 13.1万円 6,500円 | 3万円 15万円 | 2LDK 65.63m2 | 築1年 | 山陽新幹線 西明石駅 徒歩22分 山陽電鉄本線 藤江駅 徒歩30分 兵庫県明石市沢野南町 | 詳細を見る | |








