賃貸一戸建て
伊豆箱根大雄山線 飯田岡駅 徒歩5分 1階建 築41年の賃貸物件情報(2DK)
| 家賃 | 管理費等 | 敷金 | 礼金 | 間取り | 専有面積 |
|---|---|---|---|---|---|
| 5.5万円 | なし | 5.5万円 | なし | 2DK | 39.7m2 |
入居決定でお祝い金最大100,000円
Point
多くの方にご好評をいただいている、清潔感のある賃貸物件です。
提供:ハウスコム西神奈川株式会社 小田原店

詳細情報 伊豆箱根大雄山線 飯田岡駅 徒歩5分 1階建 築41年
物件紹介
伊豆箱根大雄山線飯田岡駅から徒歩5分にあり、駅近で通勤通学に便利な一戸建てです。
人気の南向きのお部屋。バス・トイレ別の仕様で、のんびりお風呂タイムも楽しめます。
コンビニまで徒歩10分の場所にあり、日用品や食料品のお買い物にも便利です。
人気の南向きのお部屋。バス・トイレ別の仕様で、のんびりお風呂タイムも楽しめます。
コンビニまで徒歩10分の場所にあり、日用品や食料品のお買い物にも便利です。
お金・契約の情報
※「-」と表示されているものは、実際は料金が発生するものもございます。詳細はお問い合わせください。
| 家賃 | 5.5万円 | 管理費・共益費 | なし |
|---|---|---|---|
| 敷金 | 5.5万円 | 礼金 | なし |
| 入居決定でお祝い金最大100,000円 | |||
| 保証金 | - | 償却・敷引 | - |
| 住宅保険料 | 1円 | 更新料 | - |
| その他費用 | 24時間サポート:1.65万円、13200円: | ||
| 保証会社利用 | 必須 | 保証会社名 | ハウスリーブ |
| 保証会社費用 | - | 保証会社備考 | 初回保証料:月額総賃料の50% 月額保証料:月額総賃料の2.6% |
| 契約形態 | - | 契約期間 | 2年 |
| 入居・引渡期間 | 即時 | 現況 | - |
| 入居可能条件 | 事務所不可、2人入居可、楽器不可、ペット不可 | ||
| 契約備考 | 鍵交換代 20900円 初期:24時間サポート 16500円 エアコン、ガスコンロ、冷蔵庫、洗濯機残地物(設備保証なし) 鍵交換費用:20900 その他設備/条件:家賃・初期費用カード決済可、オートバス | ||
部屋の情報
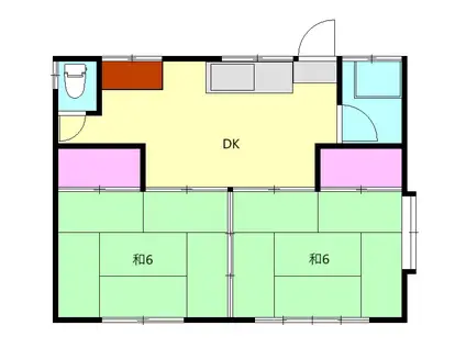
| 間取り | 2DK | 専有面積 | 39.7m2 |
|---|---|---|---|
| 間取り詳細 | 和室(6帖)、和室(6帖)、DK(6帖) | ||
| 所在階 / 向き | 1階 / 南 | バルコニー面積 | - |
| 水道 / ガス | 水道【公営】 | ||
| 設備 | バス・トイレ別、追い焚き、シャワー、給湯、出窓 | ||
| 当社物件ID | 159249202 | ||
建物の情報
| 建物名 | 伊豆箱根大雄山線 飯田岡駅 徒歩5分 1階建 築41年 | ||
|---|---|---|---|
| 所在地 | 神奈川県小田原市飯田岡 | ||
| 交通 | 伊豆箱根大雄山線 飯田岡駅 徒歩5分 小田急電鉄小田原線 富水駅 徒歩13分 | ||
| 階数 | 1階建 | 総戸数 | - |
| 築年月 | 1985年05月 / 築41年 | エレベーター | - |
| 駐車場 | 空有 3,000円/月 | バイク置き場 | - |
| 駐輪場 | - | 管理人/管理会社 | - |
| 周辺環境 | コンビニ 徒歩10分(740m) 販売店 徒歩13分(1027m) その他 ドラッグストア その他 公園 その他 銀行 その他 * | ||
| 建物種別 | 一戸建て | 建物構造 | 木造 |
この部屋の取扱い不動産会社
| 会社名 | ハウスコム西神奈川株式会社 小田原店 | ||
|---|---|---|---|
| 所在地 | 神奈川県小田原市8-38中戸川ビル1階 | 交通 | - |
| 営業時間 | 10:00~18:00 | 定休日 | - |
| 免許番号 | 神奈川県知事(1)第31770号 | 取引態様 | 仲介 |
| 不動産会社管理番号 | HC1-371039-4-0043 | 当社管理番号 | 468 |
| 所属団体 | 、 | ||
| 取扱い物件情報 | 物件詳細へ | ||
※各種情報と現状に差異がある場合は、現状優先となります。問い合わせをすることで、より詳しい条件、情報を確認する事ができます。
提供:ハウスコム西神奈川株式会社 小田原店
この物件が気になったら掲載期限まであと4日
伊豆箱根大雄山線 飯田岡駅 徒歩5分 1階建 築41年に条件(家賃・エリア)が近い物件一覧
| 写真 | 家賃 管理費等 | 敷金 礼金 | 間取り 専有面積 | 築年数 | 最寄り駅 所在地 | キープ | 詳細 |
|---|---|---|---|---|---|---|---|
マンション ソレアード国府津(3LDK/1階) | |||||||
![]() | 7.3万円 2,000円 | なし なし | 3LDK 64.6m2 | 築34年 | 東海道本線 国府津駅 徒歩15分 神奈川県小田原市国府津 | 詳細を見る | |
マンション 興津ハイツ(3DK/2階) | |||||||
![]() | 5.6万円 3,000円 | なし なし | 3DK 52.2m2 | 築39年 | 小田急電鉄小田原線 足柄駅(神奈川) 徒歩11分 神奈川県小田原市久野 | 詳細を見る | |
アパート SING WITH ME(1LDK/1階) | |||||||
![]() | 6.4万円 3,700円 | なし 6.4万円 | 1LDK 33.52m2 | 新築 | 小田急電鉄小田原線 富水駅 徒歩6分 伊豆箱根大雄山線 飯田岡駅 徒歩14分 神奈川県小田原市飯田岡 | 詳細を見る | |
マンション 小田原市田島マンション工事(1K/3階) | |||||||
![]() | 6.79万円 4,000円 | 6.79万円 6.79万円 | 1K 28.98m2 | 新築 | JR東海道本線 国府津駅 徒歩24分 JR東海道本線 鴨宮駅 徒歩39分 神奈川県小田原市田島 | 詳細を見る | |
マンション ヴィガラス栄町(1K/1階) | |||||||
![]() | 6.5万円 5,000円 | 6.5万円 6.5万円 | 1K 25.02m2 | 築8年 | JR東海道本線 小田原駅 徒歩7分 小田急小田原線 小田原駅 徒歩8分 東海道新幹線 小田原駅 徒歩9分 神奈川県小田原市栄町 | 詳細を見る | |
マンション コーポラス華(ワンルーム/2階) | |||||||
![]() | 4.8万円 2,000円 | 4.8万円 なし | ワンルーム 22.32m2 | 築33年 | 箱根登山鉄道 箱根板橋駅 徒歩5分 JR東海道本線 早川駅 徒歩12分 神奈川県小田原市早川 | 詳細を見る | |
アパート タキモトハイム(1K/1階) | |||||||
![]() | 4.6万円 2,000円 | 4.6万円 なし | 1K 23.77m2 | 築45年 | 伊豆箱根大雄山線 緑町駅 徒歩4分 JR東海道本線 小田原駅 徒歩9分 小田急小田原線 足柄駅(神奈川) 徒歩25分 神奈川県小田原市栄町 | 詳細を見る | |
アパート セリーン A(2LDK/2階) | |||||||
![]() | 6.8万円 2,800円 | なし 10.2万円 | 2LDK 58.7m2 | 築13年 | JR御殿場線 下曽我駅 徒歩12分 神奈川県小田原市千代 | 詳細を見る | |









