賃貸マンション
ハーモニーレジデンス品川高輪の賃貸物件情報(1K/4階)
| 家賃 | 管理費等 | 敷金 | 礼金 | 間取り | 専有面積 |
|---|---|---|---|---|---|
| 13.6万円 | 1.2万円 | 13.6万円 | 13.6万円 | 1K | 25.98m2 |
入居決定でお祝い金最大100,000円
Point
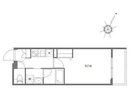
収納はクロゼット・シューズボックスなど豊富なので、衣類や履き物の整理がしやすく便利です。
提供:(株)LOHOUSE三田店(SUUMO経由)

詳細情報 ハーモニーレジデンス品川高輪
物件紹介
ハーモニーレジデンス品川高輪はJR山手線品川駅から徒歩9分にあり、駅近で通勤通学に便利なマンションです。
このお部屋は2階以上に位置しているので、通行人や周囲の住人からの視線が気になりにくく、防犯面でも安心。建物のエントランスはオートロックがついており、インターホンにはTVモニタもついているため、相手の顔を確認してから来客対応することができます。
おしゃれなデザイナーズ物件!人気の角部屋で周囲の居住者の生活音も気になりにくく、また、フローリングのお部屋なのでお掃除もラクラク。キッチンはシステムキッチン仕様になっていますので、お料理好きの方にもぴったり。バス・トイレは別なので、のんびりお風呂タイムも楽しめるでしょう。また、雨の日でも浴室乾燥機を使えば、お洗濯も問題ありません。
通信設備面では、インターネット接続が可能です。また、BSアンテナ・CSアンテナもありますので、おうち時間も充実するでしょう(別途工事、契約料が必要な場合あり)。
建物にはエレベーターがついているので、重い荷物があっても安心。共用部には宅配ボックスが設定されているので、不在の時にも荷物を受け取ることができます。また、ペット飼育の相談ができますので、あなたの大切な家族の一員も快適に暮らせるか、ぜひ確認してみてください。
コンビニまで徒歩12分の場所にあり、日用品や食料品のお買い物にも便利です。
このお部屋は2階以上に位置しているので、通行人や周囲の住人からの視線が気になりにくく、防犯面でも安心。建物のエントランスはオートロックがついており、インターホンにはTVモニタもついているため、相手の顔を確認してから来客対応することができます。
おしゃれなデザイナーズ物件!人気の角部屋で周囲の居住者の生活音も気になりにくく、また、フローリングのお部屋なのでお掃除もラクラク。キッチンはシステムキッチン仕様になっていますので、お料理好きの方にもぴったり。バス・トイレは別なので、のんびりお風呂タイムも楽しめるでしょう。また、雨の日でも浴室乾燥機を使えば、お洗濯も問題ありません。
通信設備面では、インターネット接続が可能です。また、BSアンテナ・CSアンテナもありますので、おうち時間も充実するでしょう(別途工事、契約料が必要な場合あり)。
建物にはエレベーターがついているので、重い荷物があっても安心。共用部には宅配ボックスが設定されているので、不在の時にも荷物を受け取ることができます。また、ペット飼育の相談ができますので、あなたの大切な家族の一員も快適に暮らせるか、ぜひ確認してみてください。
コンビニまで徒歩12分の場所にあり、日用品や食料品のお買い物にも便利です。
お金・契約の情報
※「-」と表示されているものは、実際は料金が発生するものもございます。詳細はお問い合わせください。
| 家賃 | 13.6万円 | 管理費・共益費 | 1.2万円 |
|---|---|---|---|
| 敷金 | 13.6万円 | 礼金 | 13.6万円 |
| 入居決定でお祝い金最大100,000円 | |||
| 保証金 | - | 償却・敷引 | - |
| 住宅保険料 | 1円 | 更新料 | - |
| その他費用 | プレミアデスク(税込/2年):2.2万円 | ||
| 保証会社利用 | 必須 | 保証会社名 | - |
| 保証会社費用 | - | 保証会社備考 | 【シノケン】月額総賃料の50%(最低保証料5万円)/次年度以降10000円※引落とし手数料660円 |
| 契約形態 | - | 契約期間 | 2年 |
| 入居・引渡期間 | 即時 | 現況 | - |
| 入居可能条件 | 事務所不可、楽器不可、ペット可 | ||
| 契約備考 | 短期解約違約金:1年未満2カ月 PET飼育時 礼金1ヶ月プラス(小型犬or猫1匹まで) 個別契約 フレッツ光 鍵交換費用:38500 その他設備/条件:室内洗濯機置き場、ごみ出し24時間OK、独立洗面台、防犯カメラ、クローゼット、シューズボックス、分譲賃貸 | ||
部屋の情報
| 間取り | 1K | 専有面積 | 25.98m2 |
|---|---|---|---|
| 間取り詳細 | 洋室(7.8帖)、K(2帖) | ||
| 所在階 / 向き | 4階 / 東 | バルコニー面積 | - |
| 水道 / ガス | 水道【公営】、ガス【プロパン】 | ||
| 設備 | バス・トイレ別、オートロック、テレビドアホン、宅配ボックス、浴室乾燥機、インターネット対応、システムキッチン、エアコン、エレベーター、温水洗浄便座、角部屋、バルコニー、フローリング、2口コンロ、コンロ:ガス、デザイナーズ、CSアンテナ、BSアンテナ、シャワー、給湯 | ||
| 当社物件ID | 25089762 | ||
建物の情報
| 建物名 | ハーモニーレジデンス品川高輪 | ||
|---|---|---|---|
| 所在地 | 東京都港区高輪4丁目 | ||
| 交通 | 山手線 品川駅 徒歩9分 京浜急行電鉄本線 北品川駅 徒歩11分 | ||
| 階数 | 地下1地上4階建 | 総戸数 | 29戸 |
| 築年月 | 2017年08月 / 築9年 | エレベーター | あり |
| 駐車場 | ご確認ください | バイク置き場 | - |
| 駐輪場 | あり | 管理人/管理会社 | - |
| 周辺環境 | コンビニ 徒歩12分(956m) 販売店 徒歩21分(1650m) その他 ドラッグストア その他 公園 その他 銀行 その他 * | ||
| 建物種別 | マンション | 建物構造 | RC(鉄筋コンクリート) |
この部屋の取扱い不動産会社
| 会社名 | ハウスコム西東京株式会社 渋谷店 | ||
|---|---|---|---|
| 所在地 | 東京都渋谷区30-4玉久ビル6階 | 交通 | - |
| 営業時間 | 10:00~18:00 | 定休日 | - |
| 免許番号 | 東京都知事(1)第108225号 | 取引態様 | 仲介 |
| 不動産会社管理番号 | HC5-3575059-404-0271 | 当社管理番号 | 468 |
| 所属団体 | 、 | ||
| 取扱い物件情報 | 物件詳細へ | ||
※各種情報と現状に差異がある場合は、現状優先となります。問い合わせをすることで、より詳しい条件、情報を確認する事ができます。
提供:ハウスコム西東京株式会社 渋谷店
この物件が気になったら掲載期限まであと4日
ハーモニーレジデンス品川高輪に条件(家賃・エリア)が近い物件一覧
| 写真 | 家賃 管理費等 | 敷金 礼金 | 間取り 専有面積 | 築年数 | 最寄り駅 所在地 | キープ | 詳細 |
|---|---|---|---|---|---|---|---|
マンション フロリス オーランティウム3(ワンルーム/5階) | |||||||
![]() | 18.2万円 1.1万円 | なし 18.2万円 | ワンルーム 45.6m2 | 築55年 | 都営大江戸線 月島駅 徒歩2分 都営大江戸線 勝どき駅 徒歩7分 東京メトロ日比谷線 築地駅 徒歩21分 東京都中央区月島 | 詳細を見る | |
マンション VERONA錦糸町(1K/2階) | |||||||
![]() | 8.3万円 1万円 | 8.3万円 8.3万円 | 1K 20.29m2 | 築21年 | 東京地下鉄半蔵門線 錦糸町駅 徒歩9分 東武鉄道亀戸線 亀戸駅 徒歩10分 総武・中央緩行線 亀戸駅 徒歩10分 東京都江東区亀戸1丁目 | 詳細を見る | |
マンション グランド・ガーラ銀座(1K/7階) | |||||||
![]() | 11.8万円 1.2万円 | 11.8万円 11.8万円 | 1K 25.09m2 | 築19年 | 東京地下鉄有楽町線 新富町駅(東京) 徒歩2分 東京地下鉄日比谷線 東銀座駅 徒歩5分 東京地下鉄銀座線 銀座駅 徒歩8分 東京都中央区銀座1丁目 | 詳細を見る | |
マンション メゾン・ド・ヴィレ 日本橋浜町(1K/4階) | |||||||
![]() | 9.6万円 1万円 | 9.6万円 9.6万円 | 1K 25.56m2 | 築28年 | 東京都新宿線 浜町駅 徒歩4分 東京地下鉄半蔵門線 水天宮前駅 徒歩6分 東京地下鉄日比谷線 人形町駅 徒歩9分 東京都中央区日本橋浜町2丁目 | 詳細を見る | |
マンション ベルファース神田神保町(1DK/8階) | |||||||
![]() | 17.7万円 1万円 | 17.7万円 なし | 1DK 25.05m2 | 築2年 | 東京地下鉄半蔵門線 神保町駅 徒歩4分 東京都三田線 神保町駅 徒歩4分 総武・中央緩行線 水道橋駅 徒歩8分 東京都千代田区神田神保町1丁目 | 詳細を見る | |
マンション ヴェルト西大島グラーセ(1K/12階) | |||||||
![]() | 8.9万円 1万円 | 8.9万円 8.9万円 | 1K 23.52m2 | 築19年 | 東京都新宿線 西大島駅 徒歩7分 総武・中央緩行線 亀戸駅 徒歩16分 東京地下鉄半蔵門線 住吉駅(東京) 徒歩20分 東京都江東区北砂3丁目 | 詳細を見る | |
マンション パティオ神田(1K/5階) | |||||||
![]() | 12.4万円 1.5万円 | なし なし | 1K 25.07m2 | 築12年 | 東京都新宿線 岩本町駅 徒歩4分 山手線 神田駅(東京) 徒歩6分 山手線 秋葉原駅 徒歩9分 東京都千代田区岩本町2丁目 | 詳細を見る | |
マンション プラウドフラット月島アベニュー(1K/7階) | |||||||
![]() | 14.2万円 1万円 | 14.2万円 14.2万円 | 1K 25.11m2 | 築4年 | 東京地下鉄有楽町線 月島駅 徒歩4分 東京都大江戸線 月島駅 徒歩4分 東京都大江戸線 勝どき駅 徒歩8分 東京都中央区月島3丁目 | 詳細を見る | |








