賃貸一戸建て
西日本鉄道貝塚線 香椎花園前駅 徒歩4分 2階建 築19年の賃貸物件情報(3SLDK)
| 家賃 | 管理費等 | 敷金 | 礼金 | 間取り | 専有面積 |
|---|---|---|---|---|---|
| 13.5万円 | なし | 27万円 | 27万円 | 3SLDK | 107.52m2 |
入居決定でお祝い金最大100,000円
Point
大変問い合わせの多い物件となります!まずはお電話ください!!
提供:アパマンショップ古賀店

詳細情報 西日本鉄道貝塚線 香椎花園前駅 徒歩4分 2階建 築19年
物件紹介
西日本鉄道貝塚線香椎花園前駅から徒歩4分にあり、駅近で通勤通学に便利な一戸建てです。
このお部屋のインターホンにはTVモニタがついているため、相手の顔を確認してから来客対応することができます。
人気の角部屋で周囲の居住者の生活音も気になりにくく、また、フローリングのお部屋なのでお掃除もラクラク。室内にはウォークインクローゼットがありますので、たくさんの荷物も効率的に収納ができます。キッチンはシステムキッチン仕様になっていますので、お料理好きの方にもぴったり。また、バス・トイレは別で、のんびりお風呂タイムも楽しめるでしょう。
通信設備面では、インターネット接続が可能です(別途工事、契約料が必要な場合あり)。
床暖房があり、冬も足元から暖かく快適に過ごすことができます。
このお部屋のインターホンにはTVモニタがついているため、相手の顔を確認してから来客対応することができます。
人気の角部屋で周囲の居住者の生活音も気になりにくく、また、フローリングのお部屋なのでお掃除もラクラク。室内にはウォークインクローゼットがありますので、たくさんの荷物も効率的に収納ができます。キッチンはシステムキッチン仕様になっていますので、お料理好きの方にもぴったり。また、バス・トイレは別で、のんびりお風呂タイムも楽しめるでしょう。
通信設備面では、インターネット接続が可能です(別途工事、契約料が必要な場合あり)。
床暖房があり、冬も足元から暖かく快適に過ごすことができます。
お金・契約の情報
※「-」と表示されているものは、実際は料金が発生するものもございます。詳細はお問い合わせください。
| 家賃 | 13.5万円 | 管理費・共益費 | なし |
|---|---|---|---|
| 敷金 | 27万円 | 礼金 | 27万円 |
| 入居決定でお祝い金最大100,000円 | |||
| 保証金 | - | 償却・敷引 | - |
| 住宅保険料 | 2.5万円(2年) | 更新料 | - |
| 保証会社利用 | 必須 | 保証会社名 | ふれんず宅建保証 |
| 保証会社費用 | - | 保証会社備考 | 初回50%〜 |
| 契約形態 | - | 契約期間 | 2年 |
| 入居・引渡期間 | 相談 | 現況 | - |
| 入居可能条件 | 2人入居可 | ||
| 契約備考 | 貸主意向により原則法人契約希望 | ||
部屋の情報
| 間取り | 3SLDK | 専有面積 | 107.52m2 |
|---|---|---|---|
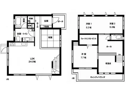
| 間取り詳細 | LDK(24帖)、洋室(10.4帖)、洋室(7.7帖)、和室(4.5帖) | ||
| 所在階 / 向き | 1階 / - | バルコニー面積 | - |
| 水道 / ガス | ガス【都市】 | ||
| 設備 | バス・トイレ別、テレビドアホン、ウォークインクローゼット、追い焚き、インターネット対応、システムキッチン、温水洗浄便座、角部屋、バルコニー、フローリング、床暖房、コンロ:ガス、シャワー、専用庭、給湯、冷房、洗濯機:室内、タイル張り、閑静な住宅街 | ||
| 当社物件ID | 3497180 | ||
建物の情報
| 建物名 | 西日本鉄道貝塚線 香椎花園前駅 徒歩4分 2階建 築19年 | ||
|---|---|---|---|
| 所在地 | 福岡県福岡市東区香住ヶ丘6丁目 | ||
| 交通 | 西日本鉄道貝塚線 香椎花園前駅 徒歩4分 | ||
| 階数 | 2階建 | 総戸数 | - |
| 築年月 | 2007年12月 / 築19年 | エレベーター | - |
| 駐車場 | 空有 駐車場2台無料 | バイク置き場 | あり |
| 駐輪場 | あり | 管理人/管理会社 | - |
| 周辺環境 | 中学校 福岡市立中学校香椎第二中学校 徒歩12分(910m) 小学校 福岡市立小学校香住丘小学校 徒歩11分(812m) 保育園 香住ケ丘保育園 徒歩12分(890m) その他 福岡香住ケ丘郵便局 徒歩4分(264m) その他 香住ヶ丘交番 徒歩4分(245m) その他 香椎花園前駅 徒歩4分(263m) その他 にしてつストア香椎花園店 徒歩4分(284m) その他 福岡県立香住ケ丘高校 徒歩7分(486m) | ||
| 建物種別 | 一戸建て | 建物構造 | 軽量鉄骨造 |
この部屋の取扱い不動産会社
| 会社名 | アパマンショップ古賀店 | ||
|---|---|---|---|
| 所在地 | 福岡県古賀市天神1丁目 3-1 | 交通 | 鹿児島本線古賀から徒歩2分 |
| 営業時間 | 09:30〜18:00 | 定休日 | - |
| 免許番号 | 国土交通大臣(3)8462 | 取引態様 | 仲介 |
| 不動産会社管理番号 | 51860842 | 当社管理番号 | 4 |
| 所属団体 | (公社)全日本不動産協会福岡県本部 | ||
| 公正取引協議会 | (一社) 九州不動産公正取引協議会加盟 | ||
| 取扱い物件情報 | 物件詳細へ | ||
※各種情報と現状に差異がある場合は、現状優先となります。問い合わせをすることで、より詳しい条件、情報を確認する事ができます。
提供:アパマンショップ古賀店
この物件が気になったら掲載期限まであと6日
西日本鉄道貝塚線 香椎花園前駅 徒歩4分 2階建 築19年に条件(家賃・エリア)が近い物件一覧
| 写真 | 家賃 管理費等 | 敷金 礼金 | 間取り 専有面積 | 築年数 | 最寄り駅 所在地 | キープ | 詳細 |
|---|---|---|---|---|---|---|---|
マンション アーバンセオリーズ(2LDK/4階) | |||||||
![]() | 12.5万円 なし | なし 12.5万円 | 2LDK 73.75m2 | 築14年 | 西鉄天神大牟田線 春日原駅 徒歩3分 JR鹿児島本線 春日駅(福岡) 徒歩8分 JR鹿児島本線 南福岡駅 徒歩20分 福岡県春日市春日原北町 | 詳細を見る | |
マンション ローリエ春日(4LDK/4階) | |||||||
![]() | 12.5万円 6,000円 | 25万円 12.5万円 | 4LDK 93.8m2 | 築34年 | 西鉄天神大牟田線 白木原駅 徒歩26分 JR鹿児島本線 大野城駅 徒歩27分 JR鹿児島本線 水城駅 徒歩27分 福岡県春日市 | 詳細を見る | |
マンション コアマンション春日大谷Ⅱ(4LDK/3階) | |||||||
![]() | 10.5万円 なし | なし 21万円 | 4LDK 85.75m2 | 築29年 | 博多南線 博多南駅 徒歩28分 鹿児島本線 南福岡駅 徒歩30分 鹿児島本線 春日駅(福岡) 徒歩31分 福岡県春日市大谷3丁目 | 詳細を見る | |
マンション ZIP春日公園(2LDK/6階) | |||||||
![]() | 9.9万円 6,000円 | なし 19.8万円 | 2LDK 50.76m2 | 築1年 | 鹿児島本線 春日駅(福岡) 徒歩20分 西鉄天神大牟田線 白木原駅 徒歩23分 鹿児島本線 大野城駅 徒歩24分 福岡県春日市原町1丁目 | 詳細を見る | |
マンション エイルヴィラ・グランシス春日(4LDK/5階) | |||||||
![]() | 17.5万円 5,000円 | なし 48.9999万円 | 4LDK 100.68m2 | 築26年 | 鹿児島本線 南福岡駅 徒歩15分 福岡県春日市 | 詳細を見る | |
マンション アリビオ春日野(2LDK/1階) | |||||||
![]() | 10.5万円 6,000円 | なし 21万円 | 2LDK 67.05m2 | 築1年 | 西鉄天神大牟田線 白木原駅 徒歩21分 鹿児島本線 大野城駅 徒歩22分 西鉄天神大牟田線 下大利駅 徒歩33分 福岡県春日市 | 詳細を見る | |
タウンハウス 春日市伯玄町ヘーベルメゾン(2LDK) | |||||||
![]() | 10.7万円 なし | なし 21.4万円 | 2LDK 55.09m2 | 築1年 | 鹿児島本線 南福岡駅 徒歩17分 鹿児島本線 春日駅(福岡) 徒歩18分 西鉄天神大牟田線 桜並木駅 徒歩23分 福岡県春日市伯玄町2丁目 | 詳細を見る | |
アパート ラ・カーサ・パーチェ(1LDK/2階) | |||||||
![]() | 8.2万円 3,300円 | なし 8.2万円 | 1LDK 55.65m2 | 新築 | 西鉄天神大牟田線 桜並木駅 徒歩32分 福岡県大野城市川久保3丁目 | 詳細を見る | |









