賃貸マンション
京阪電気鉄道京阪線 丹波橋駅 徒歩16分 6階建 築32年の賃貸物件情報(2LDK/4階)
| 家賃 | 管理費等 | 敷金 | 礼金 | 間取り | 専有面積 |
|---|---|---|---|---|---|
| 7.6万円 | 8,000円 | なし | 5万円 | 2LDK | 53m2 |
入居決定でお祝い金最大100,000円
Point
伏見板橋小学区。 オールフローリングの南向き物件です。
提供:株式会社 京都ライフ 小倉店(賃貸スモッカ経由)

詳細情報 京阪電気鉄道京阪線 丹波橋駅 徒歩16分 6階建 築32年
物件紹介
京阪電気鉄道京阪線丹波橋駅から徒歩16分にあるマンションです。
このお部屋は2階以上に位置しているので通行人や周囲の住人からの視線が気になりにくく、建物のエントランスはオートロックがついているので防犯性が高くなっています。
人気の南向きのお部屋。また、フローリングなのでお掃除もラクラク。キッチンはシステムキッチン仕様になっていますので、お料理好きの方にもぴったり。また、バス・トイレは別で、のんびりお風呂タイムも楽しめるでしょう。
通信設備面では、インターネット接続が可能です。また、BSアンテナがありCATVにも対応しているので、おうち時間も充実するでしょう(別途工事、契約料が必要な場合あり)。
建物にはエレベーターがついているので、重い荷物があっても安心。共用部には宅配ボックスが設定されているので、不在の時にも荷物を受け取ることができます。
このお部屋は2階以上に位置しているので通行人や周囲の住人からの視線が気になりにくく、建物のエントランスはオートロックがついているので防犯性が高くなっています。
人気の南向きのお部屋。また、フローリングなのでお掃除もラクラク。キッチンはシステムキッチン仕様になっていますので、お料理好きの方にもぴったり。また、バス・トイレは別で、のんびりお風呂タイムも楽しめるでしょう。
通信設備面では、インターネット接続が可能です。また、BSアンテナがありCATVにも対応しているので、おうち時間も充実するでしょう(別途工事、契約料が必要な場合あり)。
建物にはエレベーターがついているので、重い荷物があっても安心。共用部には宅配ボックスが設定されているので、不在の時にも荷物を受け取ることができます。
お金・契約の情報
※「-」と表示されているものは、実際は料金が発生するものもございます。詳細はお問い合わせください。
| 家賃 | 7.6万円 | 管理費・共益費 | 8,000円 |
|---|---|---|---|
| 敷金 | なし | 礼金 | 5万円 |
| 入居決定でお祝い金最大100,000円 | |||
| 保証金 | - | 償却・敷引 | - |
| 住宅保険料 | 住宅保険料あり | 更新料 | - |
| 契約形態 | - | 契約期間 | 2年 |
| 入居・引渡期間 | 2026年01月下旬 | 現況 | 賃貸中 |
| 契約備考 | 京都市伏見区 下鳥羽エリアの2LDKマンションです。敷金、更新料ナシ。嬉しい3点セパレートなど充実の設備。オートロックでセキュリティも安心です。コンビニ、スーパーなど近くにあって便利ですよ。 駐輪ステッカー代:1,100円 鍵作成費3本目〜:4,840円 更新料:無し 保証会社:利用必須 初回:月額賃料等の50%、更新時:1.3万円/1年(初回保証料 総賃料120% 更新保証料なしプランあり) その他設備/条件:コンロ2口以上、独立洗面台 | ||
部屋の情報
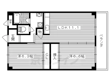
| 間取り | 2LDK | 専有面積 | 53m2 |
|---|---|---|---|
| 間取り詳細 | 洋室(6.6帖)、洋室(6.3帖)、LDK(11.1帖) | ||
| 所在階 / 向き | 4階 / 南 | バルコニー面積 | - |
| 水道 / ガス | ガス【プロパン】 | ||
| 設備 | バス・トイレ別、2階以上、オートロック、宅配ボックス、インターネット対応、システムキッチン、エアコン、エレベーター、南向き、バルコニー、フローリング、コンロ:ガス、CATV、BSアンテナ、洗濯機:室内 | ||
| 当社物件ID | 160062240 | ||
建物の情報
| 建物名 | 京阪電気鉄道京阪線 丹波橋駅 徒歩16分 6階建 築32年 | ||
|---|---|---|---|
| 所在地 | 京都府京都市伏見区北寝小屋町 | ||
| 交通 | 京阪電気鉄道京阪線 丹波橋駅 徒歩16分 近鉄京都線 近鉄丹波橋駅 徒歩17分 | ||
| 階数 | 6階建 | 総戸数 | - |
| 築年月 | 1994年01月 / 築32年 | エレベーター | あり |
| 駐車場 | - | バイク置き場 | - |
| 駐輪場 | あり | 管理人/管理会社 | - |
| 建物種別 | マンション | 建物構造 | RC(鉄筋コンクリート) |
この部屋の取扱い不動産会社
| 会社名 | 株式会社 京都ライフ 小倉店(賃貸スモッカ経由) | ||
|---|---|---|---|
| 所在地 | 宇治市小倉町神楽田21-5 | 交通 | - |
| 営業時間 | - | 定休日 | - |
| 免許番号 | 京都府知事(11)第6353号 | 取引態様 | 仲介 |
| 不動産会社管理番号 | kyotolife_12565-4E-11 | 当社管理番号 | 463 |
| 所属団体 | 京都府宅地建物取引業協会\n公益社団法人近畿地区不動産公正取引協議会 | ||
| 公正取引協議会 | 全国宅地建物取引業保証協会 | ||
| 取扱い物件情報 | 物件詳細へ | ||
※各種情報と現状に差異がある場合は、現状優先となります。問い合わせをすることで、より詳しい条件、情報を確認する事ができます。
提供:株式会社 京都ライフ 小倉店(賃貸スモッカ経由)
この物件が気になったら掲載期限まであと6日
京阪電気鉄道京阪線 丹波橋駅 徒歩16分 6階建 築32年に条件(家賃・エリア)が近い物件一覧
| 写真 | 家賃 管理費等 | 敷金 礼金 | 間取り 専有面積 | 築年数 | 最寄り駅 所在地 | キープ | 詳細 |
|---|---|---|---|---|---|---|---|
マンション 近鉄京都線 大久保駅(京都) 徒歩9分 築1年(2LDK/3階) | |||||||
![]() | 11.9万円 8,500円 | 5万円 20万円 | 2LDK 68.23m2 | 築1年 | 近鉄京都線 大久保駅(京都) 徒歩9分 奈良線 新田駅(京都) 徒歩13分 京都府宇治市大久保町北ノ山 | 詳細を見る | |
アパート 阪急電鉄京都線 西向日駅 徒歩22分 築25年(2LDK/1階) | |||||||
![]() | 7万円 なし | なし なし | 2LDK 56.31m2 | 築25年 | 阪急電鉄京都線 西向日駅 徒歩22分 阪急電鉄京都線 長岡天神駅 徒歩32分 京都府長岡京市井ノ内宮山 | 詳細を見る | |
マンション 京阪電気鉄道京阪線 伏見桃山駅 徒歩2分 築19年(1DK/1階) | |||||||
![]() | 6.6万円 6,000円 | なし 6.6万円 | 1DK 25.6m2 | 築19年 | 京阪電気鉄道京阪線 伏見桃山駅 徒歩2分 近鉄京都線 桃山御陵前駅 徒歩2分 京都府京都市伏見区 | 詳細を見る | |
マンション 東海道本線 長岡京駅 徒歩7分 築39年(1DK/2階) | |||||||
![]() | 5.5万円 3,000円 | なし 5.5万円 | 1DK 23.38m2 | 築39年 | 東海道本線 長岡京駅 徒歩7分 阪急電鉄京都線 長岡天神駅 徒歩13分 京都府長岡京市神足2丁目 | 詳細を見る | |
マンション 東海道本線 長岡京駅 徒歩22分 築32年(2LDK/2階) | |||||||
![]() | 7万円 5,000円 | なし なし | 2LDK 48.41m2 | 築32年 | 東海道本線 長岡京駅 徒歩22分 阪急電鉄京都線 長岡天神駅 徒歩29分 京都府向日市上植野町十ケ坪 | 詳細を見る | |
アパート 京阪電気鉄道京阪線 伏見桃山駅 徒歩29分 築8年(1LDK/3階) | |||||||
![]() | 7.4万円 4,100円 | なし 7.4万円 | 1LDK 41.97m2 | 築8年 | 京阪電気鉄道京阪線 伏見桃山駅 徒歩29分 近鉄京都線 桃山御陵前駅 徒歩30分 京都府京都市伏見区下鳥羽南柳長町 | 詳細を見る | |
マンション 京阪電気鉄道京阪線 淀駅 徒歩5分 築36年(2LDK/1階) | |||||||
![]() | 6.5万円 なし | 5万円 10万円 | 2LDK 49m2 | 築36年 | 京阪電気鉄道京阪線 淀駅 徒歩5分 京阪電気鉄道京阪線 伏見桃山駅 徒歩75分 京都府京都市伏見区淀下津町 | 詳細を見る | |
マンション 近鉄京都線 伏見駅(京都) 徒歩2分 築38年(1LDK/4階) | |||||||
![]() | 7万円 4,000円 | なし なし | 1LDK 27.19m2 | 築38年 | 近鉄京都線 伏見駅(京都) 徒歩2分 京阪電気鉄道京阪線 墨染駅 徒歩13分 京都府京都市伏見区深草泓ノ壺町 | 詳細を見る | |









