賃貸アパート
ルミウス北日吉IIの賃貸物件情報(1LDK/1階)
| 家賃 | 管理費等 | 敷金 | 礼金 | 間取り | 専有面積 |
|---|---|---|---|---|---|
| 5.7万円 | 3,000円 | なし | なし | 1LDK | 37.05m2 |
入居決定でお祝い金最大100,000円
Point
新築物件★人気の対面キッチン!!!詳細はスタッフまでお問合せくださいませ♪
提供:(株)しまなみ地所(SUUMO経由)

詳細情報 ルミウス北日吉II
物件紹介
ルミウス北日吉IIはJR予讃線今治駅から徒歩15分にあるアパートです。
このお部屋のインターホンにはTVモニタがついているため、相手の顔を確認してから来客対応することができます。
人気の角部屋。周囲の居住者の生活音も気になりにくい場所です。バス・トイレ別の仕様で、のんびりお風呂タイムも楽しめます。
通信設備面では、インターネットが無料で使えるので、月々の出費を抑えられるのも魅力です(別途工事等が必要な場合あり)。
ペット飼育の相談ができますので、あなたの大切な家族の一員も快適に暮らせるか、ぜひ確認してみてください。
このお部屋のインターホンにはTVモニタがついているため、相手の顔を確認してから来客対応することができます。
人気の角部屋。周囲の居住者の生活音も気になりにくい場所です。バス・トイレ別の仕様で、のんびりお風呂タイムも楽しめます。
通信設備面では、インターネットが無料で使えるので、月々の出費を抑えられるのも魅力です(別途工事等が必要な場合あり)。
ペット飼育の相談ができますので、あなたの大切な家族の一員も快適に暮らせるか、ぜひ確認してみてください。
お金・契約の情報
※「-」と表示されているものは、実際は料金が発生するものもございます。詳細はお問い合わせください。
| 家賃 | 5.7万円 | 管理費・共益費 | 3,000円 |
|---|---|---|---|
| 敷金 | なし | 礼金 | なし |
| 入居決定でお祝い金最大100,000円 | |||
| 保証金 | - | 償却・敷引 | - |
| 住宅保険料 | - | 更新料 | - |
| 保証会社利用 | 必須 | 保証会社名 | - |
| 保証会社費用 | - | 保証会社備考 | 保証会社利用必 管理会社指定による家賃保証会社に加入必須。 |
| 契約形態 | - | 契約期間 | - |
| 入居・引渡期間 | - | 現況 | - |
| 入居可能条件 | ペット相談 | ||
| 契約備考 | 合計0.4万円(内訳:駐車場手数料:4,000円) 駐車料:4,000円/コンシェルジュ24:900円/更新事務手数料:20,000円 1LDK ペット相談 損保【2万円2年】 バストイレ別、エアコン、TVインターホン、室内洗濯置、角住戸、温水洗浄便座、脱衣所、洗面所独立、洗面化粧台、対面式キッチン、ペット相談、照明付、ネット使用料不要、テラス、築2年以内、浴室未使用、トイレ未使用、敷地内ごみ置き場、キッチン未使用、プロパンガス、敷金・礼金不要 入居日:'26年3月下旬 | ||
部屋の情報
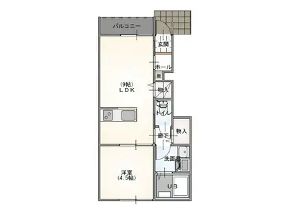
| 間取り | 1LDK | 専有面積 | 37.05m2 |
|---|---|---|---|
| 所在階 / 向き | 1階 / - | バルコニー面積 | - |
| 水道 / ガス | - | ||
| 設備 | バス・トイレ別、テレビドアホン、インターネット対応、エアコン、温水洗浄便座、角部屋、洗髪洗面化粧台、インターネット使用料無料、洗濯機:室内 | ||
| 当社物件ID | 159953497 | ||
建物の情報
| 建物名 | ルミウス北日吉II | ||
|---|---|---|---|
| 所在地 | 愛媛県今治市北日吉町 | ||
| 交通 | JR予讃線 今治駅 徒歩15分 | ||
| 階数 | 2階建 | 総戸数 | 12戸 |
| 築年月 | 2026年02月 / 新築 | エレベーター | - |
| 駐車場 | 空有 4400円 | バイク置き場 | - |
| 駐輪場 | - | 管理人/管理会社 | - |
| 周辺環境 | その他 社会福祉法人恩賜財団済生会今治第二病院(病院)まで567m その他 イオンスタイル今治馬越(スーパー)まで925m その他 ローソン今治北日吉町店(コンビニ)まで257m その他 ディスカウントドラッグコスモス北日吉店(ドラッグストア)まで329m その他 今治常盤町郵便局(郵便局)まで595m その他 今治市役所(役所)まで1747m | ||
| 建物種別 | アパート | 建物構造 | 木造 |
この部屋の取扱い不動産会社
| 会社名 | (株)しまなみ地所(SUUMO経由) | ||
|---|---|---|---|
| 所在地 | 愛媛県今治市旭町3-2-10 | 交通 | - |
| 営業時間 | 9:00~18:00 | 定休日 | 毎週水曜 |
| 免許番号 | 愛媛県知事5522 | 取引態様 | 仲介 |
| 不動産会社管理番号 | 100474044773 | 当社管理番号 | 89 |
| 所属団体 | (公社)愛媛県宅地建物取引業協会会員 | ||
| 公正取引協議会 | 四国地区不動産公正取引協議会加盟 | ||
| 取扱い物件情報 | 物件詳細へ | ||
※各種情報と現状に差異がある場合は、現状優先となります。問い合わせをすることで、より詳しい条件、情報を確認する事ができます。
提供:(株)しまなみ地所(SUUMO経由)
この物件が気になったら掲載期限まであと10日
ルミウス北日吉IIに条件(家賃・エリア)が近い物件一覧
| 写真 | 家賃 管理費等 | 敷金 礼金 | 間取り 専有面積 | 築年数 | 最寄り駅 所在地 | キープ | 詳細 |
|---|---|---|---|---|---|---|---|
アパート サンディーアA・B棟(2LDK/1階) | |||||||
![]() | 6万円 5,500円 | なし 6万円 | 2LDK 59.85m2 | 築17年 | 伊予鉄道高浜線 西衣山駅 徒歩25分 愛媛県松山市北斎院町 | 詳細を見る | |
アパート オリンポスヒル(ワンルーム/1階) | |||||||
![]() | 4.9万円 3,000円 | なし 4.9万円 | ワンルーム 25.56m2 | 築4年 | 伊予鉄道横河原線 牛渕団地前駅 徒歩2分 伊予鉄道横河原線 梅本駅 徒歩14分 伊予鉄道横河原線 牛渕駅 徒歩15分 愛媛県東温市牛渕 | 詳細を見る | |
アパート ガーデンハイツ(2LDK/1階) | |||||||
![]() | 5.2万円 4,000円 | なし なし | 2LDK 55m2 | 築14年 | 伊予鉄道郡中線 土居田駅 徒歩8分 愛媛県松山市土居田町 | 詳細を見る | |
アパート STELLA A.I(2LDK/2階) | |||||||
![]() | 6万円 2,900円 | 6万円 6万円 | 2LDK 63.28m2 | 築9年 | 愛媛県松山市空港通6丁目 | 詳細を見る | |
マンション ピリカコスモス(1K/6階) | |||||||
![]() | 4.8万円 5,000円 | 14.4万円 なし | 1K 31.63m2 | 築21年 | 伊予鉄道環状線 警察署前駅 徒歩5分 伊予鉄道環状線 大街道駅 徒歩7分 愛媛県松山市喜与町 | 詳細を見る | |
一戸建て 伊予鉄道横河原線 いよ立花駅 徒歩29分 築40年(4DK) | |||||||
![]() | 7万円 なし | 14万円 7万円 | 4DK 79.07m2 | 築40年 | 伊予鉄道横河原線 いよ立花駅 徒歩29分 伊予鉄道横河原線 福音寺駅 徒歩34分 愛媛県松山市居相2丁目4-20-1 | 詳細を見る | |
アパート リヴェール西山(3DK/1階) | |||||||
![]() | 5万円 4,500円 | なし 5万円 | 3DK 52.54m2 | 築22年 | 予讃線 堀江駅 徒歩8分 予讃線 伊予和気駅 徒歩34分 愛媛県松山市福角町 | 詳細を見る | |
アパート ファミール三好(1LDK/1階) | |||||||
![]() | 5.5万円 2,000円 | なし なし | 1LDK 52.32m2 | 築38年 | 伊予鉄道城南線 道後温泉駅 徒歩27分 伊予鉄道城南線 道後公園駅 徒歩28分 伊予鉄道城南線 南町駅 徒歩34分 愛媛県松山市石手白石 | 詳細を見る | |









