賃貸マンション
パークハイツ牧野の賃貸物件情報(3DK/4階)
| 家賃 | 管理費等 | 敷金 | 礼金 | 間取り | 専有面積 |
|---|---|---|---|---|---|
| 4万円 | 2,000円 | なし | なし | 3DK | 58.63m2 |
入居決定でお祝い金最大100,000円
Point
まずはお問い合わせ!
不動産会社は街のプロ、あなたに合った物件がきっと見つかります。
提供:東和ハウジング開発(株)(SUUMO経由)

詳細情報 パークハイツ牧野
物件紹介
パークハイツ牧野は豊橋鉄道渥美線南栄駅から徒歩19分にあるマンションです。
このお部屋は2階以上に位置しているので、通行人や周囲の住人からの視線が気になりにくく、防犯面でも安心です。
人気の南向きのお部屋。バス・トイレ別の仕様で、のんびりお風呂タイムも楽しめます。
このお部屋は2階以上に位置しているので、通行人や周囲の住人からの視線が気になりにくく、防犯面でも安心です。
人気の南向きのお部屋。バス・トイレ別の仕様で、のんびりお風呂タイムも楽しめます。
お金・契約の情報
※「-」と表示されているものは、実際は料金が発生するものもございます。詳細はお問い合わせください。
| 家賃 | 4万円 | 管理費・共益費 | 2,000円 |
|---|---|---|---|
| 敷金 | なし | 礼金 | なし |
| 入居決定でお祝い金最大100,000円 | |||
| 保証金 | - | 償却・敷引 | - |
| 住宅保険料 | - | 更新料 | - |
| 契約形態 | - | 契約期間 | - |
| 入居・引渡期間 | - | 現況 | - |
| 契約備考 | 3DK 普通借家1年 損保【1.5万円2年】 バストイレ別、エアコン、室内洗濯置、陽当り良好、シューズボックス、温水洗浄便座、洗面所独立、駐輪場、敷地内ごみ置き場、東南向き、都市ガス、敷金・礼金不要 入居日:'26年3月下旬 | ||
部屋の情報
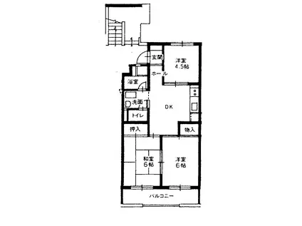
| 間取り | 3DK | 専有面積 | 58.63m2 |
|---|---|---|---|
| 所在階 / 向き | 4階 / 南東 | バルコニー面積 | - |
| 水道 / ガス | - | ||
| 設備 | バス・トイレ別、2階以上、エアコン、温水洗浄便座、南向き、洗髪洗面化粧台、洗濯機:室内 | ||
| 当社物件ID | 24821038 | ||
建物の情報
| 建物名 | パークハイツ牧野 | ||
|---|---|---|---|
| 所在地 | 愛知県豊橋市牧野町牧野 | ||
| 交通 | 豊橋鉄道渥美線 南栄駅 徒歩19分 | ||
| 階数 | 4階建 | 総戸数 | - |
| 築年月 | 1987年11月 / 築39年 | エレベーター | - |
| 駐車場 | 空有 3300円 | バイク置き場 | - |
| 駐輪場 | あり | 管理人/管理会社 | - |
| 建物種別 | マンション | 建物構造 | RC(鉄筋コンクリート) |
この部屋の取扱い不動産会社
| 会社名 | 東和ハウジング開発(株)(SUUMO経由) | ||
|---|---|---|---|
| 所在地 | 愛知県豊橋市藤沢町 128 | 交通 | - |
| 営業時間 | 9:00~19:00(土日祝9:00~18:00) | 定休日 | - |
| 免許番号 | 愛知県知事4797 | 取引態様 | 仲介 |
| 不動産会社管理番号 | 100097714353 | 当社管理番号 | 89 |
| 所属団体 | (公社)愛知県宅地建物取引業協会会員 | ||
| 公正取引協議会 | 東海不動産公正取引協議会加盟 | ||
| 取扱い物件情報 | 物件詳細へ | ||
※各種情報と現状に差異がある場合は、現状優先となります。問い合わせをすることで、より詳しい条件、情報を確認する事ができます。
提供:東和ハウジング開発(株)(SUUMO経由)
この物件が気になったら掲載期限まであと8日
パークハイツ牧野に条件(家賃・エリア)が近い物件一覧
| 写真 | 家賃 管理費等 | 敷金 礼金 | 間取り 専有面積 | 築年数 | 最寄り駅 所在地 | キープ | 詳細 |
|---|---|---|---|---|---|---|---|
マンション グランメゾン21(1K/2階) | |||||||
![]() | 3.8万円 2,500円 | 7.6万円 なし | 1K 28.29m2 | 築26年 | JR飯田線 鳥居駅 徒歩12分 JR飯田線 長篠城駅 徒歩14分 JR飯田線 本長篠駅 徒歩29分 愛知県新城市長篠西野々 | 詳細を見る | |
マンション 向山ハウス(ワンルーム/1階) | |||||||
![]() | 3.5万円 なし | 7万円 7万円 | ワンルーム 16.5m2 | 築39年 | 豊橋鉄道東田本線 前畑駅 徒歩16分 豊橋鉄道東田本線 東八町駅 徒歩16分 愛知県豊橋市向山台町 | 詳細を見る | |
アパート グリーンヴィラ高師B(2DK/1階) | |||||||
![]() | 5.6万円 3,000円 | 5.6万円 なし | 2DK 50.42m2 | 築25年 | 豊橋鉄道渥美線 高師駅 徒歩8分 豊橋鉄道渥美線 芦原駅 徒歩14分 豊橋鉄道渥美線 南栄駅 徒歩17分 愛知県豊橋市高師町西沢 | 詳細を見る | |
アパート サンシャトー聖・香奈(1K/1階) | |||||||
![]() | 4.8万円 5,300円 | なし 4.8万円 | 1K 35m2 | 築37年 | 豊橋鉄道渥美線 小池駅 徒歩32分 愛知県豊橋市 | 詳細を見る | |
アパート スペチアーレ(1DK/2階) | |||||||
![]() | 4.1万円 2,000円 | 8.2万円 なし | 1DK 28.33m2 | 築24年 | 豊橋鉄道東田本線 井原駅(愛知) 徒歩10分 豊橋鉄道東田本線 赤岩口駅 徒歩12分 豊橋鉄道東田本線 競輪場前駅(愛知) 徒歩16分 愛知県豊橋市東小鷹野 | 詳細を見る | |
アパート フェリース(1LDK/3階) | |||||||
![]() | 6.1万円 2,900円 | なし 7.1万円 | 1LDK 53.01m2 | 築14年 | JR東海道本線 豊橋駅 徒歩21分 愛知県豊橋市花田町越水 | 詳細を見る | |
マンション アーバンハイムINA(1LDK/1階) | |||||||
![]() | 4.9万円 3,000円 | 4.9万円 なし | 1LDK 44.15m2 | 築31年 | 名鉄名古屋本線 伊奈駅 徒歩4分 JR東海道本線 西小坂井駅 徒歩17分 JR飯田線 小坂井駅 徒歩18分 愛知県豊川市伊奈町南山新田 | 詳細を見る | |
アパート セザンヌ松井(ワンルーム/1階) | |||||||
![]() | 3.9万円 2,000円 | なし 3.9万円 | ワンルーム 25.77m2 | 築9年 | 豊橋鉄道渥美線 高師駅 徒歩11分 豊橋鉄道渥美線 芦原駅 徒歩15分 愛知県豊橋市松井町字南新切 | 詳細を見る | |









