賃貸マンション
北陸新幹線 金沢駅 バス乗車時間:20分 最寄りバス停で下車 徒歩2分 3階建 築30年の賃貸物件情報(1K/3階)
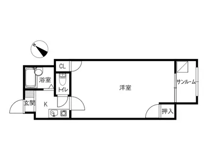
| 家賃 | 管理費等 | 敷金 | 礼金 | 間取り | 専有面積 |
|---|---|---|---|---|---|
| 4.5万円 | 2,000円 | なし | 4.5万円 | 1K | 30.45m2 |
入居決定でお祝い金最大100,000円
Point
IHキッチン備付けで、料理に慣れない方でも安心して使えますよ♪1Fは居酒屋ダイニング、徒歩5分内に飲食店やコンビニ、スーパーも近いのでご飯には困らないかも?!
提供:(株)のうか不動産もりの里店(SUUMO経由)

詳細情報 北陸新幹線 金沢駅 バス乗車時間:20分 最寄りバス停で下車 徒歩2分 3階建 築30年
物件紹介
このお部屋は2階以上に位置しているので、通行人や周囲の住人からの視線が気になりにくく、防犯面でも安心。インターホンにはTVモニタもついているため、相手の顔を確認してから来客対応することができます。
人気の南向きのお部屋。また、フローリングなのでお掃除もラクラク。バス・トイレ別の仕様で、のんびりお風呂タイムも楽しめます。
通信設備面では、インターネットが無料で使えるので、月々の出費を抑えられるのも魅力です。また、BSアンテナもありますので、おうち時間も充実するでしょう(別途工事、BSの契約料等が必要な場合あり)。
共用部には宅配ボックスが設定されているので、不在の時にも荷物を受け取ることができます。
人気の南向きのお部屋。また、フローリングなのでお掃除もラクラク。バス・トイレ別の仕様で、のんびりお風呂タイムも楽しめます。
通信設備面では、インターネットが無料で使えるので、月々の出費を抑えられるのも魅力です。また、BSアンテナもありますので、おうち時間も充実するでしょう(別途工事、BSの契約料等が必要な場合あり)。
共用部には宅配ボックスが設定されているので、不在の時にも荷物を受け取ることができます。
お金・契約の情報
※「-」と表示されているものは、実際は料金が発生するものもございます。詳細はお問い合わせください。
| 家賃 | 4.5万円 | 管理費・共益費 | 2,000円 |
|---|---|---|---|
| 敷金 | なし | 礼金 | 4.5万円 |
| 入居決定でお祝い金最大100,000円 | |||
| 保証金 | - | 償却・敷引 | - |
| 住宅保険料 | - | 更新料 | - |
| 保証会社利用 | 必須 | 保証会社名 | - |
| 保証会社費用 | - | 保証会社備考 | 保証会社利用必 株式会社エポスカード マメックス会費に含む |
| 契約形態 | - | 契約期間 | - |
| 入居・引渡期間 | - | 現況 | - |
| 契約備考 | 巡回管理/●マメックスメンバーズクラブ入会必須●保証料・火災保険料・24時間365日の安心かけつけサポートを含む。【入会金:24,200円(税込)、会費:3,300円/月(税込)】 合計6.98万円(内訳:退去修繕負担金:50000円/鍵代:19800円) 1K バストイレ別、エアコン、クロゼット、フローリング、TVインターホン、室内洗濯置、シューズボックス、温水洗浄便座、駐輪場、宅配ボックス、光ファイバー、最上階、敷金不要、IHクッキングヒーター、照明付、カードキー、ネット使用料不要、浄水器、サンルーム、バス停徒歩3分以内、上階無し、敷地内ごみ置き場、東南向き、プロパンガス、BS、保証会社利用可、IT重説対応物件 入居日:'26年5月中旬 | ||
部屋の情報
| 間取り | 1K | 専有面積 | 30.45m2 |
|---|---|---|---|
| 所在階 / 向き | 3階 / 南東 | バルコニー面積 | - |
| 水道 / ガス | - | ||
| 設備 | バス・トイレ別、2階以上、テレビドアホン、宅配ボックス、インターネット対応、エアコン、温水洗浄便座、南向き、フローリング、コンロ:IH、BSアンテナ、インターネット使用料無料、洗濯機:室内 | ||
| 当社物件ID | 160540339 | ||
建物の情報
| 建物名 | 北陸新幹線 金沢駅 バス乗車時間:20分 最寄りバス停で下車 徒歩2分 3階建 築30年 | ||
|---|---|---|---|
| 所在地 | 石川県金沢市もりの里 | ||
| 交通 | 北陸新幹線 金沢駅 バス乗車時間:20分 最寄りバス停で下車 徒歩2分 | ||
| 階数 | 3階建 | 総戸数 | 8戸 |
| 築年月 | 1997年02月 / 築30年 | エレベーター | - |
| 駐車場 | なし | バイク置き場 | - |
| 駐輪場 | あり | 管理人/管理会社 | - |
| 周辺環境 | その他 ローソン金沢もりの里店(コンビニ)まで305m その他 のと共栄信用金庫杜の里支店(銀行)まで298m その他 金沢旭町簡易郵便局(郵便局)まで520m その他 ゲオ金沢桜町店(レンタルビデオ)まで987m その他 albis杜の里店(スーパー)まで603m その他 クスリのアオキ鈴見店(ドラッグストア)まで693m | ||
| 建物種別 | マンション | 建物構造 | 鉄骨造 |
この部屋の取扱い不動産会社
| 会社名 | (株)のうか不動産もりの里店(SUUMO経由) | ||
|---|---|---|---|
| 所在地 | 石川県金沢市もりの里2-21 | 交通 | - |
| 営業時間 | 10:00~18:00 | 定休日 | なし |
| 免許番号 | 石川県知事3529 | 取引態様 | 代理 |
| 不動産会社管理番号 | 100492897987 | 当社管理番号 | 89 |
| 所属団体 | (公社)石川県宅地建物取引業協会会員 | ||
| 公正取引協議会 | 北陸不動産公正取引協議会加盟 | ||
| 取扱い物件情報 | 物件詳細へ | ||
※各種情報と現状に差異がある場合は、現状優先となります。問い合わせをすることで、より詳しい条件、情報を確認する事ができます。
提供:(株)のうか不動産もりの里店(SUUMO経由)
この物件が気になったら掲載期限まであと10日
北陸新幹線 金沢駅 バス乗車時間:20分 最寄りバス停で下車 徒歩2分 3階建 築30年に条件(家賃・エリア)が近い物件一覧
| 写真 | 家賃 管理費等 | 敷金 礼金 | 間取り 専有面積 | 築年数 | 最寄り駅 所在地 | キープ | 詳細 |
|---|---|---|---|---|---|---|---|
アパート ハウスストリームIII(2K/1階) | |||||||
![]() | 3.8万円 3,500円 | なし なし | 2K 38.88m2 | 築34年 | 石川県金沢市土清水 | 詳細を見る | |
アパート ディアスA A棟(2LDK/2階) | |||||||
![]() | 5.5万円 4,500円 | なし 5.5万円 | 2LDK 50.6m2 | 築31年 | JR七尾線 本津幡駅 徒歩10分 石川県河北郡津幡町字庄 | 詳細を見る | |
アパート グランマーチB(1LDK/1階) | |||||||
![]() | 5.7万円 6,000円 | なし 6万円 | 1LDK 34.76m2 | 築19年 | 石川県野々市市下林1丁目 | 詳細を見る | |
アパート ソフィア寺町(ワンルーム/2階) | |||||||
![]() | 2.9万円 3,700円 | なし なし | ワンルーム 23.9m2 | 築37年 | 北陸鉄道石川線 野町駅 徒歩16分 石川県金沢市寺町 | 詳細を見る | |
アパート ブランニュー大額A(2DK/1階) | |||||||
![]() | 4.5万円 なし | 9万円 なし | 2DK 51.83m2 | 築35年 | 北陸鉄道石川線 馬替駅 徒歩10分 石川県金沢市大額 | 詳細を見る | |
アパート SUNLIFEA棟(2LDK/2階) | |||||||
![]() | 5.2万円 3,000円 | 5.2万円 なし | 2LDK 60.35m2 | 築34年 | 北陸鉄道石川線 乙丸駅 徒歩5分 石川県金沢市額乙丸町ハ | 詳細を見る | |
マンション グリーンハイム駅西(1K/2階) | |||||||
![]() | 4.6万円 4,500円 | 9.2万円 なし | 1K 31.64m2 | 築34年 | 石川県金沢市駅西本町2丁目 | 詳細を見る | |
アパート FLAMINGO(1LDK/1階) | |||||||
![]() | 5.1万円 3,000円 | なし 5.1万円 | 1LDK 37.55m2 | 築22年 | 石川県金沢市田上本町 | 詳細を見る | |









