賃貸マンション
東光マンションの賃貸物件情報(1DK/3階)
| 家賃 | 管理費等 | 敷金 | 礼金 | 間取り | 専有面積 |
|---|---|---|---|---|---|
| 5.8万円 | 2,000円 | 5万円 | 10万円 | 1DK | 35.77m2 |
入居決定でお祝い金最大100,000円
- 保証金
- -
- 償却・敷引
- -
- 築年数
- 築46年
- 所在階
- 3階
- 向き
- 南
Point
仲介手数料0円キャンペーン中です。スーモからのお問合せ限定で仲介手数料0円に割引させて頂きます。他社さんの物件も全て取り扱い可能です。女性スタッフも在籍しておりますのでお気軽にお申しつけください。
提供:(株)三國屋(SUUMO経由)

詳細情報 東光マンション
物件紹介
東光マンションは地下鉄谷町線関目高殿駅から徒歩2分にあり、駅近で通勤通学に便利なマンションです。
このお部屋は2階以上に位置しているので、通行人や周囲の住人からの視線が気になりにくく、防犯面でも安心です。
人気の南向き・フローリングのお部屋。角部屋でもあるため、周囲の居住者の生活音も気になりにくい場所です。バス・トイレ別の仕様で、のんびりお風呂タイムも楽しめます。
通信設備面では、インターネットが無料で使えるので、月々の出費を抑えられるのも魅力です(別途工事等が必要な場合あり)。
このお部屋は2階以上に位置しているので、通行人や周囲の住人からの視線が気になりにくく、防犯面でも安心です。
人気の南向き・フローリングのお部屋。角部屋でもあるため、周囲の居住者の生活音も気になりにくい場所です。バス・トイレ別の仕様で、のんびりお風呂タイムも楽しめます。
通信設備面では、インターネットが無料で使えるので、月々の出費を抑えられるのも魅力です(別途工事等が必要な場合あり)。
お金・契約の情報
※「-」と表示されているものは、実際は料金が発生するものもございます。詳細はお問い合わせください。
| 家賃 | 5.8万円 | 管理費・共益費 | 2,000円 |
|---|---|---|---|
| 敷金 | 5万円 | 礼金 | 10万円 |
| 入居決定でお祝い金最大100,000円 | |||
| 保証金 | - | 償却・敷引 | - |
| 住宅保険料 | - | 更新料 | - |
| 保証会社利用 | 必須 | 保証会社名 | - |
| 保証会社費用 | - | 保証会社備考 | 保証会社利用必 初回総賃料の50% 更新料1年毎1万円 |
| 契約形態 | - | 契約期間 | - |
| 入居・引渡期間 | 即時 | 現況 | - |
| 契約備考 | ゲオ関目高殿店まで167m/マクドナルド国道関目店まで191m/巡回管理/大阪メトロ谷町線関目高殿駅徒歩2分創業35年の三國屋では経験豊なスタッフがお客様に寄り添ったお部屋探しをご提案致します。女性スタッフも在籍しておりますのでお気軽にお申しつけください。お問い合わせお待ちしております。電話 水道代月額2000円 1DK 単身者限定/子供不可 普通借家2年 損保【1.5万円2年】 バストイレ別、バルコニー、エアコン、ガスコンロ対応、フローリング、シャワー付洗面台、陽当り良好、南向き、角住戸、脱衣所、洗面所独立、洗面化粧台、2口コンロ、駐輪場、光ファイバー、即入居可、2面採光、照明付、東南角住戸、仲介手数料不要、全居室フローリング、駅まで平坦、ネット使用料不要、キッチンに窓、眺望良好、1フロア2住戸、浴室に窓、クロゼット2ヶ所、3方角住戸、カーテン付、3駅以上利用可、3沿線以上利用可、駅徒歩5分以内、バス停徒歩3分以内、オープンキッチン、都市ガス、南面バルコニー、高速ネット対応、LAN、リノベーション、保証会社利用可、IT重説対応物件、通風良好 | ||
部屋の情報
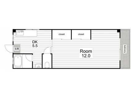
| 間取り | 1DK | 専有面積 | 35.77m2 |
|---|---|---|---|
| 所在階 / 向き | 3階 / 南 | バルコニー面積 | - |
| 水道 / ガス | - | ||
| 設備 | バス・トイレ別、2階以上、インターネット対応、エアコン、南向き、角部屋、バルコニー、フローリング、洗髪洗面化粧台、2口コンロ、コンロ:ガス、インターネット使用料無料 | ||
| 当社物件ID | 23654074 | ||
建物の情報
| 建物名 | 東光マンション | ||
|---|---|---|---|
| 所在地 | 大阪府大阪市旭区高殿 | ||
| 交通 | 地下鉄谷町線 関目高殿駅 徒歩2分 地下鉄今里筋線 関目成育駅 徒歩6分 京阪本線 関目駅 徒歩6分 | ||
| 階数 | 4階建 | 総戸数 | 7戸 |
| 築年月 | 1981年01月 / 築46年 | エレベーター | - |
| 駐車場 | 近隣 285m18000円/平置駐 | バイク置き場 | - |
| 駐輪場 | あり | 管理人/管理会社 | - |
| 周辺環境 | その他 万代旭高殿店(スーパー)まで618m その他 業務スーパー関目高殿店(スーパー)まで652m その他 セブンイレブン大阪関目5丁目店(コンビニ)まで187m その他 ローソンストア100関目高殿店(コンビニ)まで249m その他 ゲオ関目高殿店(レンタルビデオ)まで167m その他 マクドナルド国道関目店(飲食店)まで191m | ||
| 建物種別 | マンション | 建物構造 | 鉄骨造 |
この部屋の取扱い不動産会社
| 会社名 | (株)三國屋(SUUMO経由) | ||
|---|---|---|---|
| 所在地 | 大阪府大阪市旭区高殿7-6-3 | 交通 | - |
| 営業時間 | AM10:30~17:30 | 定休日 | 水曜日 |
| 免許番号 | 大阪府知事32844 | 取引態様 | 仲介 |
| 不動産会社管理番号 | 100483103632 | 当社管理番号 | 89 |
| 取扱い物件情報 | 物件詳細へ | ||
※各種情報と現状に差異がある場合は、現状優先となります。問い合わせをすることで、より詳しい条件、情報を確認する事ができます。
提供:(株)三國屋(SUUMO経由)
この物件が気になったら掲載期限まであと8日
東光マンションに条件(家賃・エリア)が近い物件一覧
| 写真 | 家賃 管理費等 | 敷金 礼金 | 間取り 専有面積 | 築年数 | 最寄り駅 所在地 | キープ | 詳細 |
|---|---|---|---|---|---|---|---|
アパート LALUCE清和園町(1K/1階) | |||||||
| 6.4万円 4,000円 | なし なし | 1K 22.42m2 | 築9年 | 阪急電鉄千里線 吹田駅(阪急) 徒歩8分 東海道本線 吹田駅(JR) 徒歩16分 おおさか東線 南吹田駅 徒歩16分 大阪府吹田市清和園町10-17 | 詳細を見る | ||
アパート ネクスプロス89C棟(1K/1階) | |||||||
| 3.9万円 3,000円 | なし なし | 1K 21.42m2 | 築33年 | 東海道本線 岸辺駅 徒歩5分 阪急電鉄京都線 正雀駅 徒歩9分 大阪市今里筋線 井高野駅 徒歩36分 大阪府吹田市岸部南2丁目16-9 | 詳細を見る | ||
マンション レオパレス匠(1K/1階) | |||||||
![]() | 5.1万円 7,000円 | なし なし | 1K 19.87m2 | 築21年 | 阪和線 富木駅 徒歩11分 南海電鉄南海本線 羽衣駅 徒歩15分 阪和線 東羽衣駅 徒歩18分 大阪府堺市西区鳳西町2丁 | 詳細を見る | |
マンション ハイエスト木村B棟(2DK/2階) | |||||||
![]() | 5.4万円 5,000円 | なし 20万円 | 2DK 41m2 | 築25年 | 京阪電気鉄道京阪線 大和田駅(大阪) 徒歩9分 京阪電気鉄道京阪線 萱島駅 徒歩10分 京阪電気鉄道京阪線 古川橋駅 徒歩22分 大阪府門真市上野口町 | 詳細を見る | |
アパート ヒカルサ堺市文珠橋通1(1K/3階) | |||||||
![]() | 7.5万円 3,900円 | なし 7.5万円 | 1K 31.21m2 | 築1年 | 南海電鉄高野線 堺東駅 徒歩19分 南海電鉄南海本線 湊駅 徒歩22分 阪和線 百舌鳥駅 徒歩23分 大阪府堺市堺区文珠橋通 | 詳細を見る | |
アパート 南海電鉄南海本線 石津川駅 徒歩5分 築3年(1DK/3階) | |||||||
![]() | 5.9万円 5,000円 | なし 5万円 | 1DK 29.68m2 | 築3年 | 南海電鉄南海本線 石津川駅 徒歩5分 阪堺電気軌道阪堺線 石津駅(大阪) 徒歩10分 南海電鉄南海本線 諏訪ノ森駅 徒歩15分 大阪府堺市西区浜寺石津町西4丁 | 詳細を見る | |
マンション 南海電鉄南海本線 石津川駅 徒歩9分 築29年(2LDK/3階) | |||||||
![]() | 6.5万円 5,000円 | なし 15万円 | 2LDK 55.29m2 | 築29年 | 南海電鉄南海本線 石津川駅 徒歩9分 南海電鉄南海本線 湊駅 徒歩16分 南海電鉄南海本線 諏訪ノ森駅 徒歩18分 大阪府堺市西区浜寺石津町中1丁 | 詳細を見る | |
アパート レオパレス山田東Ⅱ(1K/1階) | |||||||
| 6.2万円 5,000円 | なし 6.2万円 | 1K 19.87m2 | 築17年 | 東海道本線 千里丘駅 徒歩26分 大阪モノレール本線 山田駅(大阪) 徒歩27分 大阪府吹田市山田東1丁目2-24 | 詳細を見る | ||






