賃貸アパート
TCRE新大塚の賃貸物件情報(2LDK/3階)
| 家賃 | 管理費等 | 敷金 | 礼金 | 間取り | 専有面積 |
|---|---|---|---|---|---|
| 15万円 | 5,000円 | なし | なし | 2LDK | 43.5m2 |
入居決定でお祝い金最大100,000円
- 保証金
- 15.0万円
- 償却・敷引
- -
- 築年数
- 築42年
- 所在階
- 3階
- 向き
- 南
Point
オーナー様と直接取引している物件を10万戸以上保有しているため、賃料、初期費用、賃料発生日など諸条件を何でもご相談くださいませ
提供:ハウス・トゥ・ハウス・ネットサービス(株)板橋東口店(SUUMO経由)

詳細情報 TCRE新大塚
物件紹介
TCRE新大塚は東京メトロ丸ノ内線新大塚駅から徒歩7分にあり、駅近で通勤通学に便利なアパートです。
このお部屋は2階以上に位置しているので、通行人や周囲の住人からの視線が気になりにくく、防犯面でも安心。インターホンにはTVモニタもついているため、相手の顔を確認してから来客対応することができます。
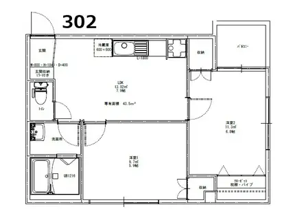
人気の南向き・フローリングのお部屋。角部屋でもあるため、周囲の居住者の生活音も気になりにくい場所です。室内にはウォークインクローゼットがありますので、たくさんの荷物も効率的に収納ができます。キッチンはシステムキッチン仕様になっていますので、お料理好きの方にもぴったり。また、バス・トイレは別で、のんびりお風呂タイムも楽しめるでしょう。
このお部屋は2階以上に位置しているので、通行人や周囲の住人からの視線が気になりにくく、防犯面でも安心。インターホンにはTVモニタもついているため、相手の顔を確認してから来客対応することができます。
人気の南向き・フローリングのお部屋。角部屋でもあるため、周囲の居住者の生活音も気になりにくい場所です。室内にはウォークインクローゼットがありますので、たくさんの荷物も効率的に収納ができます。キッチンはシステムキッチン仕様になっていますので、お料理好きの方にもぴったり。また、バス・トイレは別で、のんびりお風呂タイムも楽しめるでしょう。
お金・契約の情報
※「-」と表示されているものは、実際は料金が発生するものもございます。詳細はお問い合わせください。
| 家賃 | 15万円 | 管理費・共益費 | 5,000円 |
|---|---|---|---|
| 敷金 | なし | 礼金 | なし |
| 入居決定でお祝い金最大100,000円 | |||
| 保証金 | 15.0万円 | 償却・敷引 | - |
| 住宅保険料 | - | 更新料 | - |
| 保証会社利用 | 必須 | 保証会社名 | - |
| 保証会社費用 | - | 保証会社備考 | 保証会社利用必 初回保証料:総賃料50% 月額保証料700円 /月口座決済手数料440円 /月 |
| 契約形態 | - | 契約期間 | - |
| 入居・引渡期間 | 即時 | 現況 | - |
| 契約備考 | 契約時保証金50%償却。 合計1.98万円(内訳:鍵交換代1.98万円) 更新料 新賃料1.00ヶ月分 2LDK 普通借家2年 損保【2万円2年】 バストイレ別、バルコニー、エアコン、ガスコンロ対応、クロゼット、フローリング、TVインターホン、室内洗濯置、陽当り良好、シューズボックス、システムキッチン、南向き、角住戸、温水洗浄便座、洗面化粧台、礼金不要、最上階、敷金不要、照明付、駅徒歩10分以内、敷地内ごみ置き場、都市ガス、敷金・礼金不要、IT重説対応物件 | ||
部屋の情報
| 間取り | 2LDK | 専有面積 | 43.5m2 |
|---|---|---|---|
| 所在階 / 向き | 3階 / 南 | バルコニー面積 | - |
| 水道 / ガス | - | ||
| 設備 | バス・トイレ別、2階以上、テレビドアホン、システムキッチン、エアコン、温水洗浄便座、南向き、角部屋、バルコニー、フローリング、コンロ:ガス、洗濯機:室内 | ||
| 当社物件ID | 160422268 | ||
建物の情報
| 建物名 | TCRE新大塚 | ||
|---|---|---|---|
| 所在地 | 東京都豊島区南大塚 | ||
| 交通 | 東京メトロ丸ノ内線 新大塚駅 徒歩7分 JR山手線 大塚駅(東京) 徒歩13分 都営三田線 千石駅 徒歩16分 | ||
| 階数 | 3階建 | 総戸数 | - |
| 築年月 | 1984年04月 / 築42年 | エレベーター | - |
| 駐車場 | なし | バイク置き場 | - |
| 駐輪場 | - | 管理人/管理会社 | - |
| 周辺環境 | その他 南大塚からたち公園(公園)まで172m その他 セブンイレブン 豊島南大塚1丁目南店(コンビニ)まで79m その他 ライフ 新大塚店(スーパー)まで138m その他 まいばすけっと 千石2丁目店(スーパー)まで460m その他 東京都立大塚病院(病院)まで316m その他 アトレヴィ大塚(ショッピングセンター)まで969m | ||
| 建物種別 | アパート | 建物構造 | 鉄骨造 |
この部屋の取扱い不動産会社
| 会社名 | ハウス・トゥ・ハウス・ネットサービス(株)巣鴨店(SUUMO経由) | ||
|---|---|---|---|
| 所在地 | 東京都豊島区巣鴨2-3-10清水ビル6F | 交通 | - |
| 営業時間 | 10:00~18:30(1月~3月は9:30~) | 定休日 | 水曜日(1月~3月無休) |
| 免許番号 | 国土交通大臣7400 | 取引態様 | 仲介 |
| 不動産会社管理番号 | 100489043804 | 当社管理番号 | 89 |
| 所属団体 | (公社)全日本不動産協会東京都本部会員 | ||
| 公正取引協議会 | (公社)首都圏不動産公正取引協議会加盟 | ||
| 取扱い物件情報 | 物件詳細へ | ||
※各種情報と現状に差異がある場合は、現状優先となります。問い合わせをすることで、より詳しい条件、情報を確認する事ができます。
提供:ハウス・トゥ・ハウス・ネットサービス(株)巣鴨店(SUUMO経由)
この物件が気になったら掲載期限まであと11日
TCRE新大塚に条件(家賃・エリア)が近い物件一覧
| 写真 | 家賃 管理費等 | 敷金 礼金 | 間取り 専有面積 | 築年数 | 最寄り駅 所在地 | キープ | 詳細 |
|---|---|---|---|---|---|---|---|
マンション サンテミリオン本駒込六義園(1K/10階) | |||||||
![]() | 9万円 1万円 | 9万円 9万円 | 1K 22.4m2 | 築19年 | 東京地下鉄南北線 駒込駅 徒歩7分 東京都三田線 千石駅 徒歩10分 東京地下鉄南北線 本駒込駅 徒歩12分 東京都文京区本駒込5丁目 | 詳細を見る | |
マンション カーサブリランテ本駒込(ワンルーム/3階) | |||||||
![]() | 17.4万円 1万円 | なし 17.4万円 | ワンルーム 35.63m2 | 築1年 | 東京地下鉄南北線 本駒込駅 徒歩5分 東京都三田線 千石駅 徒歩14分 東京地下鉄南北線 駒込駅 徒歩15分 東京都文京区本駒込1丁目 | 詳細を見る | |
マンション スピティ根津(1LDK/4階) | |||||||
![]() | 17.9万円 4,100円 | なし 35.8万円 | 1LDK 45.62m2 | 築6年 | 東京地下鉄千代田線 根津駅 徒歩5分 東京地下鉄南北線 東大前駅 徒歩9分 東京地下鉄千代田線 千駄木駅 徒歩9分 東京都文京区根津1丁目 | 詳細を見る | |
マンション パークキューブ春日安藤坂(1K/1階) | |||||||
![]() | 15.5万円 1万円 | 15.5万円 15.5万円 | 1K 31.67m2 | 築21年 | 東京都大江戸線 飯田橋駅 徒歩9分 東京地下鉄丸ノ内線 後楽園駅 徒歩9分 総武・中央緩行線 飯田橋駅 徒歩12分 東京都文京区春日2丁目 | 詳細を見る | |
マンション レジディア文京本郷4(1K/5階) | |||||||
![]() | 15.4万円 1.5万円 | なし なし | 1K 25.27m2 | 築9年 | 東京都大江戸線 本郷三丁目駅 徒歩3分 東京地下鉄丸ノ内線 本郷三丁目駅 徒歩5分 総武・中央緩行線 御茶ノ水駅 徒歩15分 東京都文京区本郷7丁目 | 詳細を見る | |
マンション TRADIS文京江戸川橋(1K/2階) | |||||||
![]() | 14.3万円 1.5万円 | なし なし | 1K 25.61m2 | 築2年 | 東京地下鉄有楽町線 江戸川橋駅 徒歩6分 東京都文京区水道2丁目 | 詳細を見る | |
マンション ハーモニーレジデンス御茶ノ水(1K/3階) | |||||||
![]() | 9.5万円 1.5万円 | 9.5万円 9.5万円 | 1K 21.02m2 | 築16年 | 東京メトロ千代田線 湯島駅 徒歩6分 JR総武線 御茶ノ水駅 徒歩8分 JR山手線 御徒町駅 徒歩9分 東京都文京区湯島 | 詳細を見る | |
マンション GRAN PASEO本郷三丁目(1K/2階) | |||||||
![]() | 13.7万円 1.5万円 | なし 13.7万円 | 1K 25.7m2 | 築6年 | 東京地下鉄丸ノ内線 本郷三丁目駅 徒歩7分 東京地下鉄千代田線 湯島駅 徒歩8分 中央本線 御茶ノ水駅 徒歩12分 東京都文京区本郷3丁目 | 詳細を見る | |








