賃貸マンション
恵比寿・広尾駅徒歩圏内 楽器可 2LDKの賃貸物件情報(2LDK/2階)
| 家賃 | 管理費等 | 敷金 | 礼金 | 間取り | 専有面積 |
|---|---|---|---|---|---|
| 29.8万円 | 1万円 | 29.8万円 | 29.8万円 | 2LDK | 59.59m2 |
入居決定でお祝い金最大100,000円
- 保証金
- -
- 償却・敷引
- -
- 築年数
- 築13年
- 所在階
- 2階
- 向き
- 東
Point
まずはお問い合わせ!
不動産会社は街のプロ、あなたに合った物件がきっと見つかります。
提供:ココ不動産(株)(SUUMO経由)

詳細情報 恵比寿・広尾駅徒歩圏内 楽器可 2LDK
物件紹介
恵比寿・広尾駅徒歩圏内 楽器可 2LDKはJR山手線恵比寿駅から徒歩10分にあり、駅近で通勤通学に便利なマンションです。
このお部屋は2階以上に位置しているので、通行人や周囲の住人からの視線が気になりにくく、防犯面でも安心。建物のエントランスはオートロックがついており、インターホンにはTVモニタもついているため、相手の顔を確認してから来客対応することができます。
おしゃれなデザイナーズ物件!また、楽器相談が可能な物件となっているので、楽器演奏をお考えの方はぜひ相談してみてください。フローリングのお部屋なのでお掃除もラクラク。キッチンはシステムキッチン仕様になっていますので、お料理好きの方にもぴったり。バス・トイレは別なので、のんびりお風呂タイムも楽しめるでしょう。また、雨の日でも浴室乾燥機を使えば、お洗濯も問題ありません。
通信設備面では、インターネットが無料で使えるので、月々の出費を抑えられるのも魅力です(別途工事等が必要な場合あり)。
床暖房があり、冬も足元から暖かく快適に過ごすことができます。建物にはエレベーターがついているので、重い荷物があっても安心。共用部には宅配ボックスが設定されているので、不在の時にも荷物を受け取ることができます。
このお部屋は2階以上に位置しているので、通行人や周囲の住人からの視線が気になりにくく、防犯面でも安心。建物のエントランスはオートロックがついており、インターホンにはTVモニタもついているため、相手の顔を確認してから来客対応することができます。
おしゃれなデザイナーズ物件!また、楽器相談が可能な物件となっているので、楽器演奏をお考えの方はぜひ相談してみてください。フローリングのお部屋なのでお掃除もラクラク。キッチンはシステムキッチン仕様になっていますので、お料理好きの方にもぴったり。バス・トイレは別なので、のんびりお風呂タイムも楽しめるでしょう。また、雨の日でも浴室乾燥機を使えば、お洗濯も問題ありません。
通信設備面では、インターネットが無料で使えるので、月々の出費を抑えられるのも魅力です(別途工事等が必要な場合あり)。
床暖房があり、冬も足元から暖かく快適に過ごすことができます。建物にはエレベーターがついているので、重い荷物があっても安心。共用部には宅配ボックスが設定されているので、不在の時にも荷物を受け取ることができます。
お金・契約の情報
※「-」と表示されているものは、実際は料金が発生するものもございます。詳細はお問い合わせください。
| 家賃 | 29.8万円 | 管理費・共益費 | 1万円 |
|---|---|---|---|
| 敷金 | 29.8万円 | 礼金 | 29.8万円 |
| 入居決定でお祝い金最大100,000円 | |||
| 保証金 | - | 償却・敷引 | - |
| 住宅保険料 | - | 更新料 | - |
| 保証会社利用 | 必須 | 保証会社名 | - |
| 保証会社費用 | - | 保証会社備考 | 保証会社利用必 貸主指定 |
| 契約形態 | 定期借家 | 契約期間 | 2029年10月まで |
| 入居・引渡期間 | 即時 | 現況 | - |
| 入居可能条件 | 楽器相談 | ||
| 契約備考 | 2LDK 二人入居可/子供可/楽器相談 定期借家西暦2029年10月まで 損保【要】 バストイレ別、バルコニー、エアコン、ガスコンロ対応、クロゼット、フローリング、TVインターホン、浴室乾燥機、オートロック、室内洗濯置、シューズボックス、システムキッチン、追焚機能浴室、温水洗浄便座、エレベーター、洗面所独立、宅配ボックス、即入居可、3口以上コンロ、防犯カメラ、分譲賃貸、オートバス、グリル付、保証人不要、全居室フローリング、デザイナーズ、ネット使用料不要、浄水器、床暖房、楽器相談、L字型キッチン、ミストサウナ、駅徒歩10分以内、24時間ゴミ出し可、敷地内ごみ置き場、都市ガス、初期費用カード決済可 | ||
部屋の情報
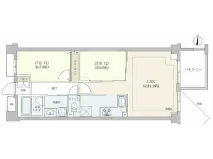
| 間取り | 2LDK | 専有面積 | 59.59m2 |
|---|---|---|---|
| 所在階 / 向き | 2階 / 東 | バルコニー面積 | - |
| 水道 / ガス | - | ||
| 設備 | バス・トイレ別、2階以上、オートロック、テレビドアホン、宅配ボックス、浴室乾燥機、追い焚き、インターネット対応、システムキッチン、エアコン、エレベーター、温水洗浄便座、バルコニー、フローリング、洗髪洗面化粧台、床暖房、2口コンロ、コンロ:ガス、デザイナーズ、インターネット使用料無料、洗濯機:室内 | ||
| 当社物件ID | 160024973 | ||
建物の情報
| 建物名 | 恵比寿・広尾駅徒歩圏内 楽器可 2LDK | ||
|---|---|---|---|
| 所在地 | 東京都渋谷区恵比寿 | ||
| 交通 | JR山手線 恵比寿駅 徒歩10分 東京メトロ日比谷線 広尾駅 徒歩15分 東京メトロ南北線 白金台駅 徒歩18分 | ||
| 階数 | 地下1地上3階建 | 総戸数 | - |
| 築年月 | 2013年06月 / 築13年 | エレベーター | あり |
| 駐車場 | なし | バイク置き場 | - |
| 駐輪場 | - | 管理人/管理会社 | - |
| 周辺環境 | その他 恵比寿ガーデンプレイス(ショッピングセンター)まで444m その他 MEIDI-YA STORE恵比寿ストアー(スーパー)まで381m その他 カルディコーヒーファーム恵比寿ガーデンプレイス店(スーパー)まで381m その他 ローソン恵比寿三丁目店(コンビニ)まで243m その他 トモズ恵比寿ガーデンプレイスセンタープラザ店(ドラッグストア)まで381m その他 スターバックスコーヒー恵比寿ガーデンプレイスセンタープラザB(飲食店)まで381m | ||
| 建物種別 | マンション | 建物構造 | RC(鉄筋コンクリート) |
この部屋の取扱い不動産会社
| 会社名 | ココ不動産(株)(SUUMO経由) | ||
|---|---|---|---|
| 所在地 | 東京都港区三田1-3-40 天翔オフィス麻布十番502 | 交通 | - |
| 営業時間 | 9:00-22:00 | 定休日 | 年中無休 |
| 免許番号 | 東京都知事108538 | 取引態様 | 仲介 |
| 不動産会社管理番号 | 100477075634 | 当社管理番号 | 89 |
| 所属団体 | (公社)全日本不動産協会東京都本部会員 | ||
| 公正取引協議会 | (公社)首都圏不動産公正取引協議会加盟 | ||
| 取扱い物件情報 | 物件詳細へ | ||
※各種情報と現状に差異がある場合は、現状優先となります。問い合わせをすることで、より詳しい条件、情報を確認する事ができます。
提供:ココ不動産(株)(SUUMO経由)
この物件が気になったら掲載期限まであと11日
恵比寿・広尾駅徒歩圏内 楽器可 2LDKに条件(家賃・エリア)が近い物件一覧
| 写真 | 家賃 管理費等 | 敷金 礼金 | 間取り 専有面積 | 築年数 | 最寄り駅 所在地 | キープ | 詳細 |
|---|---|---|---|---|---|---|---|
マンション アールエイチハウス(2LDK/1階) | |||||||
![]() | 28万円 1万円 | なし 56万円 | 2LDK 70.46m2 | 築6年 | 京王新線 初台駅 徒歩5分 小田急線 参宮橋駅 徒歩16分 都営大江戸線 西新宿五丁目駅 徒歩18分 東京都渋谷区本町 | 詳細を見る | |
マンション GRANDUO経堂14(2LDK/3階) | |||||||
![]() | 22.8万円 1.2万円 | なし なし | 2LDK 50.96m2 | 築4年 | 小田急線 経堂駅 徒歩12分 東急世田谷線 宮の坂駅 徒歩12分 東急世田谷線 上町駅 徒歩14分 東京都世田谷区桜 | 詳細を見る | |
マンション ALIVIS新江古田(1LDK/3階) | |||||||
![]() | 21万円 1.5万円 | なし なし | 1LDK 44.69m2 | 築1年 | 都営大江戸線 新江古田駅 徒歩11分 西武池袋線 東長崎駅 徒歩14分 都営大江戸線 落合南長崎駅 徒歩16分 東京都中野区江原町 | 詳細を見る | |
マンション IRIS南大井(3LDK/3階) | |||||||
![]() | 26万円 1.2万円 | 26万円 26万円 | 3LDK 60.9m2 | 築1年 | 京急本線 立会川駅 徒歩5分 東京モノレール 大井競馬場前駅 徒歩13分 JR京浜東北線 大井町駅 徒歩19分 東京都品川区南大井 | 詳細を見る | |
マンション メトロハイツ西落合(1SLDK/7階) | |||||||
![]() | 18.1万円 9,200円 | 18.1万円 18.1万円 | 1SLDK 53.34m2 | 築26年 | 都営大江戸線 落合南長崎駅 徒歩1分 西武池袋線 東長崎駅 徒歩12分 西武新宿線 中井駅 徒歩14分 東京都新宿区西落合 | 詳細を見る | |
マンション サウンドプルーフステージ桜新町(1LDK/3階) | |||||||
![]() | 24万円 9,900円 | 24万円 なし | 1LDK 34.02m2 | 築1年 | 東急田園都市線 桜新町駅 徒歩8分 東急世田谷線 上町駅 徒歩14分 東京都世田谷区弦巻 | 詳細を見る | |
マンション ジオ西新宿ツインレジデンス ウエスト棟(2LDK/10階) | |||||||
![]() | 24.9万円 1万円 | 24.9万円 24.9万円 | 2LDK 54.76m2 | 築14年 | 東京メトロ丸ノ内線 西新宿駅 徒歩6分 都営大江戸線 新宿西口駅 徒歩9分 JR山手線 新宿駅 徒歩13分 東京都新宿区北新宿 | 詳細を見る | |








