賃貸マンション
メイクスデザイン秋葉原の賃貸物件情報(ワンルーム/9階)
| 家賃 | 管理費等 | 敷金 | 礼金 | 間取り | 専有面積 |
|---|---|---|---|---|---|
| 11.9万円 | 1万円 | なし | なし | ワンルーム | 22.07m2 |
入居決定でお祝い金最大100,000円
- 保証金
- -
- 償却・敷引
- -
- 築年数
- 築24年
- 所在階
- 9階
- 向き
- 西
Point
初期費用分割払い可能☆最大24ヶ月払い☆カード決済も対応しております!!遠方の方や忙しい方向けオンライン内見実施中☆
提供:(株)DoDoNPA中野店(SUUMO経由)

詳細情報 メイクスデザイン秋葉原
物件紹介
メイクスデザイン秋葉原はJR山手線神田駅から徒歩3分にあり、駅近で通勤通学に便利なマンションです。
このお部屋は2階以上に位置しているので、通行人や周囲の住人からの視線が気になりにくく、防犯面でも安心。建物のエントランスはオートロックがついており、インターホンにはTVモニタもついているため、相手の顔を確認してから来客対応することができます。
おしゃれなデザイナーズ物件!人気の角部屋で周囲の居住者の生活音も気になりにくく、また、フローリングのお部屋なのでお掃除もラクラク。キッチンはシステムキッチン仕様になっていますので、お料理好きの方にもぴったり。また、バス・トイレは別で、のんびりお風呂タイムも楽しめるでしょう。
通信設備面では、インターネット接続が可能です。また、BSアンテナ・CSアンテナがありCATVにも対応しているので、おうち時間も充実するでしょう(別途工事、契約料が必要な場合あり)。
建物にはエレベーターがついているので、重い荷物があっても安心。共用部には宅配ボックスが設定されているので、不在の時にも荷物を受け取ることができます。
このお部屋は2階以上に位置しているので、通行人や周囲の住人からの視線が気になりにくく、防犯面でも安心。建物のエントランスはオートロックがついており、インターホンにはTVモニタもついているため、相手の顔を確認してから来客対応することができます。
おしゃれなデザイナーズ物件!人気の角部屋で周囲の居住者の生活音も気になりにくく、また、フローリングのお部屋なのでお掃除もラクラク。キッチンはシステムキッチン仕様になっていますので、お料理好きの方にもぴったり。また、バス・トイレは別で、のんびりお風呂タイムも楽しめるでしょう。
通信設備面では、インターネット接続が可能です。また、BSアンテナ・CSアンテナがありCATVにも対応しているので、おうち時間も充実するでしょう(別途工事、契約料が必要な場合あり)。
建物にはエレベーターがついているので、重い荷物があっても安心。共用部には宅配ボックスが設定されているので、不在の時にも荷物を受け取ることができます。
お金・契約の情報
※「-」と表示されているものは、実際は料金が発生するものもございます。詳細はお問い合わせください。
| 家賃 | 11.9万円 | 管理費・共益費 | 1万円 |
|---|---|---|---|
| 敷金 | なし | 礼金 | なし |
| 入居決定でお祝い金最大100,000円 | |||
| 保証金 | - | 償却・敷引 | - |
| 住宅保険料 | - | 更新料 | - |
| 保証会社利用 | 必須 | 保証会社名 | - |
| 保証会社費用 | - | 保証会社備考 | 保証会社利用必 初回契約時:50%、?額:1.5% 詳細はお問い合わせください。 |
| 契約形態 | - | 契約期間 | - |
| 入居・引渡期間 | 相談 | 現況 | - |
| 契約備考 | 通勤管理 合計5.28万円(内訳:24時間生活サポート1.98万円鍵交換代3.3万円) 更新料 新賃料1.50ヶ月分 室内清掃費用 66000円 ワンルーム 二人入居可 普通借家2年 損保【2万円2年】 バストイレ別、バルコニー、エアコン、クロゼット、TVインターホン、オートロック、室内洗濯置、陽当り良好、シューズボックス、システムキッチン、角住戸、温水洗浄便座、エレベーター、宅配ボックス、CATV、光ファイバー、礼金不要、閑静な住宅地、2面採光、BS・CS、敷金不要、防犯カメラ、IHクッキングヒーター、分譲賃貸、保証人不要、二人入居相談、全居室フローリング、ディンプルキー、ネット専用回線、眺望良好、24時間換気システム、耐火構造、耐震構造、防犯ガラス、高気密住宅、2駅利用可、3駅以上利用可、駅前、防犯強化地域、駅徒歩10分以内、耐風構造、高層階、24時間ゴミ出し可、敷地内ごみ置き場、日勤管理、備付食器棚、都市ガス、敷金・礼金不要、通風良好 | ||
部屋の情報
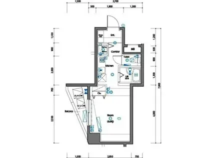
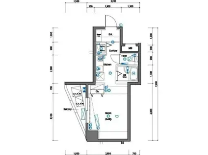
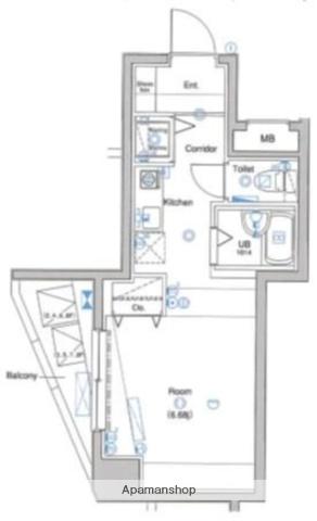
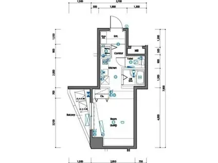
| 間取り | ワンルーム | 専有面積 | 22.07m2 |
|---|---|---|---|
| 所在階 / 向き | 9階 / 西 | バルコニー面積 | - |
| 水道 / ガス | - | ||
| 設備 | バス・トイレ別、2階以上、オートロック、テレビドアホン、宅配ボックス、インターネット対応、システムキッチン、エアコン、エレベーター、温水洗浄便座、角部屋、バルコニー、フローリング、コンロ:IH、CATV、CSアンテナ、BSアンテナ、洗濯機:室内 | ||
| 当社物件ID | 101324003 | ||
建物の情報
| 建物名 | メイクスデザイン秋葉原 | ||
|---|---|---|---|
| 所在地 | 東京都千代田区神田須田町 | ||
| 交通 | JR山手線 秋葉原駅 徒歩6分 都営新宿線 小川町駅(東京) 徒歩6分 東京メトロ銀座線 神田駅(東京) 徒歩6分 | ||
| 階数 | 10階建 | 総戸数 | - |
| 築年月 | 2002年08月 / 築24年 | エレベーター | あり |
| 駐車場 | なし | バイク置き場 | - |
| 駐輪場 | - | 管理人/管理会社 | - |
| 周辺環境 | その他 ローソン 神田明神店(コンビニ)まで627m その他 ジョナサン 御徒町店(飲食店)まで1206m その他 タリーズコーヒー 神田橋本郷通り店(飲食店)まで1123m その他 セブンイレブン 神田万世橋南店(コンビニ)まで284m その他 ミニストップ 岩本町2丁目店(コンビニ)まで747m | ||
| 建物種別 | マンション | 建物構造 | RC(鉄筋コンクリート) |
この部屋の取扱い不動産会社
| 会社名 | PRA(株)青山店(SUUMO経由) | ||
|---|---|---|---|
| 所在地 | 東京都港区北青山1-3-3 三橋ビル8階 | 交通 | - |
| 営業時間 | 9:00~20:00 | 定休日 | 無し |
| 免許番号 | 東京都知事109775 | 取引態様 | 仲介 |
| 不動産会社管理番号 | 100472580079 | 当社管理番号 | 89 |
| 所属団体 | (公社)東京都宅地建物取引業協会会員 | ||
| 公正取引協議会 | (公社)首都圏不動産公正取引協議会加盟 | ||
| 取扱い物件情報 | 物件詳細へ | ||
※各種情報と現状に差異がある場合は、現状優先となります。問い合わせをすることで、より詳しい条件、情報を確認する事ができます。
提供:PRA(株)青山店(SUUMO経由)
この物件が気になったら掲載期限まであと10日
メイクスデザイン秋葉原に条件(家賃・エリア)が近い物件一覧
| 写真 | 家賃 管理費等 | 敷金 礼金 | 間取り 専有面積 | 築年数 | 最寄り駅 所在地 | キープ | 詳細 |
|---|---|---|---|---|---|---|---|
マンション ラ・フラッツ(1K/2階) | |||||||
![]() | 8万円 なし | 8万円 8万円 | 1K 19.8m2 | 築32年 | 東京都三田線 千石駅 徒歩1分 山手線 巣鴨駅 徒歩13分 東京都文京区千石1丁目 | 詳細を見る | |
マンション BLESS蔵前(1LDK/9階) | |||||||
![]() | 16.8万円 1.5万円 | 16.8万円 16.8万円 | 1LDK 41.5m2 | 築9年 | 東京都浅草線 蔵前駅 徒歩4分 東京都浅草線 浅草橋駅 徒歩8分 東京都台東区蔵前1丁目 | 詳細を見る | |
マンション トーシンフェニックス日本橋蛎殻町弐番館(1K/6階) | |||||||
![]() | 9万円 7,000円 | 9万円 9万円 | 1K 19.33m2 | 築22年 | 東京地下鉄半蔵門線 水天宮前駅 徒歩2分 東京地下鉄日比谷線 人形町駅 徒歩7分 東京地下鉄東西線 茅場町駅 徒歩9分 東京都中央区日本橋蛎殻町1丁目 | 詳細を見る | |
マンション ボアビスタ上野御徒町(1DK/5階) | |||||||
![]() | 12.6万円 1.5万円 | 12.6万円 12.6万円 | 1DK 26.5m2 | 築2年 | 東京都大江戸線 新御徒町駅 徒歩4分 東京地下鉄日比谷線 仲御徒町駅 徒歩4分 山手線 御徒町駅 徒歩6分 東京都台東区台東4丁目 | 詳細を見る | |
マンション パークアクシス御茶ノ水ステージ(1K/3階) | |||||||
![]() | 15.2万円 8,000円 | 15.2万円 15.2万円 | 1K 29.7m2 | 築20年 | 東京地下鉄銀座線 末広町駅(東京) 徒歩6分 中央本線 御茶ノ水駅 徒歩8分 山手線 秋葉原駅 徒歩13分 東京都文京区湯島3丁目 | 詳細を見る | |
マンション クラリティア文京湯島(1DK/3階) | |||||||
![]() | 15.8万円 1.5万円 | 15.8万円 なし | 1DK 25.06m2 | 築1年 | 東京地下鉄千代田線 湯島駅 徒歩5分 東京地下鉄銀座線 末広町駅(東京) 徒歩7分 中央本線 御茶ノ水駅 徒歩9分 東京都文京区湯島3丁目 | 詳細を見る | |
マンション メインステージ日本橋箱崎(1K/8階) | |||||||
![]() | 8.3万円 1万円 | 8.3万円 12.45万円 | 1K 20.87m2 | 築28年 | 東京地下鉄半蔵門線 水天宮前駅 徒歩2分 東京地下鉄日比谷線 人形町駅 徒歩7分 東京地下鉄東西線 茅場町駅 徒歩9分 東京都中央区日本橋蛎殻町1丁目 | 詳細を見る | |
マンション クリーンガーデン御茶ノ水(1K/5階) | |||||||
![]() | 10.3万円 4,000円 | なし 10.3万円 | 1K 22.5m2 | 築24年 | 東京都新宿線 小川町駅(東京) 徒歩2分 東京地下鉄丸ノ内線 淡路町駅 徒歩3分 総武・中央緩行線 御茶ノ水駅 徒歩6分 東京都千代田区神田淡路町2丁目 | 詳細を見る | |








