賃貸マンション
センターハイツ梅ヶ丘の賃貸物件情報(2LDK/7階)
| 家賃 | 管理費等 | 敷金 | 礼金 | 間取り | 専有面積 |
|---|---|---|---|---|---|
| 35万円 | 4.013万円 | 35万円 | 35万円 | 2LDK | 90.87m2 |
入居決定でお祝い金最大100,000円
- 保証金
- -
- 償却・敷引
- 35万円(毎年)
- 築年数
- 築40年
- 所在階
- 7階
- 向き
- 南東
Point
室内設備は浴室乾燥機・洗面所独立など豊富に揃っており、過ごしやすいお部屋になっております。
提供:(株)タウンハウジング東京 祖師ヶ谷大蔵店(SUUMO経由)

詳細情報 センターハイツ梅ヶ丘
物件紹介
センターハイツ梅ヶ丘は東急世田谷線若林駅から徒歩9分にあり、駅近で通勤通学に便利なマンションです。
このお部屋は2階以上に位置しているので、通行人や周囲の住人からの視線が気になりにくく、防犯面でも安心。建物のエントランスはオートロックがついており、インターホンにはTVモニタもついているため、相手の顔を確認してから来客対応することができます。
人気の南向き・フローリングのお部屋。角部屋でもあるため、周囲の居住者の生活音も気になりにくい場所です。室内にはウォークインクローゼットとロフトがありますので、たくさんの荷物も効率的に収納ができ、お部屋のアレンジも自在です。キッチンはシステムキッチン仕様になっていますので、お料理好きの方にもぴったり。バス・トイレは別なので、のんびりお風呂タイムも楽しめるでしょう。また、雨の日でも浴室乾燥機を使えば、お洗濯も問題ありません。
通信設備面では、インターネット接続が可能です。また、BSアンテナ・CSアンテナがありCATVにも対応しているので、おうち時間も充実するでしょう(別途工事、契約料が必要な場合あり)。
建物にはエレベーターがついているので、重い荷物があっても安心。共用部には宅配ボックスが設定されているので、不在の時にも荷物を受け取ることができます。また、ペット飼育の相談ができますので、あなたの大切な家族の一員も快適に暮らせるか、ぜひ確認してみてください。
このお部屋は2階以上に位置しているので、通行人や周囲の住人からの視線が気になりにくく、防犯面でも安心。建物のエントランスはオートロックがついており、インターホンにはTVモニタもついているため、相手の顔を確認してから来客対応することができます。
人気の南向き・フローリングのお部屋。角部屋でもあるため、周囲の居住者の生活音も気になりにくい場所です。室内にはウォークインクローゼットとロフトがありますので、たくさんの荷物も効率的に収納ができ、お部屋のアレンジも自在です。キッチンはシステムキッチン仕様になっていますので、お料理好きの方にもぴったり。バス・トイレは別なので、のんびりお風呂タイムも楽しめるでしょう。また、雨の日でも浴室乾燥機を使えば、お洗濯も問題ありません。
通信設備面では、インターネット接続が可能です。また、BSアンテナ・CSアンテナがありCATVにも対応しているので、おうち時間も充実するでしょう(別途工事、契約料が必要な場合あり)。
建物にはエレベーターがついているので、重い荷物があっても安心。共用部には宅配ボックスが設定されているので、不在の時にも荷物を受け取ることができます。また、ペット飼育の相談ができますので、あなたの大切な家族の一員も快適に暮らせるか、ぜひ確認してみてください。
お金・契約の情報
※「-」と表示されているものは、実際は料金が発生するものもございます。詳細はお問い合わせください。
| 家賃 | 35万円 | 管理費・共益費 | 4.013万円 |
|---|---|---|---|
| 敷金 | 35万円 | 礼金 | 35万円 |
| 入居決定でお祝い金最大100,000円 | |||
| 保証金 | - | 償却・敷引 | 35万円(毎年) |
| 住宅保険料 | 1円 | 更新料 | - |
| 保証会社利用 | 必須 | 保証会社名 | - |
| 保証会社費用 | - | 保証会社備考 | 初回保証料:新賃料の50% |
| 契約形態 | - | 契約期間 | 4年 |
| 入居・引渡期間 | 相談 | 現況 | - |
| 入居可能条件 | 2人入居可、楽器不可、ペット相談 | ||
| 契約備考 | ペット相談:小型犬・猫可(飼育時敷金積み増し料金(償却)有り) SOHO使用可 駐輪場:有料 その他設備/条件:室内洗濯機置き場、独立洗面台、クローゼット、シューズボックス、照明器具付き | ||
部屋の情報
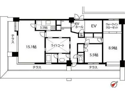
| 間取り | 2LDK | 専有面積 | 90.87m2 |
|---|---|---|---|
| 間取り詳細 | 洋室(8.9帖)、洋室(5.5帖)、LDK(15.1帖) | ||
| 所在階 / 向き | 7階 / 南東 | バルコニー面積 | - |
| 水道 / ガス | 水道【公営】、ガス【都市】 | ||
| 設備 | バス・トイレ別、オートロック、テレビドアホン、浴室乾燥機、ウォークインクローゼット、追い焚き、インターネット対応、システムキッチン、エアコン、エレベーター、温水洗浄便座、角部屋、バルコニー、3口コンロ、コンロ:ガス、シャワー、給湯、タイル張り | ||
| 当社物件ID | 25821763 | ||
建物の情報
| 建物名 | センターハイツ梅ヶ丘 | ||
|---|---|---|---|
| 所在地 | 東京都世田谷区若林5丁目 | ||
| 交通 | 東急世田谷線 若林駅(東京) 徒歩10分 小田急電鉄小田原線 梅ケ丘駅 徒歩11分 | ||
| 階数 | 7階建 | 総戸数 | - |
| 築年月 | 1986年07月 / 築40年 | エレベーター | あり |
| 駐車場 | 空有 2.7万円/月 | バイク置き場 | - |
| 駐輪場 | あり | 管理人/管理会社 | - |
| 周辺環境 | 中学校 世田谷区立弦巻中学校 徒歩24分(1864m) その他 ドラッグストア その他 公園 その他 銀行 その他 * | ||
| 建物種別 | マンション | 建物構造 | RC(鉄筋コンクリート) |
この部屋の取扱い不動産会社
| 会社名 | ハウスコム西東京株式会社 明大前店 | ||
|---|---|---|---|
| 所在地 | 東京都世田谷区44-1グランシーン明大前1階 | 交通 | - |
| 営業時間 | 10:00~18:00 | 定休日 | - |
| 免許番号 | 東京都知事(1)第108225号 | 取引態様 | 仲介 |
| 不動産会社管理番号 | HC2-596822-702-0133 | 当社管理番号 | 468 |
| 所属団体 | 、 | ||
| 取扱い物件情報 | 物件詳細へ | ||
※各種情報と現状に差異がある場合は、現状優先となります。問い合わせをすることで、より詳しい条件、情報を確認する事ができます。
提供:ハウスコム西東京株式会社 明大前店
この物件が気になったら掲載期限まであと4日
センターハイツ梅ヶ丘に条件(家賃・エリア)が近い物件一覧
| 写真 | 家賃 管理費等 | 敷金 礼金 | 間取り 専有面積 | 築年数 | 最寄り駅 所在地 | キープ | 詳細 |
|---|---|---|---|---|---|---|---|
マンション LIVECASA高円寺(2LDK/6階) | |||||||
![]() | 25.7万円 1.5万円 | 25.7万円 なし | 2LDK 49.06m2 | 築1年 | JR中央線 高円寺駅 徒歩8分 東京メトロ丸ノ内線 東高円寺駅 徒歩9分 JR中央線 中野駅(東京) 徒歩17分 東京都杉並区高円寺南 | 詳細を見る | |
マンション クールブラン西荻窪(3LDK/1階) | |||||||
![]() | 25.5万円 2万円 | なし なし | 3LDK 63.53m2 | 築1年 | JR総武線 西荻窪駅 徒歩13分 西武新宿線 上井草駅 徒歩22分 東京都杉並区桃井 | 詳細を見る | |
マンション ザ・パークハウス西馬込(3LDK/5階) | |||||||
![]() | 23.5万円 2.5万円 | 47万円 23.5万円 | 3LDK 74.33m2 | 築9年 | 都営浅草線 西馬込駅 徒歩10分 都営浅草線 馬込駅 徒歩13分 東急大井町線 荏原町駅 徒歩20分 東京都大田区中馬込 | 詳細を見る | |
マンション オーパスレジデンス目黒洗足(2LDK/5階) | |||||||
![]() | 27.1万円 1.5万円 | 27.1万円 なし | 2LDK 53.48m2 | 築6年 | 東急目黒線 洗足駅 徒歩5分 東急大井町線 北千束駅 徒歩5分 東急池上線 長原駅(東京) 徒歩10分 東京都大田区北千束 | 詳細を見る | |
マンション クオリスタ松陰神社(2LDK/3階) | |||||||
![]() | 31.5万円 1.4万円 | 31.5万円 31.5万円 | 2LDK 72.1m2 | 築1年 | 東急世田谷線 世田谷駅 徒歩3分 東急世田谷線 松陰神社前駅 徒歩4分 小田急線 梅ケ丘駅 徒歩20分 東京都世田谷区世田谷 | 詳細を見る | |
マンション ロイヤルハウス都立大(3LDK/2階) | |||||||
![]() | 25.5万円 1.5万円 | 25.5万円 25.5万円 | 3LDK 77.55m2 | 築37年 | 東急東横線 都立大学駅 徒歩2分 東急東横線 学芸大学駅 徒歩19分 東京都目黒区平町1丁目 | 詳細を見る | |
マンション RJRプレシア蒲田(1SLDK/5階) | |||||||
![]() | 21.4万円 1.5万円 | なし なし | 1SLDK 40.3m2 | 新築 | JR京浜東北線 蒲田駅 徒歩10分 東急池上線 蒲田駅 徒歩11分 京急空港線 糀谷駅 徒歩29分 東京都大田区西蒲田 | 詳細を見る | |







