賃貸マンション
ドウェル大倉山 B棟の賃貸物件情報(1K/2階)
| 家賃 | 管理費等 | 敷金 | 礼金 | 間取り | 専有面積 |
|---|---|---|---|---|---|
| 7.1万円 | 1,000円 | 7.1万円 | なし | 1K | 26.4m2 |
入居決定でお祝い金最大100,000円
- 保証金
- -
- 償却・敷引
- 7.1万円
- 築年数
- 築38年
- 所在階
- 2階
- 向き
- 西
Point
収納
提供:(株)サンライズ建設(SUUMO経由)

詳細情報 ドウェル大倉山 B棟
物件紹介
ドウェル大倉山 B棟は東急東横線大倉山駅から徒歩2分にあり、駅近で通勤通学に便利なマンションです。
このお部屋は2階以上に位置しているので、通行人や周囲の住人からの視線が気になりにくく、防犯面でも安心です。
キッチンはシステムキッチン仕様になっていますので、お料理好きの方にもぴったり。
通信設備面では、インターネット接続が可能です(別途工事、契約料が必要な場合あり)。
このお部屋は2階以上に位置しているので、通行人や周囲の住人からの視線が気になりにくく、防犯面でも安心です。
キッチンはシステムキッチン仕様になっていますので、お料理好きの方にもぴったり。
通信設備面では、インターネット接続が可能です(別途工事、契約料が必要な場合あり)。
お金・契約の情報
※「-」と表示されているものは、実際は料金が発生するものもございます。詳細はお問い合わせください。
| 家賃 | 7.1万円 | 管理費・共益費 | 1,000円 |
|---|---|---|---|
| 敷金 | 7.1万円 | 礼金 | なし |
| 入居決定でお祝い金最大100,000円 | |||
| 保証金 | - | 償却・敷引 | 7.1万円 |
| 住宅保険料 | - | 更新料 | - |
| 保証会社利用 | 必須 | 保証会社名 | 日本セーフティー |
| 保証会社費用 | - | 保証会社備考 | 日本セーフティー利用必 初回保証料総賃料の50% 月額保証料800円 口座振替料330円 |
| 契約形態 | - | 契約期間 | - |
| 入居・引渡期間 | - | 現況 | - |
| 契約備考 | カギ交換費用無料 1K 単身者限定 損保【1.4万円2年】 バルコニー、エアコン、室内洗濯置、シューズボックス、システムキッチン、光ファイバー、礼金不要、3口以上コンロ、敷金1ヶ月、3駅以上利用可、駅徒歩5分以内、都市ガス 入居日:'26年2月中旬 | ||
部屋の情報
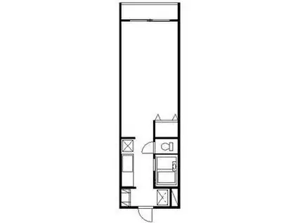
| 間取り | 1K | 専有面積 | 26.4m2 |
|---|---|---|---|
| 所在階 / 向き | 2階 / 西 | バルコニー面積 | - |
| 水道 / ガス | - | ||
| 設備 | 2階以上、インターネット対応、システムキッチン、エアコン、バルコニー、2口コンロ、洗濯機:室内 | ||
| 当社物件ID | 160202847 | ||
建物の情報
| 建物名 | ドウェル大倉山 B棟 | ||
|---|---|---|---|
| 所在地 | 神奈川県横浜市港北区大倉山 | ||
| 交通 | 東急東横線 大倉山駅(神奈川) 徒歩2分 東急東横線 菊名駅 徒歩17分 東急東横線 綱島駅 徒歩23分 | ||
| 階数 | 3階建 | 総戸数 | 18戸 |
| 築年月 | 1988年03月 / 築38年 | エレベーター | - |
| 駐車場 | なし | バイク置き場 | - |
| 駐輪場 | - | 管理人/管理会社 | - |
| 周辺環境 | その他 TSUTAYA大倉山店(レンタルビデオ)まで238m その他 ハックドラッグ大倉山店(ドラッグストア)まで22m その他 ファミリーマートプローラ大倉山店(コンビニ)まで16m その他 マルエツ大倉山店(スーパー)まで199m その他 東急ストアフードステーション大倉山店(スーパー)まで107m その他 横浜市港北区役所(役所)まで470m | ||
| 建物種別 | マンション | 建物構造 | RC(鉄筋コンクリート) |
この部屋の取扱い不動産会社
| 会社名 | (株)サンライズ建設(SUUMO経由) | ||
|---|---|---|---|
| 所在地 | 神奈川県横浜市港北区綱島東2-12-1 シャテルタワー1階 | 交通 | - |
| 営業時間 | AM10:00~PM18:00 | 定休日 | 火曜日、水曜日、祝日 |
| 免許番号 | 神奈川県知事28448 | 取引態様 | 仲介 |
| 不動産会社管理番号 | 100482404575 | 当社管理番号 | 89 |
| 所属団体 | (公社)神奈川県宅地建物取引業協会会員 | ||
| 公正取引協議会 | (公社)首都圏不動産公正取引協議会加盟 | ||
| 取扱い物件情報 | 物件詳細へ | ||
※各種情報と現状に差異がある場合は、現状優先となります。問い合わせをすることで、より詳しい条件、情報を確認する事ができます。
提供:(株)サンライズ建設(SUUMO経由)
この物件が気になったら掲載期限まであと10日
ドウェル大倉山 B棟に条件(家賃・エリア)が近い物件一覧
| 写真 | 家賃 管理費等 | 敷金 礼金 | 間取り 専有面積 | 築年数 | 最寄り駅 所在地 | キープ | 詳細 |
|---|---|---|---|---|---|---|---|
マンション 公郷エスポア(1K/2階) | |||||||
![]() | 5万円 3,000円 | 5万円 なし | 1K 23.4m2 | 築24年 | 京急久里浜線 北久里浜駅 徒歩16分 神奈川県横須賀市公郷町 | 詳細を見る | |
アパート ハイツセイワ(2DK/2階) | |||||||
![]() | 7万円 なし | 7万円 なし | 2DK 42m2 | 築27年 | 神奈川県川崎市高津区子母口 | 詳細を見る | |
アパート ビブロポート溝の口(1K/1階) | |||||||
![]() | 7.5万円 5,000円 | なし なし | 1K 18.48m2 | 築1年 | JR南武線 津田山駅 徒歩6分 東急田園都市線 溝の口駅 徒歩15分 東急田園都市線 梶が谷駅 徒歩17分 神奈川県川崎市高津区下作延 | 詳細を見る | |
アパート FELICE江ノ島(1K/2階) | |||||||
![]() | 7.5万円 4,000円 | なし なし | 1K 26.5m2 | 新築 | 湘南モノレール 湘南江の島駅 徒歩2分 神奈川県藤沢市片瀬3丁目 | 詳細を見る | |
アパート エクレール辻堂Ⅰ(1K/1階) | |||||||
![]() | 6.8万円 4,000円 | なし なし | 1K 24.46m2 | 築18年 | 東海道本線 辻堂駅 徒歩15分 神奈川県藤沢市辻堂元町5丁目 | 詳細を見る | |
テラスハウス N参番館B棟(2LDK) | |||||||
![]() | 10.5万円 なし | 10.5万円 15.75万円 | 2LDK 57.96m2 | 築15年 | 京浜急行電鉄本線 県立大学駅 徒歩4分 神奈川県横須賀市安浦町3丁目 | 詳細を見る | |
マンション リクレイシア・コルテ川崎元木(1K/10階) | |||||||
![]() | 7.7万円 8,000円 | なし なし | 1K 21m2 | 築19年 | 京急本線 八丁畷駅 徒歩5分 JR京浜東北線 川崎駅 徒歩15分 京急本線 鶴見市場駅 徒歩15分 神奈川県川崎市川崎区元木 | 詳細を見る | |
アパート レオネクストセレンディップ久末(1K/2階) | |||||||
![]() | 6万円 5,500円 | なし なし | 1K 26.09m2 | 築14年 | 神奈川県川崎市高津区久末 | 詳細を見る | |









