賃貸マンション
PARK SIDE MIBU ANNEXの賃貸物件情報(1LDK/2階)
| 家賃 | 管理費等 | 敷金 | 礼金 | 間取り | 専有面積 |
|---|---|---|---|---|---|
| 7.2万円 | 8,000円 | なし | 18万円 | 1LDK | 30.22m2 |
入居決定でお祝い金最大100,000円
- 保証金
- -
- 償却・敷引
- -
- 築年数
- 築17年
- 所在階
- 2階
- 向き
- 南
Point
ペット可でオール電化 小型犬・ネコ2匹まで飼育可能、家賃3000円UPになります
提供:株式会社 京都ライフ 烏丸五条店(賃貸スモッカ経由)

詳細情報 PARK SIDE MIBU ANNEX
物件紹介
PARK SIDE MIBU ANNEXは山陰本線丹波口駅から徒歩10分にあり、駅近で通勤通学に便利なマンションです。
このお部屋は2階以上に位置しているので通行人や周囲の住人からの視線が気になりにくく、建物のエントランスはオートロックがついているので防犯性が高くなっています。
人気の南向き・フローリングのお部屋。角部屋でもあるため、周囲の居住者の生活音も気になりにくい場所です。キッチンはシステムキッチン仕様になっていますので、お料理好きの方にもぴったり。また、バス・トイレは別で、のんびりお風呂タイムも楽しめるでしょう。
通信設備面では、インターネット接続が可能です。また、BSアンテナもありますので、おうち時間も充実するでしょう(別途工事、契約料が必要な場合あり)。
ペット飼育の相談ができますので、あなたの大切な家族の一員も快適に暮らせるか、ぜひ確認してみてください。
このお部屋は2階以上に位置しているので通行人や周囲の住人からの視線が気になりにくく、建物のエントランスはオートロックがついているので防犯性が高くなっています。
人気の南向き・フローリングのお部屋。角部屋でもあるため、周囲の居住者の生活音も気になりにくい場所です。キッチンはシステムキッチン仕様になっていますので、お料理好きの方にもぴったり。また、バス・トイレは別で、のんびりお風呂タイムも楽しめるでしょう。
通信設備面では、インターネット接続が可能です。また、BSアンテナもありますので、おうち時間も充実するでしょう(別途工事、契約料が必要な場合あり)。
ペット飼育の相談ができますので、あなたの大切な家族の一員も快適に暮らせるか、ぜひ確認してみてください。
お金・契約の情報
※「-」と表示されているものは、実際は料金が発生するものもございます。詳細はお問い合わせください。
| 家賃 | 7.2万円 | 管理費・共益費 | 8,000円 |
|---|---|---|---|
| 敷金 | なし | 礼金 | 18万円 |
| 入居決定でお祝い金最大100,000円 | |||
| 保証金 | - | 償却・敷引 | - |
| 住宅保険料 | 住宅保険料あり | 更新料 | - |
| 契約形態 | - | 契約期間 | 2年 |
| 入居・引渡期間 | 即時 | 現況 | 空室 |
| 契約備考 | 小型犬・ネコ2匹まで飼育可能、家賃3000円UPになります 立地的にも、少し行けば七条商店街が広がっているので、昔ながらの京都の商売人を感じたいのであればここに住むべしです。古き良き時代の下町が広がっていますよ。 毎日がひょっとしてお祭り気分になるかも ワンちゃんと一緒に散歩でもしながら買い物でしませんか。 更新料:1ヶ月 保証会社:利用必須 初回:月額賃料等の40%、月額:保証料1万円 その他設備/条件:コンロ2口以上、独立洗面台、即入居可 | ||
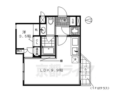
部屋の情報
| 間取り | 1LDK | 専有面積 | 30.22m2 |
|---|---|---|---|
| 間取り詳細 | 洋室(3.5帖)、LDK(9.9帖) | ||
| 所在階 / 向き | 2階 / 南 | バルコニー面積 | - |
| 水道 / ガス | - | ||
| 設備 | バス・トイレ別、2階以上、オートロック、インターネット対応、システムキッチン、エアコン、温水洗浄便座、南向き、角部屋、バルコニー、フローリング、オール電化、コンロ:IH、BSアンテナ、洗濯機:室内 | ||
| 当社物件ID | 13177438 | ||
建物の情報
| 建物名 | PARK SIDE MIBU ANNEX | ||
|---|---|---|---|
| 所在地 | 京都府京都市下京区夷馬場町 | ||
| 交通 | 山陰本線 丹波口駅 徒歩10分 東海道本線 京都駅 徒歩18分 | ||
| 階数 | 3階建 | 総戸数 | - |
| 築年月 | 2010年03月 / 築17年 | エレベーター | - |
| 駐車場 | - | バイク置き場 | - |
| 駐輪場 | あり | 管理人/管理会社 | - |
| 建物種別 | マンション | 建物構造 | RC(鉄筋コンクリート) |
この部屋の取扱い不動産会社
| 会社名 | 株式会社 京都ライフ 京都駅前店(賃貸スモッカ経由) | ||
|---|---|---|---|
| 所在地 | 京都市下京区東洞院通七条下ル東塩小路町717-1 | 交通 | - |
| 営業時間 | - | 定休日 | - |
| 免許番号 | 京都府知事(11)第6353号 | 取引態様 | 仲介 |
| 不動産会社管理番号 | kyotolife_24762-204-A | 当社管理番号 | 463 |
| 所属団体 | 京都府宅地建物取引業協会\n公益社団法人近畿地区不動産公正取引協議会 | ||
| 公正取引協議会 | 全国宅地建物取引業保証協会 | ||
| 取扱い物件情報 | 物件詳細へ | ||
※各種情報と現状に差異がある場合は、現状優先となります。問い合わせをすることで、より詳しい条件、情報を確認する事ができます。
提供:株式会社 京都ライフ 京都駅前店(賃貸スモッカ経由)
この物件が気になったら掲載期限まであと5日
PARK SIDE MIBU ANNEXに条件(家賃・エリア)が近い物件一覧
| 写真 | 家賃 管理費等 | 敷金 礼金 | 間取り 専有面積 | 築年数 | 最寄り駅 所在地 | キープ | 詳細 |
|---|---|---|---|---|---|---|---|
アパート プチメゾン(1LDK/2階) | |||||||
![]() | 6.5万円 5,000円 | 6.5万円 6.5万円 | 1LDK 39.42m2 | 築37年 | 阪急京都線 長岡天神駅 徒歩7分 JR東海道本線 長岡京駅 徒歩9分 京都府長岡京市開田 | 詳細を見る | |
マンション 山陰本線 丹波口駅 徒歩10分 築10年(ワンルーム/3階) | |||||||
![]() | 6.6万円 1.1万円 | なし 6.6万円 | ワンルーム 19.72m2 | 築10年 | 山陰本線 丹波口駅 徒歩10分 京都市烏丸線 五条駅(京都市営) 徒歩14分 京都府京都市下京区堀之上町 | 詳細を見る | |
アパート 山陰本線 丹波口駅 徒歩5分 築1年(1LDK/1階) | |||||||
![]() | 9.6万円 8,000円 | なし 9.6万円 | 1LDK 37.81m2 | 築1年 | 山陰本線 丹波口駅 徒歩5分 東海道本線 京都駅 徒歩25分 京都府京都市下京区西新屋敷下之町 | 詳細を見る | |
アパート 京阪電気鉄道京阪線 橋本駅(京都) 徒歩13分 築22年(1K/2階) | |||||||
![]() | 7.4万円 7,000円 | なし 7.4万円 | 1K 23.18m2 | 築22年 | 京阪電気鉄道京阪線 橋本駅(京都) 徒歩13分 京阪電気鉄道京阪線 石清水八幡宮駅 徒歩18分 京都府八幡市橋本西刈又 | 詳細を見る | |
マンション ヴィーヴル向日(2LDK/4階) | |||||||
![]() | 6.6万円 5,000円 | 5.5万円 5.5万円 | 2LDK 51.15m2 | 築38年 | 阪急京都線 西向日駅 徒歩5分 JR東海道本線 向日町駅 徒歩27分 JR東海道本線 長岡京駅 徒歩29分 京都府向日市向日町南山 | 詳細を見る | |
マンション 京都市東西線 六地蔵駅(京都市営) 徒歩3分 築1年(1LDK/3階) | |||||||
![]() | 7.9万円 6,000円 | なし 11.85万円 | 1LDK 27.26m2 | 築1年 | 京都市東西線 六地蔵駅(京都市営) 徒歩3分 奈良線 六地蔵駅(JR) 徒歩4分 京都府宇治市六地蔵 | 詳細を見る | |
マンション 山陰本線 丹波口駅 徒歩12分 築20年(1DK/8階) | |||||||
![]() | 6.5万円 7,000円 | なし 10万円 | 1DK 30m2 | 築20年 | 山陰本線 丹波口駅 徒歩12分 東海道本線 京都駅 徒歩18分 京都府京都市下京区観喜寺町 | 詳細を見る | |








