賃貸マンション
セントラル ドーミトリー/1の賃貸物件情報(2DK/3階)
| 家賃 | 管理費等 | 敷金 | 礼金 | 間取り | 専有面積 |
|---|---|---|---|---|---|
| 4.2万円 | 3,000円 | 8.4万円 | なし | 2DK | 43.74m2 |
入居決定でお祝い金最大100,000円
Point
まずはお問い合わせ!
不動産会社は街のプロ、あなたに合った物件がきっと見つかります。
提供:東和ハウジング開発(株)(SUUMO経由)

詳細情報 セントラル ドーミトリー/1
物件紹介
セントラル ドーミトリー/1は豊橋鉄道渥美線柳生橋駅から徒歩12分にあるマンションです。
このお部屋は2階以上に位置しているので通行人や周囲の住人からの視線が気になりにくく、建物のエントランスはオートロックがついているので防犯性が高くなっています。
人気の南向きのお部屋。キッチンはシステムキッチン仕様になっていますので、お料理好きの方にもぴったり。また、バス・トイレは別で、のんびりお風呂タイムも楽しめるでしょう。
このお部屋は2階以上に位置しているので通行人や周囲の住人からの視線が気になりにくく、建物のエントランスはオートロックがついているので防犯性が高くなっています。
人気の南向きのお部屋。キッチンはシステムキッチン仕様になっていますので、お料理好きの方にもぴったり。また、バス・トイレは別で、のんびりお風呂タイムも楽しめるでしょう。
お金・契約の情報
※「-」と表示されているものは、実際は料金が発生するものもございます。詳細はお問い合わせください。
| 家賃 | 4.2万円 | 管理費・共益費 | 3,000円 |
|---|---|---|---|
| 敷金 | 8.4万円 | 礼金 | なし |
| 入居決定でお祝い金最大100,000円 | |||
| 保証金 | - | 償却・敷引 | - |
| 住宅保険料 | - | 更新料 | - |
| 契約形態 | - | 契約期間 | - |
| 入居・引渡期間 | - | 現況 | - |
| 契約備考 | アマゾン『置き配』可能です。 2DK 普通借家1年 損保【1.5万円2年】 バストイレ別、エアコン、オートロック、室内洗濯置、システムキッチン、洗面所独立、2口コンロ、閑静な住宅地、照明付、敷地内ごみ置き場、東南向き、都市ガス 入居日:'26年5月下旬 | ||
部屋の情報
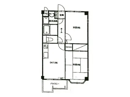
| 間取り | 2DK | 専有面積 | 43.74m2 |
|---|---|---|---|
| 所在階 / 向き | 3階 / 南東 | バルコニー面積 | - |
| 水道 / ガス | - | ||
| 設備 | バス・トイレ別、2階以上、オートロック、システムキッチン、エアコン、南向き、洗髪洗面化粧台、2口コンロ、洗濯機:室内 | ||
| 当社物件ID | 14007895 | ||
建物の情報
| 建物名 | セントラル ドーミトリー/1 | ||
|---|---|---|---|
| 所在地 | 愛知県豊橋市東小池町 | ||
| 交通 | 豊橋鉄道渥美線 柳生橋駅 徒歩12分 | ||
| 階数 | 4階建 | 総戸数 | 21戸 |
| 築年月 | 1999年03月 / 築28年 | エレベーター | - |
| 駐車場 | 空有 4400円 | バイク置き場 | - |
| 駐輪場 | - | 管理人/管理会社 | - |
| 建物種別 | マンション | 建物構造 | 鉄骨造 |
この部屋の取扱い不動産会社
| 会社名 | 東和ハウジング開発(株)(SUUMO経由) | ||
|---|---|---|---|
| 所在地 | 愛知県豊橋市藤沢町 128 | 交通 | - |
| 営業時間 | 9:00~19:00(土日祝9:00~18:00) | 定休日 | - |
| 免許番号 | 愛知県知事4797 | 取引態様 | 仲介 |
| 不動産会社管理番号 | 100031469224 | 当社管理番号 | 89 |
| 所属団体 | (公社)愛知県宅地建物取引業協会会員 | ||
| 公正取引協議会 | 東海不動産公正取引協議会加盟 | ||
| 取扱い物件情報 | 物件詳細へ | ||
※各種情報と現状に差異がある場合は、現状優先となります。問い合わせをすることで、より詳しい条件、情報を確認する事ができます。
提供:東和ハウジング開発(株)(SUUMO経由)
この物件が気になったら掲載期限まであと10日
セントラル ドーミトリー/1に条件(家賃・エリア)が近い物件一覧
| 写真 | 家賃 管理費等 | 敷金 礼金 | 間取り 専有面積 | 築年数 | 最寄り駅 所在地 | キープ | 詳細 |
|---|---|---|---|---|---|---|---|
アパート レオパレス成海(1K/1階) | |||||||
![]() | 4.8万円 5,000円 | なし 4.8万円 | 1K 22.35m2 | 築18年 | 名鉄名古屋本線 国府駅(愛知) 徒歩11分 名鉄名古屋本線 御油駅 徒歩15分 名鉄豊川線 八幡駅(愛知) 徒歩39分 愛知県豊川市八幡町黒仏 | 詳細を見る | |
アパート ハイツ河原D棟(1SLDK/1階) | |||||||
![]() | 4.7万円 4,000円 | なし なし | 1SLDK 47.86m2 | 築42年 | 名鉄名古屋本線 御油駅 徒歩10分 名鉄名古屋本線 国府駅(愛知) 徒歩19分 愛知県豊川市御油町下川原 | 詳細を見る | |
アパート エスポワール小野(3DK/3階) | |||||||
![]() | 4万円 3,000円 | なし なし | 3DK 58.32m2 | 築39年 | JR東海道本線 愛知御津駅 徒歩9分 愛知県豊川市御津町御馬 | 詳細を見る | |
一戸建て 名鉄名古屋本線 伊奈駅 徒歩11分 築24年(3DK) | |||||||
![]() | 6万円 2,000円 | 12万円 なし | 3DK 66.94m2 | 築24年 | 名鉄名古屋本線 伊奈駅 徒歩11分 名鉄名古屋本線 小田渕駅 徒歩17分 愛知県豊川市伊奈町南山新田 | 詳細を見る | |
アパート レオパレス好光Ⅰ(1K/1階) | |||||||
![]() | 3.8万円 5,000円 | なし なし | 1K 23.61m2 | 築19年 | 愛知県豊橋市瓜郷町八反田 | 詳細を見る | |
アパート 宮ハイツ(3DK/2階) | |||||||
![]() | 5.2万円 3,000円 | なし なし | 3DK 66.8m2 | 築43年 | JR飯田線 船町駅 徒歩13分 JR東海道本線 豊橋駅 徒歩21分 JR飯田線 下地駅 徒歩27分 愛知県豊橋市菰口町 | 詳細を見る | |
アパート MOKAII(2K/2階) | |||||||
![]() | 2.9万円 2,000円 | なし なし | 2K 33m2 | 築36年 | JR東海道本線 新所原駅 徒歩75分 JR東海道本線 二川駅 徒歩84分 愛知県豊橋市東細谷町西畑 | 詳細を見る | |
アパート ル・ソレイユ上宿(1LDK/1階) | |||||||
![]() | 6.2万円 3,500円 | なし 7.2万円 | 1LDK 44.82m2 | 築9年 | 名鉄名古屋本線 国府駅(愛知) 徒歩8分 名鉄名古屋本線 御油駅 徒歩16分 愛知県豊川市八幡町黒仏 | 詳細を見る | |









