賃貸マンション
ドムス鴨川の賃貸物件情報(3LDK/3階)
| 家賃 | 管理費等 | 敷金 | 礼金 | 間取り | 専有面積 |
|---|---|---|---|---|---|
| 27万円 | 2万円 | 20万円 | 50万円 | 3LDK | 129.82m2 |
入居決定でお祝い金最大100,000円
Point
京極学区・稀少ファミリー物件 交通買物便利。鴨川近く環境良好。設備充実、居室広々。京極学区
提供:株式会社 京都ライフ 二条駅前店(賃貸スモッカ経由)

詳細情報 ドムス鴨川
物件紹介
ドムス鴨川は地下鉄烏丸線鞍馬口駅から徒歩10分にあり、駅近で通勤通学に便利なマンションです。
このお部屋は2階以上に位置しているので、通行人や周囲の住人からの視線が気になりにくく、防犯面でも安心。建物のエントランスはオートロックがついており、インターホンにはTVモニタもついているため、相手の顔を確認してから来客対応することができます。
人気の南向きのお部屋。また、フローリングなのでお掃除もラクラク。キッチンはシステムキッチン仕様になっていますので、お料理好きの方にもぴったり。また、バス・トイレは別で、のんびりお風呂タイムも楽しめるでしょう。
通信設備面では、インターネット接続が可能です。また、BSアンテナもありますので、おうち時間も充実するでしょう(別途工事、契約料が必要な場合あり)。
建物にはエレベーターがついているので、重い荷物があっても安心。また、ペット飼育の相談ができますので、あなたの大切な家族の一員も快適に暮らせるか、ぜひ確認してみてください。
このお部屋は2階以上に位置しているので、通行人や周囲の住人からの視線が気になりにくく、防犯面でも安心。建物のエントランスはオートロックがついており、インターホンにはTVモニタもついているため、相手の顔を確認してから来客対応することができます。
人気の南向きのお部屋。また、フローリングなのでお掃除もラクラク。キッチンはシステムキッチン仕様になっていますので、お料理好きの方にもぴったり。また、バス・トイレは別で、のんびりお風呂タイムも楽しめるでしょう。
通信設備面では、インターネット接続が可能です。また、BSアンテナもありますので、おうち時間も充実するでしょう(別途工事、契約料が必要な場合あり)。
建物にはエレベーターがついているので、重い荷物があっても安心。また、ペット飼育の相談ができますので、あなたの大切な家族の一員も快適に暮らせるか、ぜひ確認してみてください。
お金・契約の情報
※「-」と表示されているものは、実際は料金が発生するものもございます。詳細はお問い合わせください。
| 家賃 | 27万円 | 管理費・共益費 | 2万円 |
|---|---|---|---|
| 敷金 | 20万円 | 礼金 | 50万円 |
| 入居決定でお祝い金最大100,000円 | |||
| 保証金 | - | 償却・敷引 | - |
| 住宅保険料 | 住宅保険料あり | 更新料 | - |
| 契約形態 | - | 契約期間 | 2年 |
| 入居・引渡期間 | 即時 | 現況 | 空室 |
| 契約備考 | 京都市上京区 出町エリアの3LDKマンションです。叡山、京阪、地下鉄のトリプルアクセス。嬉しい3点セパレートにシステムキッチン、温水洗浄便座など充実の設備。オートロックでセキュリティも安心です。コンビニ、スーパー、ドラッグストアなど近くにあって便利ですよ。光ファイバー対応しています。 ゴミ処理代:2,000円 駐輪場:200円 更新料:1ヶ月 保証会社:利用必須 初回:月額賃料等の50%、更新時:1.3万円/1年 その他設備/条件:最上階の物件、コンロ2口以上、TVドアホン、即入居可 | ||
部屋の情報
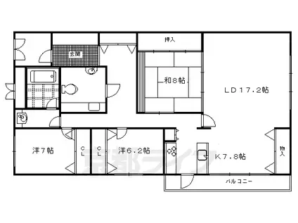
| 間取り | 3LDK | 専有面積 | 129.82m2 |
|---|---|---|---|
| 間取り詳細 | 洋室(7帖)、洋室(6.2帖)、和室(8帖)、LDK(17.2帖) | ||
| 所在階 / 向き | 3階 / 南東 | バルコニー面積 | - |
| 水道 / ガス | ガス【都市】 | ||
| 設備 | バス・トイレ別、2階以上、オートロック、追い焚き、インターネット対応、システムキッチン、カウンターキッチン、エアコン、エレベーター、温水洗浄便座、南向き、バルコニー、フローリング、コンロ:ガス、BSアンテナ、洗濯機:室内、有線放送 | ||
| 当社物件ID | 1883886 | ||
建物の情報
| 建物名 | ドムス鴨川 | ||
|---|---|---|---|
| 所在地 | 京都府京都市上京区鶴山町 | ||
| 交通 | 京都市烏丸線 今出川駅 徒歩12分 京都市烏丸線 北大路駅 徒歩14分 | ||
| 階数 | 3階建 | 総戸数 | - |
| 築年月 | 1990年12月 / 築36年 | エレベーター | あり |
| 駐車場 | - | バイク置き場 | あり |
| 駐輪場 | あり | 管理人/管理会社 | - |
| 建物種別 | マンション | 建物構造 | RC(鉄筋コンクリート) |
この部屋の取扱い不動産会社
| 会社名 | 株式会社 京都ライフ 北大路店(賃貸スモッカ経由) | ||
|---|---|---|---|
| 所在地 | 京都市北区小山上総町11 | 交通 | - |
| 営業時間 | - | 定休日 | - |
| 免許番号 | 京都府知事(11)第6353号 | 取引態様 | 仲介 |
| 不動産会社管理番号 | kyotolife_08610-302-22 | 当社管理番号 | 463 |
| 所属団体 | 京都府宅地建物取引業協会\n公益社団法人近畿地区不動産公正取引協議会 | ||
| 公正取引協議会 | 全国宅地建物取引業保証協会 | ||
| 取扱い物件情報 | 物件詳細へ | ||
※各種情報と現状に差異がある場合は、現状優先となります。問い合わせをすることで、より詳しい条件、情報を確認する事ができます。
提供:株式会社 京都ライフ 北大路店(賃貸スモッカ経由)
この物件が気になったら掲載期限まであと6日
ドムス鴨川に条件(家賃・エリア)が近い物件一覧
| 写真 | 家賃 管理費等 | 敷金 礼金 | 間取り 専有面積 | 築年数 | 最寄り駅 所在地 | キープ | 詳細 |
|---|---|---|---|---|---|---|---|
マンション 京都市東西線 二条城前駅 徒歩14分 新築(2LDK/1階) | |||||||
![]() | 16.95万円 8,100円 | なし 16.95万円 | 2LDK 58.57m2 | 新築 | 京都市東西線 二条城前駅 徒歩14分 京都市烏丸線 丸太町駅(京都市営) 徒歩15分 京都府京都市上京区橋西二町目 | 詳細を見る | |
マンション 京福北野線 北野白梅町駅 徒歩12分 新築(2LDK/6階) | |||||||
![]() | 17万円 1万円 | なし 17万円 | 2LDK 50.35m2 | 新築 | 京福北野線 北野白梅町駅 徒歩12分 京都市烏丸線 今出川駅 徒歩23分 京都府京都市上京区西上善寺町 | 詳細を見る | |
マンション アトラス京都御所西(2LDK/2階) | |||||||
![]() | 18万円 1万円 | 18万円 36万円 | 2LDK 63.11m2 | 築6年 | 地下鉄烏丸線 今出川駅 徒歩3分 京阪鴨東線 出町柳駅 徒歩18分 地下鉄烏丸線 丸太町駅(京都市営) 徒歩18分 京都府京都市上京区堀出シ町 | 詳細を見る | |
マンション 京都市烏丸線 鞍馬口駅 徒歩20分 築20年(1SLDK/1階) | |||||||
![]() | 24.5万円 5,000円 | 24.5万円 24.5万円 | 1SLDK 85.87m2 | 築20年 | 京都市烏丸線 鞍馬口駅 徒歩20分 京都市烏丸線 北大路駅 徒歩22分 京都府京都市北区紫野北舟岡町 | 詳細を見る | |
アパート 京都市烏丸線 今出川駅 徒歩9分 新築(2LDK/1階) | |||||||
![]() | 19万円 1万円 | 19万円 38万円 | 2LDK 69m2 | 新築 | 京都市烏丸線 今出川駅 徒歩9分 京都市烏丸線 鞍馬口駅 徒歩10分 京都府京都市上京区妙顕寺前町 | 詳細を見る | |
マンション シャーメゾンなごみ(2LDK/1階) | |||||||
![]() | 16.5万円 1万円 | 5万円 35万円 | 2LDK 62.35m2 | 新築 | 地下鉄烏丸線 北山駅(京都) 徒歩12分 京都府京都市北区上賀茂荒草町 | 詳細を見る | |
マンション 京都市烏丸線 今出川駅 徒歩12分 築36年(4LDK/3階) | |||||||
![]() | 37万円 2万円 | 20万円 50万円 | 4LDK 162.38m2 | 築36年 | 京都市烏丸線 今出川駅 徒歩12分 京都市烏丸線 北大路駅 徒歩14分 京都府京都市上京区鶴山町 | 詳細を見る | |







