賃貸アパート
セレーノ祐天寺の賃貸物件情報(1LDK/2階)
| 家賃 | 管理費等 | 敷金 | 礼金 | 間取り | 専有面積 |
|---|---|---|---|---|---|
| 20万円 | 5,000円 | 20万円 | 20万円 | 1LDK | 55.94m2 |
入居決定でお祝い金最大100,000円
- 保証金
- -
- 償却・敷引
- -
- 築年数
- 築1年
- 所在階
- 2階
- 向き
- 南
Point
当物件は初期費用分割払い可(クレジットカード決済も可)/お客様のご希望に合わせた方法(店頭、オンライン等)で物件をご提案いたします。初期費用のお見積りや入居希望日のご相談もお気軽にお問い合わせください
提供:アエラス目黒店 (株)アエラス.FR(SUUMO経由)

詳細情報 セレーノ祐天寺
物件紹介
セレーノ祐天寺は東急東横線祐天寺駅から徒歩4分にあり、駅近で通勤通学に便利なアパートです。
このお部屋は2階以上に位置しているので、通行人や周囲の住人からの視線が気になりにくく、防犯面でも安心。インターホンにはTVモニタもついているため、相手の顔を確認してから来客対応することができます。
キッチンはシステムキッチン仕様になっていますので、お料理好きの方にもぴったり。バス・トイレは別なので、のんびりお風呂タイムも楽しめるでしょう。また、雨の日でも浴室乾燥機を使えば、お洗濯も問題ありません。
通信設備面では、インターネットが無料で使えるので、月々の出費を抑えられるのも魅力です(別途工事等が必要な場合あり)。
このお部屋は2階以上に位置しているので、通行人や周囲の住人からの視線が気になりにくく、防犯面でも安心。インターホンにはTVモニタもついているため、相手の顔を確認してから来客対応することができます。
キッチンはシステムキッチン仕様になっていますので、お料理好きの方にもぴったり。バス・トイレは別なので、のんびりお風呂タイムも楽しめるでしょう。また、雨の日でも浴室乾燥機を使えば、お洗濯も問題ありません。
通信設備面では、インターネットが無料で使えるので、月々の出費を抑えられるのも魅力です(別途工事等が必要な場合あり)。
お金・契約の情報
※「-」と表示されているものは、実際は料金が発生するものもございます。詳細はお問い合わせください。
| 家賃 | 20万円 | 管理費・共益費 | 5,000円 |
|---|---|---|---|
| 敷金 | 20万円 | 礼金 | 20万円 |
| 入居決定でお祝い金最大100,000円 | |||
| 保証金 | - | 償却・敷引 | - |
| 住宅保険料 | - | 更新料 | - |
| 保証会社利用 | 必須 | 保証会社名 | - |
| 保証会社費用 | - | 保証会社備考 | 保証会社利用必 初回:賃料等の100%or50%、更新料あり |
| 契約形態 | - | 契約期間 | - |
| 入居・引渡期間 | - | 現況 | - |
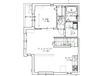
| 契約備考 | あい・あい保育園祐天寺園まで191m/三宿病院まで813m/保険等要2年15000円/室内清掃費用借主負担 1LDK 二人入居可/子供可/事務所利用不可 普通借家2年 損保【要】 バストイレ別、バルコニー、エアコン、ガスコンロ対応、フローリング、シャワー付洗面台、TVインターホン、浴室乾燥機、室内洗濯置、システムキッチン、南向き、追焚機能浴室、角住戸、温水洗浄便座、脱衣所、洗面所独立、洗面化粧台、駐輪場、光ファイバー、3口以上コンロ、防犯カメラ、ロフト、オートバス、敷金1ヶ月、二人入居相談、カードキー、3面採光、ネット使用料不要、保証金不要、雨戸、吹抜け、3駅以上利用可、駅徒歩5分以内、リビング吹抜け、都市ガス、シャッター、高速ネット対応、礼金1ヶ月、初期費用カード決済可 入居日:'26年4月上旬 | ||
部屋の情報
| 間取り | 1LDK | 専有面積 | 55.94m2 |
|---|---|---|---|
| 所在階 / 向き | 2階 / 南 | バルコニー面積 | - |
| 水道 / ガス | - | ||
| 設備 | バス・トイレ別、2階以上、テレビドアホン、浴室乾燥機、追い焚き、インターネット対応、システムキッチン、エアコン、温水洗浄便座、南向き、角部屋、バルコニー、フローリング、ロフトあり、洗髪洗面化粧台、2口コンロ、コンロ:ガス、インターネット使用料無料、洗濯機:室内 | ||
| 当社物件ID | 160574210 | ||
建物の情報
| 建物名 | セレーノ祐天寺 | ||
|---|---|---|---|
| 所在地 | 東京都目黒区五本木 | ||
| 交通 | 東急東横線 祐天寺駅 徒歩4分 東急東横線 中目黒駅 徒歩16分 東急東横線 学芸大学駅 徒歩18分 | ||
| 階数 | 2階建 | 総戸数 | 6戸 |
| 築年月 | 2026年03月 / 築1年 | エレベーター | - |
| 駐車場 | 近隣 252m29700円 | バイク置き場 | - |
| 駐輪場 | あり | 管理人/管理会社 | - |
| 周辺環境 | その他 セブン-イレブン 目黒祐天寺駅西口店(コンビニ)まで264m その他 まいばすけっと 祐天寺駅西店(スーパー)まで285m その他 トモズ エトモ祐天寺店(ドラッグストア)まで305m その他 Antica Forneria by Elio(飲食店)まで350m その他 目黒区立目黒中央中学校(中学校)まで816m その他 目黒区立上目黒小学校(小学校)まで229m | ||
| 建物種別 | アパート | 建物構造 | 鉄骨造 |
この部屋の取扱い不動産会社
| 会社名 | アエラス目黒店 (株)アエラス.FR(SUUMO経由) | ||
|---|---|---|---|
| 所在地 | 東京都目黒区目黒1-4-8 東レクビル 5階 | 交通 | - |
| 営業時間 | 10:00~19:00(時間外対応出来る場合有り) | 定休日 | 年中無休(年末年始などを除く) |
| 免許番号 | 国土交通大臣10206 | 取引態様 | 仲介 |
| 不動産会社管理番号 | 100494187696 | 当社管理番号 | 89 |
| 所属団体 | (公社)全日本不動産協会東京都本部会員 | ||
| 公正取引協議会 | (公社)首都圏不動産公正取引協議会加盟 | ||
| 取扱い物件情報 | 物件詳細へ | ||
※各種情報と現状に差異がある場合は、現状優先となります。問い合わせをすることで、より詳しい条件、情報を確認する事ができます。
提供:アエラス目黒店 (株)アエラス.FR(SUUMO経由)
この物件が気になったら掲載期限まであと12日
セレーノ祐天寺に条件(家賃・エリア)が近い物件一覧
| 写真 | 家賃 管理費等 | 敷金 礼金 | 間取り 専有面積 | 築年数 | 最寄り駅 所在地 | キープ | 詳細 |
|---|---|---|---|---|---|---|---|
アパート ノリアセット(2LDK/2階) | |||||||
![]() | 18.5万円 3,000円 | 18.5万円 18.5万円 | 2LDK 62.72m2 | 新築 | 京浜急行電鉄本線 大森町駅 徒歩9分 京浜急行電鉄本線 梅屋敷駅(東京) 徒歩16分 東京都大田区大森東3丁目 | 詳細を見る | |
一戸建て 京浜急行電鉄本線 大森町駅 徒歩14分 築23年(3LDK) | |||||||
![]() | 20万円 なし | 20万円 20万円 | 3LDK 71.86m2 | 築23年 | 京浜急行電鉄本線 大森町駅 徒歩14分 京浜急行電鉄本線 梅屋敷駅(東京) 徒歩16分 東京都大田区大森東4丁目 | 詳細を見る | |
マンション サンパレス(1LDK/1階) | |||||||
![]() | 14.7万円 7,000円 | 14.7万円 なし | 1LDK 40m2 | 築5年 | 東急池上線 池上駅 徒歩7分 東急池上線 千鳥町駅 徒歩13分 東京都大田区池上3丁目 | 詳細を見る | |
マンション 京浜急行電鉄本線 梅屋敷駅(東京) 徒歩4分 築37年(3LDK/2階) | |||||||
![]() | 23万円 7,000円 | 23万円 23万円 | 3LDK 84.68m2 | 築37年 | 京浜急行電鉄本線 梅屋敷駅(東京) 徒歩4分 京浜急行電鉄本線 大森町駅 徒歩12分 東京都大田区大森西6丁目 | 詳細を見る | |
マンション SAKURA(2LDK/2階) | |||||||
![]() | 20.1万円 5,000円 | 20.1万円 なし | 2LDK 54.84m2 | 築5年 | 京急本線 梅屋敷駅(東京) 徒歩7分 京急本線 大森町駅 徒歩9分 東京都大田区大森中 | 詳細を見る | |
タウンハウス 大田菜園長屋(2LDK) | |||||||
![]() | 15.4万円 5,000円 | 15.4万円 23.1万円 | 2LDK 52.17m2 | 築10年 | 京浜急行電鉄本線 雑色駅 徒歩8分 京浜急行電鉄本線 六郷土手駅 徒歩13分 東京都大田区東六郷3丁目 | 詳細を見る | |
アパート フォレスタ世田谷(2LDK/2階) | |||||||
![]() | 17.4万円 1,000円 | 17.4万円 なし | 2LDK 47.7m2 | 築55年 | 東急池上線 雪が谷大塚駅 徒歩6分 東急東横線 田園調布駅 徒歩16分 東急目黒線 多摩川駅 徒歩16分 東京都世田谷区東玉川 | 詳細を見る | |
マンション ロサルバ大森(2DK/4階) | |||||||
![]() | 15.6万円 7,000円 | 15.6万円 31.2万円 | 2DK 50.48m2 | 築23年 | 京浜急行電鉄本線 大森町駅 徒歩8分 京浜急行電鉄本線 梅屋敷駅(東京) 徒歩8分 東京都大田区大森西3丁目 | 詳細を見る | |









