賃貸マンション
MAXIV東別院の賃貸物件情報(1K/4階)
| 家賃 | 管理費等 | 敷金 | 礼金 | 間取り | 専有面積 |
|---|---|---|---|---|---|
| 5.35万円 | 1万円 | なし | なし | 1K | 22.04m2 |
入居決定でお祝い金最大100,000円
- 保証金
- -
- 償却・敷引
- -
- 築年数
- 築1年
- 所在階
- 4階
- 向き
- 東
Point
まずはお問い合わせ!
不動産会社は街のプロ、あなたに合った物件がきっと見つかります。
提供:(株)タウンハウジング東海栄店(SUUMO経由)

詳細情報 MAXIV東別院
物件紹介
MAXIV東別院は地下鉄名城線東別院駅から徒歩6分にあり、駅近で通勤通学に便利なマンションです。
このお部屋は2階以上に位置しているので、通行人や周囲の住人からの視線が気になりにくく、防犯面でも安心。建物のエントランスはオートロックがついており、インターホンにはTVモニタもついているため、相手の顔を確認してから来客対応することができます。
おしゃれなデザイナーズ物件!フローリングのお部屋なのでお掃除もラクラク。キッチンはシステムキッチン仕様になっていますので、お料理好きの方にもぴったり。バス・トイレは別なので、のんびりお風呂タイムも楽しめるでしょう。また、雨の日でも浴室乾燥機を使えば、お洗濯も問題ありません。
通信設備面では、インターネットが無料で使えるので、月々の出費を抑えられるのも魅力です。また、BSアンテナ・CSアンテナもありますので、おうち時間も充実するでしょう(別途工事、BS・CSの契約料等が必要な場合あり)。
建物にはエレベーターがついているので、重い荷物があっても安心。共用部には宅配ボックスが設定されているので、不在の時にも荷物を受け取ることができます。また、ペット飼育の相談ができますので、あなたの大切な家族の一員も快適に暮らせるか、ぜひ確認してみてください。
このお部屋は2階以上に位置しているので、通行人や周囲の住人からの視線が気になりにくく、防犯面でも安心。建物のエントランスはオートロックがついており、インターホンにはTVモニタもついているため、相手の顔を確認してから来客対応することができます。
おしゃれなデザイナーズ物件!フローリングのお部屋なのでお掃除もラクラク。キッチンはシステムキッチン仕様になっていますので、お料理好きの方にもぴったり。バス・トイレは別なので、のんびりお風呂タイムも楽しめるでしょう。また、雨の日でも浴室乾燥機を使えば、お洗濯も問題ありません。
通信設備面では、インターネットが無料で使えるので、月々の出費を抑えられるのも魅力です。また、BSアンテナ・CSアンテナもありますので、おうち時間も充実するでしょう(別途工事、BS・CSの契約料等が必要な場合あり)。
建物にはエレベーターがついているので、重い荷物があっても安心。共用部には宅配ボックスが設定されているので、不在の時にも荷物を受け取ることができます。また、ペット飼育の相談ができますので、あなたの大切な家族の一員も快適に暮らせるか、ぜひ確認してみてください。
お金・契約の情報
※「-」と表示されているものは、実際は料金が発生するものもございます。詳細はお問い合わせください。
| 家賃 | 5.35万円 | 管理費・共益費 | 1万円 |
|---|---|---|---|
| 敷金 | なし | 礼金 | なし |
| 入居決定でお祝い金最大100,000円 | |||
| 保証金 | - | 償却・敷引 | - |
| 住宅保険料 | - | 更新料 | - |
| 契約形態 | - | 契約期間 | - |
| 入居・引渡期間 | 即時 | 現況 | - |
| 入居可能条件 | ペット相談 | ||
| 契約備考 | NAGOYA家不動産はこの物件が仲介手数料0円でご紹介可能!当店オススメ物件!是非、お問い合わせくださいTEL ペット飼育時共益費2000円増、入居サポート1000円/月 1K ペット相談 普通借家2年 損保【要】 バストイレ別、バルコニー、エアコン、ガスコンロ対応、クロゼット、TVインターホン、浴室乾燥機、オートロック、室内洗濯置、シューズボックス、システムキッチン、温水洗浄便座、脱衣所、エレベーター、洗面所独立、洗面化粧台、2口コンロ、駐輪場、宅配ボックス、即入居可、ペット相談、仲介手数料不要、2沿線利用可、ネット使用料不要、保証金不要、築2年以内、3駅以上利用可、駅徒歩10分以内、都市ガス、BS、高速ネット対応、敷金・礼金不要、初期費用カード決済可 | ||
部屋の情報
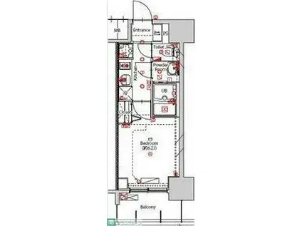
| 間取り | 1K | 専有面積 | 22.04m2 |
|---|---|---|---|
| 所在階 / 向き | 4階 / 東 | バルコニー面積 | - |
| 水道 / ガス | - | ||
| 設備 | バス・トイレ別、2階以上、オートロック、テレビドアホン、宅配ボックス、浴室乾燥機、インターネット対応、システムキッチン、エアコン、エレベーター、温水洗浄便座、バルコニー、洗髪洗面化粧台、2口コンロ、コンロ:ガス、BSアンテナ、インターネット使用料無料、洗濯機:室内 | ||
| 当社物件ID | 158659728 | ||
建物の情報
| 建物名 | MAXIV東別院 | ||
|---|---|---|---|
| 所在地 | 愛知県名古屋市中区平和 | ||
| 交通 | 地下鉄名城線 東別院駅 徒歩6分 地下鉄名城線 金山駅(愛知) 徒歩11分 地下鉄鶴舞線 鶴舞駅 徒歩15分 | ||
| 階数 | 15階建 | 総戸数 | 84戸 |
| 築年月 | 2025年04月 / 築1年 | エレベーター | あり |
| 駐車場 | なし | バイク置き場 | - |
| 駐輪場 | あり | 管理人/管理会社 | - |
| 周辺環境 | その他 イオン 金山店(スーパー)まで940m その他 ローソン 東別院店(コンビニ)まで275m その他 ファミリーマート 東別院駅前店(コンビニ)まで361m その他 スギ薬局 金山北店(ドラッグストア)まで405m その他 アスナル金山(ショッピングセンター)まで1080m その他 ドン・キホーテ大須店(ショッピングセンター)まで1603m | ||
| 建物種別 | マンション | 建物構造 | RC(鉄筋コンクリート) |
この部屋の取扱い不動産会社
| 会社名 | (株)なごやか不動産千種駅前店(SUUMO経由) | ||
|---|---|---|---|
| 所在地 | 愛知県名古屋市千種区今池1-1-1 | 交通 | - |
| 営業時間 | 10時~19時(素敵なお部屋が見つかるまで) | 定休日 | 年末年始のみ |
| 免許番号 | 愛知県知事22088 | 取引態様 | 仲介 |
| 不動産会社管理番号 | 100432717118 | 当社管理番号 | 89 |
| 所属団体 | (公社)全日本不動産協会愛知県本部会員 | ||
| 公正取引協議会 | 東海不動産公正取引協議会加盟 | ||
| 取扱い物件情報 | 物件詳細へ | ||
※各種情報と現状に差異がある場合は、現状優先となります。問い合わせをすることで、より詳しい条件、情報を確認する事ができます。
提供:(株)なごやか不動産千種駅前店(SUUMO経由)
この物件が気になったら掲載期限まであと10日
MAXIV東別院に条件(家賃・エリア)が近い物件一覧
| 写真 | 家賃 管理費等 | 敷金 礼金 | 間取り 専有面積 | 築年数 | 最寄り駅 所在地 | キープ | 詳細 |
|---|---|---|---|---|---|---|---|
マンション エステムコート名古屋新栄Ⅳネスト(1DK/15階) | |||||||
![]() | 8.05万円 6,890円 | なし なし | 1DK 28.28m2 | 築2年 | 名古屋市東山線 新栄町駅(愛知) 徒歩5分 愛知県名古屋市中区新栄2丁目 | 詳細を見る | |
マンション スクエア橘(1K/3階) | |||||||
![]() | 3.4万円 5,000円 | なし なし | 1K 19m2 | 築38年 | 地下鉄名城線 東別院駅 徒歩6分 地下鉄鶴舞線 上前津駅 徒歩8分 地下鉄名城線 金山駅(愛知) 徒歩13分 愛知県名古屋市中区橘 | 詳細を見る | |
マンション メイクス上前津Ⅱ(1K/2階) | |||||||
![]() | 7.6万円 8,000円 | なし 7.6万円 | 1K 29.63m2 | 築5年 | 名古屋市鶴舞線 上前津駅 徒歩6分 名古屋市名城線 上前津駅 徒歩6分 名古屋市名城線 東別院駅 徒歩11分 愛知県名古屋市中区橘1丁目 | 詳細を見る | |
マンション エステムコート名古屋上前津(1DK/2階) | |||||||
![]() | 7.65万円 5,530円 | なし なし | 1DK 29m2 | 築1年 | 名古屋市名城線 東別院駅 徒歩5分 名古屋市鶴舞線 上前津駅 徒歩6分 名古屋市名城線 上前津駅 徒歩9分 愛知県名古屋市中区富士見町 | 詳細を見る | |
マンション プレサンス上前津ディアシス(1K/3階) | |||||||
![]() | 5.87万円 6,180円 | なし 5.87万円 | 1K 21.66m2 | 築1年 | 名古屋市鶴舞線 上前津駅 徒歩4分 愛知県名古屋市中区上前津1丁目 | 詳細を見る | |
マンション エステムコート名古屋新栄Ⅴラポール(1DK/3階) | |||||||
![]() | 7.85万円 5,880円 | なし なし | 1DK 28.6m2 | 築2年 | 名古屋市東山線 新栄町駅(愛知) 徒歩5分 名古屋市桜通線 高岳駅 徒歩12分 中央本線 千種駅 徒歩13分 愛知県名古屋市中区新栄2丁目 | 詳細を見る | |
マンション ボヌール新栄(1K/3階) | |||||||
![]() | 5万円 5,000円 | なし なし | 1K 24.01m2 | 築27年 | 地下鉄東山線 新栄町駅(愛知) 徒歩7分 地下鉄名城線 矢場町駅 徒歩11分 地下鉄桜通線 高岳駅 徒歩15分 愛知県名古屋市中区新栄 | 詳細を見る | |
マンション メイクスアート新栄Ⅲ(1K/7階) | |||||||
![]() | 5.8万円 8,000円 | なし なし | 1K 21.46m2 | 新築 | 名古屋市東山線 新栄町駅(愛知) 徒歩8分 愛知県名古屋市中区新栄2丁目 | 詳細を見る | |








