賃貸マンション
若鶴マンションの賃貸物件情報(ワンルーム/2階)
| 家賃 | 管理費等 | 敷金 | 礼金 | 間取り | 専有面積 |
|---|---|---|---|---|---|
| 4.7万円 | 3,000円 | なし | 4.7万円 | ワンルーム | 24m2 |
入居決定でお祝い金最大100,000円
- 保証金
- -
- 償却・敷引
- -
- 築年数
- 築53年
- 所在階
- 2階
- 向き
- 南
Point
室内設備はCATV・システムキッチンなどが揃っており、とても充実しています◎内装に統一感が出る、全居室フローリングのマンションです◎様々な場所へのアクセスがしやすくなる2駅利用可能な物件です(^o^)
提供:LIBERTE(株)(SUUMO経由)

詳細情報 若鶴マンション
物件紹介
若鶴マンションは地下鉄七隈線渡辺通駅から徒歩10分にあり、駅近で通勤通学に便利なマンションです。
このお部屋は2階以上に位置しているので、通行人や周囲の住人からの視線が気になりにくく、防犯面でも安心です。
人気の南向きのお部屋。また、フローリングなのでお掃除もラクラク。キッチンはシステムキッチン仕様になっていますので、お料理好きの方にもぴったり。また、バス・トイレは別で、のんびりお風呂タイムも楽しめるでしょう。
通信設備面ではCATVに対応しているので、おうち時間も充実するでしょう(別途工事、契約料が必要な場合あり)。
このお部屋は2階以上に位置しているので、通行人や周囲の住人からの視線が気になりにくく、防犯面でも安心です。
人気の南向きのお部屋。また、フローリングなのでお掃除もラクラク。キッチンはシステムキッチン仕様になっていますので、お料理好きの方にもぴったり。また、バス・トイレは別で、のんびりお風呂タイムも楽しめるでしょう。
通信設備面ではCATVに対応しているので、おうち時間も充実するでしょう(別途工事、契約料が必要な場合あり)。
お金・契約の情報
※「-」と表示されているものは、実際は料金が発生するものもございます。詳細はお問い合わせください。
| 家賃 | 4.7万円 | 管理費・共益費 | 3,000円 |
|---|---|---|---|
| 敷金 | なし | 礼金 | 4.7万円 |
| 入居決定でお祝い金最大100,000円 | |||
| 保証金 | - | 償却・敷引 | - |
| 住宅保険料 | - | 更新料 | - |
| 保証会社利用 | 利用可 | 保証会社名 | - |
| 保証会社費用 | - | 保証会社備考 | 保証会社利用可 有 Casa※契約者や条件によっては、内容が変更になる場合があります。 |
| 契約形態 | - | 契約期間 | - |
| 入居・引渡期間 | 即時 | 現況 | - |
| 契約備考 | 合計1.21万円(内訳:鍵交換代1.21万円) ワンルーム 普通借家1年 損保【要】 バストイレ別、バルコニー、フローリング、室内洗濯置、シューズボックス、システムキッチン、南向き、温水洗浄便座、2口コンロ、駐輪場、CATV、即入居可、敷金不要、2駅利用可、駅徒歩10分以内、都市ガス | ||
部屋の情報
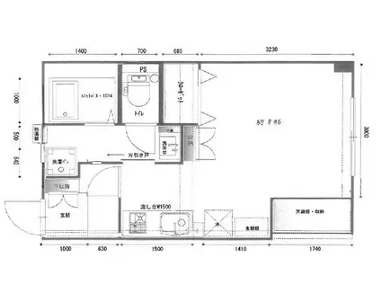
| 間取り | ワンルーム | 専有面積 | 24m2 |
|---|---|---|---|
| 所在階 / 向き | 2階 / 南 | バルコニー面積 | - |
| 水道 / ガス | - | ||
| 設備 | バス・トイレ別、2階以上、システムキッチン、温水洗浄便座、南向き、バルコニー、フローリング、2口コンロ、CATV、洗濯機:室内 | ||
| 当社物件ID | 160455849 | ||
建物の情報
| 建物名 | 若鶴マンション | ||
|---|---|---|---|
| 所在地 | 福岡県福岡市中央区清川 | ||
| 交通 | 地下鉄七隈線 渡辺通駅 徒歩10分 地下鉄七隈線 薬院駅 徒歩13分 西鉄天神大牟田線 薬院駅 徒歩13分 | ||
| 階数 | 4階建 | 総戸数 | - |
| 築年月 | 1973年04月 / 築53年 | エレベーター | - |
| 駐車場 | なし | バイク置き場 | - |
| 駐輪場 | あり | 管理人/管理会社 | - |
| 周辺環境 | その他 サニー渡辺通店(スーパー)まで466m その他 業務スーパー 春吉店(スーパー)まで466m その他 マックスバリュエクスプレス 住吉店(スーパー)まで788m その他 MrMax(ミスターマックス) Select美野島店(その他)まで1132m その他 セブンイレブン 博多住吉店(コンビニ)まで465m その他 広瀬病院(病院)まで818m | ||
| 建物種別 | マンション | 建物構造 | RC(鉄筋コンクリート) |
この部屋の取扱い不動産会社
| 会社名 | LIBERTE(株)(SUUMO経由) | ||
|---|---|---|---|
| 所在地 | 福岡県福岡市中央区春吉3-21-18 GEST25ビル603 | 交通 | - |
| 営業時間 | 10:00~19:00 | 定休日 | 不定期 |
| 免許番号 | 福岡県知事19496 | 取引態様 | 仲介 |
| 不動産会社管理番号 | 100489910364 | 当社管理番号 | 89 |
| 所属団体 | (公社)福岡県宅地建物取引業協会会員 | ||
| 公正取引協議会 | (一社)九州不動産公正取引協議会加盟 | ||
| 取扱い物件情報 | 物件詳細へ | ||
※各種情報と現状に差異がある場合は、現状優先となります。問い合わせをすることで、より詳しい条件、情報を確認する事ができます。
提供:LIBERTE(株)(SUUMO経由)
この物件が気になったら掲載期限まであと10日
若鶴マンションに条件(家賃・エリア)が近い物件一覧
| 写真 | 家賃 管理費等 | 敷金 礼金 | 間取り 専有面積 | 築年数 | 最寄り駅 所在地 | キープ | 詳細 |
|---|---|---|---|---|---|---|---|
アパート 博多南線 博多南駅 徒歩6分 築21年(2LDK/2階) | |||||||
![]() | 6.8万円 2,000円 | なし 13.6万円 | 2LDK 55.73m2 | 築21年 | 博多南線 博多南駅 徒歩6分 鹿児島本線 南福岡駅 徒歩43分 福岡県春日市 | 詳細を見る | |
アパート 西鉄天神大牟田線 井尻駅 徒歩16分 築26年(1K/2階) | |||||||
![]() | 3万円 500円 | なし なし | 1K 22.65m2 | 築26年 | 西鉄天神大牟田線 井尻駅 徒歩16分 鹿児島本線 笹原駅 徒歩18分 鹿児島本線 南福岡駅 徒歩20分 福岡県春日市須玖北4丁目 | 詳細を見る | |
一戸建て 博多南線 博多南駅 徒歩24分 築52年(3DK) | |||||||
![]() | 5.5万円 なし | なし 11万円 | 3DK 52.9m2 | 築52年 | 博多南線 博多南駅 徒歩24分 鹿児島本線 南福岡駅 徒歩30分 鹿児島本線 春日駅(福岡) 徒歩34分 福岡県春日市昇町3丁目 | 詳細を見る | |
マンション ヒルサイドビル(2DK/4階) | |||||||
![]() | 4.3万円 2,000円 | なし なし | 2DK 45m2 | 築47年 | 博多南線 博多南駅 徒歩12分 鹿児島本線 春日駅(福岡) 徒歩42分 鹿児島本線 南福岡駅 徒歩44分 福岡県春日市 | 詳細を見る | |
マンション 糸山ビル(2DK/2階) | |||||||
![]() | 3.2万円 なし | なし 3.2万円 | 2DK 33m2 | 築55年 | 西鉄天神大牟田線 井尻駅 徒歩21分 鹿児島本線 南福岡駅 徒歩24分 鹿児島本線 笹原駅 徒歩24分 福岡県春日市須玖南1丁目 | 詳細を見る | |
マンション プレースコート(ワンルーム/2階) | |||||||
![]() | 6万円 5,000円 | なし 12万円 | ワンルーム 41.05m2 | 築38年 | 鹿児島本線 南福岡駅 徒歩14分 西鉄天神大牟田線 雑餉隈駅 徒歩18分 西鉄天神大牟田線 井尻駅 徒歩20分 福岡県春日市日の出町5丁目 | 詳細を見る | |
アパート アムールFIVE(1DK/1階) | |||||||
![]() | 3.9万円 3,000円 | なし なし | 1DK 29.81m2 | 築21年 | 鹿児島本線 春日駅(福岡) 徒歩12分 鹿児島本線 南福岡駅 徒歩18分 西鉄天神大牟田線 雑餉隈駅 徒歩27分 福岡県春日市光町2丁目 | 詳細を見る | |
アパート グレイス上白水(2LDK/1階) | |||||||
![]() | 5.1万円 なし | なし 5.1万円 | 2LDK 45.77m2 | 築31年 | 博多南線 博多南駅 徒歩10分 鹿児島本線 南福岡駅 徒歩49分 西鉄天神大牟田線 春日原駅 徒歩55分 福岡県春日市 | 詳細を見る | |









