賃貸アパート
フジパレス堺鳳東II番館の賃貸物件情報(1K/2階)
| 家賃 | 管理費等 | 敷金 | 礼金 | 間取り | 専有面積 |
|---|---|---|---|---|---|
| 5.4万円 | 5,300円 | なし | なし | 1K | 27.1m2 |
入居決定でお祝い金最大100,000円
- 保証金
- -
- 償却・敷引
- -
- 築年数
- 築16年
- 所在階
- 2階
- 向き
- 南東
Point
お勧めポイント→敷金礼金0円で初期費用もお安くお引越・家賃もお安く設定して頂けました・室内は綺麗にリフォームされ、気持ちよくご入居して頂けると思います^^ご予約・お問合せ、お気軽にご連絡下さい♪♪
提供:クラスモ鳳店(株)和泉不動産(SUUMO経由)

詳細情報 フジパレス堺鳳東II番館
物件紹介
フジパレス堺鳳東II番館はJR阪和線鳳駅から徒歩10分にあり、駅近で通勤通学に便利なアパートです。
このお部屋は2階以上に位置しているので、通行人や周囲の住人からの視線が気になりにくく、防犯面でも安心。インターホンにはTVモニタもついているため、相手の顔を確認してから来客対応することができます。
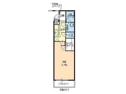
人気の南向き・フローリングのお部屋。角部屋でもあるため、周囲の居住者の生活音も気になりにくい場所です。室内にはウォークインクローゼットがありますので、たくさんの荷物も効率的に収納ができます。キッチンはシステムキッチン仕様になっていますので、お料理好きの方にもぴったり。バス・トイレは別なので、のんびりお風呂タイムも楽しめるでしょう。また、雨の日でも浴室乾燥機を使えば、お洗濯も問題ありません。
通信設備面では、インターネット接続が可能です。また、BSアンテナがありCATVにも対応しているので、おうち時間も充実するでしょう(別途工事、契約料が必要な場合あり)。
このお部屋は2階以上に位置しているので、通行人や周囲の住人からの視線が気になりにくく、防犯面でも安心。インターホンにはTVモニタもついているため、相手の顔を確認してから来客対応することができます。
人気の南向き・フローリングのお部屋。角部屋でもあるため、周囲の居住者の生活音も気になりにくい場所です。室内にはウォークインクローゼットがありますので、たくさんの荷物も効率的に収納ができます。キッチンはシステムキッチン仕様になっていますので、お料理好きの方にもぴったり。バス・トイレは別なので、のんびりお風呂タイムも楽しめるでしょう。また、雨の日でも浴室乾燥機を使えば、お洗濯も問題ありません。
通信設備面では、インターネット接続が可能です。また、BSアンテナがありCATVにも対応しているので、おうち時間も充実するでしょう(別途工事、契約料が必要な場合あり)。
お金・契約の情報
※「-」と表示されているものは、実際は料金が発生するものもございます。詳細はお問い合わせください。
| 家賃 | 5.4万円 | 管理費・共益費 | 5,300円 |
|---|---|---|---|
| 敷金 | なし | 礼金 | なし |
| 入居決定でお祝い金最大100,000円 | |||
| 保証金 | - | 償却・敷引 | - |
| 住宅保険料 | - | 更新料 | - |
| 保証会社利用 | 必須 | 保証会社名 | リクルートフォレントインシュア |
| 保証会社費用 | - | 保証会社備考 | オリコフォレントインシュア利用必 初回保証料は総賃料の50% |
| 契約形態 | - | 契約期間 | - |
| 入居・引渡期間 | - | 現況 | - |
| 契約備考 | 阪和線東羽衣駅徒歩31分/ローソンストア100鳳駅前店まで1084m/ファミリーマート堺上店まで925m/巡回管理/■□■□こちらの物件に関するお問い合わせはホームメイト深井店まで。当物件の初期費用・クレジット決済・分割払いなど何でも相談ください!見学・来店・その他お部屋に関する相談はお問い合わせフォームもしくはお電話072-275-5681までお気軽にお問い合わせください■□■□ 合計4.4万円(内訳:カギ交換費用11000円/カギ交換費用33000円) 1K 単身者限定 普通借家1年 損保【要】 バストイレ別、バルコニー、エアコン、ガスコンロ対応、フローリング、シャワー付洗面台、TVインターホン、室内洗濯置、陽当り良好、システムキッチン、角住戸、温水洗浄便座、脱衣所、洗面所独立、洗面化粧台、2口コンロ、駐輪場、CATV、光ファイバー、閑静な住宅地、最上階、照明付、ウォークインクロゼット、保証人不要、24時間緊急通報システム、全居室フローリング、2沿線利用可、駅まで平坦、エアコン全室、保証金不要、3駅以上利用可、上階無し、敷地内ごみ置き場、平面駐車場、東南向き、都市ガス、洗面所にドア、南面バルコニー、BS、高速ネット対応、LAN、敷金・礼金不要、IT重説対応物件、初期費用カード決済可、全室照明付、通風良好 入居日:'26年4月中旬 | ||
部屋の情報
| 間取り | 1K | 専有面積 | 27.1m2 |
|---|---|---|---|
| 所在階 / 向き | 2階 / 南東 | バルコニー面積 | - |
| 水道 / ガス | - | ||
| 設備 | バス・トイレ別、2階以上、テレビドアホン、ウォークインクローゼット、インターネット対応、システムキッチン、エアコン、温水洗浄便座、南向き、角部屋、バルコニー、フローリング、洗髪洗面化粧台、2口コンロ、コンロ:ガス、CATV、BSアンテナ、洗濯機:室内 | ||
| 当社物件ID | 11963405 | ||
建物の情報
| 建物名 | フジパレス堺鳳東II番館 | ||
|---|---|---|---|
| 所在地 | 大阪府堺市西区鳳東町 | ||
| 交通 | JR阪和線 鳳駅 徒歩11分 JR阪和線 津久野駅 徒歩20分 JR阪和線 富木駅 徒歩24分 | ||
| 階数 | 3階建 | 総戸数 | 11戸 |
| 築年月 | 2010年12月 / 築16年 | エレベーター | - |
| 駐車場 | 空有 8800円/平置駐 | バイク置き場 | - |
| 駐輪場 | あり | 管理人/管理会社 | - |
| 周辺環境 | その他 おおとりウイングス(ショッピングセンター)まで381m その他 イオンおおとり店(スーパー)まで365m その他 ライフ福泉店(スーパー)まで979m その他 ローソン堺鳳南町5丁店(コンビニ)まで384m その他 セブンイレブン堺上店(コンビニ)まで707m その他 ファミリーマート堺鳳東町店(コンビニ)まで801m | ||
| 建物種別 | アパート | 建物構造 | 木造 |
この部屋の取扱い不動産会社
| 会社名 | ホームメイトFC深井店(株)Best com(SUUMO経由) | ||
|---|---|---|---|
| 所在地 | 大阪府堺市中区深井清水町 3806 | 交通 | - |
| 営業時間 | 10時~19時 | 定休日 | 年末年始 |
| 免許番号 | 国土交通大臣9747 | 取引態様 | 仲介 |
| 不動産会社管理番号 | 100492393667 | 当社管理番号 | 89 |
| 所属団体 | (一社)大阪府宅地建物取引業協会会員 | ||
| 公正取引協議会 | (公社)近畿地区不動産公正取引協議会加盟 | ||
| 取扱い物件情報 | 物件詳細へ | ||
※各種情報と現状に差異がある場合は、現状優先となります。問い合わせをすることで、より詳しい条件、情報を確認する事ができます。
提供:ホームメイトFC深井店(株)Best com(SUUMO経由)
この物件が気になったら掲載期限まであと12日
フジパレス堺鳳東II番館に条件(家賃・エリア)が近い物件一覧
| 写真 | 家賃 管理費等 | 敷金 礼金 | 間取り 専有面積 | 築年数 | 最寄り駅 所在地 | キープ | 詳細 |
|---|---|---|---|---|---|---|---|
マンション 南海電鉄南海本線 石津川駅 徒歩7分 築1年(1K/5階) | |||||||
![]() | 5.5万円 1万円 | なし なし | 1K 21.7m2 | 築1年 | 南海電鉄南海本線 石津川駅 徒歩7分 阪堺電気軌道阪堺線 石津北駅 徒歩8分 南海電鉄南海本線 湊駅 徒歩14分 大阪府堺市西区浜寺石津町西1丁 | 詳細を見る | |
アパート ベルソレイユ(1LDK/3階) | |||||||
![]() | 7.6万円 4,100円 | なし 8万円 | 1LDK 42.38m2 | 築3年 | 近鉄南大阪線 藤井寺駅 徒歩25分 近鉄南大阪線 高鷲駅 徒歩25分 近鉄南大阪線 古市駅(大阪) 徒歩29分 大阪府羽曳野市はびきの4丁目 | 詳細を見る | |
マンション サンハイム陵西(2LDK/3階) | |||||||
![]() | 8.5万円 なし | なし 10万円 | 2LDK 62.3m2 | 築46年 | 近鉄南大阪線 河内松原駅 徒歩3分 近鉄南大阪線 高見ノ里駅 徒歩15分 近鉄南大阪線 恵我ノ荘駅 徒歩19分 大阪府松原市上田3丁目 | 詳細を見る | |
一戸建て 阪和線 北信太駅 徒歩7分 築56年(2LDK) | |||||||
![]() | 3.8万円 なし | なし 5万円 | 2LDK 40m2 | 築56年 | 阪和線 北信太駅 徒歩7分 阪和線 信太山駅 徒歩15分 南海電鉄南海本線 北助松駅 徒歩24分 大阪府和泉市葛の葉町1丁目 | 詳細を見る | |
アパート フジパレス野代(1K/2階) | |||||||
![]() | 5.1万円 3,900円 | なし なし | 1K 24m2 | 築18年 | 阪和線 富木駅 徒歩8分 阪和線 鳳駅 徒歩16分 南海電鉄南海本線 羽衣駅 徒歩19分 大阪府堺市西区鳳西町2丁 | 詳細を見る | |
マンション AILE柴島(1K/1階) | |||||||
| 7.15万円 1.1万円 | なし 7.15万円 | 1K 23.58m2 | 築1年 | 阪急電鉄千里線 柴島駅 徒歩13分 阪急電鉄京都線 崇禅寺駅 徒歩20分 阪急電鉄京都線 南方駅(大阪) 徒歩21分 大阪府大阪市東淀川区柴島2丁目未 | 詳細を見る | ||
マンション 千幸ハイツ(1K/2階) | |||||||
![]() | 4万円 なし | なし 4万円 | 1K 18m2 | 築38年 | 近鉄南大阪線 高鷲駅 徒歩2分 近鉄南大阪線 藤井寺駅 徒歩7分 近鉄南大阪線 恵我ノ荘駅 徒歩15分 大阪府羽曳野市高鷲1丁目 | 詳細を見る | |
アパート ミーテ ジラソーレ(1LDK/2階) | |||||||
![]() | 6.75万円 3,500円 | なし 6.75万円 | 1LDK 35.64m2 | 築10年 | 阪和線 鳳駅 徒歩5分 阪和線 富木駅 徒歩20分 阪和線 津久野駅 徒歩22分 大阪府堺市西区鳳東町3丁 | 詳細を見る | |
堺市西区の町名から探す
堺市西区の部屋を間取りから探す
堺市西区の駅から探す
堺市西区と隣接している市区町村から探す
- 堺市西区(1,819)
- 大阪市都島区(1,707)
- 大阪市福島区(2,417)
- 大阪市此花区(383)
- 大阪市西区(4,966)
- 大阪市港区(1,305)
- 大阪市大正区(593)
- 大阪市天王寺区(1,590)
- 大阪市浪速区(3,737)
- 大阪市西淀川区(1,852)
- 大阪市東淀川区(4,215)
- 大阪市東成区(2,401)
- 大阪市生野区(1,742)
- 大阪市旭区(2,273)
- 大阪市城東区(2,245)
- 大阪市阿倍野区(1,339)
- 大阪市住吉区(2,059)
- 大阪市東住吉区(1,870)
- 大阪市西成区(639)
- 大阪市淀川区(4,834)
- 大阪市鶴見区(1,032)
- 大阪市住之江区(978)
- 大阪市平野区(1,741)
- 大阪市北区(5,326)
- 大阪市中央区(5,761)
- 富田林市(1,123)
- 河内長野市(678)
- 松原市(937)
- 和泉市(1,031)
- 羽曳野市(1,162)
- 高石市(812)
- 大阪狭山市(840)







