賃貸アパート
カーサ・ドルチェの賃貸物件情報(ワンルーム/2階)
| 家賃 | 管理費等 | 敷金 | 礼金 | 間取り | 専有面積 |
|---|---|---|---|---|---|
| 6.9万円 | 3,500円 | 6.9万円 | 6.9万円 | ワンルーム | 15.9m2 |
入居決定でお祝い金最大100,000円
- 保証金
- -
- 償却・敷引
- -
- 築年数
- 築8年
- 所在階
- 2階
- 向き
- 南
Point
まずはお問い合わせ!
不動産会社は街のプロ、あなたに合った物件がきっと見つかります。
提供:借りROOM北千住店(株)ロダン(SUUMO経由)

詳細情報 カーサ・ドルチェ
物件紹介
カーサ・ドルチェは東京メトロ千代田線北綾瀬駅から徒歩9分にあり、駅近で通勤通学に便利なアパートです。
このお部屋は2階以上に位置しているので、通行人や周囲の住人からの視線が気になりにくく、防犯面でも安心です。
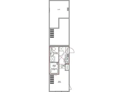
人気の南向き・フローリングのお部屋。室内には多目的に利用できるロフトもあり、お部屋のアレンジも自在です。バス・トイレ別の仕様で、のんびりお風呂タイムも楽しめます。
通信設備面では、インターネットが無料で使えるので、月々の出費を抑えられるのも魅力です。また、BSアンテナ・CSアンテナがありCATVにも対応しているので、おうち時間も充実するでしょう(別途工事、BS・CS・CATVの契約料等が必要な場合あり)。
このお部屋は2階以上に位置しているので、通行人や周囲の住人からの視線が気になりにくく、防犯面でも安心です。
人気の南向き・フローリングのお部屋。室内には多目的に利用できるロフトもあり、お部屋のアレンジも自在です。バス・トイレ別の仕様で、のんびりお風呂タイムも楽しめます。
通信設備面では、インターネットが無料で使えるので、月々の出費を抑えられるのも魅力です。また、BSアンテナ・CSアンテナがありCATVにも対応しているので、おうち時間も充実するでしょう(別途工事、BS・CS・CATVの契約料等が必要な場合あり)。
お金・契約の情報
※「-」と表示されているものは、実際は料金が発生するものもございます。詳細はお問い合わせください。
| 家賃 | 6.9万円 | 管理費・共益費 | 3,500円 |
|---|---|---|---|
| 敷金 | 6.9万円 | 礼金 | 6.9万円 |
| 入居決定でお祝い金最大100,000円 | |||
| 保証金 | - | 償却・敷引 | - |
| 住宅保険料 | - | 更新料 | - |
| 保証会社利用 | 必須 | 保証会社名 | - |
| 保証会社費用 | - | 保証会社備考 | 保証会社利用必 ルームバンクインシュア 他 貸主指定 |
| 契約形態 | - | 契約期間 | - |
| 入居・引渡期間 | - | 現況 | - |
| 契約備考 | サイトの閲覧、ありがとうございます。お電話でのお問い合わせならリアルタイムで募集状況をご確認頂けます!☆☆までお電話ください!LINEでのご相談ご対応ももちろん可能です!お気軽にお問い合わせください(^^)お客様にたくさんの口コミをいただいている不動産会社です★都心にアクセスがいい駅、ファミリー層の多い落ち着いた駅や荒川区以外も幅広くご紹介可能です!※短期解約時違約金有 合計7.21万円(内訳:契約事務手数料1.1万円室内抗菌処理代1.76万円入居中サポート2.145万円鍵交換代2.2万円) 更新料 103500円 室内清掃費用 66000円 口座振替 月額660円 ワンルーム 普通借家2年 損保【要】 バストイレ別、エアコン、ガスコンロ対応、フローリング、室内洗濯置、シューズボックス、南向き、温水洗浄便座、脱衣所、洗面所独立、洗面化粧台、CATV、最上階、ロフト、2沿線利用可、CS、ネット使用料不要、保証金不要、24時間換気システム、2駅利用可、3駅以上利用可、駅徒歩10分以内、プロパンガス、BS、保証会社利用可、IT重説対応物件、初期費用カード決済可 入居日:'26年6月上旬 | ||
部屋の情報
| 間取り | ワンルーム | 専有面積 | 15.9m2 |
|---|---|---|---|
| 所在階 / 向き | 2階 / 南 | バルコニー面積 | - |
| 水道 / ガス | - | ||
| 設備 | バス・トイレ別、2階以上、インターネット対応、エアコン、温水洗浄便座、南向き、フローリング、ロフトあり、洗髪洗面化粧台、コンロ:ガス、CATV、CSアンテナ、BSアンテナ、インターネット使用料無料、洗濯機:室内 | ||
| 当社物件ID | 27874869 | ||
建物の情報
| 建物名 | カーサ・ドルチェ | ||
|---|---|---|---|
| 所在地 | 東京都足立区加平 | ||
| 交通 | 東京メトロ千代田線 北綾瀬駅 徒歩9分 つくばエクスプレス 六町駅 徒歩13分 つくばエクスプレス 青井駅 徒歩19分 | ||
| 階数 | 2階建 | 総戸数 | - |
| 築年月 | 2018年05月 / 築8年 | エレベーター | - |
| 駐車場 | なし | バイク置き場 | - |
| 駐輪場 | - | 管理人/管理会社 | - |
| 周辺環境 | その他 アコレ 青井5丁目店(スーパー)まで971m その他 まいばすけっと 六町駅前店(スーパー)まで999m その他 くすりの福太郎北綾瀬店(ドラッグストア)まで654m その他 エニタイムフィットネス 北綾瀬店(その他)まで855m その他 ガスト 北綾瀬店(から好し取扱店)(飲食店)まで947m その他 マクドナルド 足立六町店(飲食店)まで1210m | ||
| 建物種別 | アパート | 建物構造 | 木造 |
この部屋の取扱い不動産会社
| 会社名 | (株)INTER LIVING日暮里店(SUUMO経由) | ||
|---|---|---|---|
| 所在地 | 東京都荒川区東日暮里5-52-10 エスポワール日暮里1階 | 交通 | - |
| 営業時間 | AM10:00~PM20:00 | 定休日 | 毎週水曜日 |
| 免許番号 | 東京都知事93045 | 取引態様 | 仲介 |
| 不動産会社管理番号 | 100452840680 | 当社管理番号 | 89 |
| 所属団体 | (公社)東京都宅地建物取引業協会会員 | ||
| 公正取引協議会 | (公社)首都圏不動産公正取引協議会加盟 | ||
| 取扱い物件情報 | 物件詳細へ | ||
※各種情報と現状に差異がある場合は、現状優先となります。問い合わせをすることで、より詳しい条件、情報を確認する事ができます。
提供:(株)INTER LIVING日暮里店(SUUMO経由)
この物件が気になったら掲載期限まであと12日
カーサ・ドルチェに条件(家賃・エリア)が近い物件一覧
| 写真 | 家賃 管理費等 | 敷金 礼金 | 間取り 専有面積 | 築年数 | 最寄り駅 所在地 | キープ | 詳細 |
|---|---|---|---|---|---|---|---|
アパート ROBOT HOMEお花茶屋II(1LDK/1階) | |||||||
![]() | 9.9万円 3,000円 | なし なし | 1LDK 28.97m2 | 築2年 | 京成本線 お花茶屋駅 徒歩8分 京成本線 堀切菖蒲園駅 徒歩11分 東武伊勢崎線 堀切駅 徒歩26分 東京都葛飾区東堀切 | 詳細を見る | |
マンション ザ・レジデンス・オブ・トーキョーH19(1K/4階) | |||||||
![]() | 9.8万円 1万円 | 9.8万円 9.8万円 | 1K 25.78m2 | 築9年 | 東京都荒川線 荒川区役所前駅 徒歩4分 東京都荒川区荒川1丁目 | 詳細を見る | |
マンション ベルシード梅島 ブランシュ(1K/2階) | |||||||
![]() | 9.9万円 1.5万円 | なし なし | 1K 25.66m2 | 築9年 | 東京地下鉄南北線 赤羽岩淵駅 徒歩5分 東京都足立区梅田3丁目 | 詳細を見る | |
アパート リブリエデン足立(1K/1階) | |||||||
![]() | 8.1万円 4,000円 | なし 8.1万円 | 1K 28.98m2 | 築8年 | 日暮里・舎人ライナー 高野駅(東京) 徒歩6分 日暮里・舎人ライナー 扇大橋駅 徒歩11分 日暮里・舎人ライナー 江北駅(東京) 徒歩12分 東京都足立区江北 | 詳細を見る | |
マンション コーポ原口(1K/1階) | |||||||
![]() | 6万円 なし | 6万円 6万円 | 1K 40m2 | 築50年 | つくばエクスプレス 八潮駅 徒歩38分 つくばエクスプレス 三郷中央駅 徒歩42分 つくばエクスプレス 六町駅 徒歩71分 埼玉県三郷市戸ケ崎 | 詳細を見る | |
アパート 八潮南部西62街区PJ B(1LDK/1階) | |||||||
![]() | 10.6万円 7,000円 | なし 21.2万円 | 1LDK 42.09m2 | 新築 | つくばエクスプレス 八潮駅 徒歩15分 つくばエクスプレス 六町駅 徒歩37分 埼玉県八潮市大字垳 | 詳細を見る | |


/105x80-f1-q70-wp1)
/105x80-f1-q70-wp1)


