賃貸マンション
ジークレフ六甲の丘C棟 8階の賃貸物件情報(2SLDK/8階)
| 家賃 | 管理費等 | 敷金 | 礼金 | 間取り | 専有面積 |
|---|---|---|---|---|---|
| 18万円 | 1.8万円 | なし | 36万円 | 2SLDK | 78.86m2 |
入居決定でお祝い金最大100,000円
- 保証金
- 18.0万円
- 償却・敷引
- -
- 築年数
- 築27年
- 所在階
- 8階
- 向き
- 南
Point
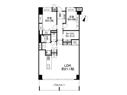
室内は間取り変更実施履歴あり!ウォークインクローゼットやロフトを設置、LDKは広々約21.1帖♪共用施設充実(プール・フィットネスジム・来客用宿泊施設完備)
提供:フロンティアハウス(SUUMO経由)

詳細情報 ジークレフ六甲の丘C棟 8階
物件紹介
ジークレフ六甲の丘C棟 8階は阪急神戸線六甲駅から徒歩17分にあるマンションです。
このお部屋は2階以上に位置しているので通行人や周囲の住人からの視線が気になりにくく、建物のエントランスはオートロックがついているので防犯性が高くなっています。
おしゃれなデザイナーズ物件!人気の南向き・フローリングのお部屋。角部屋でもあるため、周囲の居住者の生活音も気になりにくい場所です。室内にはウォークインクローゼットとロフトがありますので、たくさんの荷物も効率的に収納ができ、お部屋のアレンジも自在です。キッチンはシステムキッチン仕様になっていますので、お料理好きの方にもぴったり。バス・トイレは別なので、のんびりお風呂タイムも楽しめるでしょう。また、雨の日でも浴室乾燥機を使えば、お洗濯も問題ありません。
このお部屋は2階以上に位置しているので通行人や周囲の住人からの視線が気になりにくく、建物のエントランスはオートロックがついているので防犯性が高くなっています。
おしゃれなデザイナーズ物件!人気の南向き・フローリングのお部屋。角部屋でもあるため、周囲の居住者の生活音も気になりにくい場所です。室内にはウォークインクローゼットとロフトがありますので、たくさんの荷物も効率的に収納ができ、お部屋のアレンジも自在です。キッチンはシステムキッチン仕様になっていますので、お料理好きの方にもぴったり。バス・トイレは別なので、のんびりお風呂タイムも楽しめるでしょう。また、雨の日でも浴室乾燥機を使えば、お洗濯も問題ありません。
お金・契約の情報
※「-」と表示されているものは、実際は料金が発生するものもございます。詳細はお問い合わせください。
| 家賃 | 18万円 | 管理費・共益費 | 1.8万円 |
|---|---|---|---|
| 敷金 | なし | 礼金 | 36万円 |
| 入居決定でお祝い金最大100,000円 | |||
| 保証金 | 18.0万円 | 償却・敷引 | - |
| 住宅保険料 | - | 更新料 | - |
| 保証会社利用 | 必須 | 保証会社名 | 全保連 |
| 保証会社費用 | - | 保証会社備考 | 全保連利用必 初回家賃総額の50% |
| 契約形態 | - | 契約期間 | - |
| 入居・引渡期間 | 即時 | 現況 | - |
| 契約備考 | 常駐管理 2SLDK 普通借家2年 損保【2.45万円2年】 バストイレ別、バルコニー、浴室乾燥機、オートロック、室内洗濯置、陽当り良好、システムキッチン、南向き、洗面所独立、即入居可、閑静な住宅地、3口以上コンロ、対面式キッチン、全居室収納、分譲賃貸、ロフト、全居室洋室、ウォークインクロゼット、南西角住戸、全居室フローリング、デザイナーズ、眺望良好、LDK20畳以上、高台に立地、クロゼット3ヶ所、オーシャンビュー、前面棟無、プール、ゲストルーム、オープンキッチン、南面バルコニー、玄関収納、ダウンライト、IT重説対応物件、通風良好 | ||
部屋の情報
| 間取り | 2SLDK | 専有面積 | 78.86m2 |
|---|---|---|---|
| 所在階 / 向き | 8階 / 南 | バルコニー面積 | 10m2 |
| 水道 / ガス | - | ||
| 設備 | バス・トイレ別、2階以上、オートロック、浴室乾燥機、ウォークインクローゼット、システムキッチン、南向き、角部屋、バルコニー、フローリング、ロフトあり、洗髪洗面化粧台、2口コンロ、デザイナーズ、洗濯機:室内 | ||
| 当社物件ID | 160127643 | ||
建物の情報
| 建物名 | ジークレフ六甲の丘C棟 8階 | ||
|---|---|---|---|
| 所在地 | 兵庫県神戸市灘区篠原伯母野山町 | ||
| 交通 | 阪急神戸線 六甲駅 徒歩17分 JR東海道本線 六甲道駅 徒歩24分 | ||
| 階数 | 10階建 | 総戸数 | - |
| 築年月 | 1999年02月 / 築27年 | エレベーター | - |
| 駐車場 | 空有 18000円/機械式駐 | バイク置き場 | - |
| 駐輪場 | - | 管理人/管理会社 | - |
| 周辺環境 | その他 ファミリーマート灘篠原本町店(コンビニ)まで748m その他 神戸市立長峰中学校(中学校)まで1375m その他 神戸市立美野丘小学校(小学校)まで1448m その他 コープ篠原(スーパー)まで635m その他 いかりスーパーマーケット六甲店(スーパー)まで989m その他 コクミンドラッグ阪急六甲店(ドラッグストア)まで1153m | ||
| 建物種別 | マンション | 建物構造 | RC(鉄筋コンクリート) |
この部屋の取扱い不動産会社
| 会社名 | フロンティアハウス(SUUMO経由) | ||
|---|---|---|---|
| 所在地 | 兵庫県神戸市灘区宮山町3-3-43 | 交通 | - |
| 営業時間 | 9:30~18:30 | 定休日 | 水曜日 |
| 免許番号 | 兵庫県知事10075 | 取引態様 | 仲介 |
| 不動産会社管理番号 | 100480346656 | 当社管理番号 | 89 |
| 所属団体 | (一社)兵庫県宅地建物取引業協会会員 | ||
| 公正取引協議会 | (公社)近畿地区不動産公正取引協議会加盟 | ||
| 取扱い物件情報 | 物件詳細へ | ||
※各種情報と現状に差異がある場合は、現状優先となります。問い合わせをすることで、より詳しい条件、情報を確認する事ができます。
提供:フロンティアハウス(SUUMO経由)
この物件が気になったら掲載期限まであと11日
ジークレフ六甲の丘C棟 8階に条件(家賃・エリア)が近い物件一覧
| 写真 | 家賃 管理費等 | 敷金 礼金 | 間取り 専有面積 | 築年数 | 最寄り駅 所在地 | キープ | 詳細 |
|---|---|---|---|---|---|---|---|
マンション LANI TERRACE NISHINOMIYA(3LDK/2階) | |||||||
![]() | 13万円 5,000円 | なし 26万円 | 3LDK 67.32m2 | 築38年 | 阪神本線 甲子園駅 徒歩17分 阪神本線 鳴尾・武庫川女子大前駅 徒歩24分 兵庫県西宮市浜甲子園 | 詳細を見る | |
マンション レジェンダリー甲子園浦風町(3LDK/1階) | |||||||
![]() | 17万円 8,000円 | 17万円 40万円 | 3LDK 70.32m2 | 築7年 | 阪神本線 甲子園駅 徒歩5分 阪神本線 久寿川駅 徒歩7分 JR東海道本線 西宮駅(JR) 徒歩27分 兵庫県西宮市甲子園浦風町 | 詳細を見る | |
一戸建て 山陽本線 土山駅 徒歩22分 築3年(3LDK) | |||||||
![]() | 13万円 なし | なし 13万円 | 3LDK 91.91m2 | 築3年 | 山陽本線 土山駅 徒歩22分 兵庫県加古郡稲美町岡 | 詳細を見る | |
マンション 東海道本線 摩耶駅 徒歩5分 築7年(1LDK/1階) | |||||||
![]() | 12.5万円 1万円 | 12.5万円 37.5万円 | 1LDK 46.26m2 | 築7年 | 東海道本線 摩耶駅 徒歩5分 阪神電鉄本線 大石駅 徒歩7分 阪急電鉄神戸線 王子公園駅 徒歩10分 兵庫県神戸市灘区大内通2丁目 | 詳細を見る | |
一戸建て 山陽本線 魚住駅 徒歩25分 築39年(4SDK) | |||||||
![]() | 12万円 なし | なし 12万円 | 4SDK 86.95m2 | 築39年 | 山陽本線 魚住駅 徒歩25分 山陽本線 土山駅 徒歩28分 兵庫県加古郡稲美町六分一 | 詳細を見る | |
マンション フェリッツ上甲子園(2LDK/2階) | |||||||
![]() | 15万円 5,000円 | なし 30万円 | 2LDK 83.31m2 | 築29年 | 阪神電鉄本線 久寿川駅 徒歩12分 阪急電鉄今津線 阪神国道駅 徒歩15分 阪神電鉄本線 甲子園駅 徒歩16分 兵庫県西宮市上甲子園4丁目 | 詳細を見る | |
マンション 東海道本線 摩耶駅 徒歩5分 築7年(1LDK/1階) | |||||||
![]() | 13万円 1万円 | 13万円 39万円 | 1LDK 46.58m2 | 築7年 | 東海道本線 摩耶駅 徒歩5分 阪神電鉄本線 大石駅 徒歩7分 阪急電鉄神戸線 王子公園駅 徒歩10分 兵庫県神戸市灘区大内通2丁目 | 詳細を見る | |
マンション 山陽本線 大久保駅(兵庫) 徒歩7分 築5年(3LDK/1階) | |||||||
![]() | 16万円 なし | 32万円 32万円 | 3LDK 70m2 | 築5年 | 山陽本線 大久保駅(兵庫) 徒歩7分 山陽電気鉄道本線 中八木駅 徒歩17分 山陽電気鉄道本線 江井ケ島駅 徒歩29分 兵庫県明石市大久保町ゆりのき通2丁目 | 詳細を見る | |








