賃貸アパート
サンハイツHAGU組む町屋の賃貸物件情報(ワンルーム/2階)
| 家賃 | 管理費等 | 敷金 | 礼金 | 間取り | 専有面積 |
|---|---|---|---|---|---|
| 6万円 | 5,000円 | 6万円 | なし | ワンルーム | 19.87m2 |
入居決定でお祝い金最大100,000円
- 保証金
- -
- 償却・敷引
- -
- 築年数
- 築39年
- 所在階
- 2階
- 向き
- 南
Point
お探しの方には嬉しいペット飼育可。大型犬もok!インターネットも無料!新しい技術や感性を取り入れたアップデート済みの2023年リノベーション物件。無垢材フローリングの日当たりの良い明るいお部屋です。
提供:(株)Rバンク(SUUMO経由)

詳細情報 サンハイツHAGU組む町屋
物件紹介
サンハイツHAGU組む町屋は都電荒川線町屋二丁目駅から徒歩8分にあり、駅近で通勤通学に便利なアパートです。
このお部屋は2階以上に位置しているので、通行人や周囲の住人からの視線が気になりにくく、防犯面でも安心です。
人気の南向きのお部屋。また、フローリングなのでお掃除もラクラク。バス・トイレ別の仕様で、のんびりお風呂タイムも楽しめます。
通信設備面では、インターネットが無料で使えるので、月々の出費を抑えられるのも魅力です。また、CATVにも対応しているので、おうち時間も充実するでしょう(別途工事、CATVの契約料等が必要な場合あり)。
ペット飼育の相談ができますので、あなたの大切な家族の一員も快適に暮らせるか、ぜひ確認してみてください。
このお部屋は2階以上に位置しているので、通行人や周囲の住人からの視線が気になりにくく、防犯面でも安心です。
人気の南向きのお部屋。また、フローリングなのでお掃除もラクラク。バス・トイレ別の仕様で、のんびりお風呂タイムも楽しめます。
通信設備面では、インターネットが無料で使えるので、月々の出費を抑えられるのも魅力です。また、CATVにも対応しているので、おうち時間も充実するでしょう(別途工事、CATVの契約料等が必要な場合あり)。
ペット飼育の相談ができますので、あなたの大切な家族の一員も快適に暮らせるか、ぜひ確認してみてください。
お金・契約の情報
※「-」と表示されているものは、実際は料金が発生するものもございます。詳細はお問い合わせください。
| 家賃 | 6万円 | 管理費・共益費 | 5,000円 |
|---|---|---|---|
| 敷金 | 6万円 | 礼金 | なし |
| 入居決定でお祝い金最大100,000円 | |||
| 保証金 | - | 償却・敷引 | - |
| 住宅保険料 | - | 更新料 | - |
| 保証会社利用 | 必須 | 保証会社名 | - |
| 保証会社費用 | - | 保証会社備考 | 保証会社利用必 新日本信用保証総賃料×50パーセント(1年)、以降年間保証料10000円、口座振替の場合手数料月額330円 |
| 契約形態 | 定期借家 | 契約期間 | 2年 |
| 入居・引渡期間 | - | 現況 | - |
| 入居可能条件 | ペット相談 | ||
| 契約備考 | 巡回管理/リフォーム:2023年10月室内、敷地内/◎インターネット無料! ◎ケーブルTV ◎2023年リノベーション! ※短期解約違約あり(1年以内解約で賃料1ヶ月分)〇ペット飼育可能(大型犬OK、大型犬の多頭飼い不可、ペット飼育の場合敷金2ヶ月・2ヶ月分償却。)〇SOHO相談可、事務所不可、外国籍の方相談可、禁煙、現況有姿 〇駐輪場(屋根下税込275円/月、階段下税込220円/月・満車)、駐車場(計5台1台税込22000円/月・空有) 合計4.84万円(内訳:鍵交換費用28600円(税込)。24時間緊急サポート19800円(税込・2年)) 退去時に清掃費用72600円(税込)を敷金より償却します ワンルーム 単身者可/二人入居可/ペット相談/事務所利用不可 定期借家2年 損保【1.8万円2年】 バストイレ別、エアコン、クロゼット、フローリング、室内洗濯置、シューズボックス、温水洗浄便座、2口コンロ、駐輪場、ペット相談、グリル付、敷金1ヶ月、CATVインターネット、二人入居相談、全居室フローリング、駅まで平坦、ネット使用料不要、2駅利用可、駅徒歩10分以内、平面駐車場、都市ガス、玄関収納、IT重説対応物件 敷金積み増し【ペット飼育の場合敷金2ヶ月(総額)】 入居日:'26年4月上旬 | ||
部屋の情報
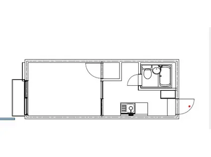
| 間取り | ワンルーム | 専有面積 | 19.87m2 |
|---|---|---|---|
| 所在階 / 向き | 2階 / 南 | バルコニー面積 | - |
| 水道 / ガス | - | ||
| 設備 | バス・トイレ別、2階以上、インターネット対応、エアコン、温水洗浄便座、南向き、フローリング、2口コンロ、CATV、インターネット使用料無料、洗濯機:室内 | ||
| 当社物件ID | 147963617 | ||
建物の情報
| 建物名 | サンハイツHAGU組む町屋 | ||
|---|---|---|---|
| 所在地 | 東京都荒川区町屋 | ||
| 交通 | 都電荒川線 町屋二丁目駅 徒歩8分 東京メトロ千代田線 町屋駅 徒歩9分 都電荒川線 町屋駅前駅 徒歩9分 | ||
| 階数 | 2階建 | 総戸数 | - |
| 築年月 | 1988年03月 / 築39年 | エレベーター | - |
| 駐車場 | 空有 22000円 | バイク置き場 | - |
| 駐輪場 | あり | 管理人/管理会社 | - |
| 周辺環境 | その他 コモディイイダ町屋店(スーパー)まで457m その他 セブンイレブン荒川町屋2丁目店(コンビニ)まで416m その他 どらっぐぱぱす町屋店(ドラッグストア)まで436m その他 バーミヤン町屋店(飲食店)まで446m その他 特定医療法人社団一成会木村病院(病院)まで479m その他 荒川町屋五郵便局(郵便局)まで433m | ||
| 建物種別 | アパート | 建物構造 | 軽量鉄骨造 |
この部屋の取扱い不動産会社
| 会社名 | (株)Rバンク(SUUMO経由) | ||
|---|---|---|---|
| 所在地 | 東京都目黒区上目黒2-6-11 | 交通 | - |
| 営業時間 | 10:00~19:00 | 定休日 | 水 |
| 免許番号 | 東京都知事88663 | 取引態様 | 仲介 |
| 不動産会社管理番号 | 100491476826 | 当社管理番号 | 89 |
| 所属団体 | (公社)東京都宅地建物取引業協会会員 | ||
| 公正取引協議会 | (公社)首都圏不動産公正取引協議会加盟 | ||
| 取扱い物件情報 | 物件詳細へ | ||
※各種情報と現状に差異がある場合は、現状優先となります。問い合わせをすることで、より詳しい条件、情報を確認する事ができます。
提供:(株)Rバンク(SUUMO経由)
この物件が気になったら掲載期限まであと7日
サンハイツHAGU組む町屋に条件(家賃・エリア)が近い物件一覧
| 写真 | 家賃 管理費等 | 敷金 礼金 | 間取り 専有面積 | 築年数 | 最寄り駅 所在地 | キープ | 詳細 |
|---|---|---|---|---|---|---|---|
マンション エレガンス・ヴィラ(ワンルーム/4階) | |||||||
![]() | 9万円 6,000円 | 9万円 なし | ワンルーム 20.83m2 | 築9年 | 東京メトロ有楽町線 江戸川橋駅 徒歩10分 都営大江戸線 飯田橋駅 徒歩14分 東京メトロ丸ノ内線 後楽園駅 徒歩15分 東京都文京区水道 | 詳細を見る | |
マンション FREESIA梅島(1LDK/3階) | |||||||
![]() | 9.2万円 1.2万円 | 9.2万円 9.2万円 | 1LDK 29.28m2 | 築1年 | 東武伊勢崎・大師線 梅島駅 徒歩11分 東武伊勢崎・大師線 五反野駅 徒歩11分 東京都足立区梅田2丁目 | 詳細を見る | |
マンション ルーブル本駒込(ワンルーム/3階) | |||||||
![]() | 8.6万円 9,000円 | 8.6万円 8.6万円 | ワンルーム 21.15m2 | 築19年 | JR山手線 駒込駅 徒歩6分 東京メトロ南北線 駒込駅 徒歩6分 都営三田線 千石駅 徒歩8分 東京都文京区本駒込 | 詳細を見る | |
マンション メインステージ五反野II(1K/11階) | |||||||
![]() | 9.15万円 1.5万円 | なし 27.45万円 | 1K 25.81m2 | 築1年 | 東武伊勢崎線 五反野駅 徒歩11分 東武伊勢崎線 梅島駅 徒歩14分 東武伊勢崎線 小菅駅 徒歩19分 東京都足立区梅田 | 詳細を見る | |
マンション MS SPUARE(ワンルーム/3階) | |||||||
![]() | 8.3万円 1.2万円 | なし 16.6万円 | ワンルーム 20.16m2 | 築4年 | JR埼京線 赤羽駅 徒歩8分 JR京浜東北線 東十条駅 徒歩12分 東京メトロ南北線 志茂駅 徒歩16分 東京都北区赤羽西 | 詳細を見る | |
マンション メゾン中島(ワンルーム/1階) | |||||||
![]() | 9.2万円 3,000円 | 9.2万円 18.4万円 | ワンルーム 23.72m2 | 築20年 | 東京メトロ千代田線 根津駅 徒歩2分 東京メトロ南北線 東大前駅 徒歩14分 京成本線 京成上野駅 徒歩16分 東京都文京区根津 | 詳細を見る | |
アパート ハーモニーテラス一ツ家IX(ワンルーム/2階) | |||||||
![]() | 5.95万円 4,000円 | なし なし | ワンルーム 18.08m2 | 築3年 | つくばエクスプレス 六町駅 徒歩10分 つくばエクスプレス 青井駅 徒歩16分 東京メトロ千代田線 北綾瀬駅 徒歩20分 東京都足立区一ツ家 | 詳細を見る | |
アパート リブリ・ALBERO(1K/2階) | |||||||
![]() | 7.3万円 4,000円 | なし 7.3万円 | 1K 24.84m2 | 築9年 | 日暮里・舎人ライナー 高野駅(東京) 徒歩8分 日暮里・舎人ライナー 扇大橋駅 徒歩11分 日暮里・舎人ライナー 江北駅(東京) 徒歩13分 東京都足立区江北 | 詳細を見る | |









