賃貸マンション
アンダンテ烏丸七条の賃貸物件情報(1LDK/3階)
| 家賃 | 管理費等 | 敷金 | 礼金 | 間取り | 専有面積 |
|---|---|---|---|---|---|
| 10.5万円 | 1.5万円 | なし | 10.5万円 | 1LDK | 38.83m2 |
入居決定でお祝い金最大100,000円
- 保証金
- -
- 償却・敷引
- -
- 築年数
- 築14年
- 所在階
- 3階
- 向き
- 南
Point
3口コンロ。宅配BOX。 システムキッチン・浴室乾燥機など充実の設備も完備。
提供:株式会社 京都ライフ 烏丸五条店(賃貸スモッカ経由)

詳細情報 アンダンテ烏丸七条
物件紹介
アンダンテ烏丸七条は京都市烏丸線五条駅から徒歩5分にあり、駅近で通勤通学に便利なマンションです。
このお部屋は2階以上に位置しているので、通行人や周囲の住人からの視線が気になりにくく、防犯面でも安心。建物のエントランスはオートロックがついており、インターホンにはTVモニタもついているため、相手の顔を確認してから来客対応することができます。
人気の南向き・フローリングのお部屋。角部屋でもあるため、周囲の居住者の生活音も気になりにくい場所です。キッチンはシステムキッチン仕様になっていますので、お料理好きの方にもぴったり。バス・トイレは別なので、のんびりお風呂タイムも楽しめるでしょう。また、雨の日でも浴室乾燥機を使えば、お洗濯も問題ありません。
通信設備面では、インターネット接続が可能です。また、BSアンテナ・CSアンテナもありますので、おうち時間も充実するでしょう(別途工事、契約料が必要な場合あり)。
建物にはエレベーターがついているので、重い荷物があっても安心。共用部には宅配ボックスが設定されているので、不在の時にも荷物を受け取ることができます。
このお部屋は2階以上に位置しているので、通行人や周囲の住人からの視線が気になりにくく、防犯面でも安心。建物のエントランスはオートロックがついており、インターホンにはTVモニタもついているため、相手の顔を確認してから来客対応することができます。
人気の南向き・フローリングのお部屋。角部屋でもあるため、周囲の居住者の生活音も気になりにくい場所です。キッチンはシステムキッチン仕様になっていますので、お料理好きの方にもぴったり。バス・トイレは別なので、のんびりお風呂タイムも楽しめるでしょう。また、雨の日でも浴室乾燥機を使えば、お洗濯も問題ありません。
通信設備面では、インターネット接続が可能です。また、BSアンテナ・CSアンテナもありますので、おうち時間も充実するでしょう(別途工事、契約料が必要な場合あり)。
建物にはエレベーターがついているので、重い荷物があっても安心。共用部には宅配ボックスが設定されているので、不在の時にも荷物を受け取ることができます。
お金・契約の情報
※「-」と表示されているものは、実際は料金が発生するものもございます。詳細はお問い合わせください。
| 家賃 | 10.5万円 | 管理費・共益費 | 1.5万円 |
|---|---|---|---|
| 敷金 | なし | 礼金 | 10.5万円 |
| 入居決定でお祝い金最大100,000円 | |||
| 保証金 | - | 償却・敷引 | - |
| 住宅保険料 | 住宅保険料あり | 更新料 | - |
| 契約形態 | - | 契約期間 | 2年 |
| 入居・引渡期間 | 2026年01月下旬 | 現況 | 賃貸中 |
| 契約備考 | 京都らしさを存分に堪能できる、東本願寺前で、京都駅へのアクセスも良好です。近くには、スーパー、伊勢丹や京都地下ポルタもありショッピングも楽しめますね。システムキッチン、浴室乾燥機など充実の設備も自慢です。オートロック付きで、防犯面も安心です お気軽に京都ライフ京都駅前店までお問い合わせ下さい。 エアコンクリーニング代:11,000円 町会費:300円 更新料:1ヶ月 保証会社:利用必須 初回:月額賃料等の40%/2年、月額:支払い手数料880円、更新時:月額賃料等の20%/2年 その他設備/条件:コンロ2口以上、TVドアホン | ||
部屋の情報
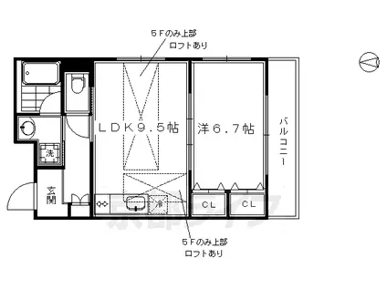
| 間取り | 1LDK | 専有面積 | 38.83m2 |
|---|---|---|---|
| 間取り詳細 | 洋室(6.7帖)、LDK(9.5帖) | ||
| 所在階 / 向き | 3階 / 南 | バルコニー面積 | - |
| 水道 / ガス | ガス【都市】 | ||
| 設備 | バス・トイレ別、2階以上、オートロック、宅配ボックス、浴室乾燥機、インターネット対応、システムキッチン、エアコン、エレベーター、温水洗浄便座、南向き、角部屋、バルコニー、フローリング、コンロ:ガス、CSアンテナ、BSアンテナ、洗濯機:室内 | ||
| 当社物件ID | 25389788 | ||
建物の情報
| 建物名 | アンダンテ烏丸七条 | ||
|---|---|---|---|
| 所在地 | 京都府京都市下京区上珠数屋町通東洞院西入上珠数屋町 | ||
| 交通 | 京都市烏丸線 五条駅(京都市営) 徒歩5分 東海道本線 京都駅 徒歩7分 | ||
| 階数 | 5階建 | 総戸数 | - |
| 築年月 | 2012年02月 / 築14年 | エレベーター | あり |
| 駐車場 | - | バイク置き場 | - |
| 駐輪場 | あり | 管理人/管理会社 | - |
| 建物種別 | マンション | 建物構造 | RC(鉄筋コンクリート) |
この部屋の取扱い不動産会社
| 会社名 | 株式会社 京都ライフ 京都駅前店(賃貸スモッカ経由) | ||
|---|---|---|---|
| 所在地 | 京都市下京区東洞院通七条下ル東塩小路町717-1 | 交通 | - |
| 営業時間 | - | 定休日 | - |
| 免許番号 | 京都府知事(11)第6353号 | 取引態様 | 仲介 |
| 不動産会社管理番号 | kyotolife_59168-301 | 当社管理番号 | 463 |
| 所属団体 | 京都府宅地建物取引業協会\n公益社団法人近畿地区不動産公正取引協議会 | ||
| 公正取引協議会 | 全国宅地建物取引業保証協会 | ||
| 取扱い物件情報 | 物件詳細へ | ||
※各種情報と現状に差異がある場合は、現状優先となります。問い合わせをすることで、より詳しい条件、情報を確認する事ができます。
提供:株式会社 京都ライフ 京都駅前店(賃貸スモッカ経由)
この物件が気になったら掲載期限まであと5日
アンダンテ烏丸七条に条件(家賃・エリア)が近い物件一覧
| 写真 | 家賃 管理費等 | 敷金 礼金 | 間取り 専有面積 | 築年数 | 最寄り駅 所在地 | キープ | 詳細 |
|---|---|---|---|---|---|---|---|
マンション 山陰本線 丹波口駅 徒歩12分 築20年(1K/8階) | |||||||
![]() | 6.3万円 7,000円 | なし 10万円 | 1K 33m2 | 築20年 | 山陰本線 丹波口駅 徒歩12分 東海道本線 京都駅 徒歩18分 京都府京都市下京区観喜寺町 | 詳細を見る | |
マンション リシュドール梅小路(2LDK/10階) | |||||||
![]() | 13.3万円 8,000円 | なし 13.3万円 | 2LDK 42.52m2 | 新築 | JR山陰本線 丹波口駅 徒歩7分 JR東海道本線 西大路駅 徒歩20分 阪急京都線 大宮駅(京都) 徒歩22分 京都府京都市下京区朱雀分木町 | 詳細を見る | |
マンション KIND3 南館(1K/6階) | |||||||
![]() | 6.9万円 8,000円 | 15万円 15万円 | 1K 28.58m2 | 築20年 | 東海道本線 京都駅 徒歩2分 京都府京都市南区東九条室町 | 詳細を見る | |
マンション 京都市烏丸線 五条駅(京都市営) 徒歩6分 築10年(1SLDK/4階) | |||||||
![]() | 16万円 1.722万円 | なし 20万円 | 1SLDK 57.67m2 | 築10年 | 京都市烏丸線 五条駅(京都市営) 徒歩6分 京都市烏丸線 四条駅(京都市営) 徒歩9分 京都府京都市下京区材木町通東洞院東入本燈籠町 | 詳細を見る | |
マンション 京都市烏丸線 五条駅(京都市営) 徒歩6分 築10年(1SLDK/4階) | |||||||
![]() | 16万円 1.722万円 | なし 20万円 | 1SLDK 57.67m2 | 築10年 | 京都市烏丸線 五条駅(京都市営) 徒歩6分 京都市烏丸線 四条駅(京都市営) 徒歩9分 京都府京都市下京区本燈籠町 | 詳細を見る | |
マンション 東海道本線 西大路駅 徒歩10分 築1年(1LDK/2階) | |||||||
![]() | 8.08万円 5,200円 | なし 16.16万円 | 1LDK 29.1m2 | 築1年 | 東海道本線 西大路駅 徒歩10分 東海道本線 京都駅 徒歩30分 京都府京都市南区吉祥院定成町 | 詳細を見る | |
アパート 東海道本線 西大路駅 徒歩12分 築33年(2DK/2階) | |||||||
![]() | 6.7万円 4,000円 | なし 10.05万円 | 2DK 41m2 | 築33年 | 東海道本線 西大路駅 徒歩12分 近鉄京都線 東寺駅 徒歩20分 東海道本線 京都駅 徒歩22分 京都府京都市南区唐橋赤金町 | 詳細を見る | |
マンション 阪急電鉄京都線 長岡天神駅 徒歩5分 築42年(2LDK/1階) | |||||||
![]() | 10.5万円 5,000円 | 10.5万円 10.5万円 | 2LDK 56.95m2 | 築42年 | 阪急電鉄京都線 長岡天神駅 徒歩5分 東海道本線 長岡京駅 徒歩7分 京都府長岡京市開田3丁目 | 詳細を見る | |







