賃貸マンション
シティハウス東京新橋の賃貸物件情報(1DK/2階)
| 家賃 | 管理費等 | 敷金 | 礼金 | 間取り | 専有面積 |
|---|---|---|---|---|---|
| 17.8万円 | 1.2万円 | 17.8万円 | 17.8万円 | 1DK | 31.39m2 |
入居決定でお祝い金最大100,000円
- 保証金
- -
- 償却・敷引
- -
- 築年数
- 築22年
- 所在階
- 2階
- 向き
- 北
Point
ドラム式洗濯機つきの分譲1DKが新橋エリアに出ました!浴室のカウンターや物入、クローゼット等収納箇所が多く使いやすくお勧めです!新橋エリアでお探しの方は、是非お問い合わせください!
提供:(株)クラッシー・ホームズ浜松町本店(SUUMO経由)

詳細情報 シティハウス東京新橋
物件紹介
シティハウス東京新橋は都営三田線御成門駅から徒歩3分にあり、駅近で通勤通学に便利なマンションです。
このお部屋は2階以上に位置しているので、通行人や周囲の住人からの視線が気になりにくく、防犯面でも安心。建物のエントランスはオートロックがついており、インターホンにはTVモニタもついているため、相手の顔を確認してから来客対応することができます。
フローリングのお部屋なのでお掃除もラクラク。キッチンはシステムキッチン仕様になっていますので、お料理好きの方にもぴったり。バス・トイレは別なので、のんびりお風呂タイムも楽しめるでしょう。また、雨の日でも浴室乾燥機を使えば、お洗濯も問題ありません。
通信設備面では、インターネット接続が可能です。また、CSアンテナがありCATVにも対応しているので、おうち時間も充実するでしょう(別途工事、契約料が必要な場合あり)。
建物にはエレベーターがついているので、重い荷物があっても安心。共用部には宅配ボックスが設定されているので、不在の時にも荷物を受け取ることができます。
このお部屋は2階以上に位置しているので、通行人や周囲の住人からの視線が気になりにくく、防犯面でも安心。建物のエントランスはオートロックがついており、インターホンにはTVモニタもついているため、相手の顔を確認してから来客対応することができます。
フローリングのお部屋なのでお掃除もラクラク。キッチンはシステムキッチン仕様になっていますので、お料理好きの方にもぴったり。バス・トイレは別なので、のんびりお風呂タイムも楽しめるでしょう。また、雨の日でも浴室乾燥機を使えば、お洗濯も問題ありません。
通信設備面では、インターネット接続が可能です。また、CSアンテナがありCATVにも対応しているので、おうち時間も充実するでしょう(別途工事、契約料が必要な場合あり)。
建物にはエレベーターがついているので、重い荷物があっても安心。共用部には宅配ボックスが設定されているので、不在の時にも荷物を受け取ることができます。
お金・契約の情報
※「-」と表示されているものは、実際は料金が発生するものもございます。詳細はお問い合わせください。
| 家賃 | 17.8万円 | 管理費・共益費 | 1.2万円 |
|---|---|---|---|
| 敷金 | 17.8万円 | 礼金 | 17.8万円 |
| 入居決定でお祝い金最大100,000円 | |||
| 保証金 | - | 償却・敷引 | - |
| 住宅保険料 | - | 更新料 | - |
| 保証会社利用 | 必須 | 保証会社名 | - |
| 保証会社費用 | - | 保証会社備考 | 保証会社利用必 ジェイリース:総賃料の50%,年更新10,000円毎月保証料550円 安心入居サポート月額1,100円 |
| 契約形態 | 定期借家 | 契約期間 | 5年 |
| 入居・引渡期間 | 即時 | 現況 | - |
| 契約備考 | ペット飼育不可。室内禁煙。民泊運用不可。転貸不可。法人契約要相談。退去時のハウスクリーニング、エアコン洗浄は借主様の負担とさせて頂きます。鍵交換希望の場合、借主様の負担となります。(貸主指定業者にて実施)契約開始日から1年未満で解約の場合、賃料1ヶ月分の違約金あり洗濯機あり残置物:(LD)エアコン、シーリングライト(居室)シーリングライト宅配カード登録料3300円 1DK 事務所利用不可/ルームシェア不可 定期借家5年 損保【1.8万円2年】 バストイレ別、バルコニー、フローリング、浴室乾燥機、オートロック、室内洗濯置、システムキッチン、エレベーター、洗面所独立、宅配ボックス、即入居可、分譲賃貸、保証人不要、全居室フローリング、洗濯機、エレベーター2基、3駅以上利用可、3沿線以上利用可、駅徒歩5分以内、駅徒歩10分以内、敷地内ごみ置き場、当社管理物件、2WAYキッチン、都市ガス | ||
部屋の情報
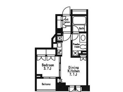
| 間取り | 1DK | 専有面積 | 31.39m2 |
|---|---|---|---|
| 所在階 / 向き | 2階 / 北 | バルコニー面積 | 2m2 |
| 水道 / ガス | - | ||
| 設備 | バス・トイレ別、2階以上、オートロック、宅配ボックス、浴室乾燥機、システムキッチン、エレベーター、バルコニー、フローリング、洗髪洗面化粧台、洗濯機:室内 | ||
| 当社物件ID | 160051776 | ||
建物の情報
| 建物名 | シティハウス東京新橋 | ||
|---|---|---|---|
| 所在地 | 東京都港区新橋 | ||
| 交通 | 都営三田線 御成門駅 徒歩3分 都営浅草線 大門駅(東京) 徒歩9分 JR山手線 新橋駅 徒歩10分 | ||
| 階数 | 12階建 | 総戸数 | - |
| 築年月 | 2004年08月 / 築22年 | エレベーター | あり |
| 駐車場 | なし | バイク置き場 | - |
| 駐輪場 | - | 管理人/管理会社 | - |
| 周辺環境 | その他 まいばすけっと新橋5丁目店(スーパー)まで346m その他 ナチュラルローソン新橋六丁目店(コンビニ)まで147m その他 ファミリーマート+ミヤモトドラッグ御成門店(ドラッグストア)まで208m その他 エクセルシオールカフェ御成門駅前店(飲食店)まで298m その他 芝大門郵便局(郵便局)まで320m その他 芝信用金庫本店(銀行)まで242m | ||
| 建物種別 | マンション | 建物構造 | RC(鉄筋コンクリート) |
この部屋の取扱い不動産会社
| 会社名 | 信義房屋マネジメント(株)(SUUMO経由) | ||
|---|---|---|---|
| 所在地 | 東京都渋谷区代々木2-7-1 | 交通 | - |
| 営業時間 | 10時00分~18時00分 | 定休日 | 水曜 |
| 免許番号 | 東京都知事105916 | 取引態様 | 代理 |
| 不動産会社管理番号 | 100477902839 | 当社管理番号 | 89 |
| 所属団体 | (公社)全日本不動産協会東京都本部会員 | ||
| 公正取引協議会 | (公社)首都圏不動産公正取引協議会加盟 | ||
| 取扱い物件情報 | 物件詳細へ | ||
※各種情報と現状に差異がある場合は、現状優先となります。問い合わせをすることで、より詳しい条件、情報を確認する事ができます。
提供:信義房屋マネジメント(株)(SUUMO経由)
この物件が気になったら掲載期限まであと9日
シティハウス東京新橋に条件(家賃・エリア)が近い物件一覧
| 写真 | 家賃 管理費等 | 敷金 礼金 | 間取り 専有面積 | 築年数 | 最寄り駅 所在地 | キープ | 詳細 |
|---|---|---|---|---|---|---|---|
マンション GRAN PASEO 神田駅前(1K/7階) | |||||||
![]() | 13.4万円 1.5万円 | 13.4万円 13.4万円 | 1K 20.94m2 | 築7年 | 東京都新宿線 岩本町駅 徒歩3分 京浜東北・根岸線 神田駅(東京) 徒歩5分 山手線 神田駅(東京) 徒歩5分 東京都千代田区神田須田町2丁目 | 詳細を見る | |
マンション 渡辺マンション(3SLDK/4階) | |||||||
![]() | 25万円 1万円 | 25万円 50万円 | 3SLDK 86.12m2 | 築48年 | 東急目黒線 西小山駅 徒歩6分 東急目黒線 洗足駅 徒歩11分 東京都品川区荏原7丁目 | 詳細を見る | |
マンション レジディア南品川Ⅱ(2DK/8階) | |||||||
![]() | 21.8万円 2万円 | 21.8万円 21.8万円 | 2DK 41.9m2 | 築11年 | 京浜急行電鉄本線 新馬場駅 徒歩6分 東京都品川区南品川2丁目 | 詳細を見る | |
マンション STANDZ亀戸(2LDK/11階) | |||||||
![]() | 21万円 1.5万円 | 21万円 なし | 2LDK 41.93m2 | 築1年 | JR総武線 亀戸駅 徒歩7分 JR総武線 錦糸町駅 徒歩15分 東京メトロ半蔵門線 錦糸町駅 徒歩15分 東京都江東区亀戸 | 詳細を見る | |
マンション エスタート品川戸越Ⅱ(1K/8階) | |||||||
![]() | 12.8万円 8,000円 | 12.8万円 なし | 1K 21.17m2 | 築9年 | 東急池上線 荏原中延駅 徒歩4分 東京都浅草線 戸越駅 徒歩5分 山手線 大崎駅 徒歩20分 東京都品川区東中延1丁目 | 詳細を見る | |
一戸建て 東京地下鉄東西線 木場駅 徒歩7分 築10年(2LDK) | |||||||
![]() | 24万円 なし | 48万円 24万円 | 2LDK 70.43m2 | 築10年 | 東京地下鉄東西線 木場駅 徒歩7分 東京都大江戸線 門前仲町駅 徒歩17分 京葉線 越中島駅 徒歩19分 東京都江東区木場6丁目 | 詳細を見る | |
マンション パークアクシス神保町(1DK/5階) | |||||||
![]() | 18万円 1万円 | 18万円 なし | 1DK 27.31m2 | 築2年 | 東京都新宿線 神保町駅 徒歩4分 総武・中央緩行線 水道橋駅 徒歩6分 東京地下鉄半蔵門線 九段下駅 徒歩9分 東京都千代田区神田神保町1丁目 | 詳細を見る | |
マンション リヴシティ亀戸(1K/8階) | |||||||
![]() | 11.85万円 1.5万円 | なし なし | 1K 26.61m2 | 築1年 | 東武亀戸線 小村井駅 徒歩11分 JR総武線 亀戸駅 徒歩13分 東京メトロ半蔵門線 押上駅 徒歩18分 東京都江東区亀戸 | 詳細を見る | |








