賃貸マンション
ARTESSIMO GREASの賃貸物件情報(ワンルーム/5階)
| 家賃 | 管理費等 | 敷金 | 礼金 | 間取り | 専有面積 |
|---|---|---|---|---|---|
| 9.2万円 | 1万円 | なし | 9.2万円 | ワンルーム | 20.01m2 |
入居決定でお祝い金最大100,000円
- 保証金
- -
- 償却・敷引
- -
- 築年数
- 築10年
- 所在階
- 5階
- 向き
- -
Point
【LINEで簡単にお部屋探し】【内覧代行やLINEでお部屋探し】【来店不要で契約締結も可能です!】【様々なご職業の方ご相談可能】【営業時間10ー20時お仕事終わりでもご対応可能です!】1年未満解約時
提供:(株)LIFIX川崎店(SUUMO経由)

詳細情報 ARTESSIMO GREAS
物件紹介
ARTESSIMO GREASはJR南武線尻手駅から徒歩9分にあり、駅近で通勤通学に便利なマンションです。
このお部屋は2階以上に位置しているので、通行人や周囲の住人からの視線が気になりにくく、防犯面でも安心。建物のエントランスはオートロックがついており、インターホンにはTVモニタもついているため、相手の顔を確認してから来客対応することができます。
フローリングのお部屋なのでお掃除もラクラク。キッチンはシステムキッチン仕様になっていますので、お料理好きの方にもぴったり。バス・トイレは別なので、のんびりお風呂タイムも楽しめるでしょう。また、雨の日でも浴室乾燥機を使えば、お洗濯も問題ありません。
建物にはエレベーターがついているので、重い荷物があっても安心。共用部には宅配ボックスが設定されているので、不在の時にも荷物を受け取ることができます。
このお部屋は2階以上に位置しているので、通行人や周囲の住人からの視線が気になりにくく、防犯面でも安心。建物のエントランスはオートロックがついており、インターホンにはTVモニタもついているため、相手の顔を確認してから来客対応することができます。
フローリングのお部屋なのでお掃除もラクラク。キッチンはシステムキッチン仕様になっていますので、お料理好きの方にもぴったり。バス・トイレは別なので、のんびりお風呂タイムも楽しめるでしょう。また、雨の日でも浴室乾燥機を使えば、お洗濯も問題ありません。
建物にはエレベーターがついているので、重い荷物があっても安心。共用部には宅配ボックスが設定されているので、不在の時にも荷物を受け取ることができます。
お金・契約の情報
※「-」と表示されているものは、実際は料金が発生するものもございます。詳細はお問い合わせください。
| 家賃 | 9.2万円 | 管理費・共益費 | 1万円 |
|---|---|---|---|
| 敷金 | なし | 礼金 | 9.2万円 |
| 入居決定でお祝い金最大100,000円 | |||
| 保証金 | - | 償却・敷引 | - |
| 住宅保険料 | - | 更新料 | - |
| 保証会社利用 | 必須 | 保証会社名 | - |
| 保証会社費用 | - | 保証会社備考 | 保証会社利用必 初回:総賃料の50% 月額:総賃料の1.1% |
| 契約形態 | - | 契約期間 | - |
| 入居・引渡期間 | - | 現況 | - |
| 契約備考 | 【LINEで簡単にお部屋探し】【内覧代行やLINEでお部屋探し】【来店不要で契約締結も可能です!】【様々なご職業の方ご相談可能】【営業時間10ー20時お仕事終わりでもご対応可能です!】1年未満解約時総賃料の1ヶ月分の短期解約違約金有 合計4.95万円(内訳:エアコン清掃(退去時)1.65万円鍵交換代3.3万円) 更新料 新賃料1.00ヶ月分 室内清掃費用 44000円 火災保険付き付帯サービス 月額2200円 ワンルーム 普通借家2年 損保【要】 バストイレ別、バルコニー、エアコン、ガスコンロ対応、クロゼット、フローリング、TVインターホン、浴室乾燥機、オートロック、室内洗濯置、シューズボックス、システムキッチン、温水洗浄便座、脱衣所、エレベーター、洗面所独立、洗面化粧台、2口コンロ、宅配ボックス、外壁タイル張り、敷金不要、防犯カメラ、分譲賃貸、保証人不要、ガスレンジ付、2沿線利用可、ダブルロックキー、保証金不要、24時間換気システム、耐震構造、2駅利用可、3駅以上利用可、3沿線以上利用可、防犯強化地域、駅徒歩10分以内、24時間ゴミ出し可、敷地内ごみ置き場、都市ガス、洗面所にドア、保証会社利用可、IT重説対応物件 入居日:'26年5月下旬 | ||
部屋の情報
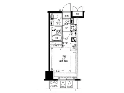
| 間取り | ワンルーム | 専有面積 | 20.01m2 |
|---|---|---|---|
| 所在階 / 向き | 5階 / - | バルコニー面積 | - |
| 水道 / ガス | - | ||
| 設備 | バス・トイレ別、2階以上、オートロック、テレビドアホン、宅配ボックス、浴室乾燥機、システムキッチン、エアコン、エレベーター、温水洗浄便座、バルコニー、フローリング、洗髪洗面化粧台、2口コンロ、コンロ:ガス、洗濯機:室内 | ||
| 当社物件ID | 22369371 | ||
建物の情報
| 建物名 | ARTESSIMO GREAS | ||
|---|---|---|---|
| 所在地 | 神奈川県川崎市幸区南幸町 | ||
| 交通 | JR南武線 尻手駅 徒歩9分 JR京浜東北線 川崎駅 徒歩11分 京急本線 京急川崎駅 徒歩14分 | ||
| 階数 | 9階建 | 総戸数 | - |
| 築年月 | 2016年12月 / 築10年 | エレベーター | あり |
| 駐車場 | なし | バイク置き場 | - |
| 駐輪場 | - | 管理人/管理会社 | - |
| 周辺環境 | その他 ガスト 尻手駅前店(から好し取扱店)(飲食店)まで781m その他 マクドナルド 矢向駅前店(飲食店)まで983m その他 マルダイ矢向店(スーパー)まで895m その他 まいばすけっと 川崎中幸町3丁目店(スーパー)まで534m その他 ラゾーナ川崎(ショッピングセンター)まで1003m その他 セブンイレブン 川崎中幸町店(コンビニ)まで454m | ||
| 建物種別 | マンション | 建物構造 | RC(鉄筋コンクリート) |
この部屋の取扱い不動産会社
| 会社名 | (株)LIFIX(SUUMO経由) | ||
|---|---|---|---|
| 所在地 | 神奈川県横浜市西区岡野1-13-5 横浜西口サンエースビル702 | 交通 | - |
| 営業時間 | 10:00-21:00 | 定休日 | 年中無休 |
| 免許番号 | 神奈川県知事29539 | 取引態様 | 仲介 |
| 不動産会社管理番号 | 100501925926 | 当社管理番号 | 89 |
| 所属団体 | (公社)神奈川県宅地建物取引業協会会員 | ||
| 公正取引協議会 | (公社)首都圏不動産公正取引協議会加盟 | ||
| 取扱い物件情報 | 物件詳細へ | ||
※各種情報と現状に差異がある場合は、現状優先となります。問い合わせをすることで、より詳しい条件、情報を確認する事ができます。
提供:(株)LIFIX(SUUMO経由)
この物件が気になったら掲載期限まであと12日
ARTESSIMO GREASに条件(家賃・エリア)が近い物件一覧
| 写真 | 家賃 管理費等 | 敷金 礼金 | 間取り 専有面積 | 築年数 | 最寄り駅 所在地 | キープ | 詳細 |
|---|---|---|---|---|---|---|---|
マンション ベルグレード吉野町(ワンルーム/1階) | |||||||
![]() | 7.9万円 1万円 | なし 3.95万円 | ワンルーム 21.24m2 | 築1年 | ブルーライン 蒔田駅 徒歩8分 ブルーライン 吉野町駅 徒歩9分 京急本線 南太田駅 徒歩12分 神奈川県横浜市南区東蒔田町 | 詳細を見る | |
アパート アルペンローゼ(2LDK/2階) | |||||||
![]() | 11.4万円 4,000円 | 11.4万円 11.4万円 | 2LDK 53m2 | 築27年 | ブルーライン センター南駅 徒歩7分 神奈川県横浜市都筑区茅ケ崎南 | 詳細を見る | |
マンション ジェノヴィア川崎VII(1K/9階) | |||||||
![]() | 9.75万円 1万円 | なし なし | 1K 25.88m2 | 築2年 | JR京浜東北線 川崎駅 徒歩10分 京急本線 京急川崎駅 徒歩13分 神奈川県川崎市川崎区南町 | 詳細を見る | |
マンション ガーラ横濱関内グランドステージ(1K/1階) | |||||||
![]() | 8.8万円 5,500円 | なし 8.8万円 | 1K 25.89m2 | 築10年 | 神奈川県横浜市中区不老町 | 詳細を見る | |
マンション 阪東橋パークテラス(3LDK/6階) | |||||||
![]() | 14.2万円 5,000円 | 42.6万円 なし | 3LDK 72.47m2 | 築26年 | ブルーライン 阪東橋駅 徒歩3分 京急本線 黄金町駅 徒歩8分 JR京浜東北線 関内駅 徒歩21分 神奈川県横浜市南区白妙町 | 詳細を見る | |
マンション プレデコート西京極(1LDK/3階) | |||||||
![]() | 10.4万円 8,000円 | なし なし | 1LDK 39.16m2 | 築6年 | 阪急京都線 西京極駅 徒歩8分 阪急京都線 桂駅 徒歩24分 JR東海道本線 西大路駅 徒歩26分 京都府京都市右京区西京極堤外町 | 詳細を見る | |
マンション メインステージ横濱弥生町(1K/7階) | |||||||
![]() | 8.3万円 1.5万円 | なし なし | 1K 21.03m2 | 築7年 | 横浜市ブルーライン 伊勢佐木長者町駅 徒歩5分 神奈川県横浜市中区弥生町2丁目 | 詳細を見る | |
マンション ウッドスクエア二俣川(3DK/3階) | |||||||
![]() | 8.5万円 6,000円 | なし なし | 3DK 48m2 | 築40年 | 相鉄本線 二俣川駅 徒歩10分 相鉄いずみ野線 二俣川駅 徒歩10分 相鉄いずみ野線 南万騎が原駅 徒歩24分 神奈川県横浜市旭区本宿町 | 詳細を見る | |








