賃貸マンション
メインステージ多摩川IIIの賃貸物件情報(1K/2階)
| 家賃 | 管理費等 | 敷金 | 礼金 | 間取り | 専有面積 |
|---|---|---|---|---|---|
| 8.7万円 | 1.5万円 | なし | 8.7万円 | 1K | 20.8m2 |
入居決定でお祝い金最大100,000円
Point
共用部には宅配ボックス・ゴミ出し24時間OKなどが備わっておりとても充実しています。
提供:スマイルーム STF(株)(SUUMO経由)

詳細情報 メインステージ多摩川III
物件紹介
メインステージ多摩川IIIは東急多摩川線武蔵新田駅から徒歩3分にあり、駅近で通勤通学に便利なマンションです。
このお部屋は2階以上に位置しているので、通行人や周囲の住人からの視線が気になりにくく、防犯面でも安心。建物のエントランスはオートロックがついており、インターホンにはTVモニタもついているため、相手の顔を確認してから来客対応することができます。
おしゃれなデザイナーズ物件!フローリングのお部屋なのでお掃除もラクラク。キッチンはシステムキッチン仕様になっていますので、お料理好きの方にもぴったり。バス・トイレは別なので、のんびりお風呂タイムも楽しめるでしょう。また、雨の日でも浴室乾燥機を使えば、お洗濯も問題ありません。
通信設備面では、インターネット接続が可能です。また、BSアンテナ・CSアンテナがありCATVにも対応しているので、おうち時間も充実するでしょう(別途工事、契約料が必要な場合あり)。
建物にはエレベーターがついているので、重い荷物があっても安心。共用部には宅配ボックスが設定されているので、不在の時にも荷物を受け取ることができます。また、ペット飼育の相談ができますので、あなたの大切な家族の一員も快適に暮らせるか、ぜひ確認してみてください。
このお部屋は2階以上に位置しているので、通行人や周囲の住人からの視線が気になりにくく、防犯面でも安心。建物のエントランスはオートロックがついており、インターホンにはTVモニタもついているため、相手の顔を確認してから来客対応することができます。
おしゃれなデザイナーズ物件!フローリングのお部屋なのでお掃除もラクラク。キッチンはシステムキッチン仕様になっていますので、お料理好きの方にもぴったり。バス・トイレは別なので、のんびりお風呂タイムも楽しめるでしょう。また、雨の日でも浴室乾燥機を使えば、お洗濯も問題ありません。
通信設備面では、インターネット接続が可能です。また、BSアンテナ・CSアンテナがありCATVにも対応しているので、おうち時間も充実するでしょう(別途工事、契約料が必要な場合あり)。
建物にはエレベーターがついているので、重い荷物があっても安心。共用部には宅配ボックスが設定されているので、不在の時にも荷物を受け取ることができます。また、ペット飼育の相談ができますので、あなたの大切な家族の一員も快適に暮らせるか、ぜひ確認してみてください。
お金・契約の情報
※「-」と表示されているものは、実際は料金が発生するものもございます。詳細はお問い合わせください。
| 家賃 | 8.7万円 | 管理費・共益費 | 1.5万円 |
|---|---|---|---|
| 敷金 | なし | 礼金 | 8.7万円 |
| 入居決定でお祝い金最大100,000円 | |||
| 保証金 | - | 償却・敷引 | - |
| 住宅保険料 | 1円 | 更新料 | - |
| その他費用 | ハウスクリーニング費用(退去時請求):4.95万円、29700円:、AMLクラブサポート費用(契約時請求):1.65万円 | ||
| 保証会社利用 | 必須 | 保証会社名 | - |
| 保証会社費用 | - | 保証会社備考 | 50%〜 |
| 契約形態 | - | 契約期間 | 2年 |
| 入居・引渡期間 | 即時 | 現況 | - |
| 入居可能条件 | 2人入居可、ペット可 | ||
| 契約備考 | 退去時鍵交換費(契約時請求):22000円、AMLクラブサポート費(契約時請求:16500円、 ハウスクリーニング費用(退去時請求):49500円、火災保険2年15000円 その他設備/条件:室内洗濯機置き場、ごみ出し24時間OK、独立洗面台、防犯カメラ、ルームシェア可、クローゼット、シューズボックス、照明器具付き | ||
部屋の情報
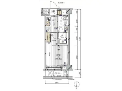
| 間取り | 1K | 専有面積 | 20.8m2 |
|---|---|---|---|
| 間取り詳細 | 洋室(6帖) | ||
| 所在階 / 向き | 2階 / 北 | バルコニー面積 | 2m2 |
| 水道 / ガス | 水道【公営】、ガス【都市】 | ||
| 設備 | バス・トイレ別、オートロック、テレビドアホン、宅配ボックス、浴室乾燥機、インターネット対応、システムキッチン、エアコン、エレベーター、温水洗浄便座、バルコニー、フローリング、洗髪洗面化粧台、2口コンロ、コンロ:ガス、CSアンテナ、BSアンテナ、シャワー、給湯、タイル張り | ||
| 当社物件ID | 9256154 | ||
建物の情報
| 建物名 | メインステージ多摩川III | ||
|---|---|---|---|
| 所在地 | 東京都大田区矢口1丁目 | ||
| 交通 | 東急多摩川線 武蔵新田駅 徒歩3分 | ||
| 階数 | 6階建 | 総戸数 | - |
| 築年月 | 2013年03月 / 築13年 | エレベーター | あり |
| 駐車場 | - | バイク置き場 | あり |
| 駐輪場 | あり | 管理人/管理会社 | - |
| 周辺環境 | その他 ドラッグストア その他 公園 その他 銀行 その他 * | ||
| 建物種別 | マンション | 建物構造 | RC(鉄筋コンクリート) |
この部屋の取扱い不動産会社
| 会社名 | ハウスコム西東京株式会社 自由が丘店 | ||
|---|---|---|---|
| 所在地 | 東京都目黒区14-14原田ビル1階 | 交通 | - |
| 営業時間 | 10:00~18:00 | 定休日 | - |
| 免許番号 | 東京都知事(1)第108225号 | 取引態様 | 仲介 |
| 不動産会社管理番号 | HC4-3693559-0206-0096 | 当社管理番号 | 468 |
| 所属団体 | 、 | ||
| 取扱い物件情報 | 物件詳細へ | ||
※各種情報と現状に差異がある場合は、現状優先となります。問い合わせをすることで、より詳しい条件、情報を確認する事ができます。
提供:ハウスコム西東京株式会社 自由が丘店
この物件が気になったら掲載期限まであと4日
メインステージ多摩川IIIに条件(家賃・エリア)が近い物件一覧
| 写真 | 家賃 管理費等 | 敷金 礼金 | 間取り 専有面積 | 築年数 | 最寄り駅 所在地 | キープ | 詳細 |
|---|---|---|---|---|---|---|---|
マンション メゾンプレジール(1K/1階) | |||||||
![]() | 7.2万円 3,000円 | 7.2万円 なし | 1K 20.83m2 | 築22年 | 京浜東北・根岸線 蒲田駅 徒歩15分 東急池上線 池上駅 徒歩21分 東京都大田区中央8丁目 | 詳細を見る | |
マンション ニューシティアパートメンツ亀戸(1K/4階) | |||||||
![]() | 13.8万円 1.1万円 | なし 13.8万円 | 1K 35.37m2 | 築20年 | JR総武線 亀戸駅 徒歩4分 都営新宿線 大島駅(東京) 徒歩14分 都営新宿線 西大島駅 徒歩15分 東京都江東区亀戸 | 詳細を見る | |
マンション パークアクシス森下(ワンルーム/2階) | |||||||
![]() | 12.7万円 1万円 | 12.7万円 なし | ワンルーム 25.02m2 | 築5年 | 都営新宿線 森下駅(東京) 徒歩4分 JR総武線 両国駅 徒歩12分 東京メトロ半蔵門線 清澄白河駅 徒歩13分 東京都江東区新大橋 | 詳細を見る | |
マンション SEED JUST B-BASE Ⅱ(1LDK/3階) | |||||||
![]() | 8.8万円 1.5万円 | 8.8万円 8.8万円 | 1LDK 23.07m2 | 築1年 | 東京モノレール羽田 昭和島駅 徒歩11分 京浜急行電鉄本線 梅屋敷駅(東京) 徒歩19分 東京都大田区大森南4丁目 | 詳細を見る | |
アパート SEED SAVE PETIRASU Ⅲ(1LDK/1階) | |||||||
![]() | 10.4万円 1万円 | 20.8万円 10.4万円 | 1LDK 32.95m2 | 築1年 | 東京モノレール羽田 昭和島駅 徒歩12分 京浜急行電鉄本線 大森町駅 徒歩18分 東京都大田区大森東5丁目 | 詳細を見る | |
マンション クレヴィスタ亀戸V(1K/6階) | |||||||
![]() | 12.8万円 1.1万円 | なし 12.8万円 | 1K 25.41m2 | 築6年 | 東武鉄道亀戸線 亀戸水神駅 徒歩2分 総武・中央緩行線 亀戸駅 徒歩9分 東武鉄道亀戸線 東あずま駅 徒歩12分 東京都江東区亀戸8丁目 | 詳細を見る | |
アパート キングハウス大島(ワンルーム/1階) | |||||||
![]() | 7.4万円 7,000円 | なし なし | ワンルーム 17.49m2 | 築10年 | 東京都新宿線 大島駅(東京) 徒歩9分 東京都江東区亀戸7丁目 | 詳細を見る | |







