賃貸マンション
ブエナビスタ大津ウエストの賃貸物件情報(1LDK/4階)
| 家賃 | 管理費等 | 敷金 | 礼金 | 間取り | 専有面積 |
|---|---|---|---|---|---|
| 5.7万円 | 6,000円 | なし | 5.7万円 | 1LDK | 47.25m2 |
入居決定でお祝い金最大100,000円
Point
★★お部屋探しは青の看板が目印のアパマンショップで★★
提供:アパマンショップ守山店
/424x317-f1-q70-wp1)
詳細情報 ブエナビスタ大津ウエスト
物件紹介
ブエナビスタ大津ウエストは湖西線比叡山坂本駅から徒歩10分にあり、駅近で通勤通学に便利なマンションです。
このお部屋は2階以上に位置しているので通行人や周囲の住人からの視線が気になりにくく、建物のエントランスはオートロックがついているので防犯性が高くなっています。
人気の南向き・フローリングのお部屋。角部屋でもあるため、周囲の居住者の生活音も気になりにくい場所です。キッチンはシステムキッチン仕様になっていますので、お料理好きの方にもぴったり。バス・トイレは別なので、のんびりお風呂タイムも楽しめるでしょう。また、雨の日でも浴室乾燥機を使えば、お洗濯も問題ありません。
通信設備面では、インターネット接続が可能です。また、BSアンテナもありますので、おうち時間も充実するでしょう(別途工事、契約料が必要な場合あり)。
床暖房があり、冬も足元から暖かく快適に過ごすことができます。建物にはエレベーターがついているので、重い荷物があっても安心。共用部には宅配ボックスが設定されているので、不在の時にも荷物を受け取ることができます。
このお部屋は2階以上に位置しているので通行人や周囲の住人からの視線が気になりにくく、建物のエントランスはオートロックがついているので防犯性が高くなっています。
人気の南向き・フローリングのお部屋。角部屋でもあるため、周囲の居住者の生活音も気になりにくい場所です。キッチンはシステムキッチン仕様になっていますので、お料理好きの方にもぴったり。バス・トイレは別なので、のんびりお風呂タイムも楽しめるでしょう。また、雨の日でも浴室乾燥機を使えば、お洗濯も問題ありません。
通信設備面では、インターネット接続が可能です。また、BSアンテナもありますので、おうち時間も充実するでしょう(別途工事、契約料が必要な場合あり)。
床暖房があり、冬も足元から暖かく快適に過ごすことができます。建物にはエレベーターがついているので、重い荷物があっても安心。共用部には宅配ボックスが設定されているので、不在の時にも荷物を受け取ることができます。
お金・契約の情報
※「-」と表示されているものは、実際は料金が発生するものもございます。詳細はお問い合わせください。
| 家賃 | 5.7万円 | 管理費・共益費 | 6,000円 |
|---|---|---|---|
| 敷金 | なし | 礼金 | 5.7万円 |
| 入居決定でお祝い金最大100,000円 | |||
| 保証金 | - | 償却・敷引 | - |
| 住宅保険料 | 2.4万円(2年) | 更新料 | - |
| 保証会社利用 | 必須 | 保証会社名 | オリコ |
| 保証会社費用 | - | 保証会社備考 | 初回:総賃料の50% 更新:10,000円 システム利用料:330円 |
| 契約形態 | - | 契約期間 | 2年 |
| 入居・引渡期間 | 相談 | 現況 | - |
| 入居可能条件 | 2人入居可 | ||
| 契約備考 | 更新事務手数料:11,000円 RANZCLUB(課税対象) 1320円/鍵交換代(課税対象) 19800円、リフォーム済み、[退去時費用:ハウスクリーニング代 38,500円 ※故意・過失等別途実費] | ||
部屋の情報
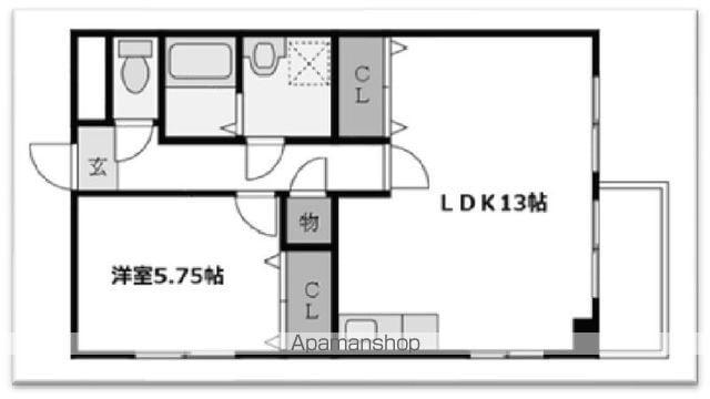
| 間取り | 1LDK | 専有面積 | 47.25m2 |
|---|---|---|---|
| 間取り詳細 | LDK(13帖)、洋室(5.7帖) | ||
| 所在階 / 向き | 4階 / 南 | バルコニー面積 | - |
| 水道 / ガス | ガス【プロパン】 | ||
| 設備 | バス・トイレ別、オートロック、宅配ボックス、浴室乾燥機、インターネット対応、エレベーター、角部屋、バルコニー、フローリング、床暖房、コンロ:ガス、BSアンテナ、シャワー、給湯、洗濯機:室内、閑静な住宅街 | ||
| 当社物件ID | 18519577 | ||
建物の情報
| 建物名 | ブエナビスタ大津ウエスト | ||
|---|---|---|---|
| 所在地 | 滋賀県大津市比叡辻2丁目 | ||
| 交通 | 湖西線 比叡山坂本駅 徒歩10分 | ||
| 階数 | 4階建 | 総戸数 | 19戸 |
| 築年月 | 2005年08月 / 築21年 | エレベーター | あり |
| 駐車場 | 空有 6,600円/月 | バイク置き場 | あり |
| 駐輪場 | あり | 管理人/管理会社 | - |
| 周辺環境 | その他 (株)コスモス薬品/ディスカウントドラッグコスモス木の岡店 徒歩7分(547m) その他 ウエルシア大津木の岡店 徒歩8分(562m) その他 比叡辻郵便局 徒歩11分(802m) その他 セブンイレブン 徒歩10分(791m) その他 スーパーサンライズ 徒歩8分(623m) その他 ローソン大津坂本七丁目店 徒歩8分(633m) その他 ドラッグユタカひえい辻店 徒歩12分(912m) その他 (株)平和堂/坂本店 徒歩10分(772m) | ||
| 建物種別 | マンション | 建物構造 | RC(鉄筋コンクリート) |
この部屋の取扱い不動産会社
| 会社名 | アパマンショップ堅田店 | ||
|---|---|---|---|
| 所在地 | 滋賀県大津市本堅田4丁目 16−3エルミナ堅田ビル1F | 交通 | 湖西線堅田から徒歩3分 |
| 営業時間 | 10:00〜18:00 | 定休日 | 水曜日 |
| 免許番号 | 滋賀県知事(8)2169 | 取引態様 | 仲介 |
| 不動産会社管理番号 | 1003245076 | 当社管理番号 | 4 |
| 所属団体 | (公社)全日本不動産協会滋賀県本部 | ||
| 公正取引協議会 | (公社) 近畿地区不動産公正取引協議会加盟 | ||
| 取扱い物件情報 | 物件詳細へ | ||
※各種情報と現状に差異がある場合は、現状優先となります。問い合わせをすることで、より詳しい条件、情報を確認する事ができます。
提供:アパマンショップ堅田店
この物件が気になったら掲載期限まであと11日
ブエナビスタ大津ウエストに条件(家賃・エリア)が近い物件一覧
| 写真 | 家賃 管理費等 | 敷金 礼金 | 間取り 専有面積 | 築年数 | 最寄り駅 所在地 | キープ | 詳細 |
|---|---|---|---|---|---|---|---|
アパート ブルームコート(2LDK/2階) | |||||||
![]() | 8.3万円 6,600円 | なし 8.3万円 | 2LDK 64.48m2 | 築11年 | 近江鉄道本線 水口石橋駅 徒歩7分 草津線 貴生川駅 徒歩40分 滋賀県甲賀市水口町神明 | 詳細を見る | |
アパート ネストロ・オガール(2LDK/2階) | |||||||
![]() | 6.3万円 3,000円 | 6.3万円 なし | 2LDK 53.45m2 | 築29年 | JR東海道本線 瀬田駅(滋賀) 徒歩13分 JR東海道本線 南草津駅 徒歩33分 JR東海道本線 石山駅 徒歩48分 滋賀県大津市大将軍 | 詳細を見る | |
一戸建て 草津線 寺庄駅 徒歩5分 築41年(5LDK) | |||||||
![]() | 6.8万円 なし | なし なし | 5LDK 103.2m2 | 築41年 | 草津線 寺庄駅 徒歩5分 草津線 甲南駅 徒歩30分 草津線 甲賀駅 徒歩42分 滋賀県甲賀市甲南町寺庄 | 詳細を見る | |
アパート レオパレスアーバンパレスⅡ(1K/3階) | |||||||
![]() | 6.4万円 7,000円 | なし 6.4万円 | 1K 23.18m2 | 築24年 | 東海道本線 瀬田駅(滋賀) 徒歩15分 東海道本線 石山駅 徒歩28分 滋賀県大津市大江5丁目 | 詳細を見る | |
アパート レオパレスシャトー大津(1K/2階) | |||||||
![]() | 5万円 5,000円 | なし 5万円 | 1K 19.87m2 | 築24年 | JR東海道本線 膳所駅 徒歩9分 京阪石山坂本線 石場駅 徒歩11分 JR東海道本線 大津駅 徒歩15分 滋賀県大津市本宮 | 詳細を見る | |
アパート イストワール(1LDK/1階) | |||||||
![]() | 6.2万円 5,000円 | 6.2万円 6.2万円 | 1LDK 49.03m2 | 築7年 | 湖西線 おごと温泉駅 徒歩12分 湖西線 堅田駅 徒歩33分 湖西線 比叡山坂本駅 徒歩50分 滋賀県大津市雄琴3丁目 | 詳細を見る | |
アパート ザ・コンフォート(1LDK/1階) | |||||||
![]() | 6.65万円 4,600円 | なし 8万円 | 1LDK 44.21m2 | 築4年 | 湖西線 おごと温泉駅 徒歩29分 湖西線 堅田駅 徒歩39分 湖西線 比叡山坂本駅 徒歩79分 滋賀県大津市仰木の里五丁目 | 詳細を見る | |
アパート リアルコンフォート(2LDK/1階) | |||||||
![]() | 6.5万円 5,000円 | なし なし | 2LDK 53.45m2 | 築26年 | 東海道本線 瀬田駅(滋賀) 徒歩19分 東海道本線 南草津駅 徒歩38分 滋賀県大津市月輪3丁目 | 詳細を見る | |








