賃貸マンション
フェニックス荻窪参番館の賃貸物件情報(1DK/7階)
| 家賃 | 管理費等 | 敷金 | 礼金 | 間取り | 専有面積 |
|---|---|---|---|---|---|
| 9.9万円 | 1.1万円 | 9.9万円 | 9.9万円 | 1DK | 29.32m2 |
入居決定でお祝い金最大100,000円
Point
■内見は現地待ち合わせでのご案内が可能です(要予約制)■契約金はクレジット決済が可能、分割払いも可能です
提供:(株)FINDERS KICHIJOJI(SUUMO経由)

詳細情報 フェニックス荻窪参番館
物件紹介
フェニックス荻窪参番館はJR中央線荻窪駅から徒歩4分にあり、駅近で通勤通学に便利なマンションです。
このお部屋は2階以上に位置しているので、通行人や周囲の住人からの視線が気になりにくく、防犯面でも安心。建物のエントランスはオートロックがついており、インターホンにはTVモニタもついているため、相手の顔を確認してから来客対応することができます。
人気の角部屋で周囲の居住者の生活音も気になりにくく、また、フローリングのお部屋なのでお掃除もラクラク。キッチンはシステムキッチン仕様になっていますので、お料理好きの方にもぴったり。バス・トイレは別なので、のんびりお風呂タイムも楽しめるでしょう。また、雨の日でも浴室乾燥機を使えば、お洗濯も問題ありません。
通信設備面では、インターネットが無料で使えるので、月々の出費を抑えられるのも魅力です。また、CATVにも対応しているので、おうち時間も充実するでしょう(別途工事、CATVの契約料等が必要な場合あり)。
建物にはエレベーターがついているので、重い荷物があっても安心。共用部には宅配ボックスが設定されているので、不在の時にも荷物を受け取ることができます。
このお部屋は2階以上に位置しているので、通行人や周囲の住人からの視線が気になりにくく、防犯面でも安心。建物のエントランスはオートロックがついており、インターホンにはTVモニタもついているため、相手の顔を確認してから来客対応することができます。
人気の角部屋で周囲の居住者の生活音も気になりにくく、また、フローリングのお部屋なのでお掃除もラクラク。キッチンはシステムキッチン仕様になっていますので、お料理好きの方にもぴったり。バス・トイレは別なので、のんびりお風呂タイムも楽しめるでしょう。また、雨の日でも浴室乾燥機を使えば、お洗濯も問題ありません。
通信設備面では、インターネットが無料で使えるので、月々の出費を抑えられるのも魅力です。また、CATVにも対応しているので、おうち時間も充実するでしょう(別途工事、CATVの契約料等が必要な場合あり)。
建物にはエレベーターがついているので、重い荷物があっても安心。共用部には宅配ボックスが設定されているので、不在の時にも荷物を受け取ることができます。
お金・契約の情報
※「-」と表示されているものは、実際は料金が発生するものもございます。詳細はお問い合わせください。
| 家賃 | 9.9万円 | 管理費・共益費 | 1.1万円 |
|---|---|---|---|
| 敷金 | 9.9万円 | 礼金 | 9.9万円 |
| 入居決定でお祝い金最大100,000円 | |||
| 保証金 | - | 償却・敷引 | - |
| 住宅保険料 | - | 更新料 | - |
| 保証会社利用 | 必須 | 保証会社名 | - |
| 保証会社費用 | - | 保証会社備考 | 保証会社利用必 トーシンライフ、オリコフォレントインシュア、全保連/保証料:初回=賃料等×50%、月額=賃料等×1% |
| 契約形態 | - | 契約期間 | - |
| 入居・引渡期間 | - | 現況 | - |
| 契約備考 | 合計2.75万円(内訳:鍵交換費用(税込)27500円) ■契約時:当月分+翌月分の賃料・管理費をお支払い頂きます ■解約時:ルームクリーニング費用及び借主負担分の原状回復費用をお支払い頂きます、家財保険+付帯サービス(税込)1735円/月 1DK 二人入居可 普通借家2年 バストイレ別、バルコニー、ガスコンロ対応、クロゼット、フローリング、TVインターホン、浴室乾燥機、オートロック、室内洗濯置、シューズボックス、システムキッチン、角住戸、温水洗浄便座、エレベーター、洗面所独立、洗面化粧台、2口コンロ、駐輪場、宅配ボックス、CATV、外壁タイル張り、2面採光、防犯カメラ、照明付、分譲賃貸、敷金1ヶ月、バイク置場、エアコン2台、ネット使用料不要、人感照明センサー、耐震構造、駅徒歩5分以内、24時間ゴミ出し可、クリーニングボックス、風除室、敷地内ごみ置き場、都市ガス、LAN、礼金1ヶ月 入居日:'26年2月上旬 | ||
部屋の情報
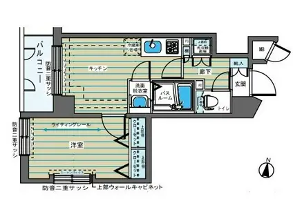
| 間取り | 1DK | 専有面積 | 29.32m2 |
|---|---|---|---|
| 所在階 / 向き | 7階 / 西 | バルコニー面積 | 3m2 |
| 水道 / ガス | - | ||
| 設備 | バス・トイレ別、2階以上、オートロック、テレビドアホン、宅配ボックス、浴室乾燥機、インターネット対応、システムキッチン、エアコン、エレベーター、温水洗浄便座、角部屋、バルコニー、フローリング、洗髪洗面化粧台、2口コンロ、コンロ:ガス、CATV、インターネット使用料無料、洗濯機:室内 | ||
| 当社物件ID | 276927 | ||
建物の情報
| 建物名 | フェニックス荻窪参番館 | ||
|---|---|---|---|
| 所在地 | 東京都杉並区荻窪 | ||
| 交通 | JR中央線 荻窪駅 徒歩4分 | ||
| 階数 | 8階建 | 総戸数 | 37戸 |
| 築年月 | 2000年11月 / 築26年 | エレベーター | あり |
| 駐車場 | なし | バイク置き場 | あり |
| 駐輪場 | あり | 管理人/管理会社 | - |
| 建物種別 | マンション | 建物構造 | RC(鉄筋コンクリート) |
この部屋の取扱い不動産会社
| 会社名 | (株)FINDERS(SUUMO経由) | ||
|---|---|---|---|
| 所在地 | 東京都新宿区西新宿1-4-11 全研プラザSPACES新宿 | 交通 | - |
| 営業時間 | 10:00~18:00 | 定休日 | 日曜日 |
| 免許番号 | 東京都知事105698 | 取引態様 | 仲介 |
| 不動産会社管理番号 | 100477154220 | 当社管理番号 | 89 |
| 所属団体 | (公社)全日本不動産協会東京都本部会員 | ||
| 公正取引協議会 | (公社)首都圏不動産公正取引協議会加盟 | ||
| 取扱い物件情報 | 物件詳細へ | ||
※各種情報と現状に差異がある場合は、現状優先となります。問い合わせをすることで、より詳しい条件、情報を確認する事ができます。
提供:(株)FINDERS(SUUMO経由)
この物件が気になったら掲載期限まであと10日
フェニックス荻窪参番館に条件(家賃・エリア)が近い物件一覧
| 写真 | 家賃 管理費等 | 敷金 礼金 | 間取り 専有面積 | 築年数 | 最寄り駅 所在地 | キープ | 詳細 |
|---|---|---|---|---|---|---|---|
マンション ライオンズマンション方南町駅前(ワンルーム/2階) | |||||||
![]() | 6.8万円 1万円 | 6.8万円 6.8万円 | ワンルーム 21.56m2 | 築41年 | 東京地下鉄方南支線 方南町駅 徒歩1分 東京都杉並区堀ノ内1丁目 | 詳細を見る | |
マンション THE・GR(1K/1階) | |||||||
![]() | 6.3万円 2,000円 | 6.3万円 6.3万円 | 1K 20.28m2 | 築21年 | 東京メトロ有楽町線 平和台駅(東京) 徒歩9分 東武東上線 東武練馬駅 徒歩17分 東京メトロ有楽町線 氷川台駅 徒歩19分 東京都練馬区平和台 | 詳細を見る | |
アパート ルーアン(1LDK/1階) | |||||||
![]() | 14.5万円 9,000円 | なし 8万円 | 1LDK 37.77m2 | 築15年 | 東京地下鉄東西線 落合駅 徒歩9分 東京都中野区上高田1丁目 | 詳細を見る | |
マンション リバーサイド高松(1K/3階) | |||||||
![]() | 7万円 3,000円 | 7万円 7万円 | 1K 23.1m2 | 築24年 | 都営大江戸線 練馬春日町駅 徒歩14分 西武池袋線 中村橋駅 徒歩15分 西武池袋線 富士見台駅 徒歩18分 東京都練馬区高松 | 詳細を見る | |
マンション ウィステリア白鷺(1DK/5階) | |||||||
![]() | 9.5万円 5,000円 | 9.5万円 9.5万円 | 1DK 39.37m2 | 築28年 | 西武池袋線 富士見台駅 徒歩3分 東京都中野区上鷺宮 | 詳細を見る | |
アパート KEYAKI(1K/2階) | |||||||
![]() | 10.3万円 5,500円 | なし 10.3万円 | 1K 19.87m2 | 築10年 | 東急東横線 都立大学駅 徒歩15分 東急東横線 自由が丘駅(東京) 徒歩20分 東急田園都市線 駒沢大学駅 徒歩22分 東京都世田谷区深沢 | 詳細を見る | |
アパート 三幸荘(ワンルーム/1階) | |||||||
![]() | 7.3万円 4,000円 | 7.3万円 なし | ワンルーム 24m2 | 築54年 | 東京メトロ有楽町線 地下鉄赤塚駅 徒歩7分 東武東上線 下赤塚駅 徒歩12分 東京メトロ有楽町線 平和台駅(東京) 徒歩17分 東京都練馬区北町 | 詳細を見る | |
アパート レオネクストサンルーチェ三鷹II(1K/2階) | |||||||
![]() | 8.9万円 5,000円 | なし 8.9万円 | 1K 26.38m2 | 築13年 | 西武多摩川線 新小金井駅 徒歩20分 JR中央線 武蔵境駅 徒歩24分 JR中央線 東小金井駅 徒歩27分 東京都三鷹市深大寺 | 詳細を見る | |








