賃貸マンション
コンフォリア日本橋人形町の賃貸物件情報(2LDK/2階)
| 家賃 | 管理費等 | 敷金 | 礼金 | 間取り | 専有面積 |
|---|---|---|---|---|---|
| 26.2万円 | 1万円 | 26.2万円 | なし | 2LDK | 55.99m2 |
入居決定でお祝い金最大100,000円
- 保証金
- -
- 償却・敷引
- -
- 築年数
- 築18年
- 所在階
- 2階
- 向き
- 南東
Point
まずはお問い合わせ!
不動産会社は街のプロ、あなたに合った物件がきっと見つかります。
提供:Sky Yard Property(株)新宿店(SUUMO経由)

詳細情報 コンフォリア日本橋人形町
物件紹介
コンフォリア日本橋人形町は東京メトロ日比谷線人形町駅から徒歩2分にあり、駅近で通勤通学に便利なマンションです。
このお部屋は2階以上に位置しているので、通行人や周囲の住人からの視線が気になりにくく、防犯面でも安心。建物のエントランスはオートロックがついており、インターホンにはTVモニタもついているため、相手の顔を確認してから来客対応することができます。
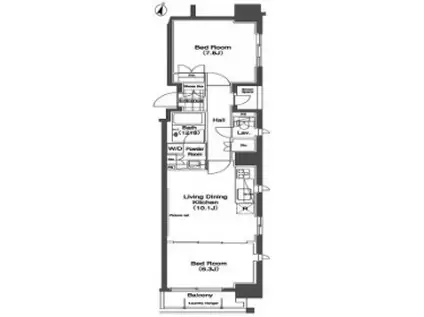
おしゃれなデザイナーズ物件!また、楽器相談が可能な物件となっているので、楽器演奏をお考えの方はぜひ相談してみてください。人気の南向き・フローリングのお部屋。角部屋でもあるため、周囲の居住者の生活音も気になりにくい場所です。室内にはウォークインクローゼットがありますので、たくさんの荷物も効率的に収納ができます。キッチンはシステムキッチン仕様になっていますので、お料理好きの方にもぴったり。バス・トイレは別なので、のんびりお風呂タイムも楽しめるでしょう。また、雨の日でも浴室乾燥機を使えば、お洗濯も問題ありません。
通信設備面では、インターネット接続が可能です。また、BSアンテナ・CSアンテナがありCATVにも対応しているので、おうち時間も充実するでしょう(別途工事、契約料が必要な場合あり)。
建物にはエレベーターがついているので、重い荷物があっても安心。共用部には宅配ボックスが設定されているので、不在の時にも荷物を受け取ることができます。
このお部屋は2階以上に位置しているので、通行人や周囲の住人からの視線が気になりにくく、防犯面でも安心。建物のエントランスはオートロックがついており、インターホンにはTVモニタもついているため、相手の顔を確認してから来客対応することができます。
おしゃれなデザイナーズ物件!また、楽器相談が可能な物件となっているので、楽器演奏をお考えの方はぜひ相談してみてください。人気の南向き・フローリングのお部屋。角部屋でもあるため、周囲の居住者の生活音も気になりにくい場所です。室内にはウォークインクローゼットがありますので、たくさんの荷物も効率的に収納ができます。キッチンはシステムキッチン仕様になっていますので、お料理好きの方にもぴったり。バス・トイレは別なので、のんびりお風呂タイムも楽しめるでしょう。また、雨の日でも浴室乾燥機を使えば、お洗濯も問題ありません。
通信設備面では、インターネット接続が可能です。また、BSアンテナ・CSアンテナがありCATVにも対応しているので、おうち時間も充実するでしょう(別途工事、契約料が必要な場合あり)。
建物にはエレベーターがついているので、重い荷物があっても安心。共用部には宅配ボックスが設定されているので、不在の時にも荷物を受け取ることができます。
お金・契約の情報
※「-」と表示されているものは、実際は料金が発生するものもございます。詳細はお問い合わせください。
| 家賃 | 26.2万円 | 管理費・共益費 | 1万円 |
|---|---|---|---|
| 敷金 | 26.2万円 | 礼金 | なし |
| 入居決定でお祝い金最大100,000円 | |||
| 保証金 | - | 償却・敷引 | - |
| 住宅保険料 | - | 更新料 | - |
| 保証会社利用 | 必須 | 保証会社名 | - |
| 保証会社費用 | - | 保証会社備考 | 保証会社利用必 エポスカード(RP) 保証料:賃料等の50%(最低2万)、月額保証料:賃料等の1%(更新料無) |
| 契約形態 | - | 契約期間 | - |
| 入居・引渡期間 | - | 現況 | - |
| 契約備考 | 合計9.68万円(内訳:カギ交換代:33000円/クリーニング費用:52800円/エアコン清掃費:11000円) 2LDK 損保【1.66万円2年】 バストイレ別、エアコン、TVインターホン、浴室乾燥機、オートロック、室内洗濯置、システムキッチン、追焚機能浴室、温水洗浄便座、エレベーター、洗面所独立、駐輪場、宅配ボックス、礼金不要、3口以上コンロ、敷金1ヶ月、バイク置場、ネット専用回線、一部フローリング、3駅以上利用可、3沿線以上利用可、駅徒歩5分以内、駅徒歩10分以内、東南向き、BS 入居日:'26年2月下旬 | ||
部屋の情報
| 間取り | 2LDK | 専有面積 | 55.99m2 |
|---|---|---|---|
| 所在階 / 向き | 2階 / 南東 | バルコニー面積 | - |
| 水道 / ガス | - | ||
| 設備 | バス・トイレ別、2階以上、オートロック、テレビドアホン、宅配ボックス、浴室乾燥機、追い焚き、インターネット対応、システムキッチン、エアコン、エレベーター、温水洗浄便座、南向き、フローリング、洗髪洗面化粧台、2口コンロ、BSアンテナ、洗濯機:室内 | ||
| 当社物件ID | 7452004 | ||
建物の情報
| 建物名 | コンフォリア日本橋人形町 | ||
|---|---|---|---|
| 所在地 | 東京都中央区日本橋人形町 | ||
| 交通 | 東京メトロ日比谷線 人形町駅 徒歩2分 東京メトロ半蔵門線 水天宮前駅 徒歩6分 都営新宿線 馬喰横山駅 徒歩10分 | ||
| 階数 | 10階建 | 総戸数 | 45戸 |
| 築年月 | 2008年02月 / 築18年 | エレベーター | あり |
| 駐車場 | なし | バイク置き場 | あり |
| 駐輪場 | あり | 管理人/管理会社 | - |
| 建物種別 | マンション | 建物構造 | RC(鉄筋コンクリート) |
この部屋の取扱い不動産会社
| 会社名 | 東急リバブル(株)銀座センター(SUUMO経由) | ||
|---|---|---|---|
| 所在地 | 東京都中央区銀座2-11-8 ラウンドクロス銀座2丁目7階 | 交通 | - |
| 営業時間 | AM10:00~PM6:00 | 定休日 | 毎週火曜日・水曜日 |
| 免許番号 | 国土交通大臣2611 | 取引態様 | 仲介 |
| 不動産会社管理番号 | 100480389416 | 当社管理番号 | 89 |
| 所属団体 | (一社)不動産流通経営協会会員 | ||
| 公正取引協議会 | (公社)首都圏不動産公正取引協議会加盟 | ||
| 取扱い物件情報 | 物件詳細へ | ||
※各種情報と現状に差異がある場合は、現状優先となります。問い合わせをすることで、より詳しい条件、情報を確認する事ができます。
提供:東急リバブル(株)銀座センター(SUUMO経由)
この物件が気になったら掲載期限まであと11日
コンフォリア日本橋人形町に条件(家賃・エリア)が近い物件一覧
| 写真 | 家賃 管理費等 | 敷金 礼金 | 間取り 専有面積 | 築年数 | 最寄り駅 所在地 | キープ | 詳細 |
|---|---|---|---|---|---|---|---|
マンション プライムアーバン勝どき(1LDK/4階) | |||||||
![]() | 16.5万円 5,000円 | 16.5万円 16.5万円 | 1LDK 43.01m2 | 築39年 | 東京都大江戸線 勝どき駅 徒歩9分 東京都中央区勝どき6丁目 | 詳細を見る | |
マンション ASTILE日本橋浜町(1LDK/3階) | |||||||
![]() | 18.4万円 1.5万円 | なし なし | 1LDK 38.16m2 | 築3年 | 東京都新宿線 浜町駅 徒歩6分 東京地下鉄半蔵門線 水天宮前駅 徒歩8分 東京都大江戸線 森下駅(東京) 徒歩10分 東京都中央区日本橋浜町3丁目 | 詳細を見る | |
マンション コンフォリア東上野(ワンルーム/11階) | |||||||
![]() | 16.1万円 8,000円 | 16.1万円 なし | ワンルーム 25.16m2 | 築2年 | 東京地下鉄銀座線 稲荷町駅(東京) 徒歩3分 山手線 上野駅 徒歩9分 東京都台東区東上野6丁目 | 詳細を見る | |
マンション エスペランサK錦糸町(1LDK/15階) | |||||||
![]() | 18.5万円 1万円 | 18.5万円 18.5万円 | 1LDK 45.23m2 | 築6年 | 総武・中央緩行線 錦糸町駅 徒歩9分 総武本線 錦糸町駅 徒歩9分 東京地下鉄半蔵門線 錦糸町駅 徒歩9分 東京都墨田区緑4丁目 | 詳細を見る | |
マンション カノン押上(1LDK/8階) | |||||||
![]() | 17.2万円 8,000円 | 17.2万円 17.2万円 | 1LDK 34.08m2 | 築5年 | 東京地下鉄半蔵門線 押上駅 徒歩4分 東武伊勢崎・大師線 曳舟駅 徒歩10分 京成電鉄押上線 京成曳舟駅 徒歩13分 東京都墨田区押上3丁目 | 詳細を見る | |
マンション GENOVIA両国ⅥGREEN VEIL(ワンルーム/3階) | |||||||
![]() | 20.3万円 なし | なし なし | ワンルーム 26.53m2 | 築4年 | 東京都大江戸線 両国駅 徒歩9分 東京都新宿線 菊川駅(東京) 徒歩10分 総武・中央緩行線 錦糸町駅 徒歩11分 東京都墨田区緑3丁目 | 詳細を見る | |
マンション GRAN PASEO上野御徒町(1LDK/2階) | |||||||
![]() | 20.9万円 1.5万円 | なし なし | 1LDK 38.73m2 | 築1年 | 東京都大江戸線 新御徒町駅 徒歩6分 東京地下鉄日比谷線 仲御徒町駅 徒歩8分 山手線 御徒町駅 徒歩12分 東京都台東区台東2丁目 | 詳細を見る | |
マンション プロスペクトKALON三ノ輪(1LDK/10階) | |||||||
![]() | 20.1万円 1万円 | 20.1万円 20.1万円 | 1LDK 48.37m2 | 築19年 | 東京地下鉄日比谷線 三ノ輪駅 徒歩1分 常磐線 南千住駅 徒歩16分 つくばエクスプレス 南千住駅 徒歩16分 東京都台東区三ノ輪1丁目 | 詳細を見る | |

/105x80-f1-q70-wp1)






