賃貸マンション
PINE SEA TSUDANUMAの賃貸物件情報(ワンルーム/4階)
| 家賃 | 管理費等 | 敷金 | 礼金 | 間取り | 専有面積 |
|---|---|---|---|---|---|
| 4.8万円 | 6,000円 | 4.8万円 | なし | ワンルーム | 17.43m2 |
入居決定でお祝い金最大100,000円
- 保証金
- -
- 償却・敷引
- -
- 築年数
- 築39年
- 所在階
- 4階
- 向き
- -
Point
オンラインで内見からご契約までご対応可能です。ネットで気になるお部屋があれば他社様掲載物件もまとめてご紹介可能です。
提供:(株)FT-ハウス(SUUMO経由)

詳細情報 PINE SEA TSUDANUMA
物件紹介
PINE SEA TSUDANUMAはJR総武線快速津田沼駅から徒歩6分にあり、駅近で通勤通学に便利なマンションです。
このお部屋は2階以上に位置しているので通行人や周囲の住人からの視線が気になりにくく、建物のエントランスはオートロックがついているので防犯性が高くなっています。
フローリングのお部屋なのでお掃除もラクラク。
建物にはエレベーターがついているので、重い荷物があっても安心。共用部には宅配ボックスが設定されているので、不在の時にも荷物を受け取ることができます。
このお部屋は2階以上に位置しているので通行人や周囲の住人からの視線が気になりにくく、建物のエントランスはオートロックがついているので防犯性が高くなっています。
フローリングのお部屋なのでお掃除もラクラク。
建物にはエレベーターがついているので、重い荷物があっても安心。共用部には宅配ボックスが設定されているので、不在の時にも荷物を受け取ることができます。
お金・契約の情報
※「-」と表示されているものは、実際は料金が発生するものもございます。詳細はお問い合わせください。
| 家賃 | 4.8万円 | 管理費・共益費 | 6,000円 |
|---|---|---|---|
| 敷金 | 4.8万円 | 礼金 | なし |
| 入居決定でお祝い金最大100,000円 | |||
| 保証金 | - | 償却・敷引 | - |
| 住宅保険料 | - | 更新料 | - |
| 保証会社利用 | 必須 | 保証会社名 | - |
| 保証会社費用 | - | 保証会社備考 | 保証会社利用必 初回保証料:月額総賃料50% 月次:月額総賃料1.1% |
| 契約形態 | - | 契約期間 | - |
| 入居・引渡期間 | - | 現況 | - |
| 契約備考 | 合計2.2万円(内訳:鍵交換代2.2万円) 更新料 新賃料1.00ヶ月分 室内清掃費用 33000円 ワンルーム 普通借家2年 損保【1.9万円2年】 エアコン、ガスコンロ対応、フローリング、オートロック、室内洗濯置、シューズボックス、温水洗浄便座、エレベーター、宅配ボックス、礼金不要、敷金1ヶ月、2沿線利用可、保証金不要、3駅以上利用可、駅徒歩5分以内、都市ガス、シャワールーム、保証会社利用可 入居日:'26年3月中旬 | ||
部屋の情報
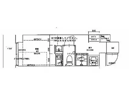
| 間取り | ワンルーム | 専有面積 | 17.43m2 |
|---|---|---|---|
| 所在階 / 向き | 4階 / - | バルコニー面積 | - |
| 水道 / ガス | - | ||
| 設備 | 2階以上、オートロック、宅配ボックス、エアコン、エレベーター、温水洗浄便座、フローリング、コンロ:ガス、洗濯機:室内 | ||
| 当社物件ID | 160515872 | ||
建物の情報
| 建物名 | PINE SEA TSUDANUMA | ||
|---|---|---|---|
| 所在地 | 千葉県船橋市前原西 | ||
| 交通 | JR総武線快速 津田沼駅 徒歩6分 JR総武線 津田沼駅 徒歩6分 京成松戸線 新津田沼駅 徒歩8分 | ||
| 階数 | 9階建 | 総戸数 | 24戸 |
| 築年月 | 1987年09月 / 築39年 | エレベーター | あり |
| 駐車場 | なし | バイク置き場 | - |
| 駐輪場 | - | 管理人/管理会社 | - |
| 周辺環境 | その他 京進のほいくえんHOPPA津田沼園(幼稚園・保育園)まで356m その他 りりぱっとナーサリー津田沼園(幼稚園・保育園)まで275m その他 冨士見第二幼稚園(幼稚園・保育園)まで1455m その他 船橋市立前原小学校(小学校)まで443m その他 習志野市立第五中学校(中学校)まで1101m その他 千葉工業大学 津田沼校舎(大学・短大)まで587m | ||
| 建物種別 | マンション | 建物構造 | RC(鉄筋コンクリート) |
この部屋の取扱い不動産会社
| 会社名 | (株)FT-ハウス(SUUMO経由) | ||
|---|---|---|---|
| 所在地 | 千葉県船橋市前原西2-13-12 2階 | 交通 | - |
| 営業時間 | 9:00~18:00 | 定休日 | 水曜日(1月~3月無休) |
| 免許番号 | 千葉県知事17922 | 取引態様 | 仲介 |
| 不動産会社管理番号 | 100492216111 | 当社管理番号 | 89 |
| 所属団体 | (公社)全日本不動産協会千葉県本部会員 | ||
| 公正取引協議会 | (公社)首都圏不動産公正取引協議会加盟 | ||
| 取扱い物件情報 | 物件詳細へ | ||
※各種情報と現状に差異がある場合は、現状優先となります。問い合わせをすることで、より詳しい条件、情報を確認する事ができます。
提供:(株)FT-ハウス(SUUMO経由)
この物件が気になったら掲載期限まであと11日
PINE SEA TSUDANUMAに条件(家賃・エリア)が近い物件一覧
| 写真 | 家賃 管理費等 | 敷金 礼金 | 間取り 専有面積 | 築年数 | 最寄り駅 所在地 | キープ | 詳細 |
|---|---|---|---|---|---|---|---|
アパート サニーハウス(1K/2階) | |||||||
![]() | 5.2万円 1,000円 | 5.2万円 なし | 1K 20.22m2 | 築44年 | JR総武線 船橋駅 徒歩7分 京成本線 京成船橋駅 徒歩7分 東葉高速鉄道 東海神駅 徒歩8分 千葉県船橋市海神 | 詳細を見る | |
マンション ラレーブ津田沼IV(ワンルーム/1階) | |||||||
![]() | 4.7万円 5,000円 | なし なし | ワンルーム 16.8m2 | 築36年 | 京成松戸線 前原駅 徒歩10分 JR総武線 津田沼駅 徒歩12分 千葉県船橋市前原西 | 詳細を見る | |
アパート グリーンホース(2K/1階) | |||||||
![]() | 4.9万円 1,000円 | なし なし | 2K 34.78m2 | 築42年 | 東葉高速鉄道 飯山満駅 徒歩4分 京成松戸線 前原駅 徒歩32分 千葉県船橋市芝山 | 詳細を見る | |
アパート レオパレスSATY(1K/1階) | |||||||
![]() | 5.2万円 5,000円 | なし 5.2万円 | 1K 19.87m2 | 築22年 | 京成電鉄本線 八千代台駅 徒歩20分 千葉県習志野市東習志野8丁目 | 詳細を見る | |
アパート 北方ハイツ(1DK/1階) | |||||||
![]() | 4.8万円 2,000円 | 4.8万円 なし | 1DK 23.96m2 | 築53年 | 京成本線 鬼越駅 徒歩9分 JR総武線 本八幡駅 徒歩18分 京成本線 京成八幡駅 徒歩18分 千葉県市川市北方 | 詳細を見る | |
アパート ファーストK(1K/2階) | |||||||
![]() | 3.6万円 3,000円 | なし 3.6万円 | 1K 25m2 | 築32年 | 京成本線 実籾駅 徒歩5分 京成本線 京成大久保駅 徒歩31分 京成本線 八千代台駅 徒歩34分 千葉県習志野市実籾 | 詳細を見る | |
マンション プレミールS(ワンルーム/3階) | |||||||
![]() | 6.2万円 2,000円 | 6.2万円 なし | ワンルーム 25.46m2 | 築24年 | 京成本線 京成津田沼駅 徒歩6分 JR総武線 津田沼駅 徒歩20分 JR京葉線 新習志野駅 徒歩25分 千葉県習志野市津田沼 | 詳細を見る | |
マンション エスコートビル(ワンルーム/2階) | |||||||
![]() | 5.9万円 3,000円 | 5.9万円 なし | ワンルーム 30.93m2 | 築36年 | 総武・中央緩行線 船橋駅 徒歩17分 東武鉄道野田線 塚田駅 徒歩17分 千葉県船橋市夏見4丁目 | 詳細を見る | |









