賃貸マンション
明大前フラワーハイホームの賃貸物件情報(1LDK/4階)
| 家賃 | 管理費等 | 敷金 | 礼金 | 間取り | 専有面積 |
|---|---|---|---|---|---|
| 15.8万円 | 1万円 | 15.8万円 | 15.8万円 | 1LDK | 47.33m2 |
入居決定でお祝い金最大100,000円
Point
まずはお問い合わせ!
不動産会社は街のプロ、あなたに合った物件がきっと見つかります。
提供:(株)REPLAY中目黒店(SUUMO経由)

詳細情報 明大前フラワーハイホーム
物件紹介
明大前フラワーハイホームは京王線明大前駅から徒歩2分にあり、駅近で通勤通学に便利なマンションです。
このお部屋は2階以上に位置しているので、通行人や周囲の住人からの視線が気になりにくく、防犯面でも安心。建物のエントランスはオートロックがついており、インターホンにはTVモニタもついているため、相手の顔を確認してから来客対応することができます。
人気の南向き・フローリングのお部屋。角部屋でもあるため、周囲の居住者の生活音も気になりにくい場所です。キッチンはシステムキッチン仕様になっていますので、お料理好きの方にもぴったり。バス・トイレは別なので、のんびりお風呂タイムも楽しめるでしょう。また、雨の日でも浴室乾燥機を使えば、お洗濯も問題ありません。
通信設備面では、インターネット接続が可能です。また、BSアンテナ・CSアンテナがありCATVにも対応しているので、おうち時間も充実するでしょう(別途工事、契約料が必要な場合あり)。
建物にはエレベーターがついているので、重い荷物があっても安心。共用部には宅配ボックスが設定されているので、不在の時にも荷物を受け取ることができます。
このお部屋は2階以上に位置しているので、通行人や周囲の住人からの視線が気になりにくく、防犯面でも安心。建物のエントランスはオートロックがついており、インターホンにはTVモニタもついているため、相手の顔を確認してから来客対応することができます。
人気の南向き・フローリングのお部屋。角部屋でもあるため、周囲の居住者の生活音も気になりにくい場所です。キッチンはシステムキッチン仕様になっていますので、お料理好きの方にもぴったり。バス・トイレは別なので、のんびりお風呂タイムも楽しめるでしょう。また、雨の日でも浴室乾燥機を使えば、お洗濯も問題ありません。
通信設備面では、インターネット接続が可能です。また、BSアンテナ・CSアンテナがありCATVにも対応しているので、おうち時間も充実するでしょう(別途工事、契約料が必要な場合あり)。
建物にはエレベーターがついているので、重い荷物があっても安心。共用部には宅配ボックスが設定されているので、不在の時にも荷物を受け取ることができます。
お金・契約の情報
※「-」と表示されているものは、実際は料金が発生するものもございます。詳細はお問い合わせください。
| 家賃 | 15.8万円 | 管理費・共益費 | 1万円 |
|---|---|---|---|
| 敷金 | 15.8万円 | 礼金 | 15.8万円 |
| 入居決定でお祝い金最大100,000円 | |||
| 保証金 | - | 償却・敷引 | - |
| 住宅保険料 | - | 更新料 | - |
| 保証会社利用 | 必須 | 保証会社名 | - |
| 保証会社費用 | - | 保証会社備考 | 保証会社利用必 当社指定の保証会社をご利用頂くことが契約条件となります。 |
| 契約形態 | - | 契約期間 | - |
| 入居・引渡期間 | 相談 | 現況 | - |
| 契約備考 | 更新料新賃料1ヶ月 合計4.84万円(内訳:入居者サポート料22000円鍵交換代26400円) 1LDK 普通借家2年 損保【2万円2年】 バストイレ別、バルコニー、エアコン、ガスコンロ対応、クロゼット、フローリング、TVインターホン、浴室乾燥機、オートロック、室内洗濯置、シューズボックス、システムキッチン、南向き、追焚機能浴室、角住戸、温水洗浄便座、エレベーター、洗面所独立、洗面化粧台、宅配ボックス、CATV、光ファイバー、3口以上コンロ、分譲賃貸、グリル付、保証人不要、CS、24時間換気システム、クロゼット2ヶ所、駅徒歩5分以内、BS、IT重説対応物件、初期費用カード決済可 | ||
部屋の情報
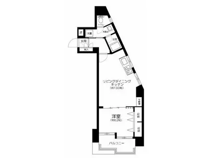
| 間取り | 1LDK | 専有面積 | 47.33m2 |
|---|---|---|---|
| 所在階 / 向き | 4階 / 南 | バルコニー面積 | - |
| 水道 / ガス | - | ||
| 設備 | バス・トイレ別、2階以上、オートロック、テレビドアホン、宅配ボックス、浴室乾燥機、追い焚き、インターネット対応、システムキッチン、エアコン、エレベーター、温水洗浄便座、南向き、角部屋、バルコニー、フローリング、洗髪洗面化粧台、2口コンロ、コンロ:ガス、CATV、CSアンテナ、BSアンテナ、洗濯機:室内 | ||
| 当社物件ID | 160134954 | ||
建物の情報
| 建物名 | 明大前フラワーハイホーム | ||
|---|---|---|---|
| 所在地 | 東京都世田谷区松原 | ||
| 交通 | 京王線 明大前駅 徒歩2分 京王線 下高井戸駅 徒歩11分 | ||
| 階数 | 5階建 | 総戸数 | - |
| 築年月 | 1981年11月 / 築45年 | エレベーター | あり |
| 駐車場 | なし | バイク置き場 | - |
| 駐輪場 | - | 管理人/管理会社 | - |
| 建物種別 | マンション | 建物構造 | RC(鉄筋コンクリート) |
この部屋の取扱い不動産会社
| 会社名 | (株)REPLAY中目黒店(SUUMO経由) | ||
|---|---|---|---|
| 所在地 | 東京都目黒区上目黒2-16-14 | 交通 | - |
| 営業時間 | 10時-19時 | 定休日 | 火曜・水曜 |
| 免許番号 | 東京都知事104957 | 取引態様 | 仲介 |
| 不動産会社管理番号 | 100480434658 | 当社管理番号 | 89 |
| 取扱い物件情報 | 物件詳細へ | ||
※各種情報と現状に差異がある場合は、現状優先となります。問い合わせをすることで、より詳しい条件、情報を確認する事ができます。
提供:(株)REPLAY中目黒店(SUUMO経由)
この物件が気になったら掲載期限まであと9日
明大前フラワーハイホームに条件(家賃・エリア)が近い物件一覧
| 写真 | 家賃 管理費等 | 敷金 礼金 | 間取り 専有面積 | 築年数 | 最寄り駅 所在地 | キープ | 詳細 |
|---|---|---|---|---|---|---|---|
マンション グランドコンシェルジュ大森本町ⅡAC(1K/5階) | |||||||
![]() | 12.4万円 5,000円 | 12.4万円 12.4万円 | 1K 28.88m2 | 築7年 | 京浜急行電鉄本線 平和島駅 徒歩7分 東京モノレール羽田 流通センター駅 徒歩18分 京浜東北・根岸線 大森駅(東京) 徒歩24分 東京都大田区大森本町2丁目 | 詳細を見る | |
アパート エスペランサ蒲田(1LDK/1階) | |||||||
![]() | 14.5万円 5,000円 | 14.5万円 29万円 | 1LDK 36.41m2 | 築5年 | 東急池上線 蓮沼駅 徒歩5分 JR京浜東北線 蒲田駅 徒歩13分 東急池上線 池上駅 徒歩14分 東京都大田区西蒲田 | 詳細を見る | |
マンション イプセ蒲田Ⅲ(1K/4階) | |||||||
![]() | 11.3万円 1.2万円 | 11.3万円 なし | 1K 25.51m2 | 築10年 | 東急池上線 蓮沼駅 徒歩5分 東急多摩川線 蒲田駅 徒歩9分 京浜東北・根岸線 蒲田駅 徒歩10分 東京都大田区東矢口3丁目 | 詳細を見る | |
アパート SEED SAVE PETIRASU Ⅲ(2DK/1階) | |||||||
![]() | 12万円 1万円 | 24万円 12万円 | 2DK 35.83m2 | 新築 | 東京モノレール羽田 昭和島駅 徒歩12分 京浜急行電鉄本線 大森町駅 徒歩18分 東京都大田区大森東5丁目 | 詳細を見る | |
タウンハウス 大田菜園長屋(2LDK) | |||||||
![]() | 15.4万円 5,000円 | 15.4万円 23.1万円 | 2LDK 52.17m2 | 築9年 | 京浜急行電鉄本線 雑色駅 徒歩8分 京浜急行電鉄本線 六郷土手駅 徒歩13分 東京都大田区東六郷3丁目 | 詳細を見る | |
一戸建て 東急池上線 蓮沼駅 徒歩5分 築66年(4K) | |||||||
![]() | 12万円 なし | 12万円 12万円 | 4K 63.63m2 | 築66年 | 東急池上線 蓮沼駅 徒歩5分 東急池上線 池上駅 徒歩11分 東急多摩川線 矢口渡駅 徒歩13分 東京都大田区東矢口1丁目 | 詳細を見る | |
マンション ステージグランデ大森町(1K/7階) | |||||||
![]() | 9.5万円 5,000円 | 9.5万円 9.5万円 | 1K 21m2 | 築18年 | 京急本線 大森町駅 徒歩5分 京急本線 梅屋敷駅(東京) 徒歩10分 京急本線 平和島駅 徒歩13分 東京都大田区大森中 | 詳細を見る | |
マンション スタイリオ池上WELL(1LDK/2階) | |||||||
![]() | 19.3万円 1.5万円 | 19.3万円 なし | 1LDK 42.63m2 | 築2年 | 東急池上線 池上駅 徒歩7分 東京都大田区池上7丁目 | 詳細を見る | |









